Property
Account |
| Property ID: | 2853 | Abbreviated Legal Description: | SEC 10 TWN 7 RNG 34 W1/2NW1/4; TAX 1; TAX 3 |
| Parcel Number: | 340710210002 | Agent Code: | |
| Type: | Real | | |
| Tax Area: | 100 - 140-8 | Land Use Code | 83 |
| Open Space: | Y | DFL | N |
| Historic Property: | N | Remodel Property: | N |
| Multi-Family Redevelopment: | N | | |
| Township: | 7 | Section: | 10 |
| Range: | 34 |
Location |
| Address: | WA 99362 | Mapsco: | |
| Neighborhood: | 0 Farm | Map ID: | |
| Neighborhood CD: | 2220 |
Owner |
| Name: | WOIBLET BENJAMIN T | Owner ID: | 49129 |
| Mailing Address: | 3120 CANBERRA DR WALLA WALLA, WA 99362 | % Ownership: | 100.0000000000% |
| | | Exemptions: | |
Taxes and Assessment Details
Values
| (+) Improvement Homesite Value: | + | $0 | |
| (+) Improvement Non-Homesite Value: | + | $0 | |
| (+) Land Homesite Value: | + | $0 | |
| (+) Land Non-Homesite Value: | + | $0 | |
| (+) Curr Use (HS): | + | $0 | $0 |
| (+) Curr Use (NHS): | + | $103,840 | $31,870 |
| | | -------------------------- | |
| (=) Market Value: | = | $103,840 | |
| (–) Productivity Loss: | – | $71,960 | |
| | | -------------------------- | |
| (=) Subtotal: | = | $31,880 | |
| (+) Senior Appraised Value: | + | $0 | |
| (+) Non-Senior Appraised Value: | + | $31,870 | |
| | | -------------------------- | |
| (=) Total Appraised Value: | = | $31,870 | |
| (–) Senior Exemption Loss: | – | $0 | |
| (–) Exemption Loss: | – | $0 | |
| | | -------------------------- | |
| (=) Taxable Value: | = | $31,870 | |
Taxing Jurisdiction
| Owner: | WOIBLET BENJAMIN T | | |
| % Ownership: | 100.0000000000% | | |
| Total Value: | $103,840 | | |
| Tax Area: | 100 - 140-8 |
| CERFD | CURRENT EXPENSE REFUND 010 | 0.0000000000 | $31,870 | $31,870 | $0.00 | | |
| CURREXP | CURRENT EXPENSE 010 | 1.0175366760 | $31,870 | $31,870 | $32.43 | | |
| HUMNSERV | HUMAN SERVICES 119 | 0.0250000000 | $31,870 | $31,870 | $0.80 | | |
| SLDREL | SOLDIERS RELIEF 121 | 0.0155990005 | $31,870 | $31,870 | $0.50 | | |
| EMERGSER | EMS 147 | 0.3792580840 | $31,870 | $31,870 | $12.09 | | |
| EMSRFD | EMS REFUND 147 | 0.0000000000 | $31,870 | $31,870 | $0.00 | | |
| FD8EXP | FD #8 EXPENSE 697 | 0.6647992540 | $31,870 | $31,870 | $21.19 | | |
| RLBRFD | RURAL LIBRARY REFUND 623 | 0.0000000000 | $31,870 | $31,870 | $0.00 | | |
| RURALLIB | RURAL LIBRARY 623 | 0.3710609029 | $31,870 | $31,870 | $11.83 | | |
| PORTRFD | PORT REFUND 640 | 0.0000000000 | $31,870 | $31,870 | $0.00 | | |
| PORTWWGEN | PORT OF WW 640 | 0.2460186015 | $31,870 | $31,870 | $7.84 | | |
| SD140BOND | SD #140 BOND 764 | 0.8342371393 | $31,870 | $31,870 | $26.59 | | |
| SD140GEN | SD #140 GENERAL 760 | 2.0646500647 | $31,870 | $31,870 | $65.80 | | |
| ST2 | STATE SCHOOL PART 2 600 | 0.8131451643 | $31,870 | $31,870 | $25.91 | | |
| STATESCHL | STATE SCHOOL 600 | 1.5158548041 | $31,870 | $31,870 | $48.31 | | |
| STREFUND | STATE REFUND LEVY 603 | 0.0000000000 | $31,870 | $31,870 | $0.00 | | |
| COROAD | COUNTY ROAD 115 | 1.6549953990 | $31,870 | $31,870 | $52.74 | | |
| CRPRD | COUNTY ROAD REFUND 115 | 0.0000000000 | $31,870 | $31,870 | $0.00 | | |
| | Total Tax Rate: | 9.6021550903 | | | | | |
| | | | | Taxes w/Current Exemptions: | $306.03 | | |
| | | | | Taxes w/o Exemptions: | $306.03 | | |
Improvement / Building
Sketch
| No sketches available for this property. |
Property Image
Land
| 1 | 35-C2 | Class 2 35 BU | 141.6600 | 0.00 | 0.00 | 0.00 | 1.00 | $103,840 | $31,870 |
Roll Value History
| 2025 | N/A | N/A | N/A | N/A | N/A |
| 2024 | $0 | $106,390 | $30,460 | $30,460 | $30,460 |
| 2023 | $0 | $103,840 | $31,870 | $31,870 | $31,870 |
| 2022 | $0 | $89,950 | $30,740 | $30,740 | $30,740 |
| 2021 | $0 | $81,030 | $30,880 | $30,880 | $30,880 |
| 2020 | $0 | $74,940 | $31,590 | $31,590 | $31,590 |
| 2019 | $0 | $72,110 | $32,160 | $32,160 | $32,160 |
| 2018 | $0 | $71,680 | $36,970 | $36,970 | $36,970 |
| 2017 | $0 | $68,710 | $37,540 | $37,540 | $37,540 |
| 2016 | $0 | $68,710 | $37,540 | $37,540 | $37,540 |
| 2015 | $0 | $68,000 | $33,290 | $33,290 | $33,290 |
| 2014 | $0 | $68,000 | $33,290 | $33,290 | $33,290 |
| 2013 | $0 | $63,600 | $26,300 | $26,300 | $26,300 |
| 2012 | $0 | $17,300 | $0 | $0 | $0 |
| 2011 | $0 | $16,700 | $0 | $0 | $0 |
| 2010 | $0 | $15,300 | $0 | $0 | $0 |
| 2009 | $0 | $14,700 | $0 | $0 | $0 |
| 2008 | $0 | $14,300 | $0 | $0 | $0 |
| 2007 | $0 | $14,300 | $0 | $0 | $0 |
| 2006 | $0 | $14,300 | $0 | $0 | $0 |
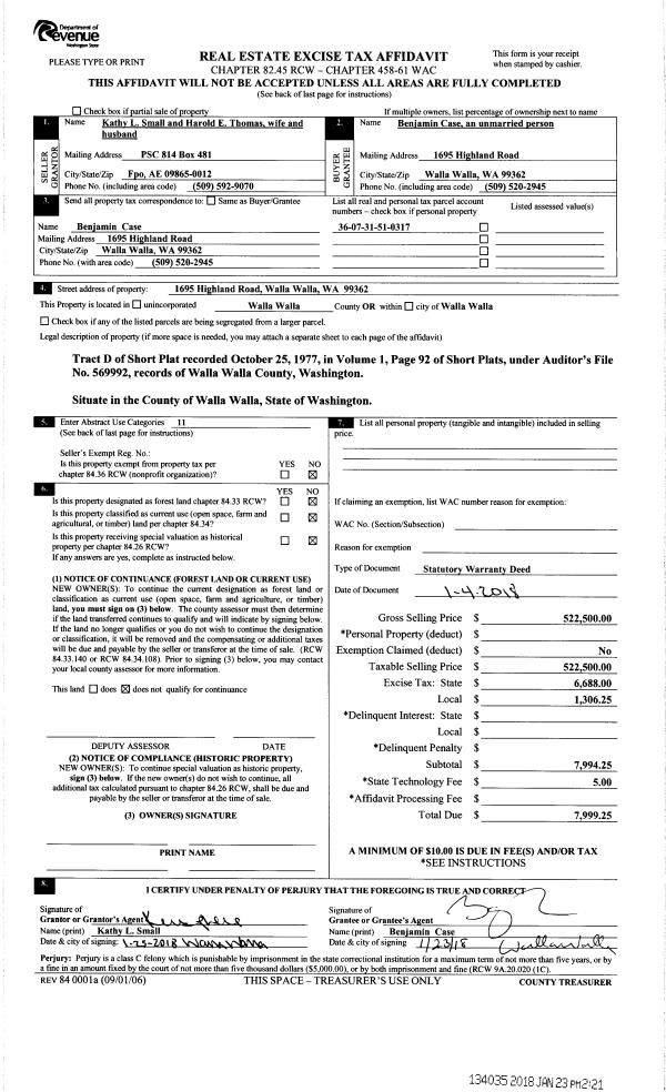
Deed and Sales History
| 1 | 11/14/2019 | SWD | STATUTORY WARRANTY DEED | WEATHERMON DARELL D | WOIBLET BENJAMIN T | | 2-PARCELS | $305,212.00 | 138068 | 2019-09364 |
|   | |
| 2 | 05/12/1987 | WARRANTY D | WARRANTY DEED | | | | | $90,000.00 | 0 | 1648-703582 |
|   | |
Payout Agreement
| No payout information available.. |