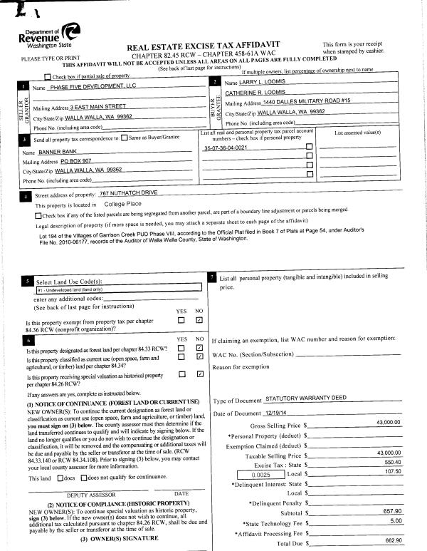
Property
Account |
| Property ID: | 28328 | Abbreviated Legal Description: | TRIPLE CREEK MEADOWS PHASE 1 LOT 2 BLOCK 1 |
| Parcel Number: | 360733970102 | Agent Code: | |
| Type: | Real | | |
| Tax Area: | 5 - OL-140 | Land Use Code | 11 |
| Open Space: | N | DFL | N |
| Historic Property: | N | Remodel Property: | N |
| Multi-Family Redevelopment: | N | | |
| Township: | 7 | Section: | 33 |
| Range: | 36 |
Location |
| Address: | 12 PAINTBRUSH CT WA 99362 | Mapsco: | |
| Neighborhood: | G Res Rural/City Inf | Map ID: | |
| Neighborhood CD: | 614012 |
Owner |
| Name: | ESPARZA ALEXANDER C & LISA M | Owner ID: | 70149 |
| Mailing Address: | 12 PAINTBRUSH CT WALLA WALLA, WA 99362 | % Ownership: | 100.0000000000% |
| | | Exemptions: | |
Taxes and Assessment Details
Values
| (+) Improvement Homesite Value: | + | $0 | |
| (+) Improvement Non-Homesite Value: | + | $367,620 | |
| (+) Land Homesite Value: | + | $0 | |
| (+) Land Non-Homesite Value: | + | $100,000 | |
| (+) Curr Use (HS): | + | $0 | $0 |
| (+) Curr Use (NHS): | + | $0 | $0 |
| | | -------------------------- | |
| (=) Market Value: | = | $467,620 | |
| (–) Productivity Loss: | – | $0 | |
| | | -------------------------- | |
| (=) Subtotal: | = | $467,620 | |
| (+) Senior Appraised Value: | + | $0 | |
| (+) Non-Senior Appraised Value: | + | $467,620 | |
| | | -------------------------- | |
| (=) Total Appraised Value: | = | $467,620 | |
| (–) Senior Exemption Loss: | – | $0 | |
| (–) Exemption Loss: | – | $0 | |
| | | -------------------------- | |
| (=) Taxable Value: | = | $467,620 | |
Taxing Jurisdiction
| Owner: | ESPARZA ALEXANDER C & LISA M | | |
| % Ownership: | 100.0000000000% | | |
| Total Value: | $467,620 | | |
| Tax Area: | 5 - OL-140 |
| CERFD | CURRENT EXPENSE REFUND 010 | 0.0000000000 | $467,620 | $467,620 | $0.00 | | |
| CURREXP | CURRENT EXPENSE 010 | 1.0175366760 | $467,620 | $467,620 | $475.82 | | |
| HUMNSERV | HUMAN SERVICES 119 | 0.0250000000 | $467,620 | $467,620 | $11.69 | | |
| SLDREL | SOLDIERS RELIEF 121 | 0.0155990005 | $467,620 | $467,620 | $7.29 | | |
| EMERGSER | EMS 147 | 0.3792580840 | $467,620 | $467,620 | $177.35 | | |
| EMSRFD | EMS REFUND 147 | 0.0000000000 | $467,620 | $467,620 | $0.00 | | |
| PORTRFD | PORT REFUND 640 | 0.0000000000 | $467,620 | $467,620 | $0.00 | | |
| PORTWWGEN | PORT OF WW 640 | 0.2460186015 | $467,620 | $467,620 | $115.04 | | |
| SD140BOND | SD #140 BOND 764 | 0.8342371393 | $467,620 | $467,620 | $390.11 | | |
| SD140GEN | SD #140 GENERAL 760 | 2.0646500647 | $467,620 | $467,620 | $965.47 | | |
| ST2 | STATE SCHOOL PART 2 600 | 0.8131451643 | $467,620 | $467,620 | $380.24 | | |
| STATESCHL | STATE SCHOOL 600 | 1.5158548041 | $467,620 | $467,620 | $708.84 | | |
| STREFUND | STATE REFUND LEVY 603 | 0.0000000000 | $467,620 | $467,620 | $0.00 | | |
| CWWBOND | C OF WW BOND 643 | 0.2760494372 | $467,620 | $467,620 | $129.09 | | |
| CWWGEN | CITY OF WW 631 | 1.6100204973 | $467,620 | $467,620 | $752.88 | | |
| CWWRFD | CITY OF WALLA WALLA REFUND 631 | 0.0000000000 | $467,620 | $467,620 | $0.00 | | |
| | Total Tax Rate: | 8.7973694689 | | | | | |
| | | | | Taxes w/Current Exemptions: | $4,113.82 | | |
| | | | | Taxes w/o Exemptions: | $4,113.82 | | |
Improvement / Building
| Improvement #1: | RESIDENTIAL | State Code: | 11 | 1756.0 sqft | Value: | $367,620 |
| Exterior Wall: | PLYWOOD | Heating/Cooling: | WARM & COOLED AIR | | Number of Bathrooms: | 2.5 | Number of Bedrooms: | 4 | | Plumbing: | 12 | Roof Covering: | COMP SHINGLE |
|
| | Type | Description | Class CD | Sub Class CD | Year Built | Area |
| | MA | Main Area | 2 | 35 | 2007 | 1756.0 |
| | SI1 | SITE IMPROVEMENT | 2 | 35 | 2007 | 3.5 |
| | UPFL | Upper Floor (included in main area) | 2 | 35 | 2007 | 871.0 |
| | ATG | Attached Garage | 2 | 35 | 2007 | 483.0 |
| | RPO | OPEN PORCH W/ROOF | 2 | 35 | 2007 | 168.0 |
| | GFP | GAS FIREPLACE | 2 | 35 | 2007 | 1.0 |
Sketch
Property Image
Land
| 1 | RES 1 | Converted: Residential | 0.2253 | 9814.00 | 0.00 | 0.00 | 1.00 | $100,000 | $0 |
Roll Value History
| 2025 | N/A | N/A | N/A | N/A | N/A |
| 2024 | $367,620 | $100,000 | $0 | $467,620 | $467,620 |
| 2023 | $367,620 | $100,000 | $0 | $467,620 | $467,620 |
| 2022 | $334,200 | $85,000 | $0 | $419,200 | $419,200 |
| 2021 | $238,710 | $85,000 | $0 | $323,710 | $323,710 |
| 2020 | $190,970 | $85,000 | $0 | $275,970 | $275,970 |
| 2019 | $190,970 | $85,000 | $0 | $275,970 | $275,970 |
| 2018 | $190,890 | $50,000 | $0 | $240,890 | $240,890 |
| 2017 | $173,530 | $50,000 | $0 | $223,530 | $223,530 |
| 2016 | $173,530 | $50,000 | $0 | $223,530 | $223,530 |
| 2015 | $165,270 | $50,000 | $0 | $215,270 | $215,270 |
| 2014 | $157,400 | $50,000 | $0 | $207,400 | $207,400 |
| 2013 | $157,400 | $50,000 | $0 | $207,400 | $207,400 |
| 2012 | $143,200 | $55,000 | $0 | $0 | $0 |
| 2011 | $143,200 | $55,000 | $0 | $0 | $0 |
| 2010 | $165,200 | $55,000 | $0 | $0 | $0 |
| 2009 | $192,600 | $65,000 | $0 | $0 | $0 |
| 2008 | $192,600 | $65,000 | $0 | $0 | $0 |
| 2007 | $0 | $1,000 | $0 | $0 | $0 |
| 2006 | $157,400 | $50,000 | $0 | $0 | $0 |
Deed and Sales History
| 1 | 08/23/2021 | SWD | STATUTORY WARRANTY DEED | SATTA DARAYUS F & NAFEZZA D | ESPARZA ALEXANDER C & LISA M | | | $440,000.00 | 142341 | 2021-10335 |
| 2 | 07/26/2013 | WARRANTY D | WARRANTY DEED | GREENWALD, KEVIN S & SHERRI L | SATTA, DARAYUS F & NAFEZZA D | | | $225,000.00 | 124345 | 2013-07534 |
| 3 | 03/31/2010 | WARRANTY D | WARRANTY DEED | WHATLEY, BARBARA J | GREENWALD, KEVIN S & SHERRI L | | | $204,000.00 | 118276 | 2010-02610 |
| 4 | 03/10/2009 | WARRANTY D | WARRANTY DEED | MAJERUS CONSTRUCTION INC | WHATLEY, BARBARA J | | | $160,000.00 | 116442 | 2009-02290 |
| 5 | 10/27/2006 | QCD | QUIT CLAIM DEED | MAJERUS, DOUGLAS | MAJERUS CONSTRUCTION INC | | | | 111546 | 2006-12951 |
Payout Agreement
| No payout information available.. |