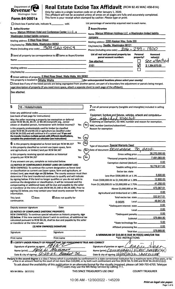
Property
Account |
| Property ID: | 28325 | Abbreviated Legal Description: | YELLOWHAWK CREEK SUBD PHASE 3 LT 17 BLK 3 |
| Parcel Number: | 360722630307 | Agent Code: | |
| Type: | Real | | |
| Tax Area: | 1 - OL-140-F | Land Use Code | 11 |
| Open Space: | N | DFL | N |
| Historic Property: | N | Remodel Property: | N |
| Multi-Family Redevelopment: | N | | |
| Township: | 7 | Section: | 22 |
| Range: | 36 |
Location |
| Address: | 2331 HAWK DR WA 99362 | Mapsco: | |
| Neighborhood: | A-Superior SFR | Map ID: | |
| Neighborhood CD: | 413211 |
Owner |
| Name: | MAY STEVEN D & NANQI YOU | Owner ID: | 64603 |
| Mailing Address: | 1244 FORREST LANE WALLA WALLA, WA 99362 | % Ownership: | 100.0000000000% |
| | | Exemptions: | |
Taxes and Assessment Details
Values
| (+) Improvement Homesite Value: | + | $0 | |
| (+) Improvement Non-Homesite Value: | + | $239,930 | |
| (+) Land Homesite Value: | + | $0 | |
| (+) Land Non-Homesite Value: | + | $80,000 | |
| (+) Curr Use (HS): | + | $0 | $0 |
| (+) Curr Use (NHS): | + | $0 | $0 |
| | | -------------------------- | |
| (=) Market Value: | = | $319,930 | |
| (–) Productivity Loss: | – | $0 | |
| | | -------------------------- | |
| (=) Subtotal: | = | $319,930 | |
| (+) Senior Appraised Value: | + | $0 | |
| (+) Non-Senior Appraised Value: | + | $319,930 | |
| | | -------------------------- | |
| (=) Total Appraised Value: | = | $319,930 | |
| (–) Senior Exemption Loss: | – | $0 | |
| (–) Exemption Loss: | – | $0 | |
| | | -------------------------- | |
| (=) Taxable Value: | = | $319,930 | |
Taxing Jurisdiction
| Owner: | MAY STEVEN D & NANQI YOU | | |
| % Ownership: | 100.0000000000% | | |
| Total Value: | $319,930 | | |
| Tax Area: | 1 - OL-140-F |
| CERFD | CURRENT EXPENSE REFUND 010 | 0.0000000000 | $319,930 | $319,930 | $0.00 | | |
| CURREXP | CURRENT EXPENSE 010 | 1.0175366760 | $319,930 | $319,930 | $325.54 | | |
| HUMNSERV | HUMAN SERVICES 119 | 0.0250000000 | $319,930 | $319,930 | $8.00 | | |
| SLDREL | SOLDIERS RELIEF 121 | 0.0155990005 | $319,930 | $319,930 | $4.99 | | |
| EMERGSER | EMS 147 | 0.3792580840 | $319,930 | $319,930 | $121.34 | | |
| EMSRFD | EMS REFUND 147 | 0.0000000000 | $319,930 | $319,930 | $0.00 | | |
| PORTRFD | PORT REFUND 640 | 0.0000000000 | $319,930 | $319,930 | $0.00 | | |
| PORTWWGEN | PORT OF WW 640 | 0.2460186015 | $319,930 | $319,930 | $78.71 | | |
| SD140BOND | SD #140 BOND 764 | 0.8342371393 | $319,930 | $319,930 | $266.90 | | |
| SD140GEN | SD #140 GENERAL 760 | 2.0646500647 | $319,930 | $319,930 | $660.54 | | |
| ST2 | STATE SCHOOL PART 2 600 | 0.8131451643 | $319,930 | $319,930 | $260.15 | | |
| STATESCHL | STATE SCHOOL 600 | 1.5158548041 | $319,930 | $319,930 | $484.97 | | |
| STREFUND | STATE REFUND LEVY 603 | 0.0000000000 | $319,930 | $319,930 | $0.00 | | |
| CWWBOND | C OF WW BOND 643 | 0.2760494372 | $319,930 | $319,930 | $88.32 | | |
| CWWGEN | CITY OF WW 631 | 1.6100204973 | $319,930 | $319,930 | $515.09 | | |
| CWWRFD | CITY OF WALLA WALLA REFUND 631 | 0.0000000000 | $319,930 | $319,930 | $0.00 | | |
| | Total Tax Rate: | 8.7973694689 | | | | | |
| | | | | Taxes w/Current Exemptions: | $2,814.55 | | |
| | | | | Taxes w/o Exemptions: | $2,814.55 | | |
Improvement / Building
| Improvement #1: | RESIDENTIAL | State Code: | 11 | 1384.0 sqft | Value: | $239,930 |
| Exterior Wall: | HARDBOARD | Heating/Cooling: | WARM & COOLED AIR | | Number of Bathrooms: | 2 | Number of Bedrooms: | 3 | | Plumbing: | 10 | Roof Covering: | COMP SHINGLE |
|
| | Type | Description | Class CD | Sub Class CD | Year Built | Area |
| | MA | Main Area | 1 | 35 | 2003 | 1384.0 |
| | GFP | GAS FIREPLACE | 1 | 35 | 0 | 1.0 |
| | SI1 | SITE IMPROVEMENT | 1 | 35 | 0 | 3.5 |
| | ATG | Attached Garage | 1 | 35 | 2003 | 400.0 |
| | RPO | OPEN PORCH W/ROOF | 1 | 35 | 2003 | 52.0 |
Sketch
Property Image
Land
| 1 | RES 1 | Converted: Residential | 0.1894 | 8250.00 | 0.00 | 0.00 | 1.00 | $80,000 | $0 |
Roll Value History
| 2025 | N/A | N/A | N/A | N/A | N/A |
| 2024 | $263,920 | $80,000 | $0 | $343,920 | $343,920 |
| 2023 | $239,930 | $80,000 | $0 | $319,930 | $319,930 |
| 2022 | $245,600 | $50,000 | $0 | $295,600 | $295,600 |
| 2021 | $181,920 | $50,000 | $0 | $231,920 | $231,920 |
| 2020 | $158,190 | $50,000 | $0 | $208,190 | $208,190 |
| 2019 | $158,190 | $50,000 | $0 | $208,190 | $208,190 |
| 2018 | $158,190 | $50,000 | $0 | $208,190 | $208,190 |
| 2017 | $158,190 | $50,000 | $0 | $208,190 | $208,190 |
| 2016 | $158,190 | $40,000 | $0 | $198,190 | $198,190 |
| 2015 | $137,560 | $40,000 | $0 | $177,560 | $177,560 |
| 2014 | $144,800 | $40,000 | $0 | $184,800 | $184,800 |
| 2013 | $144,800 | $40,000 | $0 | $184,800 | $184,800 |
| 2012 | $144,800 | $40,000 | $0 | $0 | $0 |
| 2011 | $150,500 | $40,000 | $0 | $0 | $0 |
| 2010 | $141,400 | $40,000 | $0 | $0 | $0 |
| 2009 | $161,500 | $40,000 | $0 | $0 | $0 |
| 2008 | $135,200 | $40,000 | $0 | $0 | $0 |
| 2007 | $135,200 | $40,000 | $0 | $0 | $0 |
| 2006 | $107,900 | $25,900 | $0 | $0 | $0 |
Deed and Sales History
| 1 | 01/24/2019 | SWD | STATUTORY WARRANTY DEED | DANIEL C THOMAS & BECKY J THOMAS REVOCABLE TRUST | MAY STEVEN D & NANQI YOU | | | $206,500.00 | 136288 | 2019-00479 |
| 2 | 12/12/2017 | SWD | STATUTORY WARRANTY DEED | PARTLOW BRENT L | DANIEL C THOMAS & BECKY J THOMAS REVOCABLE TRUST | | | $206,500.00 | 133780 | 2017-09985 |
| 3 | 03/26/2010 | WARRANTY D | WARRANTY DEED | HAINES, KEVIN J & VICKI M | PARTLOW, BRENT L | | | $190,000.00 | 118251 | 2010-02476 |
| 4 | 01/24/2003 | WARRANTY D | WARRANTY DEED | WASSER, PHILIP C | HAINES, KEVIN J | | | $134,000.00 | 101262 | 2003-01053 |
| 5 | 01/22/2003 | WARRANTY D | WARRANTY DEED | MAJERUS, DOUGLAS | WASSER, PHILIP C | | | | 101261 | 2003-01052 |
Payout Agreement
| No payout information available.. |