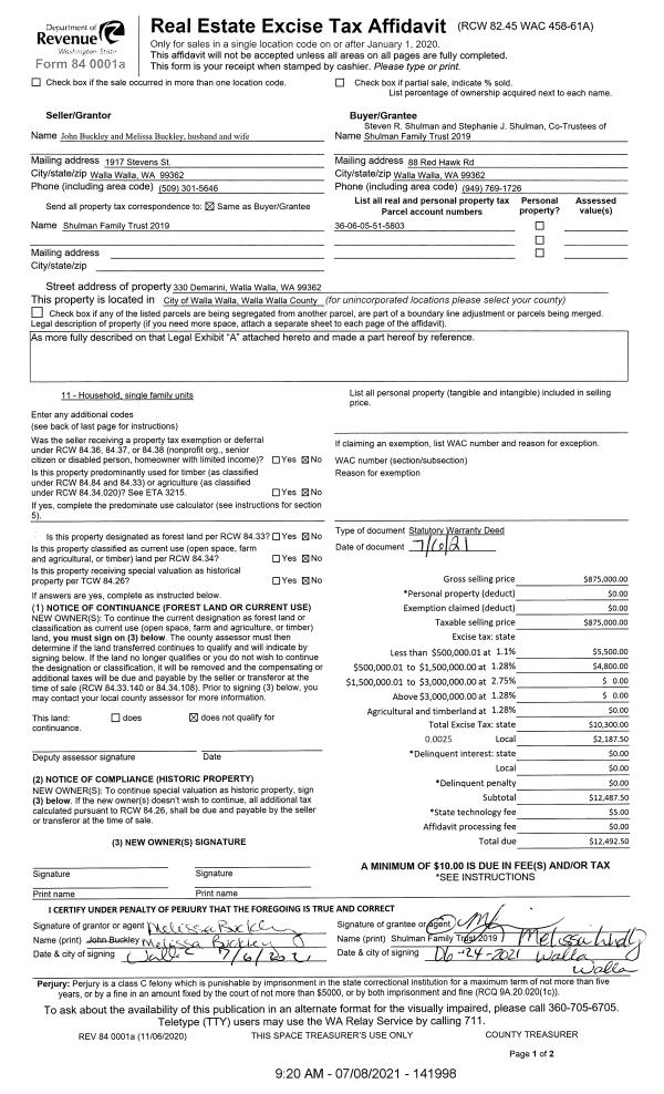
Property
Account |
| Property ID: | 28235 | Abbreviated Legal Description: | SUNSET PARK LT 10 BLK 1 |
| Parcel Number: | 360732620110 | Agent Code: | |
| Type: | Real | | |
| Tax Area: | 1 - OL-140-F | Land Use Code | 11 |
| Open Space: | N | DFL | N |
| Historic Property: | N | Remodel Property: | N |
| Multi-Family Redevelopment: | N | | |
| Township: | 7 | Section: | 32 |
| Range: | 36 |
Location |
| Address: | 1517 SUNSET DR WA 99362 | Mapsco: | |
| Neighborhood: | A Res | Map ID: | |
| Neighborhood CD: | 613011 |
Owner |
| Name: | COBBS SANTREAL BERNARD & CASSANDRA LEEANN WISE | Owner ID: | 67479 |
| Mailing Address: | 1517 SUNSET DR WALLA WALLA, WA 99362 | % Ownership: | 100.0000000000% |
| | | Exemptions: | |
Taxes and Assessment Details
Values
| (+) Improvement Homesite Value: | + | $0 | |
| (+) Improvement Non-Homesite Value: | + | $306,500 | |
| (+) Land Homesite Value: | + | $0 | |
| (+) Land Non-Homesite Value: | + | $64,350 | |
| (+) Curr Use (HS): | + | $0 | $0 |
| (+) Curr Use (NHS): | + | $0 | $0 |
| | | -------------------------- | |
| (=) Market Value: | = | $370,850 | |
| (–) Productivity Loss: | – | $0 | |
| | | -------------------------- | |
| (=) Subtotal: | = | $370,850 | |
| (+) Senior Appraised Value: | + | $0 | |
| (+) Non-Senior Appraised Value: | + | $370,850 | |
| | | -------------------------- | |
| (=) Total Appraised Value: | = | $370,850 | |
| (–) Senior Exemption Loss: | – | $0 | |
| (–) Exemption Loss: | – | $0 | |
| | | -------------------------- | |
| (=) Taxable Value: | = | $370,850 | |
Taxing Jurisdiction
| Owner: | COBBS SANTREAL BERNARD & CASSANDRA LEEANN WISE | | |
| % Ownership: | 100.0000000000% | | |
| Total Value: | $370,850 | | |
| Tax Area: | 1 - OL-140-F |
| CERFD | CURRENT EXPENSE REFUND 010 | 0.0000000000 | $370,850 | $370,850 | $0.00 | | |
| CURREXP | CURRENT EXPENSE 010 | 1.0175366760 | $370,850 | $370,850 | $377.35 | | |
| HUMNSERV | HUMAN SERVICES 119 | 0.0250000000 | $370,850 | $370,850 | $9.27 | | |
| SLDREL | SOLDIERS RELIEF 121 | 0.0155990005 | $370,850 | $370,850 | $5.78 | | |
| EMERGSER | EMS 147 | 0.3792580840 | $370,850 | $370,850 | $140.65 | | |
| EMSRFD | EMS REFUND 147 | 0.0000000000 | $370,850 | $370,850 | $0.00 | | |
| PORTRFD | PORT REFUND 640 | 0.0000000000 | $370,850 | $370,850 | $0.00 | | |
| PORTWWGEN | PORT OF WW 640 | 0.2460186015 | $370,850 | $370,850 | $91.24 | | |
| SD140BOND | SD #140 BOND 764 | 0.8342371393 | $370,850 | $370,850 | $309.38 | | |
| SD140GEN | SD #140 GENERAL 760 | 2.0646500647 | $370,850 | $370,850 | $765.68 | | |
| ST2 | STATE SCHOOL PART 2 600 | 0.8131451643 | $370,850 | $370,850 | $301.55 | | |
| STATESCHL | STATE SCHOOL 600 | 1.5158548041 | $370,850 | $370,850 | $562.15 | | |
| STREFUND | STATE REFUND LEVY 603 | 0.0000000000 | $370,850 | $370,850 | $0.00 | | |
| CWWBOND | C OF WW BOND 643 | 0.2760494372 | $370,850 | $370,850 | $102.37 | | |
| CWWGEN | CITY OF WW 631 | 1.6100204973 | $370,850 | $370,850 | $597.08 | | |
| CWWRFD | CITY OF WALLA WALLA REFUND 631 | 0.0000000000 | $370,850 | $370,850 | $0.00 | | |
| | Total Tax Rate: | 8.7973694689 | | | | | |
| | | | | Taxes w/Current Exemptions: | $3,262.50 | | |
| | | | | Taxes w/o Exemptions: | $3,262.50 | | |
Improvement / Building
| Improvement #1: | RESIDENTIAL | State Code: | 11 | 1161.0 sqft | Value: | $306,500 |
| Exterior Wall: | PLYWOOD | Heating/Cooling: | WARM & COOLED AIR | | Number of Bathrooms: | 2 | Number of Bedrooms: | 2 | | Plumbing: | 9 | Roof Covering: | COMP SHINGLE |
|
| | Type | Description | Class CD | Sub Class CD | Year Built | Area |
| | MA | Main Area | 1 | 30 | 1957 | 1161.0 |
| | SI1 | SITE IMPROVEMENT | 1 | 30 | 1957 | 1.5 |
| | BASE | BASEMENT | 1 | 30 | 1957 | 1161.0 |
| | BPF | BASEMENT -PARTITIONED FINISH | 1 | 30 | 1957 | 1161.0 |
| | CPCG | CARPORT/ GABLE ROOF | 1 | 30 | 1957 | 336.0 |
| | RPO | OPEN PORCH W/ROOF | 1 | 30 | 1957 | 162.0 |
| | S1F | Single One Story Fireplace | 1 | 30 | 1957 | 1.0 |
| | CPC | COVERED CARPORT/PATIO | 1 | 30 | 1957 | 180.0 |
Sketch
Property Image
Land
| 1 | RES 1 | Converted: Residential | 0.1641 | 7150.00 | 0.00 | 0.00 | 1.00 | $64,350 | $0 |
Roll Value History
| 2025 | N/A | N/A | N/A | N/A | N/A |
| 2024 | $306,500 | $64,350 | $0 | $370,850 | $370,850 |
| 2023 | $306,500 | $64,350 | $0 | $370,850 | $370,850 |
| 2022 | $291,900 | $51,800 | $0 | $343,700 | $343,700 |
| 2021 | $216,230 | $51,800 | $0 | $268,030 | $268,030 |
| 2020 | $139,500 | $51,800 | $0 | $191,300 | $191,300 |
| 2019 | $139,500 | $51,800 | $0 | $191,300 | $191,300 |
| 2018 | $138,970 | $42,900 | $0 | $181,870 | $181,870 |
| 2017 | $106,900 | $42,900 | $0 | $149,800 | $149,800 |
| 2016 | $106,900 | $42,900 | $0 | $149,800 | $149,800 |
| 2015 | $106,900 | $42,900 | $0 | $149,800 | $149,800 |
| 2014 | $106,900 | $42,900 | $0 | $149,800 | $149,800 |
| 2013 | $106,900 | $42,900 | $0 | $149,800 | $149,800 |
| 2012 | $106,900 | $42,900 | $0 | $0 | $0 |
| 2011 | $127,300 | $42,900 | $0 | $0 | $0 |
| 2010 | $119,200 | $42,900 | $0 | $0 | $0 |
| 2009 | $137,200 | $42,900 | $0 | $0 | $0 |
| 2008 | $137,200 | $42,900 | $0 | $0 | $0 |
| 2007 | $103,900 | $21,500 | $0 | $0 | $0 |
| 2006 | $103,900 | $21,500 | $0 | $0 | $0 |
Deed and Sales History
| 1 | 06/24/2020 | SWD | STATUTORY WARRANTY DEED | DUKE SHARON FAY | COBBS SANTREAL BERNARD & CASSANDRA LEEANN WISE | | | $268,000.00 | 139348 | 2020-05805 |
| 2 | 08/20/2010 | WARRANTY D | WARRANTY DEED | SECRETARY OF HOUSING & URBAN D | DUKE, SHARON FAY | | | $150,000.00 | 118891 | 2010-06466 |
| 3 | 03/01/2010 | WARRANTY D | WARRANTY DEED | WELLS FARGO BANK N A | SECRETARY OF HOUSING & URBAN D | | | $188,178.00 | 118151 | 2010-01815 |
| 4 | 12/18/2009 | WARRANTY D | WARRANTY DEED | NORTHWEST TRUSTEE SERVICES INC | WELLS FARGO BANK N A | | | $205,204.00 | 117839 | 2009-12170 |
| 5 | 05/23/2003 | WARRANTY D | WARRANTY DEED | MIDDLETON, ELLEN E | FIELDS, RALPH K & AMBER L | | | $127,000.00 | 102151 | 2003-07615 |
| 6 | 04/23/2003 | QCD | QUIT CLAIM DEED | VANSTONE & ELIZALDE | MIDDLETON, ELLEN E | | | | 101898 | 2003-05710 |
| 7 | 10/18/2002 | QCD | QUIT CLAIM DEED | MIDDLETON, ELLEN E | MIDDLETON, ELLEN E | | | | 100630 | 2002-11795 |
| 8 | 07/01/1965 | WARRANTY D | WARRANTY DEED | | | | | $17,500.00 | 0 | 3140-468567 |
Payout Agreement
| No payout information available.. |