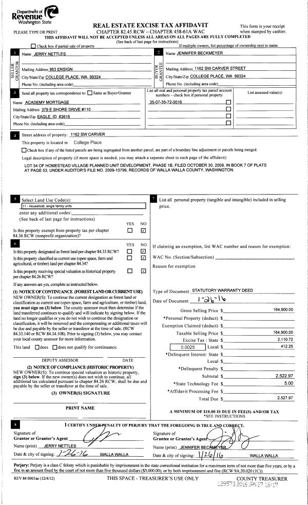
Property
Account |
| Property ID: | 28048 | Abbreviated Legal Description: | RIVER WALK ESTATES LOT 8 |
| Parcel Number: | 340735510008 | Agent Code: | |
| Type: | Real | | |
| Tax Area: | 101 - 140-4 | Land Use Code | 83 |
| Open Space: | Y | DFL | N |
| Historic Property: | N | Remodel Property: | N |
| Multi-Family Redevelopment: | N | | |
| Township: | 7 | Section: | 35 |
| Range: | 34 |
Location |
| Address: | 206 EQUESTRIAN WAY WA 99362 | Mapsco: | |
| Neighborhood: | 0 Farm | Map ID: | |
| Neighborhood CD: | 2220 |
Owner |
| Name: | THEYERL PHILIP MICHAEL & KARI ANN | Owner ID: | 64964 |
| Mailing Address: | 206 EQUESTRIAN WAY WALLA WALLA, WA 99362 | % Ownership: | 100.0000000000% |
| | | Exemptions: | |
Taxes and Assessment Details
Values
| (+) Improvement Homesite Value: | + | $0 | |
| (+) Improvement Non-Homesite Value: | + | $428,300 | |
| (+) Land Homesite Value: | + | $0 | |
| (+) Land Non-Homesite Value: | + | $0 | |
| (+) Curr Use (HS): | + | $150,000 | $150,000 |
| (+) Curr Use (NHS): | + | $54,400 | $10,710 |
| | | -------------------------- | |
| (=) Market Value: | = | $632,700 | |
| (–) Productivity Loss: | – | $43,690 | |
| | | -------------------------- | |
| (=) Subtotal: | = | $589,010 | |
| (+) Senior Appraised Value: | + | $0 | |
| (+) Non-Senior Appraised Value: | + | $589,010 | |
| | | -------------------------- | |
| (=) Total Appraised Value: | = | $589,010 | |
| (–) Senior Exemption Loss: | – | $0 | |
| (–) Exemption Loss: | – | $0 | |
| | | -------------------------- | |
| (=) Taxable Value: | = | $589,010 | |
Taxing Jurisdiction
| Owner: | THEYERL PHILIP MICHAEL & KARI ANN | | |
| % Ownership: | 100.0000000000% | | |
| Total Value: | $632,700 | | |
| Tax Area: | 101 - 140-4 |
| CERFD | CURRENT EXPENSE REFUND 010 | 0.0000000000 | $589,010 | $589,010 | $0.00 | | |
| CURREXP | CURRENT EXPENSE 010 | 1.0175366760 | $589,010 | $589,010 | $599.34 | | |
| HUMNSERV | HUMAN SERVICES 119 | 0.0250000000 | $589,010 | $589,010 | $14.73 | | |
| SLDREL | SOLDIERS RELIEF 121 | 0.0155990005 | $589,010 | $589,010 | $9.19 | | |
| EMERGSER | EMS 147 | 0.3792580840 | $589,010 | $589,010 | $223.39 | | |
| EMSRFD | EMS REFUND 147 | 0.0000000000 | $589,010 | $589,010 | $0.00 | | |
| FD4EXP | FD #4 EXPENSE 686 | 0.8836993059 | $589,010 | $589,010 | $520.51 | | |
| RLBRFD | RURAL LIBRARY REFUND 623 | 0.0000000000 | $589,010 | $589,010 | $0.00 | | |
| RURALLIB | RURAL LIBRARY 623 | 0.3710609029 | $589,010 | $589,010 | $218.56 | | |
| PORTRFD | PORT REFUND 640 | 0.0000000000 | $589,010 | $589,010 | $0.00 | | |
| PORTWWGEN | PORT OF WW 640 | 0.2460186015 | $589,010 | $589,010 | $144.91 | | |
| SD140BOND | SD #140 BOND 764 | 0.8342371393 | $589,010 | $589,010 | $491.37 | | |
| SD140GEN | SD #140 GENERAL 760 | 2.0646500647 | $589,010 | $589,010 | $1,216.10 | | |
| ST2 | STATE SCHOOL PART 2 600 | 0.8131451643 | $589,010 | $589,010 | $478.95 | | |
| STATESCHL | STATE SCHOOL 600 | 1.5158548041 | $589,010 | $589,010 | $892.85 | | |
| STREFUND | STATE REFUND LEVY 603 | 0.0000000000 | $589,010 | $589,010 | $0.00 | | |
| COROAD | COUNTY ROAD 115 | 1.6549953990 | $589,010 | $589,010 | $974.81 | | |
| CRPRD | COUNTY ROAD REFUND 115 | 0.0000000000 | $589,010 | $589,010 | $0.00 | | |
| | Total Tax Rate: | 9.8210551422 | | | | | |
| | | | | Taxes w/Current Exemptions: | $5,784.71 | | |
| | | | | Taxes w/o Exemptions: | $5,784.71 | | |
Improvement / Building
| Improvement #1: | RESIDENTIAL | State Code: | 83 | 2516.0 sqft | Value: | $428,300 |
| Exterior Wall: | HARDBOARD | Heating/Cooling: | HEAT PUMP | | Number of Bathrooms: | 2.5 | Number of Bedrooms: | 3 | | Plumbing: | 16 | Roof Covering: | COMP SHINGLE |
|
| | Type | Description | Class CD | Sub Class CD | Year Built | Area |
| | MA | Main Area | 1 | 45 | 2011 | 2516.0 |
| | RPC | OPEN PORCH W/ROOF , CEILED | 1 | 45 | 2011 | 336.0 |
| | RPC | OPEN PORCH W/ROOF , CEILED | 1 | 45 | 2011 | 176.0 |
| | SI1 | SITE IMPROVEMENT | 1 | 45 | 2011 | 6.5 |
| | ATG | Attached Garage | 1 | 45 | 2011 | 600.0 |
Sketch
Property Image
Land
| 1 | HS-150,000 | Homesite 150,000 | 1.0000 | 0.00 | 0.00 | 0.00 | 1.00 | $150,000 | $150,000 |
| 2 | RIVER WALK | River Walk | 8.5000 | 370260.00 | 0.00 | 0.00 | 1.00 | $54,400 | $10,710 |
| 3 | WASTE | Waste | 2.4500 | 106722.00 | 0.00 | 0.00 | 1.00 | $0 | $0 |
Roll Value History
| 2025 | N/A | N/A | N/A | N/A | N/A |
| 2024 | $443,800 | $204,400 | $160,760 | $604,560 | $604,560 |
| 2023 | $428,300 | $204,400 | $160,710 | $589,010 | $589,010 |
| 2022 | $428,300 | $204,400 | $160,530 | $588,830 | $588,830 |
| 2021 | $428,300 | $204,400 | $160,530 | $588,830 | $588,830 |
| 2020 | $394,480 | $115,800 | $83,600 | $478,080 | $478,080 |
| 2019 | $394,480 | $115,800 | $83,870 | $478,350 | $478,350 |
| 2018 | $372,260 | $109,000 | $84,040 | $456,300 | $456,300 |
| 2017 | $324,770 | $109,000 | $84,330 | $409,100 | $409,100 |
| 2016 | $324,770 | $109,000 | $84,360 | $409,130 | $409,130 |
| 2015 | $275,400 | $109,000 | $83,530 | $358,930 | $358,930 |
| 2014 | $275,400 | $118,800 | $86,490 | $361,890 | $361,890 |
| 2013 | $275,400 | $103,800 | $24,404 | $359,800 | $359,800 |
| 2012 | $274,900 | $82,500 | $0 | $0 | $0 |
| 2011 | $0 | $7,900 | $0 | $0 | $0 |
| 2010 | $0 | $7,800 | $0 | $0 | $0 |
| 2009 | $0 | $92,400 | $0 | $0 | $0 |
| 2008 | $0 | $92,900 | $0 | $0 | $0 |
| 2007 | $0 | $7,900 | $0 | $0 | $0 |
| 2006 | $275,400 | $103,800 | $0 | $0 | $0 |
Deed and Sales History
| 1 | 04/16/2019 | SWD | STATUTORY WARRANTY DEED | MINCKLER MICHAEL R | THEYERL PHILIP MICHAEL & KARI ANN | | | $650,000.00 | 136692 | 2019-02401 |
| 2 | 09/14/2016 | QCD | QUIT CLAIM DEED | MINCKLER NAIOMY | MINCKLER MICHAEL R | | | | 131034 | 2016-07500 |
| 3 | 09/14/2016 | SWD | STATUTORY WARRANTY DEED | WALKER TIMOTHY J & ROBERTA F | MINCKLER MICHAEL R | | | $518,000.00 | 131033 | 2016-07499 |
| 4 | 02/20/2014 | SWD | STATUTORY WARRANTY DEED | BOWEN PAUL G & SAMANTHA K | WALKER TIMOTHY J & ROBERTA F | | | $468,000.00 | 125456 | 2014-01256 |
| 5 | 01/19/2010 | WARRANTY D | WARRANTY DEED | ALDEN REAL ESTATE LLC | BOWEN, PAUL G & SAMANTHA K | | | $137,900.00 | 117979 | 2010-00548 |
| 6 | 12/10/2009 | WARRANTY D | WARRANTY DEED | ROFF, BRYAN & DANA | ALDEN REAL ESTATE LLC | | | | 117795 | 2009-11903 |
Payout Agreement
| No payout information available.. |