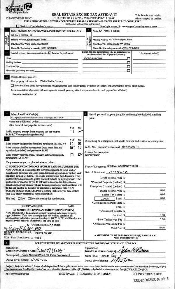
Property
Account |
| Property ID: | 28027 | Abbreviated Legal Description: | GARDENA CON'T TRACTS TRACT 131 |
| Parcel Number: | 330609520140 | Agent Code: | |
| Type: | Real | | |
| Tax Area: | 318 - 300-6-TM | Land Use Code | 11 |
| Open Space: | N | DFL | N |
| Historic Property: | N | Remodel Property: | N |
| Multi-Family Redevelopment: | N | | |
| Township: | 6 | Section: | 9 |
| Range: | 33 |
Location |
| Address: | 1045 GARDENA CREEK RD WA 99360 | Mapsco: | |
| Neighborhood: | A Touchet/Lowden SFR Rural | Map ID: | |
| Neighborhood CD: | 213613 |
Owner |
| Name: | DOELY MATTHEW M & SARAH B | Owner ID: | 54961 |
| Mailing Address: | 1045 GARDENA CREEK RD TOUCHET, WA 99360 | % Ownership: | 100.0000000000% |
| | | Exemptions: | |
Taxes and Assessment Details
Values
| (+) Improvement Homesite Value: | + | $0 | |
| (+) Improvement Non-Homesite Value: | + | $557,050 | |
| (+) Land Homesite Value: | + | $0 | |
| (+) Land Non-Homesite Value: | + | $72,810 | |
| (+) Curr Use (HS): | + | $0 | $0 |
| (+) Curr Use (NHS): | + | $0 | $0 |
| | | -------------------------- | |
| (=) Market Value: | = | $629,860 | |
| (–) Productivity Loss: | – | $0 | |
| | | -------------------------- | |
| (=) Subtotal: | = | $629,860 | |
| (+) Senior Appraised Value: | + | $0 | |
| (+) Non-Senior Appraised Value: | + | $629,860 | |
| | | -------------------------- | |
| (=) Total Appraised Value: | = | $629,860 | |
| (–) Senior Exemption Loss: | – | $0 | |
| (–) Exemption Loss: | – | $0 | |
| | | -------------------------- | |
| (=) Taxable Value: | = | $629,860 | |
Taxing Jurisdiction
| Owner: | DOELY MATTHEW M & SARAH B | | |
| % Ownership: | 100.0000000000% | | |
| Total Value: | $629,860 | | |
| Tax Area: | 318 - 300-6-TM |
| CERFD | CURRENT EXPENSE REFUND 010 | 0.0000000000 | $629,860 | $629,860 | $0.00 | | |
| CURREXP | CURRENT EXPENSE 010 | 1.0175366760 | $629,860 | $629,860 | $640.91 | | |
| HUMNSERV | HUMAN SERVICES 119 | 0.0250000000 | $629,860 | $629,860 | $15.75 | | |
| SLDREL | SOLDIERS RELIEF 121 | 0.0155990005 | $629,860 | $629,860 | $9.83 | | |
| EMERGSER | EMS 147 | 0.3792580840 | $629,860 | $629,860 | $238.88 | | |
| EMSRFD | EMS REFUND 147 | 0.0000000000 | $629,860 | $629,860 | $0.00 | | |
| FD6EXP | FD #6 EXPENSE 693 | 0.6692985746 | $629,860 | $629,860 | $421.56 | | |
| RLBRFD | RURAL LIBRARY REFUND 623 | 0.0000000000 | $629,860 | $629,860 | $0.00 | | |
| RURALLIB | RURAL LIBRARY 623 | 0.3710609029 | $629,860 | $629,860 | $233.72 | | |
| PORTRFD | PORT REFUND 640 | 0.0000000000 | $629,860 | $629,860 | $0.00 | | |
| PORTWWGEN | PORT OF WW 640 | 0.2460186015 | $629,860 | $629,860 | $154.96 | | |
| SD300BOND | SD #300 BOND 783 | 1.8964951620 | $629,860 | $629,860 | $1,194.53 | | |
| SD300GEN | SD #300 GENERAL 780 | 2.1198322866 | $629,860 | $629,860 | $1,335.20 | | |
| ST2 | STATE SCHOOL PART 2 600 | 0.8131451643 | $629,860 | $629,860 | $512.17 | | |
| STATESCHL | STATE SCHOOL 600 | 1.5158548041 | $629,860 | $629,860 | $954.78 | | |
| STREFUND | STATE REFUND LEVY 603 | 0.0000000000 | $629,860 | $629,860 | $0.00 | | |
| COROAD | COUNTY ROAD 115 | 1.6549953990 | $629,860 | $629,860 | $1,042.42 | | |
| CRPRD | COUNTY ROAD REFUND 115 | 0.0000000000 | $629,860 | $629,860 | $0.00 | | |
| | Total Tax Rate: | 10.7240946555 | | | | | |
| | | | | Taxes w/Current Exemptions: | $6,754.71 | | |
| | | | | Taxes w/o Exemptions: | $6,754.71 | | |
Improvement / Building
| Improvement #1: | RESIDENTIAL | State Code: | 11 | 2112.0 sqft | Value: | $557,050 |
| Exterior Wall: | VINYL | Heating/Cooling: | HEAT PUMP | | Number of Bathrooms: | 2 | Number of Bedrooms: | 4 | | Plumbing: | 12 | Roof Covering: | COMP SHINGLE |
|
| | Type | Description | Class CD | Sub Class CD | Year Built | Area |
| | MA | Main Area | 1 | 40 | 2008 | 2112.0 |
| | SI1 | SITE IMPROVEMENT | 1 | 40 | 0 | 3.0 |
| | ATG | Attached Garage | 1 | 40 | 2008 | 528.0 |
| | RPO | OPEN PORCH W/ROOF | 1 | 40 | 2008 | 96.0 |
| | UTST | Utility Storage Shed | 1 | 40 | 2008 | 192.0 |
| | LNT | LEAN TO DIRT FLOOR | 1 | 40 | 2008 | 406.0 |
| | LOAF-SHED | LOAFING SHED | 1 | 40 | 2008 | 600.0 |
| | POL3 | POLE BUILDING-CON,ELEC,INSU | 1 | 40 | 2008 | 3200.0 |
Sketch
Property Image
Land
| 1 | RES 1 | Converted: Residential | 4.6500 | 0.00 | 0.00 | 0.00 | 1.00 | $72,810 | $0 |
Roll Value History
| 2025 | N/A | N/A | N/A | N/A | N/A |
| 2024 | $557,050 | $72,810 | $0 | $629,860 | $629,860 |
| 2023 | $557,050 | $72,810 | $0 | $629,860 | $629,860 |
| 2022 | $557,050 | $72,810 | $0 | $629,860 | $629,860 |
| 2021 | $464,210 | $72,810 | $0 | $537,020 | $537,020 |
| 2020 | $464,210 | $57,800 | $0 | $522,010 | $522,010 |
| 2019 | $464,210 | $57,800 | $0 | $522,010 | $522,010 |
| 2018 | $464,210 | $57,800 | $0 | $522,010 | $522,010 |
| 2017 | $331,580 | $57,800 | $0 | $389,380 | $389,380 |
| 2016 | $331,580 | $57,800 | $0 | $389,380 | $389,380 |
| 2015 | $331,580 | $57,800 | $0 | $389,380 | $389,380 |
| 2014 | $192,400 | $57,800 | $0 | $250,200 | $250,200 |
| 2013 | $192,400 | $57,800 | $0 | $250,200 | $250,200 |
| 2012 | $220,200 | $57,800 | $0 | $0 | $0 |
| 2011 | $183,900 | $57,800 | $0 | $0 | $0 |
| 2010 | $183,900 | $57,800 | $0 | $0 | $0 |
| 2009 | $193,100 | $49,600 | $0 | $0 | $0 |
| 2008 | $0 | $2,100 | $0 | $0 | $0 |
| 2007 | $192,400 | $57,800 | $0 | $0 | $0 |
Deed and Sales History
| 1 | 05/22/2014 | SWD | STATUTORY WARRANTY DEED | BRENNAN JAMES R & CARRIE E | DOELY MATTHEW M & SARAH B | | | $322,500.00 | 125942 | 2014-03483 |
| 2 | 01/05/2010 | WARRANTY D | WARRANTY DEED | RABOURNE, ROGER | BRENNAN, JAMES R & CARRIE E | | | $290,000.00 | 117921 | 2010-00093 |
| 3 | 12/18/2007 | WARRANTY D | WARRANTY DEED | BROWN, TERRY M | RABOURNE, ROGER | | | $82,500.00 | 114250 | 2007-14416 |
| 4 | 04/18/2007 | WARRANTY D | WARRANTY DEED | DUNNING, RONALD W | BROWN, TERRY M | | | $67,500.00 | 112652 | 2007-04343 |
Payout Agreement
| No payout information available.. |