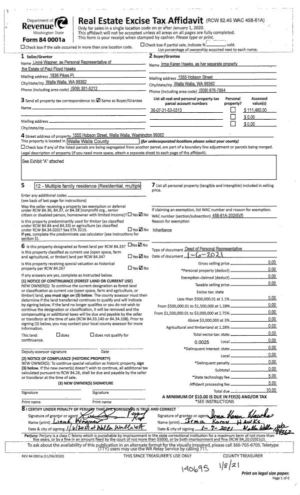
Property
Account |
| Property ID: | 2802 | Abbreviated Legal Description: | STEPHENS ADDN LT 3 |
| Parcel Number: | 360731880003 | Agent Code: | |
| Type: | Real | | |
| Tax Area: | 5 - OL-140 | Land Use Code | 11 |
| Open Space: | N | DFL | N |
| Historic Property: | N | Remodel Property: | N |
| Multi-Family Redevelopment: | N | | |
| Township: | 7 | Section: | 31 |
| Range: | 36 |
Location |
| Address: | 2514 LEXINGTON PL WA 99362 | Mapsco: | |
| Neighborhood: | VG SFR Rural/City Inf | Map ID: | |
| Neighborhood CD: | 115012 |
Owner |
| Name: | NELSEN CARL E & JANET J | Owner ID: | 34204 |
| Mailing Address: | 2514 LEXINGTON PL WALLA WALLA, WA 99362 | % Ownership: | 100.0000000000% |
| | | Exemptions: | |
Taxes and Assessment Details
Values
| (+) Improvement Homesite Value: | + | $0 | |
| (+) Improvement Non-Homesite Value: | + | $631,280 | |
| (+) Land Homesite Value: | + | $0 | |
| (+) Land Non-Homesite Value: | + | $100,000 | |
| (+) Curr Use (HS): | + | $0 | $0 |
| (+) Curr Use (NHS): | + | $0 | $0 |
| | | -------------------------- | |
| (=) Market Value: | = | $731,280 | |
| (–) Productivity Loss: | – | $0 | |
| | | -------------------------- | |
| (=) Subtotal: | = | $731,280 | |
| (+) Senior Appraised Value: | + | $0 | |
| (+) Non-Senior Appraised Value: | + | $731,280 | |
| | | -------------------------- | |
| (=) Total Appraised Value: | = | $731,280 | |
| (–) Senior Exemption Loss: | – | $0 | |
| (–) Exemption Loss: | – | $0 | |
| | | -------------------------- | |
| (=) Taxable Value: | = | $731,280 | |
Taxing Jurisdiction
| Owner: | NELSEN CARL E & JANET J | | |
| % Ownership: | 100.0000000000% | | |
| Total Value: | $731,280 | | |
| Tax Area: | 5 - OL-140 |
| CERFD | CURRENT EXPENSE REFUND 010 | 0.0000000000 | $731,280 | $731,280 | $0.00 | | |
| CURREXP | CURRENT EXPENSE 010 | 1.0175366760 | $731,280 | $731,280 | $744.10 | | |
| HUMNSERV | HUMAN SERVICES 119 | 0.0250000000 | $731,280 | $731,280 | $18.28 | | |
| SLDREL | SOLDIERS RELIEF 121 | 0.0155990005 | $731,280 | $731,280 | $11.41 | | |
| EMERGSER | EMS 147 | 0.3792580840 | $731,280 | $731,280 | $277.34 | | |
| EMSRFD | EMS REFUND 147 | 0.0000000000 | $731,280 | $731,280 | $0.00 | | |
| PORTRFD | PORT REFUND 640 | 0.0000000000 | $731,280 | $731,280 | $0.00 | | |
| PORTWWGEN | PORT OF WW 640 | 0.2460186015 | $731,280 | $731,280 | $179.91 | | |
| SD140BOND | SD #140 BOND 764 | 0.8342371393 | $731,280 | $731,280 | $610.06 | | |
| SD140GEN | SD #140 GENERAL 760 | 2.0646500647 | $731,280 | $731,280 | $1,509.84 | | |
| ST2 | STATE SCHOOL PART 2 600 | 0.8131451643 | $731,280 | $731,280 | $594.64 | | |
| STATESCHL | STATE SCHOOL 600 | 1.5158548041 | $731,280 | $731,280 | $1,108.51 | | |
| STREFUND | STATE REFUND LEVY 603 | 0.0000000000 | $731,280 | $731,280 | $0.00 | | |
| CWWBOND | C OF WW BOND 643 | 0.2760494372 | $731,280 | $731,280 | $201.87 | | |
| CWWGEN | CITY OF WW 631 | 1.6100204973 | $731,280 | $731,280 | $1,177.38 | | |
| CWWRFD | CITY OF WALLA WALLA REFUND 631 | 0.0000000000 | $731,280 | $731,280 | $0.00 | | |
| | Total Tax Rate: | 8.7973694689 | | | | | |
| | | | | Taxes w/Current Exemptions: | $6,433.34 | | |
| | | | | Taxes w/o Exemptions: | $6,433.34 | | |
Improvement / Building
| Improvement #1: | RESIDENTIAL | State Code: | 11 | 2408.0 sqft | Value: | $631,280 |
| Exterior Wall: | STUCCO | Heating/Cooling: | HEAT PUMP | | Number of Bathrooms: | 3 | Number of Bedrooms: | 1 | | Plumbing: | 13 | Roof Covering: | COMP SHINGLE |
|
| | Type | Description | Class CD | Sub Class CD | Year Built | Area |
| | MA | Main Area | 1 | 50 | 2004 | 2408.0 |
| | ATG | Attached Garage | 1 | 50 | 0 | 728.0 |
| | BIG | Built In Garage | 1 | 50 | 0 | 320.0 |
| | BASE | BASEMENT | 1 | 50 | 2004 | 1928.0 |
| | BPF | BASEMENT -PARTITIONED FINISH | 1 | 50 | 0 | 1538.0 |
| | BLW | WOOD BALCONIES | 1 | 50 | 0 | 112.0 |
| | GFP | GAS FIREPLACE | 1 | 50 | 0 | 1.0 |
| | SI1 | SITE IMPROVEMENT | 1 | 50 | 0 | 4.0 |
Sketch
Property Image
Land
| 1 | RES 1 | Converted: Residential | 0.2731 | 11898.00 | 0.00 | 0.00 | 1.00 | $100,000 | $0 |
Roll Value History
| 2025 | N/A | N/A | N/A | N/A | N/A |
| 2024 | $631,280 | $100,000 | $0 | $731,280 | $731,280 |
| 2023 | $631,280 | $100,000 | $0 | $731,280 | $731,280 |
| 2022 | $601,210 | $100,000 | $0 | $701,210 | $701,210 |
| 2021 | $572,590 | $100,000 | $0 | $672,590 | $672,590 |
| 2020 | $497,900 | $100,000 | $0 | $597,900 | $597,900 |
| 2019 | $507,900 | $90,000 | $0 | $597,900 | $597,900 |
| 2018 | $483,710 | $90,000 | $0 | $573,710 | $573,710 |
| 2017 | $460,680 | $90,000 | $0 | $550,680 | $550,680 |
| 2016 | $383,900 | $90,000 | $0 | $473,900 | $473,900 |
| 2015 | $349,000 | $90,000 | $0 | $439,000 | $439,000 |
| 2014 | $349,000 | $90,000 | $0 | $439,000 | $439,000 |
| 2013 | $349,000 | $90,000 | $0 | $439,000 | $439,000 |
| 2012 | $349,000 | $90,000 | $0 | $0 | $0 |
| 2011 | $349,000 | $90,000 | $0 | $0 | $0 |
| 2010 | $349,000 | $90,000 | $0 | $0 | $0 |
| 2009 | $372,100 | $90,000 | $0 | $0 | $0 |
| 2008 | $329,700 | $40,000 | $0 | $0 | $0 |
| 2007 | $329,700 | $40,000 | $0 | $0 | $0 |
| 2006 | $329,700 | $40,000 | $0 | $0 | $0 |
Deed and Sales History
| 1 | 03/11/2003 | WARRANTY D | WARRANTY DEED | ABENROTH, PAUL A | NELSEN, CARL E & JANET J | | | $41,500.00 | 101559 | 2003-03265 |
| 2 | 04/09/1998 | WARRANTY D | WARRANTY DEED | | | | | $40,000.00 | 90183 | 2659-803821 |
Payout Agreement
| No payout information available.. |