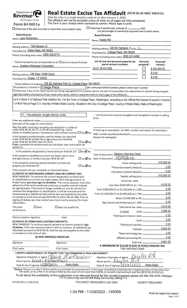
Property
Account |
| Property ID: | 27980 | Abbreviated Legal Description: | BUCK'S SUBDIV OF BLK 2 CP #2 LT 10 BLK 3 |
| Parcel Number: | 350736520310 | Agent Code: | |
| Type: | Real | | |
| Tax Area: | 75 - CP 250 | Land Use Code | 12 |
| Open Space: | N | DFL | N |
| Historic Property: | N | Remodel Property: | N |
| Multi-Family Redevelopment: | N | | |
| Township: | 7 | Section: | 36 |
| Range: | 35 |
Location |
| Address: | 426 SE 4TH ST APT A WA 99324 | Mapsco: | |
| Neighborhood: | A SFR Multi Res | Map ID: | |
| Neighborhood CD: | 113081 |
Owner |
| Name: | KAPOCIAS SARAH M | Owner ID: | 73798 |
| Mailing Address: | 3824 35TH AVE SW SEATTLE, WA 98126 | % Ownership: | 100.0000000000% |
| | | Exemptions: | |
Taxes and Assessment Details
Values
| (+) Improvement Homesite Value: | + | $0 | |
| (+) Improvement Non-Homesite Value: | + | $236,200 | |
| (+) Land Homesite Value: | + | $0 | |
| (+) Land Non-Homesite Value: | + | $61,030 | |
| (+) Curr Use (HS): | + | $0 | $0 |
| (+) Curr Use (NHS): | + | $0 | $0 |
| | | -------------------------- | |
| (=) Market Value: | = | $297,230 | |
| (–) Productivity Loss: | – | $0 | |
| | | -------------------------- | |
| (=) Subtotal: | = | $297,230 | |
| (+) Senior Appraised Value: | + | $0 | |
| (+) Non-Senior Appraised Value: | + | $297,230 | |
| | | -------------------------- | |
| (=) Total Appraised Value: | = | $297,230 | |
| (–) Senior Exemption Loss: | – | $0 | |
| (–) Exemption Loss: | – | $0 | |
| | | -------------------------- | |
| (=) Taxable Value: | = | $297,230 | |
Taxing Jurisdiction
| Owner: | KAPOCIAS SARAH M | | |
| % Ownership: | 100.0000000000% | | |
| Total Value: | $297,230 | | |
| Tax Area: | 75 - CP 250 |
| CERFD | CURRENT EXPENSE REFUND 010 | 0.0000000000 | $297,230 | $297,230 | $0.00 | | |
| CURREXP | CURRENT EXPENSE 010 | 1.0175366760 | $297,230 | $297,230 | $302.44 | | |
| HUMNSERV | HUMAN SERVICES 119 | 0.0250000000 | $297,230 | $297,230 | $7.43 | | |
| SLDREL | SOLDIERS RELIEF 121 | 0.0155990005 | $297,230 | $297,230 | $4.64 | | |
| COLLPLBOND | C OF CP BOND 644 | 0.4374241808 | $297,230 | $297,230 | $130.02 | | |
| COLLPLGEN | CITY OF CP 632 | 1.4453819216 | $297,230 | $297,230 | $429.61 | | |
| EMERGSER | EMS 147 | 0.3792580840 | $297,230 | $297,230 | $112.73 | | |
| EMSRFD | EMS REFUND 147 | 0.0000000000 | $297,230 | $297,230 | $0.00 | | |
| RURALLIB | RURAL LIBRARY 623 | 0.3710609029 | $297,230 | $297,230 | $110.29 | | |
| PORTRFD | PORT REFUND 640 | 0.0000000000 | $297,230 | $297,230 | $0.00 | | |
| PORTWWGEN | PORT OF WW 640 | 0.2460186015 | $297,230 | $297,230 | $73.12 | | |
| SD250BOND | SD #250 BOND 773 | 1.4560608159 | $297,230 | $297,230 | $432.78 | | |
| SD250GEN | SD #250 GENERAL 770 | 2.3880724087 | $297,230 | $297,230 | $709.81 | | |
| ST2 | STATE SCHOOL PART 2 600 | 0.8131451643 | $297,230 | $297,230 | $241.69 | | |
| STATESCHL | STATE SCHOOL 600 | 1.5158548041 | $297,230 | $297,230 | $450.56 | | |
| STREFUND | STATE REFUND LEVY 603 | 0.0000000000 | $297,230 | $297,230 | $0.00 | | |
| | Total Tax Rate: | 10.1104125603 | | | | | |
| | | | | Taxes w/Current Exemptions: | $3,005.12 | | |
| | | | | Taxes w/o Exemptions: | $3,005.12 | | |
Improvement / Building
| Improvement #1: | RESIDENTIAL | State Code: | 12 | 858.0 sqft | Value: | $180,140 |
| Exterior Wall: | SIDING | Heating/Cooling: | BASEBOARD ELECTRIC | | Number of Bathrooms: | 2 | Number of Bedrooms: | 2 | | Plumbing: | 10 | Roof Covering: | COMP SHINGLE |
|
| | Type | Description | Class CD | Sub Class CD | Year Built | Area |
| | MA | Main Area | 1 | 30 | 1946 | 858.0 |
| | SI1 | SITE IMPROVEMENT | 1 | 30 | 1946 | 1.0 |
| | RPS | PORCH W/STEPS,ROOF | 1 | 30 | 1946 | 73.0 |
| | UTST | Utility Storage Shed | 1 | 30 | 1946 | 136.0 |
| | BASE | BASEMENT | 1 | 30 | 1946 | 648.0 |
| | BPF | BASEMENT -PARTITIONED FINISH | 1 | 30 | 1946 | 600.0 |
| Improvement #2: | RESIDENTIAL | State Code: | 12 | 440.0 sqft | Value: | $56,060 |
| Exterior Wall: | SIDING | Heating/Cooling: | WALL FURNACE | | Number of Bathrooms: | 1 | Number of Bedrooms: | 1 | | Plumbing: | 5 | Roof Covering: | COMP SHINGLE |
|
Sketch
Property Image
Land
| 1 | RES 1 | Converted: Residential | 0.2182 | 9506.00 | 0.00 | 0.00 | 1.00 | $61,030 | $0 |
Roll Value History
| 2025 | N/A | N/A | N/A | N/A | N/A |
| 2024 | $292,900 | $61,000 | $0 | $353,900 | $353,900 |
| 2023 | $236,200 | $61,030 | $0 | $297,230 | $297,230 |
| 2022 | $205,400 | $61,030 | $0 | $266,430 | $266,430 |
| 2021 | $189,650 | $61,030 | $0 | $250,680 | $250,680 |
| 2020 | $118,530 | $61,030 | $0 | $179,560 | $179,560 |
| 2019 | $132,860 | $46,700 | $0 | $179,560 | $179,560 |
| 2018 | $126,530 | $46,700 | $0 | $173,230 | $173,230 |
| 2017 | $115,030 | $46,700 | $0 | $161,730 | $161,730 |
| 2016 | $109,550 | $46,700 | $0 | $156,250 | $156,250 |
| 2015 | $88,000 | $46,700 | $0 | $134,700 | $134,700 |
| 2014 | $88,000 | $46,700 | $0 | $134,700 | $134,700 |
| 2013 | $88,000 | $46,700 | $0 | $134,700 | $134,700 |
| 2012 | $88,000 | $46,700 | $0 | $0 | $0 |
| 2011 | $88,000 | $46,700 | $0 | $0 | $0 |
| 2010 | $81,600 | $46,700 | $0 | $0 | $0 |
| 2009 | $95,900 | $46,700 | $0 | $0 | $0 |
| 2008 | $59,900 | $24,300 | $0 | $0 | $0 |
| 2007 | $59,900 | $24,300 | $0 | $0 | $0 |
| 2006 | $59,900 | $24,300 | $0 | $0 | $0 |
Deed and Sales History
| 1 | 06/13/2023 | QCD | QUIT CLAIM DEED | SANDERS WILLIAM | KAPOCIAS SARAH M | | | | 145970 | 2023-03253 |
| 2 | 06/13/2023 | SWD | STATUTORY WARRANTY DEED | KUYKENDALL KAVIN J | KAPOCIAS SARAH M | | | $385,000.00 | 145969 | 2023-03251 |
| 3 | 07/29/2019 | COURT CASE | COURT CASE | MADSEN RYAN D & REBECCA R | MADSEN RYAN DONAVAN | | | $0.00 | 137378 | CC 17-3-00108-7 |
| 4 | 07/30/2019 | SWD | STATUTORY WARRANTY DEED | MADSEN REBECCA R | KUYKENDALL KAVIN J | | | $250,000.00 | 137379 | 2019-05588 |
| 5 | 07/30/2013 | QCD | QUIT CLAIM DEED | MADSEN, RYAN | MADSEN, REBECCA R | | | $0.00 | 124366 | 2013-07720 |
| 6 | 07/30/2013 | WARRANTY D | WARRANTY DEED | MACFARLANE ENTERPRISES INC | MADSEN, REBECCA R | | | $154,300.00 | 124365 | 2013-07719 |
| 7 | 01/13/2010 | QCD | QUIT CLAIM DEED | PRIORITY PROPERTIES LLC | MACFARLANE ENTERPRISES INC | | | | 117956 | 2010-00397 |
| 8 | 07/15/2005 | QCD | QUIT CLAIM DEED | WILSON RONALD L | PRIORITY PROPERTIES LLC | | | | 107971 | 2005-08591 |
| 9 | 10/20/2003 | WARRANTY D | WARRANTY DEED | MARTIN, E WAYNE | WILSON, RONALD LEE | | | $72,500.00 | 103314 | 2003-16217 |
| 10 | 10/19/2003 | QCD | QUIT CLAIM DEED | GRAHAM, A RICHARD & CARMEN R | MARTIN, E WAYNE | | | | 103313 | 2003-16216 |
| 11 | 05/30/2003 | QCD | QUIT CLAIM DEED | FOX, HAROLD O | MARTIN, E WAYNE | | | | 102197 | 2003-07924 |
| 12 | 04/28/1978 | WARRANTY D | WARRANTY DEED | | | | | $33,500.00 | 0 | 8178-03844 |
Payout Agreement
| No payout information available.. |