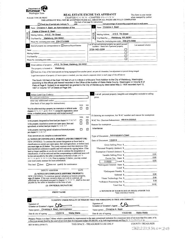
Property
Account |
| Property ID: | 27938 | Abbreviated Legal Description: | 27-7-35 (PT TAX 5) PARCEL 13 |
| Parcel Number: | 350727420013 | Agent Code: | |
| Type: | Real | | |
| Tax Area: | 311 - 250-4 | Land Use Code | 12 |
| Open Space: | N | DFL | N |
| Historic Property: | N | Remodel Property: | N |
| Multi-Family Redevelopment: | N | | |
| Township: | 7 | Section: | 27 |
| Range: | 35 |
Location |
| Address: | 172 MCKINNEY RD WA 99324 | Mapsco: | |
| Neighborhood: | A Multi Res Rural/City Inf | Map ID: | |
| Neighborhood CD: | 313082 |
Owner |
| Name: | STADNIK ELEYA G & MEGAN N | Owner ID: | 65093 |
| Mailing Address: | 172 MCKINNEY RD WALLA WALLA, WA 99362 | % Ownership: | 100.0000000000% |
| | | Exemptions: | |
Taxes and Assessment Details
Values
| (+) Improvement Homesite Value: | + | $0 | |
| (+) Improvement Non-Homesite Value: | + | $122,190 | |
| (+) Land Homesite Value: | + | $0 | |
| (+) Land Non-Homesite Value: | + | $136,250 | |
| (+) Curr Use (HS): | + | $0 | $0 |
| (+) Curr Use (NHS): | + | $0 | $0 |
| | | -------------------------- | |
| (=) Market Value: | = | $258,440 | |
| (–) Productivity Loss: | – | $0 | |
| | | -------------------------- | |
| (=) Subtotal: | = | $258,440 | |
| (+) Senior Appraised Value: | + | $0 | |
| (+) Non-Senior Appraised Value: | + | $258,440 | |
| | | -------------------------- | |
| (=) Total Appraised Value: | = | $258,440 | |
| (–) Senior Exemption Loss: | – | $0 | |
| (–) Exemption Loss: | – | $0 | |
| | | -------------------------- | |
| (=) Taxable Value: | = | $258,440 | |
Taxing Jurisdiction
| Owner: | STADNIK ELEYA G & MEGAN N | | |
| % Ownership: | 100.0000000000% | | |
| Total Value: | $258,440 | | |
| Tax Area: | 311 - 250-4 |
| CERFD | CURRENT EXPENSE REFUND 010 | 0.0000000000 | $258,440 | $258,440 | $0.00 | | |
| CURREXP | CURRENT EXPENSE 010 | 1.0175366760 | $258,440 | $258,440 | $262.97 | | |
| HUMNSERV | HUMAN SERVICES 119 | 0.0250000000 | $258,440 | $258,440 | $6.46 | | |
| SLDREL | SOLDIERS RELIEF 121 | 0.0155990005 | $258,440 | $258,440 | $4.03 | | |
| EMERGSER | EMS 147 | 0.3792580840 | $258,440 | $258,440 | $98.02 | | |
| EMSRFD | EMS REFUND 147 | 0.0000000000 | $258,440 | $258,440 | $0.00 | | |
| FD4EXP | FD #4 EXPENSE 686 | 0.8836993059 | $258,440 | $258,440 | $228.38 | | |
| RLBRFD | RURAL LIBRARY REFUND 623 | 0.0000000000 | $258,440 | $258,440 | $0.00 | | |
| RURALLIB | RURAL LIBRARY 623 | 0.3710609029 | $258,440 | $258,440 | $95.90 | | |
| PORTRFD | PORT REFUND 640 | 0.0000000000 | $258,440 | $258,440 | $0.00 | | |
| PORTWWGEN | PORT OF WW 640 | 0.2460186015 | $258,440 | $258,440 | $63.58 | | |
| SD250BOND | SD #250 BOND 773 | 1.4560608159 | $258,440 | $258,440 | $376.30 | | |
| SD250GEN | SD #250 GENERAL 770 | 2.3880724087 | $258,440 | $258,440 | $617.17 | | |
| ST2 | STATE SCHOOL PART 2 600 | 0.8131451643 | $258,440 | $258,440 | $210.15 | | |
| STATESCHL | STATE SCHOOL 600 | 1.5158548041 | $258,440 | $258,440 | $391.76 | | |
| STREFUND | STATE REFUND LEVY 603 | 0.0000000000 | $258,440 | $258,440 | $0.00 | | |
| COROAD | COUNTY ROAD 115 | 1.6549953990 | $258,440 | $258,440 | $427.72 | | |
| CRPRD | COUNTY ROAD REFUND 115 | 0.0000000000 | $258,440 | $258,440 | $0.00 | | |
| | Total Tax Rate: | 10.7663011628 | | | | | |
| | | | | Taxes w/Current Exemptions: | $2,782.44 | | |
| | | | | Taxes w/o Exemptions: | $2,782.44 | | |
Improvement / Building
| Improvement #1: | RESIDENTIAL | State Code: | 12 | 772.0 sqft | Value: | $74,730 |
| Exterior Wall: | PLYWOOD | Heating/Cooling: | STOVE-NO HEAT | | Number of Bathrooms: | 1 | Number of Bedrooms: | 2 | | Plumbing: | 6 | Roof Covering: | COMP SHINGLE |
|
| | Type | Description | Class CD | Sub Class CD | Year Built | Area |
| | MA | Main Area | 1 | 20 | 1930 | 772.0 |
| | SI1 | SITE IMPROVEMENT | 1 | 20 | 0 | 1.0 |
| | SHOP | SHOP BUILDING | 1 | 20 | 1930 | 2640.0 |
| | CPC | COVERED CARPORT/PATIO | 1 | 20 | 1930 | 1664.0 |
| | DTG | Detached Garage | 1 | 20 | 1930 | 240.0 |
| | UTST | Utility Storage Shed | 1 | 10 | 1930 | 936.0 |
| Improvement #2: | RESIDENTIAL | State Code: | 12 | 576.0 sqft | Value: | $47,460 |
| Exterior Wall: | SIDING | Heating/Cooling: | STOVE-NO HEAT | | Number of Bathrooms: | 1 | Number of Bedrooms: | 2 | | Plumbing: | 6 | Roof Covering: | COMP SHINGLE |
|
| | Type | Description | Class CD | Sub Class CD | Year Built | Area |
| | MA | Main Area | 1 | 20 | 1930 | 576.0 |
| | SI1 | SITE IMPROVEMENT | 1 | 20 | 0 | 1.0 |
Sketch
Property Image
Land
| 1 | RES 1 | Converted: Residential | 2.2500 | 98010.00 | 0.00 | 0.00 | 1.00 | $136,250 | $0 |
Roll Value History
| 2025 | N/A | N/A | N/A | N/A | N/A |
| 2024 | $122,200 | $136,300 | $0 | $258,500 | $258,500 |
| 2023 | $122,190 | $136,250 | $0 | $258,440 | $258,440 |
| 2022 | $122,190 | $136,250 | $0 | $258,440 | $258,440 |
| 2021 | $90,200 | $85,000 | $0 | $175,200 | $175,200 |
| 2020 | $45,100 | $85,000 | $0 | $130,100 | $130,100 |
| 2019 | $45,100 | $85,000 | $0 | $130,100 | $130,100 |
| 2018 | $45,100 | $85,000 | $0 | $130,100 | $130,100 |
| 2017 | $42,950 | $85,000 | $0 | $127,950 | $127,950 |
| 2016 | $42,950 | $85,000 | $0 | $127,950 | $127,950 |
| 2015 | $41,710 | $85,000 | $0 | $126,710 | $126,710 |
| 2014 | $41,710 | $85,000 | $0 | $126,710 | $126,710 |
| 2013 | $41,700 | $85,000 | $0 | $126,700 | $126,700 |
| 2012 | $31,200 | $85,000 | $0 | $0 | $0 |
| 2011 | $31,200 | $85,000 | $0 | $0 | $0 |
| 2010 | $20,400 | $85,000 | $0 | $0 | $0 |
| 2009 | $28,800 | $50,000 | $0 | $0 | $0 |
| 2008 | $28,800 | $50,000 | $0 | $0 | $0 |
| 2007 | $28,800 | $50,000 | $0 | $0 | $0 |
| 2006 | $28,800 | $50,000 | $0 | $0 | $0 |
Deed and Sales History
| 1 | 05/10/2019 | DPR | DEED OF PERSONAL REPRESENTATIVE | SHOLTIS ALBERT A ESTATE OF | STADNIK ELEYA G & MEGAN N | | | $240,000.00 | 136858 | 2019-03094 |
| 2 | 03/04/2005 | WARRANTY D | WARRANTY DEED | MEYER, ROBERT A | SHOLTIS, ALBERT A | | | $105,000.00 | 106919 | 2005-02491 |
| 3 | 07/09/1986 | WARRANTY D | WARRANTY DEED | | | | | $41,000.00 | 0 | 1588-605107 |
Payout Agreement
| No payout information available.. |