Property
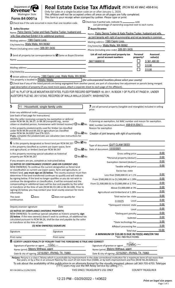
Account |
| Property ID: | 27858 | Abbreviated Legal Description: | BARDSLEYS LOTS 10 AND 11 BLK X |
| Parcel Number: | 360720530110 | Agent Code: | |
| Type: | Real | | |
| Tax Area: | 1 - OL-140-F | Land Use Code | 91 |
| Open Space: | N | DFL | N |
| Historic Property: | N | Remodel Property: | N |
| Multi-Family Redevelopment: | N | | |
| Township: | 7 | Section: | 20 |
| Range: | 36 |
Location |
| Address: | 503 JEFFERSON ST WA 99362 | Mapsco: | |
| Neighborhood: | COMMERCIAL | Map ID: | |
| Neighborhood CD: | 3319 |
Owner |
| Name: | ARREOLA BRAYAN | Owner ID: | 73419 |
| Mailing Address: | SCARLETE ARREOLA 1221 RUTH ST WALLA WALLA, WA 99362 | % Ownership: | 100.0000000000% |
| | | Exemptions: | |
Taxes and Assessment Details
Values
| (+) Improvement Homesite Value: | + | $0 | |
| (+) Improvement Non-Homesite Value: | + | $0 | |
| (+) Land Homesite Value: | + | $0 | |
| (+) Land Non-Homesite Value: | + | $29,400 | |
| (+) Curr Use (HS): | + | $0 | $0 |
| (+) Curr Use (NHS): | + | $0 | $0 |
| | | -------------------------- | |
| (=) Market Value: | = | $29,400 | |
| (–) Productivity Loss: | – | $0 | |
| | | -------------------------- | |
| (=) Subtotal: | = | $29,400 | |
| (+) Senior Appraised Value: | + | $0 | |
| (+) Non-Senior Appraised Value: | + | $29,400 | |
| | | -------------------------- | |
| (=) Total Appraised Value: | = | $29,400 | |
| (–) Senior Exemption Loss: | – | $0 | |
| (–) Exemption Loss: | – | $0 | |
| | | -------------------------- | |
| (=) Taxable Value: | = | $29,400 | |
Taxing Jurisdiction
| Owner: | ARREOLA BRAYAN | | |
| % Ownership: | 100.0000000000% | | |
| Total Value: | $29,400 | | |
| Tax Area: | 1 - OL-140-F |
| CERFD | CURRENT EXPENSE REFUND 010 | 0.0000000000 | $29,400 | $29,400 | $0.00 | | |
| CURREXP | CURRENT EXPENSE 010 | 1.0175366760 | $29,400 | $29,400 | $29.92 | | |
| HUMNSERV | HUMAN SERVICES 119 | 0.0250000000 | $29,400 | $29,400 | $0.74 | | |
| SLDREL | SOLDIERS RELIEF 121 | 0.0155990005 | $29,400 | $29,400 | $0.46 | | |
| EMERGSER | EMS 147 | 0.3792580840 | $29,400 | $29,400 | $11.15 | | |
| EMSRFD | EMS REFUND 147 | 0.0000000000 | $29,400 | $29,400 | $0.00 | | |
| PORTRFD | PORT REFUND 640 | 0.0000000000 | $29,400 | $29,400 | $0.00 | | |
| PORTWWGEN | PORT OF WW 640 | 0.2460186015 | $29,400 | $29,400 | $7.23 | | |
| SD140BOND | SD #140 BOND 764 | 0.8342371393 | $29,400 | $29,400 | $24.53 | | |
| SD140GEN | SD #140 GENERAL 760 | 2.0646500647 | $29,400 | $29,400 | $60.70 | | |
| ST2 | STATE SCHOOL PART 2 600 | 0.8131451643 | $29,400 | $29,400 | $23.91 | | |
| STATESCHL | STATE SCHOOL 600 | 1.5158548041 | $29,400 | $29,400 | $44.57 | | |
| STREFUND | STATE REFUND LEVY 603 | 0.0000000000 | $29,400 | $29,400 | $0.00 | | |
| CWWBOND | C OF WW BOND 643 | 0.2760494372 | $29,400 | $29,400 | $8.12 | | |
| CWWGEN | CITY OF WW 631 | 1.6100204973 | $29,400 | $29,400 | $47.33 | | |
| CWWRFD | CITY OF WALLA WALLA REFUND 631 | 0.0000000000 | $29,400 | $29,400 | $0.00 | | |
| | Total Tax Rate: | 8.7973694689 | | | | | |
| | | | | Taxes w/Current Exemptions: | $258.66 | | |
| | | | | Taxes w/o Exemptions: | $258.66 | | |
Improvement / Building
Sketch
| No sketches available for this property. |
Property Image
Land
| 1 | COM 1 | Converted: Commercial | 0.2755 | 12000.00 | 0.00 | 0.00 | 1.00 | $29,400 | $0 |
Roll Value History
| 2025 | N/A | N/A | N/A | N/A | N/A |
| 2024 | $0 | $29,400 | $0 | $29,400 | $29,400 |
| 2023 | $0 | $29,400 | $0 | $29,400 | $29,400 |
| 2022 | $0 | $29,400 | $0 | $29,400 | $29,400 |
| 2021 | $0 | $18,700 | $0 | $18,700 | $18,700 |
| 2020 | $0 | $18,700 | $0 | $18,700 | $18,700 |
| 2019 | $0 | $18,700 | $0 | $18,700 | $18,700 |
| 2018 | $0 | $18,700 | $0 | $18,700 | $18,700 |
| 2017 | $0 | $18,700 | $0 | $18,700 | $18,700 |
| 2016 | $0 | $18,700 | $0 | $18,700 | $18,700 |
| 2015 | $0 | $4,500 | $0 | $4,500 | $4,500 |
| 2014 | $0 | $4,500 | $0 | $4,500 | $4,500 |
| 2013 | $0 | $4,500 | $0 | $4,500 | $4,500 |
| 2012 | $0 | $4,500 | $0 | $0 | $0 |
| 2011 | $0 | $4,500 | $0 | $0 | $0 |
| 2010 | $0 | $2,800 | $0 | $0 | $0 |
| 2009 | $0 | $2,800 | $0 | $0 | $0 |
| 2008 | $0 | $2,800 | $0 | $0 | $0 |
| 2007 | $0 | $2,800 | $0 | $0 | $0 |
| 2006 | $0 | $2,100 | $0 | $0 | $0 |
Deed and Sales History
| 1 | 07/27/2023 | SWD | STATUTORY WARRANTY DEED | LOGAN WAYNE J | ARREOLA BRAYAN | | 2-PARCELS | $300,000.00 | 146221 | 2023-04254 |
|   | |
| 2 | 02/10/2021 | QCD | QUIT CLAIM DEED | LOGAN WILLIS E | LOGAN WAYNE J | | | $0.00 | 140898 | 2021-01623 |
| 3 | 04/13/1976 | WARRANTY D | WARRANTY DEED | | | | | $4,500.00 | 0 | 4005-52922 |
Payout Agreement
| No payout information available.. |