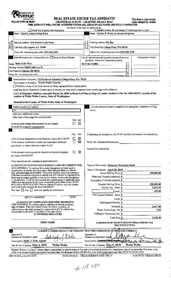
Property
Account |
| Property ID: | 27795 | Abbreviated Legal Description: | BOYER GROVE SLY 24' OF LOT 12 BLK 2 |
| Parcel Number: | 360720550217 | Agent Code: | |
| Type: | Real | | |
| Tax Area: | 1 - OL-140-F | Land Use Code | 62 |
| Open Space: | N | DFL | N |
| Historic Property: | N | Remodel Property: | N |
| Multi-Family Redevelopment: | N | | |
| Township: | 7 | Section: | 20 |
| Range: | 36 |
Location |
| Address: | 43 S PALOUSE ST WA 99362 | Mapsco: | |
| Neighborhood: | WW Downtown Core Area #2 | Map ID: | |
| Neighborhood CD: | 5342 |
Owner |
| Name: | SATURNO COMMERCIAL HOLDINGS LLC | Owner ID: | 68624 |
| Mailing Address: | 41 S PALOUSE ST WALLA WALLA, WA 99362 | % Ownership: | 100.0000000000% |
| | | Exemptions: | |
Taxes and Assessment Details
Values
| (+) Improvement Homesite Value: | + | $0 | |
| (+) Improvement Non-Homesite Value: | + | $157,500 | |
| (+) Land Homesite Value: | + | $0 | |
| (+) Land Non-Homesite Value: | + | $19,000 | |
| (+) Curr Use (HS): | + | $0 | $0 |
| (+) Curr Use (NHS): | + | $0 | $0 |
| | | -------------------------- | |
| (=) Market Value: | = | $176,500 | |
| (–) Productivity Loss: | – | $0 | |
| | | -------------------------- | |
| (=) Subtotal: | = | $176,500 | |
| (+) Senior Appraised Value: | + | $0 | |
| (+) Non-Senior Appraised Value: | + | $176,500 | |
| | | -------------------------- | |
| (=) Total Appraised Value: | = | $176,500 | |
| (–) Senior Exemption Loss: | – | $0 | |
| (–) Exemption Loss: | – | $0 | |
| | | -------------------------- | |
| (=) Taxable Value: | = | $176,500 | |
Taxing Jurisdiction
| Owner: | SATURNO COMMERCIAL HOLDINGS LLC | | |
| % Ownership: | 100.0000000000% | | |
| Total Value: | $176,500 | | |
| Tax Area: | 1 - OL-140-F |
| CERFD | CURRENT EXPENSE REFUND 010 | 0.0000000000 | $176,500 | $176,500 | $0.00 | | |
| CURREXP | CURRENT EXPENSE 010 | 1.0175366760 | $176,500 | $176,500 | $179.60 | | |
| HUMNSERV | HUMAN SERVICES 119 | 0.0250000000 | $176,500 | $176,500 | $4.41 | | |
| SLDREL | SOLDIERS RELIEF 121 | 0.0155990005 | $176,500 | $176,500 | $2.75 | | |
| EMERGSER | EMS 147 | 0.3792580840 | $176,500 | $176,500 | $66.94 | | |
| EMSRFD | EMS REFUND 147 | 0.0000000000 | $176,500 | $176,500 | $0.00 | | |
| PORTRFD | PORT REFUND 640 | 0.0000000000 | $176,500 | $176,500 | $0.00 | | |
| PORTWWGEN | PORT OF WW 640 | 0.2460186015 | $176,500 | $176,500 | $43.42 | | |
| SD140BOND | SD #140 BOND 764 | 0.8342371393 | $176,500 | $176,500 | $147.24 | | |
| SD140GEN | SD #140 GENERAL 760 | 2.0646500647 | $176,500 | $176,500 | $364.41 | | |
| ST2 | STATE SCHOOL PART 2 600 | 0.8131451643 | $176,500 | $176,500 | $143.52 | | |
| STATESCHL | STATE SCHOOL 600 | 1.5158548041 | $176,500 | $176,500 | $267.55 | | |
| STREFUND | STATE REFUND LEVY 603 | 0.0000000000 | $176,500 | $176,500 | $0.00 | | |
| CWWBOND | C OF WW BOND 643 | 0.2760494372 | $176,500 | $176,500 | $48.72 | | |
| CWWGEN | CITY OF WW 631 | 1.6100204973 | $176,500 | $176,500 | $284.17 | | |
| CWWRFD | CITY OF WALLA WALLA REFUND 631 | 0.0000000000 | $176,500 | $176,500 | $0.00 | | |
| | Total Tax Rate: | 8.7973694689 | | | | | |
| | | | | Taxes w/Current Exemptions: | $1,552.73 | | |
| | | | | Taxes w/o Exemptions: | $1,552.73 | | |
Improvement / Building
| Improvement #1: | COMMERCIAL | State Code: | 62 | 1409.0 sqft | Value: | $157,500 |
| | Type | Description | Class CD | Sub Class CD | Year Built | Area |
| | MA | Main Area | D | | 1929 | 1409.0 |
| | SI1 | SITE IMPROVEMENT | D | * | 1929 | 3.0 |
Sketch
Property Image
Land
| 1 | COM 1 | Converted: Commercial | 0.0397 | 1728.00 | 0.00 | 0.00 | 1.00 | $19,000 | $0 |
Roll Value History
| 2025 | N/A | N/A | N/A | N/A | N/A |
| 2024 | $162,400 | $19,000 | $0 | $181,400 | $181,400 |
| 2023 | $157,500 | $19,000 | $0 | $176,500 | $176,500 |
| 2022 | $131,910 | $19,000 | $0 | $150,910 | $150,910 |
| 2021 | $131,910 | $19,000 | $0 | $150,910 | $150,910 |
| 2020 | $131,910 | $19,000 | $0 | $150,910 | $150,910 |
| 2019 | $57,700 | $19,000 | $0 | $76,700 | $76,700 |
| 2018 | $57,700 | $19,000 | $0 | $76,700 | $76,700 |
| 2017 | $48,000 | $19,010 | $0 | $67,010 | $67,010 |
| 2016 | $48,000 | $19,010 | $0 | $67,010 | $67,010 |
| 2015 | $48,000 | $17,300 | $0 | $65,300 | $65,300 |
| 2014 | $48,000 | $17,300 | $0 | $65,300 | $65,300 |
| 2013 | $48,000 | $17,300 | $0 | $65,300 | $65,300 |
| 2012 | $65,300 | $8,600 | $0 | $0 | $0 |
| 2011 | $65,300 | $8,600 | $0 | $0 | $0 |
| 2010 | $50,100 | $8,600 | $0 | $0 | $0 |
| 2009 | $50,100 | $8,600 | $0 | $0 | $0 |
| 2008 | $50,100 | $8,600 | $0 | $0 | $0 |
| 2007 | $50,100 | $8,600 | $0 | $0 | $0 |
| 2006 | $41,200 | $5,600 | $0 | $0 | $0 |
Deed and Sales History
| 1 | 06/26/2020 | BARGAIN & | BARGAIN & SALE DEED | SATURNO DOUGLAS B & MALINDA M | SATURNO COMMERCIAL HOLDINGS LLC | | | $0.00 | 140712 | 2021-00729 |
| 2 | 02/08/2005 | WARRANTY D | WARRANTY DEED | CALLAHAN, GARY D & GAIL R | SATURNO, DOUGLAS B & MALINDA M | | | $80,000.00 | 106736 | 2005-01527 |
| 3 | 08/05/1986 | WARRANTY D | WARRANTY DEED | | | | | $28,840.00 | 0 | 1588-605874 |
Payout Agreement
| No payout information available.. |