Property
Account |
| Property ID: | 27687 | Abbreviated Legal Description: | MCRAE LT 7 BLK 1 |
| Parcel Number: | 350736570107 | Agent Code: | |
| Type: | Real | | |
| Tax Area: | 75 - CP 250 | Land Use Code | 11 |
| Open Space: | N | DFL | N |
| Historic Property: | N | Remodel Property: | N |
| Multi-Family Redevelopment: | N | | |
| Township: | 7 | Section: | 36 |
| Range: | 35 |
Location |
| Address: | 227 SE 11TH ST WA 99324 | Mapsco: | |
| Neighborhood: | A SFR | Map ID: | |
| Neighborhood CD: | 113011 |
Owner |
| Name: | PIERCY JANET ANN 2020 TRUST | Owner ID: | 67737 |
| Mailing Address: | 2715 VISTA LN WALLA WALLA, WA 99362 | % Ownership: | 100.0000000000% |
| | | Exemptions: | |
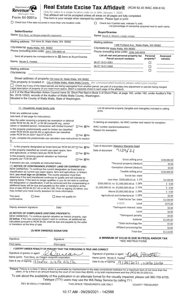
Taxes and Assessment Details
Values
| (+) Improvement Homesite Value: | + | $0 | |
| (+) Improvement Non-Homesite Value: | + | $257,490 | |
| (+) Land Homesite Value: | + | $0 | |
| (+) Land Non-Homesite Value: | + | $47,250 | |
| (+) Curr Use (HS): | + | $0 | $0 |
| (+) Curr Use (NHS): | + | $0 | $0 |
| | | -------------------------- | |
| (=) Market Value: | = | $304,740 | |
| (–) Productivity Loss: | – | $0 | |
| | | -------------------------- | |
| (=) Subtotal: | = | $304,740 | |
| (+) Senior Appraised Value: | + | $0 | |
| (+) Non-Senior Appraised Value: | + | $304,740 | |
| | | -------------------------- | |
| (=) Total Appraised Value: | = | $304,740 | |
| (–) Senior Exemption Loss: | – | $0 | |
| (–) Exemption Loss: | – | $0 | |
| | | -------------------------- | |
| (=) Taxable Value: | = | $304,740 | |
Taxing Jurisdiction
| Owner: | PIERCY JANET ANN 2020 TRUST | | |
| % Ownership: | 100.0000000000% | | |
| Total Value: | $304,740 | | |
| Tax Area: | 75 - CP 250 |
| CERFD | CURRENT EXPENSE REFUND 010 | 0.0000000000 | $304,740 | $304,740 | $0.00 | | |
| CURREXP | CURRENT EXPENSE 010 | 1.0175366760 | $304,740 | $304,740 | $310.08 | | |
| HUMNSERV | HUMAN SERVICES 119 | 0.0250000000 | $304,740 | $304,740 | $7.62 | | |
| SLDREL | SOLDIERS RELIEF 121 | 0.0155990005 | $304,740 | $304,740 | $4.75 | | |
| COLLPLBOND | C OF CP BOND 644 | 0.4374241808 | $304,740 | $304,740 | $133.30 | | |
| COLLPLGEN | CITY OF CP 632 | 1.4453819216 | $304,740 | $304,740 | $440.47 | | |
| EMERGSER | EMS 147 | 0.3792580840 | $304,740 | $304,740 | $115.58 | | |
| EMSRFD | EMS REFUND 147 | 0.0000000000 | $304,740 | $304,740 | $0.00 | | |
| RURALLIB | RURAL LIBRARY 623 | 0.3710609029 | $304,740 | $304,740 | $113.08 | | |
| PORTRFD | PORT REFUND 640 | 0.0000000000 | $304,740 | $304,740 | $0.00 | | |
| PORTWWGEN | PORT OF WW 640 | 0.2460186015 | $304,740 | $304,740 | $74.97 | | |
| SD250BOND | SD #250 BOND 773 | 1.4560608159 | $304,740 | $304,740 | $443.72 | | |
| SD250GEN | SD #250 GENERAL 770 | 2.3880724087 | $304,740 | $304,740 | $727.74 | | |
| ST2 | STATE SCHOOL PART 2 600 | 0.8131451643 | $304,740 | $304,740 | $247.80 | | |
| STATESCHL | STATE SCHOOL 600 | 1.5158548041 | $304,740 | $304,740 | $461.94 | | |
| STREFUND | STATE REFUND LEVY 603 | 0.0000000000 | $304,740 | $304,740 | $0.00 | | |
| | Total Tax Rate: | 10.1104125603 | | | | | |
| | | | | Taxes w/Current Exemptions: | $3,081.05 | | |
| | | | | Taxes w/o Exemptions: | $3,081.05 | | |
Improvement / Building
| Improvement #1: | RESIDENTIAL | State Code: | 11 | 1418.0 sqft | Value: | $257,490 |
| Exterior Wall: | PLYWOOD | Heating/Cooling: | BASEBOARD ELECTRIC | | Number of Bathrooms: | 1 | Number of Bedrooms: | 4 | | Plumbing: | 6 | Roof Covering: | COMP SHINGLE |
|
| | Type | Description | Class CD | Sub Class CD | Year Built | Area |
| | MA | Main Area | 1 | 30 | 1961 | 1418.0 |
| | SI1 | SITE IMPROVEMENT | 1 | 30 | 1961 | 1.0 |
| | S1F | Single One Story Fireplace | 1 | 30 | 1961 | 1.0 |
| | RPC | OPEN PORCH W/ROOF , CEILED | 1 | 30 | 1961 | 36.0 |
| | OSP | Open | 1 | 30 | 1961 | 18.0 |
Sketch
Property Image
Land
| 1 | RES 1 | Converted: Residential | 0.1607 | 7000.00 | 0.00 | 0.00 | 1.00 | $47,250 | $0 |
Roll Value History
| 2025 | N/A | N/A | N/A | N/A | N/A |
| 2024 | $257,490 | $47,250 | $0 | $304,740 | $304,740 |
| 2023 | $257,490 | $47,250 | $0 | $304,740 | $304,740 |
| 2022 | $234,080 | $47,250 | $0 | $281,330 | $281,330 |
| 2021 | $180,060 | $47,250 | $0 | $227,310 | $227,310 |
| 2020 | $150,050 | $47,250 | $0 | $197,300 | $197,300 |
| 2019 | $155,300 | $42,000 | $0 | $197,300 | $197,300 |
| 2018 | $129,420 | $42,000 | $0 | $171,420 | $171,420 |
| 2017 | $99,550 | $42,000 | $0 | $141,550 | $141,550 |
| 2016 | $99,550 | $42,000 | $0 | $141,550 | $141,550 |
| 2015 | $90,500 | $42,000 | $0 | $132,500 | $132,500 |
| 2014 | $90,500 | $42,000 | $0 | $132,500 | $132,500 |
| 2013 | $85,000 | $42,000 | $0 | $127,000 | $127,000 |
| 2012 | $85,000 | $42,000 | $0 | $0 | $0 |
| 2011 | $85,000 | $42,000 | $0 | $0 | $0 |
| 2010 | $85,400 | $42,000 | $0 | $0 | $0 |
| 2009 | $99,500 | $42,000 | $0 | $0 | $0 |
| 2008 | $66,600 | $21,000 | $0 | $0 | $0 |
| 2007 | $66,600 | $21,000 | $0 | $0 | $0 |
| 2006 | $66,600 | $21,000 | $0 | $0 | $0 |
Deed and Sales History
| 1 | 08/26/2020 | WARRANTY D | WARRANTY DEED | PIERCY JANET A | PIERCY JANET ANN 2020 TRUST | | | | 139765 | 2020-08540 |
| 2 | 08/26/2020 | COMMUNITY | COMMUNITY PROPERTY AGREEMENT | PIERCY ROBERT E & JANET A | PIERCY JANET A | | | | 0 | 2020-08531 |
| 3 | 10/19/2009 | WARRANTY D | WARRANTY DEED | WICKLUND, BONNIE A | PIERCY, ROBERT E & JANET A | | | $127,000.00 | 117504 | 2009-10347 |
| 4 | 11/26/2002 | WARRANTY D | WARRANTY DEED | TERWILLEGAR, JANET CHARLENE | WICKLUND, BONNIE A | | | $88,000.00 | 100903 | 2002-13530 |
| 5 | 10/27/1993 | WARRANTY D | WARRANTY DEED | | | | | $40,000.00 | 80336 | 2129-311086 |
Payout Agreement
| No payout information available.. |