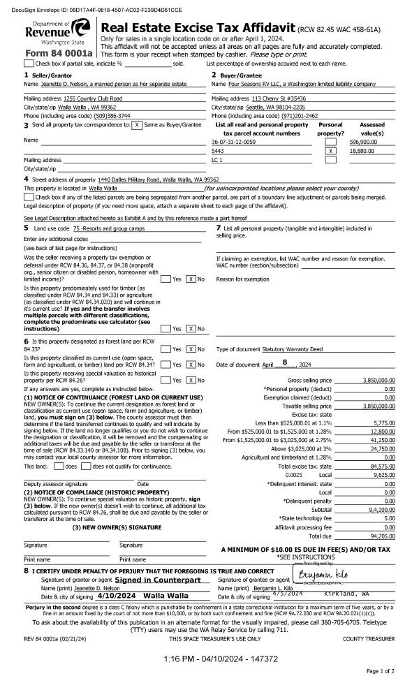
Property
Account |
| Property ID: | 27633 | Abbreviated Legal Description: | ENNIS ANNEX TAX 4 LOT 3 BLK 5 PARCEL 22 |
| Parcel Number: | 360721550522 | Agent Code: | |
| Type: | Real | | |
| Tax Area: | 1 - OL-140-F | Land Use Code | 11 |
| Open Space: | N | DFL | N |
| Historic Property: | N | Remodel Property: | N |
| Multi-Family Redevelopment: | N | | |
| Township: | 7 | Section: | 21 |
| Range: | 36 |
Location |
| Address: | 110 N BLUE ST WA 99362 | Mapsco: | |
| Neighborhood: | A-SFR | Map ID: | |
| Neighborhood CD: | 513011 |
Owner |
| Name: | ANTONSEN ROSS MICHAEL | Owner ID: | 68739 |
| Mailing Address: | 110 N BLUE ST WALLA WALLA, WA 99362 | % Ownership: | 100.0000000000% |
| | | Exemptions: | |
Taxes and Assessment Details
Values
| (+) Improvement Homesite Value: | + | $0 | |
| (+) Improvement Non-Homesite Value: | + | $323,480 | |
| (+) Land Homesite Value: | + | $0 | |
| (+) Land Non-Homesite Value: | + | $63,710 | |
| (+) Curr Use (HS): | + | $0 | $0 |
| (+) Curr Use (NHS): | + | $0 | $0 |
| | | -------------------------- | |
| (=) Market Value: | = | $387,190 | |
| (–) Productivity Loss: | – | $0 | |
| | | -------------------------- | |
| (=) Subtotal: | = | $387,190 | |
| (+) Senior Appraised Value: | + | $0 | |
| (+) Non-Senior Appraised Value: | + | $387,190 | |
| | | -------------------------- | |
| (=) Total Appraised Value: | = | $387,190 | |
| (–) Senior Exemption Loss: | – | $0 | |
| (–) Exemption Loss: | – | $0 | |
| | | -------------------------- | |
| (=) Taxable Value: | = | $387,190 | |
Taxing Jurisdiction
| Owner: | ANTONSEN ROSS MICHAEL | | |
| % Ownership: | 100.0000000000% | | |
| Total Value: | $387,190 | | |
| Tax Area: | 1 - OL-140-F |
| CERFD | CURRENT EXPENSE REFUND 010 | 0.0000000000 | $387,190 | $387,190 | $0.00 | | |
| CURREXP | CURRENT EXPENSE 010 | 1.0175366760 | $387,190 | $387,190 | $393.98 | | |
| HUMNSERV | HUMAN SERVICES 119 | 0.0250000000 | $387,190 | $387,190 | $9.68 | | |
| SLDREL | SOLDIERS RELIEF 121 | 0.0155990005 | $387,190 | $387,190 | $6.04 | | |
| EMERGSER | EMS 147 | 0.3792580840 | $387,190 | $387,190 | $146.84 | | |
| EMSRFD | EMS REFUND 147 | 0.0000000000 | $387,190 | $387,190 | $0.00 | | |
| PORTRFD | PORT REFUND 640 | 0.0000000000 | $387,190 | $387,190 | $0.00 | | |
| PORTWWGEN | PORT OF WW 640 | 0.2460186015 | $387,190 | $387,190 | $95.26 | | |
| SD140BOND | SD #140 BOND 764 | 0.8342371393 | $387,190 | $387,190 | $323.01 | | |
| SD140GEN | SD #140 GENERAL 760 | 2.0646500647 | $387,190 | $387,190 | $799.41 | | |
| ST2 | STATE SCHOOL PART 2 600 | 0.8131451643 | $387,190 | $387,190 | $314.84 | | |
| STATESCHL | STATE SCHOOL 600 | 1.5158548041 | $387,190 | $387,190 | $586.92 | | |
| STREFUND | STATE REFUND LEVY 603 | 0.0000000000 | $387,190 | $387,190 | $0.00 | | |
| CWWBOND | C OF WW BOND 643 | 0.2760494372 | $387,190 | $387,190 | $106.88 | | |
| CWWGEN | CITY OF WW 631 | 1.6100204973 | $387,190 | $387,190 | $623.38 | | |
| CWWRFD | CITY OF WALLA WALLA REFUND 631 | 0.0000000000 | $387,190 | $387,190 | $0.00 | | |
| | Total Tax Rate: | 8.7973694689 | | | | | |
| | | | | Taxes w/Current Exemptions: | $3,406.24 | | |
| | | | | Taxes w/o Exemptions: | $3,406.24 | | |
Improvement / Building
| Improvement #1: | RESIDENTIAL | State Code: | 11 | 1274.0 sqft | Value: | $323,480 |
| Exterior Wall: | STUCCO | Heating/Cooling: | WARM & COOLED AIR | | Number of Bathrooms: | 2 | Number of Bedrooms: | 3 | | Plumbing: | 10 | Roof Covering: | CLAY TILE |
|
| | Type | Description | Class CD | Sub Class CD | Year Built | Area |
| | MA | Main Area | 1 | 30 | 1977 | 1274.0 |
| | SI1 | SITE IMPROVEMENT | 1 | 30 | 1977 | 1.5 |
| | BASE | BASEMENT | 1 | 30 | 1977 | 1274.0 |
| | BRF | BASEMENT - REC FINISH | 1 | 30 | 1977 | 637.0 |
| | RPO | OPEN PORCH W/ROOF | 1 | 30 | 1977 | 147.0 |
| | S1F | Single One Story Fireplace | 1 | 30 | 1977 | 1.0 |
| | BRW | BREEZEWAY | 1 | 30 | 1977 | 196.0 |
| | DTG | Detached Garage | 1 | 30 | 1977 | 484.0 |
| | DTG | Detached Garage | 1 | 30 | 1977 | 440.0 |
Sketch
Property Image
Land
| 1 | RES 1 | Converted: Residential | 0.2857 | 12444.00 | 0.00 | 0.00 | 1.00 | $63,710 | $0 |
Roll Value History
| 2025 | N/A | N/A | N/A | N/A | N/A |
| 2024 | $293,010 | $101,790 | $0 | $394,800 | $394,800 |
| 2023 | $323,480 | $63,710 | $0 | $387,190 | $387,190 |
| 2022 | $323,480 | $63,710 | $0 | $387,190 | $387,190 |
| 2021 | $248,830 | $63,710 | $0 | $312,540 | $312,540 |
| 2020 | $146,370 | $63,710 | $0 | $210,080 | $210,080 |
| 2019 | $146,370 | $63,710 | $0 | $210,080 | $210,080 |
| 2018 | $139,400 | $63,710 | $0 | $203,110 | $203,110 |
| 2017 | $152,840 | $41,800 | $0 | $194,640 | $194,640 |
| 2016 | $138,950 | $41,800 | $0 | $180,750 | $180,750 |
| 2015 | $132,330 | $41,800 | $0 | $174,130 | $174,130 |
| 2014 | $120,300 | $41,800 | $0 | $162,100 | $162,100 |
| 2013 | $120,300 | $41,800 | $0 | $162,100 | $162,100 |
| 2012 | $120,300 | $41,800 | $0 | $0 | $0 |
| 2011 | $120,300 | $41,800 | $0 | $0 | $0 |
| 2010 | $112,600 | $41,800 | $0 | $0 | $0 |
| 2009 | $129,700 | $41,800 | $0 | $0 | $0 |
| 2008 | $129,700 | $41,800 | $0 | $0 | $0 |
| 2007 | $129,700 | $41,800 | $0 | $0 | $0 |
| 2006 | $93,800 | $20,700 | $0 | $0 | $0 |
Deed and Sales History
| 1 | 08/12/2024 | SWD | STATUTORY WARRANTY DEED | ANTONSEN ROSS MICHAEL | PARLOR SELENA & WILLIAM HADDEN | | | $430,000.00 | 148017 | 2024-04435 |
| 2 | 02/01/2021 | QCD | QUIT CLAIM DEED | THE ANTONSEN LIVING TRUST | ANTONSEN ROSS MICHAEL | | | $0.00 | 140856 | 2021-01351 |
| 3 | 10/09/2020 | SWD | STATUTORY WARRANTY DEED | GARVAS PHYLLIS I | THE ANTONSEN LIVING TRUST | | | $337,000.00 | 140081 | 2020-10482 |
| 4 | 01/22/2003 | QCD | QUIT CLAIM DEED | GARVAS, JOHN & PHYLLIS I | GARVAS, JOHN F | | | | 101248 | 2003-00949 |
| 5 | 10/17/1977 | WARRANTY D | WARRANTY DEED | | | | | $53,900.00 | 0 | 6905-69718 |
Payout Agreement
| No payout information available.. |