Property
Account |
| Property ID: | 27530 | Abbreviated Legal Description: | RITZ LOT 9 BLK 17 |
| Parcel Number: | 360730541709 | Agent Code: | |
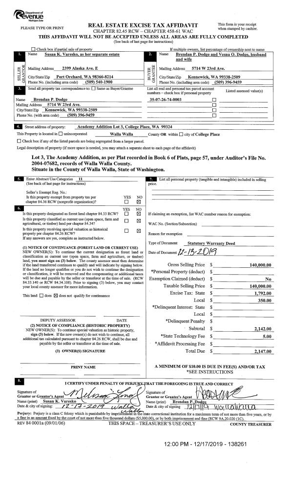
| Type: | Real | | |
| Tax Area: | 1 - OL-140-F | Land Use Code | 11 |
| Open Space: | N | DFL | N |
| Historic Property: | N | Remodel Property: | N |
| Multi-Family Redevelopment: | N | | |
| Township: | 7 | Section: | 30 |
| Range: | 36 |
Location |
| Address: | 1018 W POPLAR ST WA 99362 | Mapsco: | |
| Neighborhood: | COMMERCIAL | Map ID: | |
| Neighborhood CD: | 3302 |
Owner |
| Name: | FLORES VIRGINIA LOPEZ | Owner ID: | 71521 |
| Mailing Address: | 1018 W POPLAR ST WALLA WALLA, WA 99362 | % Ownership: | 100.0000000000% |
| | | Exemptions: | |
Taxes and Assessment Details
Values
| (+) Improvement Homesite Value: | + | $0 | |
| (+) Improvement Non-Homesite Value: | + | $207,440 | |
| (+) Land Homesite Value: | + | $0 | |
| (+) Land Non-Homesite Value: | + | $49,500 | |
| (+) Curr Use (HS): | + | $0 | $0 |
| (+) Curr Use (NHS): | + | $0 | $0 |
| | | -------------------------- | |
| (=) Market Value: | = | $256,940 | |
| (–) Productivity Loss: | – | $0 | |
| | | -------------------------- | |
| (=) Subtotal: | = | $256,940 | |
| (+) Senior Appraised Value: | + | $0 | |
| (+) Non-Senior Appraised Value: | + | $256,940 | |
| | | -------------------------- | |
| (=) Total Appraised Value: | = | $256,940 | |
| (–) Senior Exemption Loss: | – | $0 | |
| (–) Exemption Loss: | – | $0 | |
| | | -------------------------- | |
| (=) Taxable Value: | = | $256,940 | |
Taxing Jurisdiction
| Owner: | FLORES VIRGINIA LOPEZ | | |
| % Ownership: | 100.0000000000% | | |
| Total Value: | $256,940 | | |
| Tax Area: | 1 - OL-140-F |
| CERFD | CURRENT EXPENSE REFUND 010 | 0.0000000000 | $256,940 | $256,940 | $0.00 | | |
| CURREXP | CURRENT EXPENSE 010 | 1.0175366760 | $256,940 | $256,940 | $261.45 | | |
| HUMNSERV | HUMAN SERVICES 119 | 0.0250000000 | $256,940 | $256,940 | $6.42 | | |
| SLDREL | SOLDIERS RELIEF 121 | 0.0155990005 | $256,940 | $256,940 | $4.01 | | |
| EMERGSER | EMS 147 | 0.3792580840 | $256,940 | $256,940 | $97.45 | | |
| EMSRFD | EMS REFUND 147 | 0.0000000000 | $256,940 | $256,940 | $0.00 | | |
| PORTRFD | PORT REFUND 640 | 0.0000000000 | $256,940 | $256,940 | $0.00 | | |
| PORTWWGEN | PORT OF WW 640 | 0.2460186015 | $256,940 | $256,940 | $63.21 | | |
| SD140BOND | SD #140 BOND 764 | 0.8342371393 | $256,940 | $256,940 | $214.35 | | |
| SD140GEN | SD #140 GENERAL 760 | 2.0646500647 | $256,940 | $256,940 | $530.49 | | |
| ST2 | STATE SCHOOL PART 2 600 | 0.8131451643 | $256,940 | $256,940 | $208.93 | | |
| STATESCHL | STATE SCHOOL 600 | 1.5158548041 | $256,940 | $256,940 | $389.48 | | |
| STREFUND | STATE REFUND LEVY 603 | 0.0000000000 | $256,940 | $256,940 | $0.00 | | |
| CWWBOND | C OF WW BOND 643 | 0.2760494372 | $256,940 | $256,940 | $70.93 | | |
| CWWGEN | CITY OF WW 631 | 1.6100204973 | $256,940 | $256,940 | $413.68 | | |
| CWWRFD | CITY OF WALLA WALLA REFUND 631 | 0.0000000000 | $256,940 | $256,940 | $0.00 | | |
| | Total Tax Rate: | 8.7973694689 | | | | | |
| | | | | Taxes w/Current Exemptions: | $2,260.40 | | |
| | | | | Taxes w/o Exemptions: | $2,260.40 | | |
Improvement / Building
| Improvement #1: | RESIDENTIAL | State Code: | 11 | 1956.0 sqft | Value: | $207,440 |
| Exterior Wall: | SIDING | Heating/Cooling: | MINI-SPLIT HP SYSTEM | | Number of Bathrooms: | 1 | Number of Bedrooms: | 4 | | Plumbing: | 7 | Roof Covering: | COMP SHINGLE |
|
| | Type | Description | Class CD | Sub Class CD | Year Built | Area |
| | MA | Main Area | 4 | 25 | 1880 | 1956.0 |
| | UPFL | Upper Floor (included in main area) | 4 | 25 | 1880 | 592.0 |
| | SI1 | SITE IMPROVEMENT | 4 | 25 | 1880 | 2.0 |
| | RPS | PORCH W/STEPS,ROOF | 4 | 25 | 1880 | 16.0 |
| | DTG | Detached Garage | 4 | 25 | 1880 | 216.0 |
Sketch
Property Image
Land
| 1 | RES 1 | Converted: Residential | 0.1377 | 6000.00 | 0.00 | 0.00 | 1.00 | $49,500 | $0 |
Roll Value History
| 2025 | N/A | N/A | N/A | N/A | N/A |
| 2024 | $207,440 | $49,500 | $0 | $256,940 | $256,940 |
| 2023 | $207,440 | $49,500 | $0 | $256,940 | $256,940 |
| 2022 | $207,440 | $49,500 | $0 | $256,940 | $256,940 |
| 2021 | $141,700 | $30,000 | $0 | $171,700 | $171,700 |
| 2020 | $141,700 | $30,000 | $0 | $171,700 | $171,700 |
| 2019 | $91,400 | $30,000 | $0 | $121,400 | $121,400 |
| 2018 | $91,400 | $30,000 | $0 | $121,400 | $121,400 |
| 2017 | $91,400 | $30,000 | $0 | $121,400 | $121,400 |
| 2016 | $91,400 | $30,000 | $0 | $121,400 | $121,400 |
| 2015 | $91,400 | $30,000 | $0 | $121,400 | $121,400 |
| 2014 | $91,400 | $30,000 | $0 | $121,400 | $121,400 |
| 2013 | $91,400 | $30,000 | $0 | $121,400 | $121,400 |
| 2012 | $91,400 | $30,000 | $0 | $0 | $0 |
| 2011 | $91,400 | $30,000 | $0 | $0 | $0 |
| 2010 | $73,200 | $24,400 | $0 | $0 | $0 |
| 2009 | $92,200 | $10,500 | $0 | $0 | $0 |
| 2008 | $49,900 | $10,500 | $0 | $0 | $0 |
| 2007 | $49,900 | $10,500 | $0 | $0 | $0 |
| 2006 | $49,900 | $10,500 | $0 | $0 | $0 |
Deed and Sales History
| 1 | 04/18/2022 | QCD | QUIT CLAIM DEED | RIVERA AARON FLORES | FLORES VIRGINIA LOPEZ | | | | 143789 | 2022-03290 |
| 2 | 04/18/2022 | SWD | STATUTORY WARRANTY DEED | EATON ANDREW H | FLORES VIRGINIA LOPEZ | | | $299,900.00 | 143788 | 2022-03289 |
| 3 | 10/26/2018 | SWP | Special Warranty Deed | FEDERAL HOME LOAN MORTGAGE CORPORATION | EATON ANDREW H | | | $87,500.00 | 135801 | 2018-08855 |
| 4 | 03/22/2018 | WARRANTY D | WARRANTY DEED | PHH MORTGAGE CORPORATION | FEDERAL HOME LOAN MORTGAGE CORPORATION | | | $0.00 | 134383 | 2018-02385 |
| 5 | 03/08/2018 | TRUSTEES D | TRUSTEE'S DEED | AGUILAR AMELIA H | PHH MORTGAGE CORPORATION | | | $110,547.00 | 134276 | 2018-01832 |
| 6 | 05/28/2015 | QCD | QUIT CLAIM DEED | LOZANO JUAN RICARDO & LISA | AGUILAR AMELIA H | | | | 128058 | 2015-04530 |
| 7 | 08/24/2009 | WARRANTY D | WARRANTY DEED | LOZANO, JUAN & LISA | LOZANO, JUAN RICARDO & LISA | | | $138,000.00 | 117224 | 2009-08596 |
| 8 | 11/21/2008 | QCD | QUIT CLAIM DEED | LOZANO, JUAN RICARDO & LISA | LOZANO, JUAN & LISA | | | | 115992 | 2008-11632 |
| 9 | 11/28/2005 | WARRANTY D | WARRANTY DEED | ALEJANDRE, SOCORRO | LOZANO, JUAN RICARDO & LISA | | | $107,600.00 | 109127 | 2005-14921 |
| 10 | 05/10/2005 | QCD | QUIT CLAIM DEED | ALEJANDRE, LUIS HUMBERTO | ALEJANDRE, SOCORRO | | | | 107443 | 2005-05568 |
| 11 | 08/07/1987 | WARRANTY D | WARRANTY DEED | | | | | $21,900.00 | 0 | 1768-902748 |
Payout Agreement
| No payout information available.. |