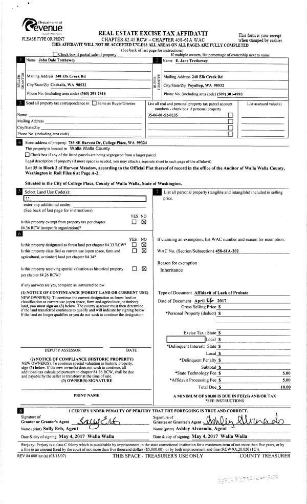
Property
Account |
| Property ID: | 27133 | Abbreviated Legal Description: | RITZ LOT 6 BLK 6 AND TRACTS |
| Parcel Number: | 360730540606 | Agent Code: | |
| Type: | Real | | |
| Tax Area: | 1 - OL-140-F | Land Use Code | 11 |
| Open Space: | N | DFL | N |
| Historic Property: | N | Remodel Property: | N |
| Multi-Family Redevelopment: | N | | |
| Township: | 7 | Section: | 30 |
| Range: | 36 |
Location |
| Address: | 827 WILLOW ST WA 99362 | Mapsco: | |
| Neighborhood: | A-SFR | Map ID: | |
| Neighborhood CD: | 313011 |
Owner |
| Name: | FLORES SESILIO | Owner ID: | 61454 |
| Mailing Address: | 827 WILLOW ST WALLA WALLA, WA 99362 | % Ownership: | 100.0000000000% |
| | | Exemptions: | |
Taxes and Assessment Details
Values
| (+) Improvement Homesite Value: | + | $0 | |
| (+) Improvement Non-Homesite Value: | + | $164,550 | |
| (+) Land Homesite Value: | + | $0 | |
| (+) Land Non-Homesite Value: | + | $63,020 | |
| (+) Curr Use (HS): | + | $0 | $0 |
| (+) Curr Use (NHS): | + | $0 | $0 |
| | | -------------------------- | |
| (=) Market Value: | = | $227,570 | |
| (–) Productivity Loss: | – | $0 | |
| | | -------------------------- | |
| (=) Subtotal: | = | $227,570 | |
| (+) Senior Appraised Value: | + | $0 | |
| (+) Non-Senior Appraised Value: | + | $227,570 | |
| | | -------------------------- | |
| (=) Total Appraised Value: | = | $227,570 | |
| (–) Senior Exemption Loss: | – | $0 | |
| (–) Exemption Loss: | – | $0 | |
| | | -------------------------- | |
| (=) Taxable Value: | = | $227,570 | |
Taxing Jurisdiction
| Owner: | FLORES SESILIO | | |
| % Ownership: | 100.0000000000% | | |
| Total Value: | $227,570 | | |
| Tax Area: | 1 - OL-140-F |
| CERFD | CURRENT EXPENSE REFUND 010 | 0.0000000000 | $227,570 | $227,570 | $0.00 | | |
| CURREXP | CURRENT EXPENSE 010 | 1.0175366760 | $227,570 | $227,570 | $231.56 | | |
| HUMNSERV | HUMAN SERVICES 119 | 0.0250000000 | $227,570 | $227,570 | $5.69 | | |
| SLDREL | SOLDIERS RELIEF 121 | 0.0155990005 | $227,570 | $227,570 | $3.55 | | |
| EMERGSER | EMS 147 | 0.3792580840 | $227,570 | $227,570 | $86.31 | | |
| EMSRFD | EMS REFUND 147 | 0.0000000000 | $227,570 | $227,570 | $0.00 | | |
| PORTRFD | PORT REFUND 640 | 0.0000000000 | $227,570 | $227,570 | $0.00 | | |
| PORTWWGEN | PORT OF WW 640 | 0.2460186015 | $227,570 | $227,570 | $55.99 | | |
| SD140BOND | SD #140 BOND 764 | 0.8342371393 | $227,570 | $227,570 | $189.85 | | |
| SD140GEN | SD #140 GENERAL 760 | 2.0646500647 | $227,570 | $227,570 | $469.85 | | |
| ST2 | STATE SCHOOL PART 2 600 | 0.8131451643 | $227,570 | $227,570 | $185.05 | | |
| STATESCHL | STATE SCHOOL 600 | 1.5158548041 | $227,570 | $227,570 | $344.96 | | |
| STREFUND | STATE REFUND LEVY 603 | 0.0000000000 | $227,570 | $227,570 | $0.00 | | |
| CWWBOND | C OF WW BOND 643 | 0.2760494372 | $227,570 | $227,570 | $62.82 | | |
| CWWGEN | CITY OF WW 631 | 1.6100204973 | $227,570 | $227,570 | $366.39 | | |
| CWWRFD | CITY OF WALLA WALLA REFUND 631 | 0.0000000000 | $227,570 | $227,570 | $0.00 | | |
| | Total Tax Rate: | 8.7973694689 | | | | | |
| | | | | Taxes w/Current Exemptions: | $2,002.02 | | |
| | | | | Taxes w/o Exemptions: | $2,002.02 | | |
Improvement / Building
| Improvement #1: | RESIDENTIAL | State Code: | 11 | 1055.0 sqft | Value: | $164,550 |
| Exterior Wall: | VINYL | Heating/Cooling: | BASEBOARD ELECTRIC | | Number of Bathrooms: | 1 | Number of Bedrooms: | 2 | | Plumbing: | 7 | Roof Covering: | COMP SHINGLE |
|
| | Type | Description | Class CD | Sub Class CD | Year Built | Area |
| | MA | Main Area | 1 | 30 | 1900 | 1055.0 |
| | SI1 | SITE IMPROVEMENT | 1 | 30 | 0 | 1.0 |
| | RPS | PORCH W/STEPS,ROOF | 1 | 30 | 1900 | 42.0 |
| | OSP | Open | 1 | 30 | 1900 | 12.0 |
Sketch
Property Image
Land
| 1 | RES 1 | Converted: Residential | 0.1860 | 8100.00 | 0.00 | 0.00 | 1.00 | $63,020 | $0 |
Roll Value History
| 2025 | N/A | N/A | N/A | N/A | N/A |
| 2024 | $197,470 | $63,020 | $0 | $260,490 | $260,490 |
| 2023 | $164,550 | $63,020 | $0 | $227,570 | $227,570 |
| 2022 | $126,580 | $63,020 | $0 | $189,600 | $189,600 |
| 2021 | $148,330 | $25,900 | $0 | $174,230 | $174,230 |
| 2020 | $105,950 | $25,900 | $0 | $131,850 | $131,850 |
| 2019 | $105,950 | $25,900 | $0 | $131,850 | $131,850 |
| 2018 | $100,900 | $25,900 | $0 | $126,800 | $126,800 |
| 2017 | $96,100 | $25,900 | $0 | $122,000 | $122,000 |
| 2016 | $91,520 | $25,900 | $0 | $117,420 | $117,420 |
| 2015 | $91,520 | $25,900 | $0 | $117,420 | $117,420 |
| 2014 | $83,200 | $25,900 | $0 | $109,100 | $109,100 |
| 2013 | $83,200 | $25,900 | $0 | $109,100 | $109,100 |
| 2012 | $83,200 | $25,900 | $0 | $0 | $0 |
| 2011 | $83,200 | $25,900 | $0 | $0 | $0 |
| 2010 | $62,200 | $25,900 | $0 | $0 | $0 |
| 2009 | $79,600 | $13,100 | $0 | $0 | $0 |
| 2008 | $38,400 | $13,100 | $0 | $0 | $0 |
| 2007 | $38,400 | $13,100 | $0 | $0 | $0 |
| 2006 | $38,400 | $13,100 | $0 | $0 | $0 |
Deed and Sales History
| 1 | 07/11/2017 | QCD | QUIT CLAIM DEED | DE FLORES REYNA ROQUE | FLORES SESILIO | | | | 132758 | 2017-05308 |
| 2 | 07/11/2017 | SWD | STATUTORY WARRANTY DEED | ZAMORA SIERRA R | FLORES SESILIO | | | $131,000.00 | 132757 | 2017-05307 |
| 3 | 07/02/2009 | WARRANTY D | WARRANTY DEED | GAVIN, JAMIE | ZAMORA, SIERRA R | | | $116,500.00 | 116968 | 2009-06713 |
| 4 | 10/15/2007 | QCD | QUIT CLAIM DEED | GAVIN, JAMIE | GAVIN, JAMIE & VALENCHIA | | | | 113886 | 2007-12038 |
| 5 | 07/05/2007 | QCD | QUIT CLAIM DEED | LINEBAUGH, PAUL & SHERRIE | GAVIN, JAMIE | | | $75,000.00 | 113212 | 2007-07706 |
| 6 | 02/21/2006 | QCD | QUIT CLAIM DEED | COBB, GRANT C | LINEBAUGH, PAUL & SHERRIE | | | | 109690 | 2006-02007 |
| 7 | 01/26/2001 | WARRANTY D | WARRANTY DEED | | | | | $59,000.00 | 96521 | 3070-100804 |
Payout Agreement
| No payout information available.. |