Property
Account |
| Property ID: | 27131 | Abbreviated Legal Description: | ROBERTS LTS 1 & 2 BLK 38 (N) & TAX 1 BLK 38 (N) |
| Parcel Number: | 360729873801 | Agent Code: | |
| Type: | Real | | |
| Tax Area: | 1 - OL-140-F | Land Use Code | 12 |
| Open Space: | N | DFL | N |
| Historic Property: | N | Remodel Property: | N |
| Multi-Family Redevelopment: | N | | |
| Township: | 7 | Section: | 29 |
| Range: | 36 |
Location |
| Address: | 124 WHITMAN ST WA 99362 | Mapsco: | |
| Neighborhood: | G SFR Multi Res | Map ID: | |
| Neighborhood CD: | 514081 |
Owner |
| Name: | LINFOOT/BOURASSA FAMILY TRUST | Owner ID: | 70444 |
| Mailing Address: | 801 CATALINA AVE SEAL BEACH, CA 90740 | % Ownership: | 100.0000000000% |
| | | Exemptions: | |
Taxes and Assessment Details
Values
| (+) Improvement Homesite Value: | + | $0 | |
| (+) Improvement Non-Homesite Value: | + | $835,040 | |
| (+) Land Homesite Value: | + | $0 | |
| (+) Land Non-Homesite Value: | + | $82,330 | |
| (+) Curr Use (HS): | + | $0 | $0 |
| (+) Curr Use (NHS): | + | $0 | $0 |
| | | -------------------------- | |
| (=) Market Value: | = | $917,370 | |
| (–) Productivity Loss: | – | $0 | |
| | | -------------------------- | |
| (=) Subtotal: | = | $917,370 | |
| (+) Senior Appraised Value: | + | $0 | |
| (+) Non-Senior Appraised Value: | + | $917,370 | |
| | | -------------------------- | |
| (=) Total Appraised Value: | = | $917,370 | |
| (–) Senior Exemption Loss: | – | $0 | |
| (–) Exemption Loss: | – | $0 | |
| | | -------------------------- | |
| (=) Taxable Value: | = | $917,370 | |
Taxing Jurisdiction
| Owner: | LINFOOT/BOURASSA FAMILY TRUST | | |
| % Ownership: | 100.0000000000% | | |
| Total Value: | $917,370 | | |
| Tax Area: | 1 - OL-140-F |
| CERFD | CURRENT EXPENSE REFUND 010 | 0.0000000000 | $917,370 | $917,370 | $0.00 | | |
| CURREXP | CURRENT EXPENSE 010 | 1.0175366760 | $917,370 | $917,370 | $933.46 | | |
| HUMNSERV | HUMAN SERVICES 119 | 0.0250000000 | $917,370 | $917,370 | $22.93 | | |
| SLDREL | SOLDIERS RELIEF 121 | 0.0155990005 | $917,370 | $917,370 | $14.31 | | |
| EMERGSER | EMS 147 | 0.3792580840 | $917,370 | $917,370 | $347.92 | | |
| EMSRFD | EMS REFUND 147 | 0.0000000000 | $917,370 | $917,370 | $0.00 | | |
| PORTRFD | PORT REFUND 640 | 0.0000000000 | $917,370 | $917,370 | $0.00 | | |
| PORTWWGEN | PORT OF WW 640 | 0.2460186015 | $917,370 | $917,370 | $225.69 | | |
| SD140BOND | SD #140 BOND 764 | 0.8342371393 | $917,370 | $917,370 | $765.30 | | |
| SD140GEN | SD #140 GENERAL 760 | 2.0646500647 | $917,370 | $917,370 | $1,894.05 | | |
| ST2 | STATE SCHOOL PART 2 600 | 0.8131451643 | $917,370 | $917,370 | $745.95 | | |
| STATESCHL | STATE SCHOOL 600 | 1.5158548041 | $917,370 | $917,370 | $1,390.60 | | |
| STREFUND | STATE REFUND LEVY 603 | 0.0000000000 | $917,370 | $917,370 | $0.00 | | |
| CWWBOND | C OF WW BOND 643 | 0.2760494372 | $917,370 | $917,370 | $253.24 | | |
| CWWGEN | CITY OF WW 631 | 1.6100204973 | $917,370 | $917,370 | $1,476.98 | | |
| CWWRFD | CITY OF WALLA WALLA REFUND 631 | 0.0000000000 | $917,370 | $917,370 | $0.00 | | |
| | Total Tax Rate: | 8.7973694689 | | | | | |
| | | | | Taxes w/Current Exemptions: | $8,070.43 | | |
| | | | | Taxes w/o Exemptions: | $8,070.43 | | |
Improvement / Building
| Improvement #1: | RESIDENTIAL | State Code: | 12 | 2363.0 sqft | Value: | $665,330 |
| Exterior Wall: | COMMON BRICK | Foundation: | SLAB FOUNDATION | | Heating/Cooling: | BASEBOARD HOT WATER | Number of Bathrooms: | 3 | | Number of Bedrooms: | 3 | Plumbing: | 10 | | Roof Covering: | COMP SHINGLE |   |   |
|
| | Type | Description | Class CD | Sub Class CD | Year Built | Area |
| | MA | Main Area | 4 | 50 | 1916 | 2363.0 |
| | UPFL | Upper Floor (included in main area) | 4 | 50 | 1916 | 677.0 |
| | SI1 | SITE IMPROVEMENT | 4 | 50 | 1916 | 4.5 |
| | BASE | BASEMENT | 4 | 50 | 1916 | 720.0 |
| | S1F | Single One Story Fireplace | 4 | 50 | 1916 | 1.0 |
| | PRC | PORCH W STEPS, ROOF,CEILED | 4 | 50 | 1916 | 396.0 |
| | DTG | Detached Garage | 4 | 50 | 1916 | 960.0 |
| Improvement #2: | RESIDENTIAL | State Code: | 12 | 960.0 sqft | Value: | $169,710 |
| Exterior Wall: | SIDING | Foundation: | SLAB FOUNDATION | | Heating/Cooling: | FORCED AIR | Number of Bathrooms: | 2 | | Number of Bedrooms: | 2 | Plumbing: | 12 | | Roof Covering: | COMP SHINGLE |   |   |
|
| | Type | Description | Class CD | Sub Class CD | Year Built | Area |
| | MA | Main Area | 2 | 30 | 1940 | 960.0 |
| | UPFL | Upper Floor (included in main area) | 2 | 30 | 1940 | 480.0 |
| | SI1 | SITE IMPROVEMENT | 2 | 30 | 1940 | 1.0 |
| | EWS | EXT WOOD STAIRS | 2 | 30 | 1940 | 1.0 |
| | RPO | OPEN PORCH W/ROOF | 2 | 30 | 1940 | 16.0 |
| | CPCD | CARPORT/DIRT FLOOR | 2 | 30 | 1940 | 480.0 |
Sketch
Property Image
Land
| 1 | RES 1 | Converted: Residential | 0.6385 | 27813.00 | 0.00 | 0.00 | 1.00 | $82,330 | $0 |
Roll Value History
| 2025 | N/A | N/A | N/A | N/A | N/A |
| 2024 | $812,500 | $113,200 | $0 | $925,700 | $925,700 |
| 2023 | $835,040 | $82,330 | $0 | $917,370 | $917,370 |
| 2022 | $835,040 | $82,330 | $0 | $917,370 | $917,370 |
| 2021 | $759,130 | $82,330 | $0 | $841,460 | $841,460 |
| 2020 | $506,080 | $82,330 | $0 | $588,410 | $588,410 |
| 2019 | $506,080 | $82,330 | $0 | $588,410 | $588,410 |
| 2018 | $506,080 | $82,330 | $0 | $588,410 | $588,410 |
| 2017 | $388,410 | $55,700 | $0 | $444,110 | $444,110 |
| 2016 | $388,410 | $55,700 | $0 | $444,110 | $444,110 |
| 2015 | $388,410 | $55,700 | $0 | $444,110 | $444,110 |
| 2014 | $353,100 | $55,700 | $0 | $408,800 | $408,800 |
| 2013 | $353,100 | $55,700 | $0 | $408,800 | $408,800 |
| 2012 | $353,100 | $55,700 | $0 | $0 | $0 |
| 2011 | $353,100 | $55,700 | $0 | $0 | $0 |
| 2010 | $237,000 | $55,700 | $0 | $0 | $0 |
| 2009 | $269,500 | $55,700 | $0 | $0 | $0 |
| 2008 | $269,500 | $55,700 | $0 | $0 | $0 |
| 2007 | $269,500 | $55,700 | $0 | $0 | $0 |
| 2006 | $173,100 | $24,400 | $0 | $0 | $0 |
Deed and Sales History
| 1 | 10/13/2021 | WARRANTY D | WARRANTY DEED | LINFOOT PETER A & LOUISE M BOURASSA | LINFOOT/BOURASSA FAMILY TRUST | | | $0.00 | 142652 | 2021-12431 |
| 2 | 11/15/2019 | SWD | STATUTORY WARRANTY DEED | LAING PATRICK | LINFOOT PETER A & LOUISE M BOURASSA | | | $876,500.00 | 138093 | 2019-09453 |
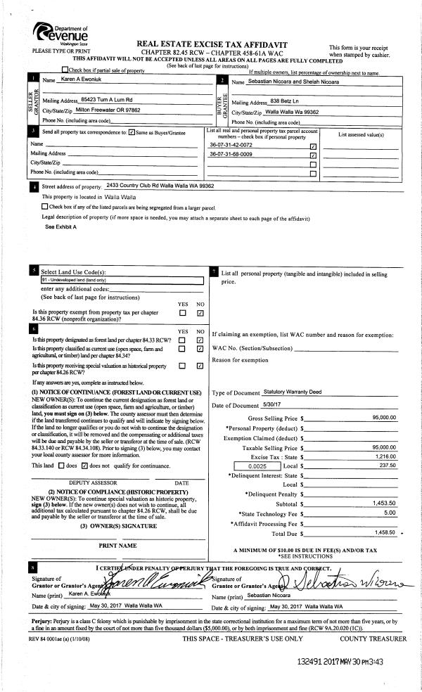
| 3 | 07/31/2017 | SWD | STATUTORY WARRANTY DEED | SMITH ROBERT K & SHANA S | LAING PATRICK | | | $612,000.00 | 132881 | 2017-05838 |
| 4 | 06/17/2009 | WARRANTY D | WARRANTY DEED | EARLE, REGINA M | SMITH, ROBERT K SHANA S | | | $445,000.00 | 116888 | 2009-06102 |
| 5 | 10/02/2002 | WARRANTY D | WARRANTY DEED | GOULD, DAVID | EARLE, REGINA M | | | $299,900.00 | 100489 | 2002-11052 |
| 6 | 03/27/2000 | WARRANTY D | WARRANTY DEED | | | | | $180,900.00 | 94780 | 2960-002935 |
Payout Agreement
| No payout information available.. |