Property
Account |
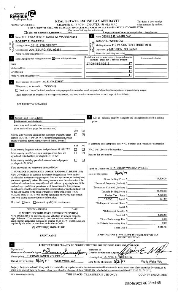
| Property ID: | 27114 | Abbreviated Legal Description: | BUCK'S SUBDIV OF BLK 2 CP #2 LOT 11 BLK 3 |
| Parcel Number: | 350736520311 | Agent Code: | |
| Type: | Real | | |
| Tax Area: | 75 - CP 250 | Land Use Code | 11 |
| Open Space: | N | DFL | N |
| Historic Property: | N | Remodel Property: | N |
| Multi-Family Redevelopment: | N | | |
| Township: | 7 | Section: | 36 |
| Range: | 35 |
Location |
| Address: | 430 SE 4TH ST WA 99324 | Mapsco: | |
| Neighborhood: | A SFR | Map ID: | |
| Neighborhood CD: | 113011 |
Owner |
| Name: | MARTINEZ GERARDO DELGADO | Owner ID: | 61151 |
| Mailing Address: | 430 SE 4TH ST COLLEGE PLACE, WA 99324 | % Ownership: | 100.0000000000% |
| | | Exemptions: | |
Taxes and Assessment Details
Values
| (+) Improvement Homesite Value: | + | $0 | |
| (+) Improvement Non-Homesite Value: | + | $260,780 | |
| (+) Land Homesite Value: | + | $0 | |
| (+) Land Non-Homesite Value: | + | $61,030 | |
| (+) Curr Use (HS): | + | $0 | $0 |
| (+) Curr Use (NHS): | + | $0 | $0 |
| | | -------------------------- | |
| (=) Market Value: | = | $321,810 | |
| (–) Productivity Loss: | – | $0 | |
| | | -------------------------- | |
| (=) Subtotal: | = | $321,810 | |
| (+) Senior Appraised Value: | + | $0 | |
| (+) Non-Senior Appraised Value: | + | $321,810 | |
| | | -------------------------- | |
| (=) Total Appraised Value: | = | $321,810 | |
| (–) Senior Exemption Loss: | – | $0 | |
| (–) Exemption Loss: | – | $0 | |
| | | -------------------------- | |
| (=) Taxable Value: | = | $321,810 | |
Taxing Jurisdiction
| Owner: | MARTINEZ GERARDO DELGADO | | |
| % Ownership: | 100.0000000000% | | |
| Total Value: | $321,810 | | |
| Tax Area: | 75 - CP 250 |
| CERFD | CURRENT EXPENSE REFUND 010 | 0.0000000000 | $321,810 | $321,810 | $0.00 | | |
| CURREXP | CURRENT EXPENSE 010 | 1.0175366760 | $321,810 | $321,810 | $327.45 | | |
| HUMNSERV | HUMAN SERVICES 119 | 0.0250000000 | $321,810 | $321,810 | $8.05 | | |
| SLDREL | SOLDIERS RELIEF 121 | 0.0155990005 | $321,810 | $321,810 | $5.02 | | |
| COLLPLBOND | C OF CP BOND 644 | 0.4374241808 | $321,810 | $321,810 | $140.77 | | |
| COLLPLGEN | CITY OF CP 632 | 1.4453819216 | $321,810 | $321,810 | $465.14 | | |
| EMERGSER | EMS 147 | 0.3792580840 | $321,810 | $321,810 | $122.05 | | |
| EMSRFD | EMS REFUND 147 | 0.0000000000 | $321,810 | $321,810 | $0.00 | | |
| RURALLIB | RURAL LIBRARY 623 | 0.3710609029 | $321,810 | $321,810 | $119.41 | | |
| PORTRFD | PORT REFUND 640 | 0.0000000000 | $321,810 | $321,810 | $0.00 | | |
| PORTWWGEN | PORT OF WW 640 | 0.2460186015 | $321,810 | $321,810 | $79.17 | | |
| SD250BOND | SD #250 BOND 773 | 1.4560608159 | $321,810 | $321,810 | $468.57 | | |
| SD250GEN | SD #250 GENERAL 770 | 2.3880724087 | $321,810 | $321,810 | $768.51 | | |
| ST2 | STATE SCHOOL PART 2 600 | 0.8131451643 | $321,810 | $321,810 | $261.68 | | |
| STATESCHL | STATE SCHOOL 600 | 1.5158548041 | $321,810 | $321,810 | $487.82 | | |
| STREFUND | STATE REFUND LEVY 603 | 0.0000000000 | $321,810 | $321,810 | $0.00 | | |
| | Total Tax Rate: | 10.1104125603 | | | | | |
| | | | | Taxes w/Current Exemptions: | $3,253.64 | | |
| | | | | Taxes w/o Exemptions: | $3,253.64 | | |
Improvement / Building
| Improvement #1: | RESIDENTIAL | State Code: | 11 | 920.0 sqft | Value: | $260,780 |
| Exterior Wall: | CEMENT FIBER | Heating/Cooling: | WARM & COOLED AIR | | Number of Bathrooms: | 2 | Number of Bedrooms: | 3 | | Plumbing: | 10 | Roof Covering: | COMP SHINGLE |
|
| | Type | Description | Class CD | Sub Class CD | Year Built | Area |
| | MA | Main Area | 1 | 30 | 1946 | 920.0 |
| | SI1 | SITE IMPROVEMENT | 1 | 30 | 1946 | 3.0 |
| | BASE | BASEMENT | 1 | 30 | 1946 | 832.0 |
| | BPF | BASEMENT -PARTITIONED FINISH | 1 | 30 | 1946 | 832.0 |
| | PRC | PORCH W STEPS, ROOF,CEILED | 1 | 30 | 2019 | 196.0 |
| | ATG | Attached Garage | 1 | 30 | 1946 | 728.5 |
| | RPO | OPEN PORCH W/ROOF | 1 | 30 | 2019 | 144.0 |
| | LOFT | Loft Area | 1 | 30 | 1946 | 336.0 |
Sketch
Property Image
Land
| 1 | RES 1 | Converted: Residential | 0.2182 | 9506.00 | 0.00 | 0.00 | 1.00 | $61,030 | $0 |
Roll Value History
| 2025 | N/A | N/A | N/A | N/A | N/A |
| 2024 | $260,780 | $61,030 | $0 | $321,810 | $321,810 |
| 2023 | $260,780 | $61,030 | $0 | $321,810 | $321,810 |
| 2022 | $237,070 | $61,030 | $0 | $298,100 | $298,100 |
| 2021 | $161,460 | $61,030 | $0 | $222,490 | $222,490 |
| 2020 | $134,550 | $61,030 | $0 | $195,580 | $195,580 |
| 2019 | $131,920 | $46,700 | $0 | $178,620 | $178,620 |
| 2018 | $114,710 | $46,700 | $0 | $161,410 | $161,410 |
| 2017 | $114,710 | $46,700 | $0 | $161,410 | $161,410 |
| 2016 | $99,750 | $46,700 | $0 | $146,450 | $146,450 |
| 2015 | $95,000 | $46,700 | $0 | $141,700 | $141,700 |
| 2014 | $95,000 | $46,700 | $0 | $141,700 | $141,700 |
| 2013 | $95,000 | $46,700 | $0 | $141,700 | $141,700 |
| 2012 | $110,700 | $46,700 | $0 | $0 | $0 |
| 2011 | $110,700 | $46,700 | $0 | $0 | $0 |
| 2010 | $84,500 | $46,700 | $0 | $0 | $0 |
| 2009 | $99,100 | $46,700 | $0 | $0 | $0 |
| 2008 | $70,500 | $24,300 | $0 | $0 | $0 |
| 2007 | $70,500 | $24,300 | $0 | $0 | $0 |
| 2006 | $70,500 | $24,300 | $0 | $0 | $0 |
Deed and Sales History
| 1 | 06/28/2017 | SWD | STATUTORY WARRANTY DEED | DOLAN MYRNA MAE | MARTINEZ GERARDO DELGADO | | | $159,000.00 | 132674 | 2017-04953 |
| 2 | 06/26/2009 | WARRANTY D | WARRANTY DEED | ROOTVIK, AMY C | DOLAN, MYRNA MAE | | | $160,000.00 | 116924 | 2009-06471 |
| 3 | 09/29/2006 | WARRANTY D | WARRANTY DEED | HARRIS, DONNA | ROOTVIK, AMY C | | | $158,000.00 | 111336 | 2006-11759 |
| 4 | 04/05/1982 | QCD | QUIT CLAIM DEED | | | | | $35,000.00 | 0 | 1889-102673 |
Payout Agreement
| No payout information available.. |