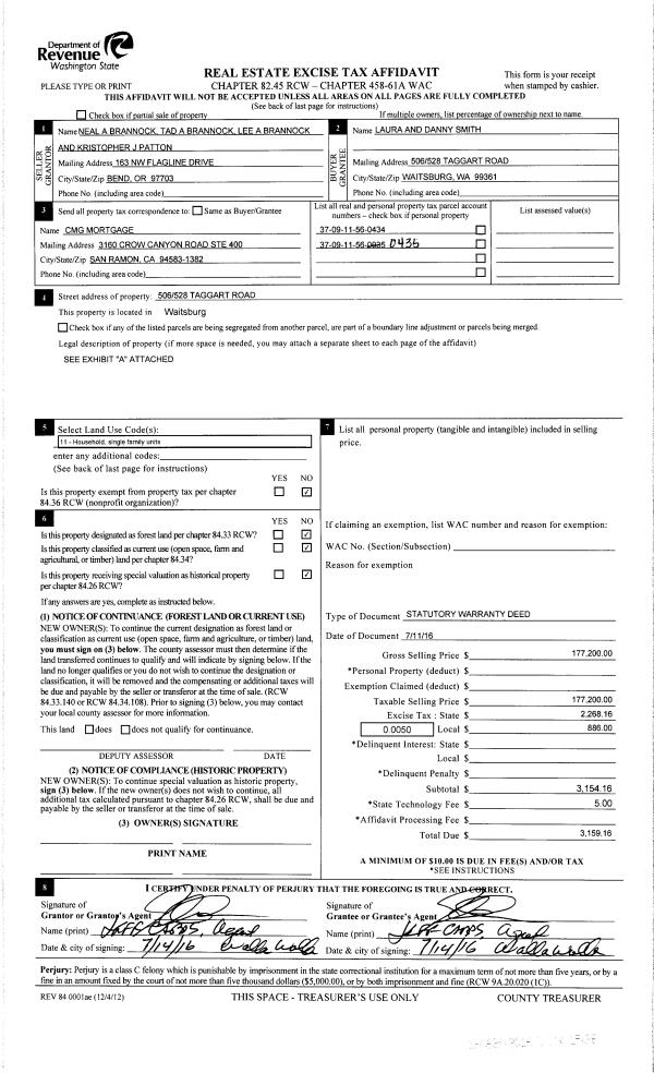
Property
Account |
| Property ID: | 27070 | Abbreviated Legal Description: | HENDERSON TAX 3 BLK 42 PLUS VAC 10' STRIP TO E. |
| Parcel Number: | 360729684203 | Agent Code: | |
| Type: | Real | | |
| Tax Area: | 1 - OL-140-F | Land Use Code | 11 |
| Open Space: | N | DFL | N |
| Historic Property: | N | Remodel Property: | N |
| Multi-Family Redevelopment: | N | | |
| Township: | 7 | Section: | 29 |
| Range: | 36 |
Location |
| Address: | 101 W MORTON ST WA 99362 | Mapsco: | |
| Neighborhood: | Fair Res | Map ID: | |
| Neighborhood CD: | 612011 |
Owner |
| Name: | LONGBRAKE SONDRA C | Owner ID: | 66524 |
| Mailing Address: | LEA B LONGBRAKE 101 W MORTON ST WALLA WALLA, WA 99362 | % Ownership: | 100.0000000000% |
| | | Exemptions: | |
Taxes and Assessment Details
Values
| (+) Improvement Homesite Value: | + | $0 | |
| (+) Improvement Non-Homesite Value: | + | $264,550 | |
| (+) Land Homesite Value: | + | $0 | |
| (+) Land Non-Homesite Value: | + | $68,730 | |
| (+) Curr Use (HS): | + | $0 | $0 |
| (+) Curr Use (NHS): | + | $0 | $0 |
| | | -------------------------- | |
| (=) Market Value: | = | $333,280 | |
| (–) Productivity Loss: | – | $0 | |
| | | -------------------------- | |
| (=) Subtotal: | = | $333,280 | |
| (+) Senior Appraised Value: | + | $0 | |
| (+) Non-Senior Appraised Value: | + | $333,280 | |
| | | -------------------------- | |
| (=) Total Appraised Value: | = | $333,280 | |
| (–) Senior Exemption Loss: | – | $0 | |
| (–) Exemption Loss: | – | $0 | |
| | | -------------------------- | |
| (=) Taxable Value: | = | $333,280 | |
Taxing Jurisdiction
| Owner: | LONGBRAKE SONDRA C | | |
| % Ownership: | 100.0000000000% | | |
| Total Value: | $333,280 | | |
| Tax Area: | 1 - OL-140-F |
| CERFD | CURRENT EXPENSE REFUND 010 | 0.0000000000 | $333,280 | $333,280 | $0.00 | | |
| CURREXP | CURRENT EXPENSE 010 | 1.0175366760 | $333,280 | $333,280 | $339.12 | | |
| HUMNSERV | HUMAN SERVICES 119 | 0.0250000000 | $333,280 | $333,280 | $8.33 | | |
| SLDREL | SOLDIERS RELIEF 121 | 0.0155990005 | $333,280 | $333,280 | $5.20 | | |
| EMERGSER | EMS 147 | 0.3792580840 | $333,280 | $333,280 | $126.40 | | |
| EMSRFD | EMS REFUND 147 | 0.0000000000 | $333,280 | $333,280 | $0.00 | | |
| PORTRFD | PORT REFUND 640 | 0.0000000000 | $333,280 | $333,280 | $0.00 | | |
| PORTWWGEN | PORT OF WW 640 | 0.2460186015 | $333,280 | $333,280 | $81.99 | | |
| SD140BOND | SD #140 BOND 764 | 0.8342371393 | $333,280 | $333,280 | $278.03 | | |
| SD140GEN | SD #140 GENERAL 760 | 2.0646500647 | $333,280 | $333,280 | $688.11 | | |
| ST2 | STATE SCHOOL PART 2 600 | 0.8131451643 | $333,280 | $333,280 | $271.01 | | |
| STATESCHL | STATE SCHOOL 600 | 1.5158548041 | $333,280 | $333,280 | $505.20 | | |
| STREFUND | STATE REFUND LEVY 603 | 0.0000000000 | $333,280 | $333,280 | $0.00 | | |
| CWWBOND | C OF WW BOND 643 | 0.2760494372 | $333,280 | $333,280 | $92.00 | | |
| CWWGEN | CITY OF WW 631 | 1.6100204973 | $333,280 | $333,280 | $536.59 | | |
| CWWRFD | CITY OF WALLA WALLA REFUND 631 | 0.0000000000 | $333,280 | $333,280 | $0.00 | | |
| | Total Tax Rate: | 8.7973694689 | | | | | |
| | | | | Taxes w/Current Exemptions: | $2,931.98 | | |
| | | | | Taxes w/o Exemptions: | $2,931.98 | | |
Improvement / Building
| Improvement #1: | RESIDENTIAL | State Code: | 11 | 1296.0 sqft | Value: | $264,550 |
| Exterior Wall: | STUCCO | Heating/Cooling: | WARM & COOLED AIR | | Number of Bathrooms: | 1 | Number of Bedrooms: | 3 | | Plumbing: | 7 | Roof Covering: | COMP SHINGLE |
|
| | Type | Description | Class CD | Sub Class CD | Year Built | Area |
| | MA | Main Area | 1 | 30 | 1900 | 1296.0 |
| | SI1 | SITE IMPROVEMENT | 1 | 30 | 1900 | 2.0 |
| | BASE | BASEMENT | 1 | 30 | 1900 | 121.0 |
| | RPO | OPEN PORCH W/ROOF | 1 | 30 | 1900 | 92.0 |
| | CPCS | CARPORT/SHED OR FLAT ROOF | 1 | 30 | 1900 | 352.0 |
| | CPCS | CARPORT/SHED OR FLAT ROOF | 1 | 30 | 1900 | 396.0 |
| | DTG | Detached Garage | 1 | 30 | 1900 | 528.0 |
Sketch
Property Image
Land
| 1 | RES 1 | Converted: Residential | 0.2293 | 9990.00 | 0.00 | 0.00 | 1.00 | $68,730 | $0 |
Roll Value History
| 2025 | N/A | N/A | N/A | N/A | N/A |
| 2024 | $264,550 | $68,730 | $0 | $333,280 | $333,280 |
| 2023 | $264,550 | $68,730 | $0 | $333,280 | $333,280 |
| 2022 | $220,460 | $53,850 | $0 | $274,310 | $274,310 |
| 2021 | $183,710 | $53,850 | $0 | $237,560 | $237,560 |
| 2020 | $159,750 | $53,850 | $0 | $213,600 | $213,600 |
| 2019 | $159,750 | $53,850 | $0 | $213,600 | $213,600 |
| 2018 | $154,090 | $47,100 | $0 | $201,190 | $201,190 |
| 2017 | $154,090 | $47,100 | $0 | $201,190 | $201,190 |
| 2016 | $94,380 | $47,100 | $0 | $141,480 | $141,480 |
| 2015 | $94,380 | $47,100 | $0 | $141,480 | $141,480 |
| 2014 | $85,800 | $47,100 | $0 | $132,900 | $132,900 |
| 2013 | $85,800 | $47,100 | $0 | $132,900 | $132,900 |
| 2012 | $87,300 | $47,100 | $0 | $0 | $0 |
| 2011 | $87,300 | $47,100 | $0 | $0 | $0 |
| 2010 | $87,300 | $47,100 | $0 | $0 | $0 |
| 2009 | $102,200 | $47,100 | $0 | $0 | $0 |
| 2008 | $102,200 | $47,100 | $0 | $0 | $0 |
| 2007 | $75,800 | $20,000 | $0 | $0 | $0 |
| 2006 | $75,800 | $20,000 | $0 | $0 | $0 |
Deed and Sales History
| 1 | 09/28/2023 | SWD | STATUTORY WARRANTY DEED | LONGBRAKE SONDRA C | LOPEZ OMAR & ASHLEY BLISS | | | $349,000.00 | 146546 | 2023-05683 |
| 2 | 01/09/2020 | SWD | STATUTORY WARRANTY DEED | MARTIN SHARON E | LONGBRAKE SONDRA C | | | $240,000.00 | 138391 | 2020-00215 |
| 3 | 12/07/2016 | QCD | QUIT CLAIM DEED | KNEE ARVID | MARTIN MARY MORSE | | | | 131559 | 2016-10044 |
| 4 | 12/07/2016 | SWD | STATUTORY WARRANTY DEED | OLSON FAMILY TRUST | MARTIN SHARON E | | | $208,000.00 | 131558 | 2016-10043 |
| 5 | 06/15/2009 | QCD | QUIT CLAIM DEED | OLSON, MARY A | OLSON, RICHARD H & MARY A~TRUS | | | | 116880 | 2009-06019 |
| 6 | 12/30/1999 | WARRANTY D | WARRANTY DEED | | | | | $85,000.00 | 42951 | 2939-914458 |
Payout Agreement
| No payout information available.. |