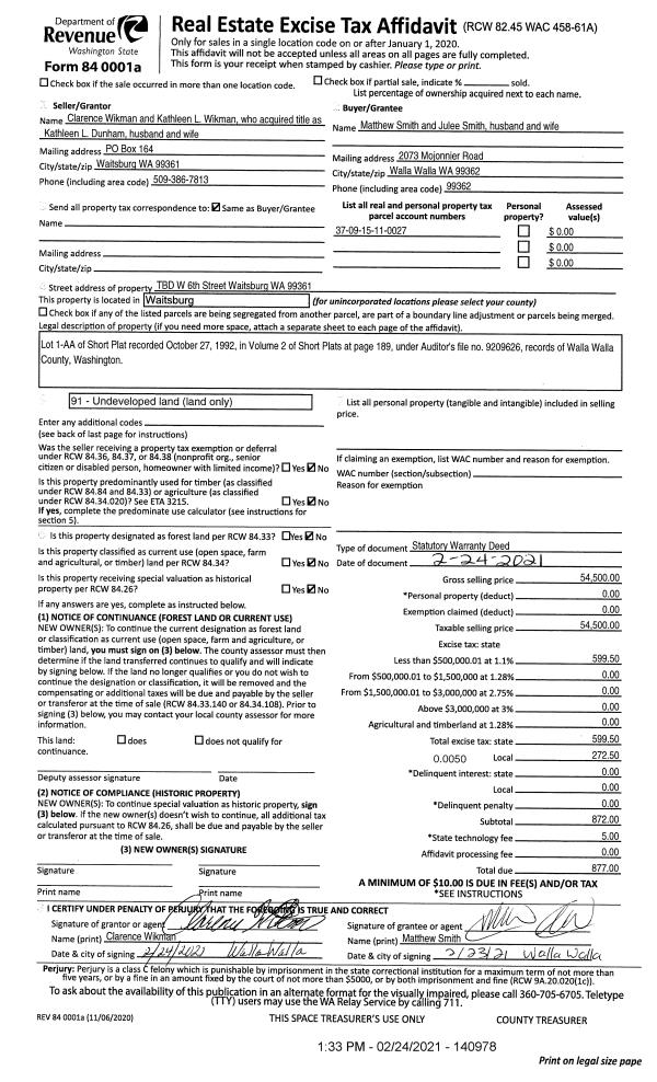
Property
Account |
| Property ID: | 2704 | Abbreviated Legal Description: | LTS 9,10, PTN 11 LYING N OF INLAND EMPIRE HWY BLK 4 GARDNERS'S ADDN |
| Parcel Number: | 330734530409 | Agent Code: | |
| Type: | Real | | |
| Tax Area: | 318 - 300-6-TM | Land Use Code | 11 |
| Open Space: | N | DFL | N |
| Historic Property: | N | Remodel Property: | N |
| Multi-Family Redevelopment: | N | | |
| Township: | 7 | Section: | 34 |
| Range: | 33 |
Location |
| Address: | 16592 OLD HWY 12 WA 99360 | Mapsco: | |
| Neighborhood: | A Touchet/Lowden SFR | Map ID: | |
| Neighborhood CD: | 213611 |
Owner |
| Name: | ORTIZ-VEGA MOISES | Owner ID: | 62631 |
| Mailing Address: | IVETH GOMEZ SALGADO 16592 HIGHWAY 12 TOUCHET, WA 99360 | % Ownership: | 100.0000000000% |
| | | Exemptions: | |
Taxes and Assessment Details
Values
| (+) Improvement Homesite Value: | + | $0 | |
| (+) Improvement Non-Homesite Value: | + | $18,500 | |
| (+) Land Homesite Value: | + | $0 | |
| (+) Land Non-Homesite Value: | + | $43,500 | |
| (+) Curr Use (HS): | + | $0 | $0 |
| (+) Curr Use (NHS): | + | $0 | $0 |
| | | -------------------------- | |
| (=) Market Value: | = | $62,000 | |
| (–) Productivity Loss: | – | $0 | |
| | | -------------------------- | |
| (=) Subtotal: | = | $62,000 | |
| (+) Senior Appraised Value: | + | $0 | |
| (+) Non-Senior Appraised Value: | + | $62,000 | |
| | | -------------------------- | |
| (=) Total Appraised Value: | = | $62,000 | |
| (–) Senior Exemption Loss: | – | $0 | |
| (–) Exemption Loss: | – | $0 | |
| | | -------------------------- | |
| (=) Taxable Value: | = | $62,000 | |
Taxing Jurisdiction
| Owner: | ORTIZ-VEGA MOISES | | |
| % Ownership: | 100.0000000000% | | |
| Total Value: | $62,000 | | |
| Tax Area: | 318 - 300-6-TM |
| CERFD | CURRENT EXPENSE REFUND 010 | 0.0000000000 | $62,000 | $62,000 | $0.00 | | |
| CURREXP | CURRENT EXPENSE 010 | 1.0175366760 | $62,000 | $62,000 | $63.09 | | |
| HUMNSERV | HUMAN SERVICES 119 | 0.0250000000 | $62,000 | $62,000 | $1.55 | | |
| SLDREL | SOLDIERS RELIEF 121 | 0.0155990005 | $62,000 | $62,000 | $0.97 | | |
| EMERGSER | EMS 147 | 0.3792580840 | $62,000 | $62,000 | $23.51 | | |
| EMSRFD | EMS REFUND 147 | 0.0000000000 | $62,000 | $62,000 | $0.00 | | |
| FD6EXP | FD #6 EXPENSE 693 | 0.6692985746 | $62,000 | $62,000 | $41.50 | | |
| RLBRFD | RURAL LIBRARY REFUND 623 | 0.0000000000 | $62,000 | $62,000 | $0.00 | | |
| RURALLIB | RURAL LIBRARY 623 | 0.3710609029 | $62,000 | $62,000 | $23.01 | | |
| PORTRFD | PORT REFUND 640 | 0.0000000000 | $62,000 | $62,000 | $0.00 | | |
| PORTWWGEN | PORT OF WW 640 | 0.2460186015 | $62,000 | $62,000 | $15.25 | | |
| SD300BOND | SD #300 BOND 783 | 1.8964951620 | $62,000 | $62,000 | $117.58 | | |
| SD300GEN | SD #300 GENERAL 780 | 2.1198322866 | $62,000 | $62,000 | $131.43 | | |
| ST2 | STATE SCHOOL PART 2 600 | 0.8131451643 | $62,000 | $62,000 | $50.42 | | |
| STATESCHL | STATE SCHOOL 600 | 1.5158548041 | $62,000 | $62,000 | $93.98 | | |
| STREFUND | STATE REFUND LEVY 603 | 0.0000000000 | $62,000 | $62,000 | $0.00 | | |
| COROAD | COUNTY ROAD 115 | 1.6549953990 | $62,000 | $62,000 | $102.61 | | |
| CRPRD | COUNTY ROAD REFUND 115 | 0.0000000000 | $62,000 | $62,000 | $0.00 | | |
| | Total Tax Rate: | 10.7240946555 | | | | | |
| | | | | Taxes w/Current Exemptions: | $664.90 | | |
| | | | | Taxes w/o Exemptions: | $664.90 | | |
Improvement / Building
| Improvement #1: | RESIDENTIAL | State Code: | 11 | 840.0 sqft | Value: | $18,500 |
| Exterior Wall: | METAL/STEEL | Heating/Cooling: | BASEBOARD ELECTRIC | | Number of Bathrooms: | 1 | Number of Bedrooms: | 2 | | Plumbing: | 6 | Roof Covering: | GALVANIZED METAL |
|
| | Type | Description | Class CD | Sub Class CD | Year Built | Area |
| | MOBHOME | MANUFACTURD HOMES | 1 | 20 | 1981 | 840.0 |
| | MI1 | MH SET-UP COSTS | 1 | 20 | 2022 | 1.0 |
| | CPC | COVERED CARPORT/PATIO | 1 | 10 | 1930 | 156.0 |
| | TOOL | TOOL SHED | 1 | 10 | 1930 | 156.0 |
| | CPCD | CARPORT/DIRT FLOOR | 1 | 10 | 1930 | 156.0 |
Sketch
Property Image
Land
| 1 | RES 1 | Converted: Residential | 0.2296 | 10000.00 | 0.00 | 0.00 | 1.00 | $43,500 | $0 |
Roll Value History
| 2025 | N/A | N/A | N/A | N/A | N/A |
| 2024 | $20,350 | $43,500 | $0 | $63,850 | $63,850 |
| 2023 | $18,500 | $43,500 | $0 | $62,000 | $62,000 |
| 2022 | $18,500 | $43,500 | $0 | $62,000 | $62,000 |
| 2021 | $2,840 | $43,500 | $0 | $46,340 | $46,340 |
| 2020 | $2,840 | $30,000 | $0 | $32,840 | $32,840 |
| 2019 | $10,460 | $30,000 | $0 | $40,460 | $40,460 |
| 2018 | $20,930 | $30,000 | $0 | $50,930 | $50,930 |
| 2017 | $27,900 | $30,000 | $0 | $57,900 | $57,900 |
| 2016 | $27,900 | $30,000 | $0 | $57,900 | $57,900 |
| 2015 | $27,900 | $30,000 | $0 | $57,900 | $57,900 |
| 2014 | $27,900 | $30,000 | $0 | $57,900 | $57,900 |
| 2013 | $27,900 | $30,000 | $0 | $57,900 | $57,900 |
| 2012 | $27,900 | $30,000 | $0 | $0 | $0 |
| 2011 | $27,900 | $30,000 | $0 | $0 | $0 |
| 2010 | $27,900 | $30,000 | $0 | $0 | $0 |
| 2009 | $36,200 | $15,000 | $0 | $0 | $0 |
| 2008 | $15,100 | $15,000 | $0 | $0 | $0 |
| 2007 | $15,100 | $15,000 | $0 | $0 | $0 |
| 2006 | $15,100 | $15,000 | $0 | $0 | $0 |
Deed and Sales History
| 1 | 02/21/2020 | MH AFFIDAV | MOBILE HOME AFFIDAVIT | VERDUZCO SERGIO M | ORTIZ-VEGA MOISES | | | $200.00 | 138652 | MHAFF-138652 |
| 2 | 02/23/2018 | REAL ESTAT | REAL ESTATE CONTRACT | POLITTE DAN L | ORTIZ-VEGA MOISES | | | $50,000.00 | 134197 | 2018-01494 |
| 3 | 07/19/2016 | TAX AFF | TAX AFFIDAVIT | WALLA WALLA COUNTY | POLITTE DAN L | | | $6,959.00 | 130654 | 2016-05650 |
| 4 | 01/24/2003 | QCD | QUIT CLAIM DEED | BURRILL, FRANCIS JR | AGUIRRE, DEBORAH RICHARDS | | | $1,300.00 | 101267 | 2003-01076 |
| 5 | 01/22/1979 | QCD | QUIT CLAIM DEED | | | | | $5,500.00 | 0 | 9679-00702 |
Payout Agreement
| No payout information available.. |