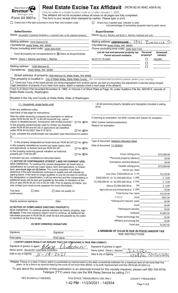
Property
Account |
| Property ID: | 27038 | Abbreviated Legal Description: | BLALOCK ORCHARDS LOT 4 OF S/P (SLY PTNS LOTS 1 & 2) BLK 26 |
| Parcel Number: | 350725522630 | Agent Code: | |
| Type: | Real | | |
| Tax Area: | 311 - 250-4 | Land Use Code | 11 |
| Open Space: | N | DFL | N |
| Historic Property: | N | Remodel Property: | N |
| Multi-Family Redevelopment: | N | | |
| Township: | 7 | Section: | 25 |
| Range: | 35 |
Location |
| Address: | 511 NE DAMSON AVE WA 99324 | Mapsco: | |
| Neighborhood: | MH A Rural/City Infl | Map ID: | |
| Neighborhood CD: | 313062 |
Owner |
| Name: | CASTRO OSVALDO PADILLA | Owner ID: | 64496 |
| Mailing Address: | 511 NE DAMSON AVE WALLA WALLA, WA 99362 | % Ownership: | 100.0000000000% |
| | | Exemptions: | |
Taxes and Assessment Details
Values
| (+) Improvement Homesite Value: | + | $0 | |
| (+) Improvement Non-Homesite Value: | + | $211,310 | |
| (+) Land Homesite Value: | + | $0 | |
| (+) Land Non-Homesite Value: | + | $132,560 | |
| (+) Curr Use (HS): | + | $0 | $0 |
| (+) Curr Use (NHS): | + | $0 | $0 |
| | | -------------------------- | |
| (=) Market Value: | = | $343,870 | |
| (–) Productivity Loss: | – | $0 | |
| | | -------------------------- | |
| (=) Subtotal: | = | $343,870 | |
| (+) Senior Appraised Value: | + | $0 | |
| (+) Non-Senior Appraised Value: | + | $343,870 | |
| | | -------------------------- | |
| (=) Total Appraised Value: | = | $343,870 | |
| (–) Senior Exemption Loss: | – | $0 | |
| (–) Exemption Loss: | – | $0 | |
| | | -------------------------- | |
| (=) Taxable Value: | = | $343,870 | |
Taxing Jurisdiction
| Owner: | CASTRO OSVALDO PADILLA | | |
| % Ownership: | 100.0000000000% | | |
| Total Value: | $343,870 | | |
| Tax Area: | 311 - 250-4 |
| CERFD | CURRENT EXPENSE REFUND 010 | 0.0000000000 | $343,870 | $343,870 | $0.00 | | |
| CURREXP | CURRENT EXPENSE 010 | 1.0175366760 | $343,870 | $343,870 | $349.90 | | |
| HUMNSERV | HUMAN SERVICES 119 | 0.0250000000 | $343,870 | $343,870 | $8.60 | | |
| SLDREL | SOLDIERS RELIEF 121 | 0.0155990005 | $343,870 | $343,870 | $5.36 | | |
| EMERGSER | EMS 147 | 0.3792580840 | $343,870 | $343,870 | $130.42 | | |
| EMSRFD | EMS REFUND 147 | 0.0000000000 | $343,870 | $343,870 | $0.00 | | |
| FD4EXP | FD #4 EXPENSE 686 | 0.8836993059 | $343,870 | $343,870 | $303.88 | | |
| RLBRFD | RURAL LIBRARY REFUND 623 | 0.0000000000 | $343,870 | $343,870 | $0.00 | | |
| RURALLIB | RURAL LIBRARY 623 | 0.3710609029 | $343,870 | $343,870 | $127.60 | | |
| PORTRFD | PORT REFUND 640 | 0.0000000000 | $343,870 | $343,870 | $0.00 | | |
| PORTWWGEN | PORT OF WW 640 | 0.2460186015 | $343,870 | $343,870 | $84.60 | | |
| SD250BOND | SD #250 BOND 773 | 1.4560608159 | $343,870 | $343,870 | $500.70 | | |
| SD250GEN | SD #250 GENERAL 770 | 2.3880724087 | $343,870 | $343,870 | $821.19 | | |
| ST2 | STATE SCHOOL PART 2 600 | 0.8131451643 | $343,870 | $343,870 | $279.62 | | |
| STATESCHL | STATE SCHOOL 600 | 1.5158548041 | $343,870 | $343,870 | $521.26 | | |
| STREFUND | STATE REFUND LEVY 603 | 0.0000000000 | $343,870 | $343,870 | $0.00 | | |
| COROAD | COUNTY ROAD 115 | 1.6549953990 | $343,870 | $343,870 | $569.10 | | |
| CRPRD | COUNTY ROAD REFUND 115 | 0.0000000000 | $343,870 | $343,870 | $0.00 | | |
| | Total Tax Rate: | 10.7663011628 | | | | | |
| | | | | Taxes w/Current Exemptions: | $3,702.23 | | |
| | | | | Taxes w/o Exemptions: | $3,702.23 | | |
Improvement / Building
| Improvement #1: | MANUFACTURED HOME | State Code: | 11 | 1144.0 sqft | Value: | $211,310 |
| Exterior Wall: | HARDBOARD | Heating/Cooling: | WARM & COOLED AIR | | Number of Bathrooms: | 2 | Number of Bedrooms: | 3 | | Plumbing: | 9 | Roof Covering: | COMP SHINGLE |
|
| | Type | Description | Class CD | Sub Class CD | Year Built | Area |
| | MOBHOME | MANUFACTURD HOMES | 1 | 30 | 1995 | 1144.0 |
| | MI1 | MH SET-UP COSTS | 1 | 30 | 0 | 1.0 |
| | RPO | OPEN PORCH W/ROOF | 1 | 30 | 1995 | 308.0 |
| | UTST | Utility Storage Shed | 1 | 30 | 1995 | 315.0 |
| | LOAF-SHED | LOAFING SHED | 1 | 30 | 1995 | 368.0 |
| | POL2 | POLE BUILDING-CONCRETE | 1 | 30 | 1995 | 900.0 |
Sketch
Property Image
Land
| 1 | RES 1 | Converted: Residential | 1.3300 | 0.00 | 0.00 | 0.00 | 1.00 | $132,560 | $0 |
Roll Value History
| 2025 | N/A | N/A | N/A | N/A | N/A |
| 2024 | $253,570 | $132,560 | $0 | $386,130 | $386,130 |
| 2023 | $211,310 | $132,560 | $0 | $343,870 | $343,870 |
| 2022 | $176,090 | $132,560 | $0 | $308,650 | $308,650 |
| 2021 | $153,920 | $77,600 | $0 | $231,520 | $231,520 |
| 2020 | $153,920 | $77,600 | $0 | $231,520 | $231,520 |
| 2019 | $149,320 | $77,600 | $0 | $226,920 | $226,920 |
| 2018 | $109,550 | $77,600 | $0 | $187,150 | $187,150 |
| 2017 | $73,030 | $77,600 | $0 | $150,630 | $150,630 |
| 2016 | $73,030 | $77,600 | $0 | $150,630 | $150,630 |
| 2015 | $73,300 | $77,600 | $0 | $150,900 | $150,900 |
| 2014 | $73,300 | $77,600 | $0 | $150,900 | $150,900 |
| 2013 | $73,300 | $77,600 | $0 | $150,900 | $150,900 |
| 2012 | $59,600 | $77,600 | $0 | $0 | $0 |
| 2011 | $59,600 | $77,600 | $0 | $0 | $0 |
| 2010 | $83,500 | $77,600 | $0 | $0 | $0 |
| 2009 | $132,700 | $46,300 | $0 | $0 | $0 |
| 2008 | $47,900 | $46,300 | $0 | $0 | $0 |
| 2007 | $47,900 | $46,300 | $0 | $0 | $0 |
| 2006 | $47,900 | $46,300 | $0 | $0 | $0 |
Deed and Sales History
| 1 | 01/10/2019 | SWD | STATUTORY WARRANTY DEED | FULLEN ROBERT E & CRYSTAL C | CASTRO OSVALDO PADILLA | | | $236,000.00 | 136235 | 2019-00225 |
| 2 | 06/03/2009 | QCD | QUIT CLAIM DEED | ROBERTSON, CRYSTAL C | FULLEN, ROBERT E & CRYSTAL C | | | | 116831 | 2009-05567 |
| 3 | 09/14/2007 | WARRANTY D | WARRANTY DEED | BENNETT, JOSEPH A & JOANNE | ROBERTSON, CRYSTAL C | | | $184,900.00 | 113726 | 2007-10839 |
| 4 | 07/27/1995 | WARRANTY D | WARRANTY DEED | | | | | $30,500.00 | 84434 | 2329-506913 |
Payout Agreement
| No payout information available.. |