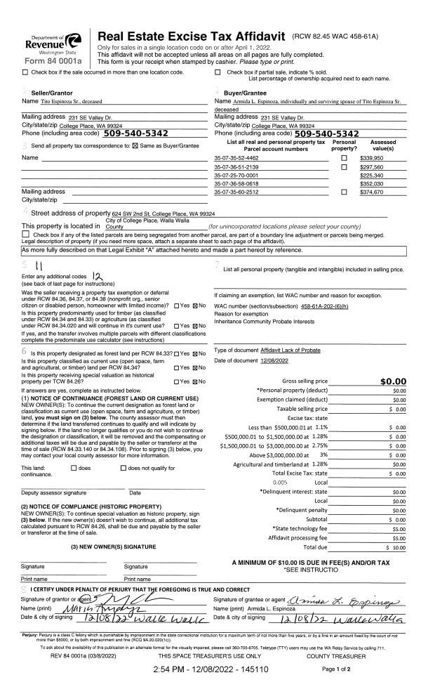
Property
Account |
| Property ID: | 26988 | Abbreviated Legal Description: | 22-7-36 TAX 23A |
| Parcel Number: | 360722330028 | Agent Code: | |
| Type: | Real | | |
| Tax Area: | 6 - OL-140-F-FB | Land Use Code | 11 |
| Open Space: | N | DFL | N |
| Historic Property: | N | Remodel Property: | N |
| Multi-Family Redevelopment: | N | | |
| Township: | 7 | Section: | 22 |
| Range: | 36 |
Location |
| Address: | 1685 RUTH ST WA 99362 | Mapsco: | |
| Neighborhood: | A SFR | Map ID: | |
| Neighborhood CD: | 413011 |
Owner |
| Name: | SZUCH WILLIAM A & BONNIE M | Owner ID: | 47221 |
| Mailing Address: | 427 E CENTER KALISPELL, MT 59901 | % Ownership: | 100.0000000000% |
| | | Exemptions: | |
Taxes and Assessment Details
Values
| (+) Improvement Homesite Value: | + | $0 | |
| (+) Improvement Non-Homesite Value: | + | $275,030 | |
| (+) Land Homesite Value: | + | $0 | |
| (+) Land Non-Homesite Value: | + | $85,280 | |
| (+) Curr Use (HS): | + | $0 | $0 |
| (+) Curr Use (NHS): | + | $0 | $0 |
| | | -------------------------- | |
| (=) Market Value: | = | $360,310 | |
| (–) Productivity Loss: | – | $0 | |
| | | -------------------------- | |
| (=) Subtotal: | = | $360,310 | |
| (+) Senior Appraised Value: | + | $0 | |
| (+) Non-Senior Appraised Value: | + | $360,310 | |
| | | -------------------------- | |
| (=) Total Appraised Value: | = | $360,310 | |
| (–) Senior Exemption Loss: | – | $0 | |
| (–) Exemption Loss: | – | $0 | |
| | | -------------------------- | |
| (=) Taxable Value: | = | $360,310 | |
Taxing Jurisdiction
| Owner: | SZUCH WILLIAM A & BONNIE M | | |
| % Ownership: | 100.0000000000% | | |
| Total Value: | $360,310 | | |
| Tax Area: | 6 - OL-140-F-FB |
| CERFD | CURRENT EXPENSE REFUND 010 | 0.0000000000 | $360,310 | $360,310 | $0.00 | | |
| CURREXP | CURRENT EXPENSE 010 | 1.0175366760 | $360,310 | $360,310 | $366.63 | | |
| HUMNSERV | HUMAN SERVICES 119 | 0.0250000000 | $360,310 | $360,310 | $9.01 | | |
| SLDREL | SOLDIERS RELIEF 121 | 0.0155990005 | $360,310 | $360,310 | $5.62 | | |
| EMERGSER | EMS 147 | 0.3792580840 | $360,310 | $360,310 | $136.65 | | |
| EMSRFD | EMS REFUND 147 | 0.0000000000 | $360,310 | $360,310 | $0.00 | | |
| PORTRFD | PORT REFUND 640 | 0.0000000000 | $360,310 | $360,310 | $0.00 | | |
| PORTWWGEN | PORT OF WW 640 | 0.2460186015 | $360,310 | $360,310 | $88.64 | | |
| SD140BOND | SD #140 BOND 764 | 0.8342371393 | $360,310 | $360,310 | $300.58 | | |
| SD140GEN | SD #140 GENERAL 760 | 2.0646500647 | $360,310 | $360,310 | $743.91 | | |
| ST2 | STATE SCHOOL PART 2 600 | 0.8131451643 | $360,310 | $360,310 | $292.98 | | |
| STATESCHL | STATE SCHOOL 600 | 1.5158548041 | $360,310 | $360,310 | $546.18 | | |
| STREFUND | STATE REFUND LEVY 603 | 0.0000000000 | $360,310 | $360,310 | $0.00 | | |
| CWWBOND | C OF WW BOND 643 | 0.2760494372 | $360,310 | $360,310 | $99.46 | | |
| CWWGEN | CITY OF WW 631 | 1.6100204973 | $360,310 | $360,310 | $580.11 | | |
| CWWRFD | CITY OF WALLA WALLA REFUND 631 | 0.0000000000 | $360,310 | $360,310 | $0.00 | | |
| | Total Tax Rate: | 8.7973694689 | | | | | |
| | | | | Taxes w/Current Exemptions: | $3,169.77 | | |
| | | | | Taxes w/o Exemptions: | $3,169.77 | | |
Improvement / Building
| Improvement #1: | RESIDENTIAL | State Code: | 11 | 1246.0 sqft | Value: | $275,030 |
| Exterior Wall: | SIDING | Heating/Cooling: | BASEBOARD ELECTRIC | | Number of Bathrooms: | 2 | Number of Bedrooms: | 3 | | Plumbing: | 9 | Roof Covering: | COMP SHINGLE |
|
| | Type | Description | Class CD | Sub Class CD | Year Built | Area |
| | MA | Main Area | 1 | 30 | 1969 | 1246.0 |
| | CPCD | CARPORT/DIRT FLOOR | 1 | 30 | 0 | 200.0 |
| | SI1 | SITE IMPROVEMENT | 1 | 30 | 0 | 2.5 |
| | BASE | BASEMENT | 1 | 30 | 1969 | 1246.0 |
| | BPF | BASEMENT -PARTITIONED FINISH | 1 | 30 | 1969 | 926.0 |
| | DTG | Detached Garage | 1 | 30 | 1969 | 572.0 |
| | S1F | Single One Story Fireplace | 1 | 30 | 1969 | 1.0 |
| | RPC | OPEN PORCH W/ROOF , CEILED | 1 | 30 | 1969 | 88.0 |
| | CPC | COVERED CARPORT/PATIO | 1 | 30 | 1969 | 400.0 |
| | CPC | COVERED CARPORT/PATIO | 1 | 30 | 1969 | 504.0 |
Sketch
Property Image
Land
| 1 | RES 1 | Converted: Residential | 0.4341 | 18909.40 | 0.00 | 0.00 | 1.00 | $85,280 | $0 |
Roll Value History
| 2025 | N/A | N/A | N/A | N/A | N/A |
| 2024 | $275,030 | $85,280 | $0 | $360,310 | $360,310 |
| 2023 | $275,030 | $85,280 | $0 | $360,310 | $360,310 |
| 2022 | $277,210 | $59,560 | $0 | $336,770 | $336,770 |
| 2021 | $205,340 | $59,560 | $0 | $264,900 | $264,900 |
| 2020 | $128,340 | $59,560 | $0 | $187,900 | $187,900 |
| 2019 | $128,340 | $59,560 | $0 | $187,900 | $187,900 |
| 2018 | $116,670 | $59,560 | $0 | $176,230 | $176,230 |
| 2017 | $116,670 | $59,560 | $0 | $176,230 | $176,230 |
| 2016 | $115,080 | $46,700 | $0 | $161,780 | $161,780 |
| 2015 | $115,080 | $46,700 | $0 | $161,780 | $161,780 |
| 2014 | $109,600 | $46,700 | $0 | $156,300 | $156,300 |
| 2013 | $109,600 | $46,700 | $0 | $156,300 | $156,300 |
| 2012 | $102,200 | $46,700 | $0 | $0 | $0 |
| 2011 | $101,700 | $46,700 | $0 | $0 | $0 |
| 2010 | $101,700 | $46,700 | $0 | $0 | $0 |
| 2009 | $118,200 | $46,700 | $0 | $0 | $0 |
| 2008 | $118,200 | $46,700 | $0 | $0 | $0 |
| 2007 | $118,200 | $46,700 | $0 | $0 | $0 |
| 2006 | $89,400 | $22,600 | $0 | $0 | $0 |
Deed and Sales History
| 1 | 05/26/2009 | WARRANTY D | WARRANTY DEED | MC CRAE, KATHLEEN N | SZUCH, WILLIAM A & BONNIE M | | | $155,000.00 | 116787 | 2009-05245 |
| 2 | 05/23/2008 | WARRANTY D | WARRANTY DEED | COMMERCIAL UNION INSURANCE CO | MC CRAE, KATHLEEN N | | | $135,000.00 | 115068 | 2008-05190 |
| 3 | 01/06/2006 | SURVEY | SURVEY | | | 9 | 285 | | 0 | 2006-00194 |
| 4 | 09/04/1975 | WARRANTY D | WARRANTY DEED | | | | | $35,000.00 | 0 | 3105-47588 |
Payout Agreement
| No payout information available.. |