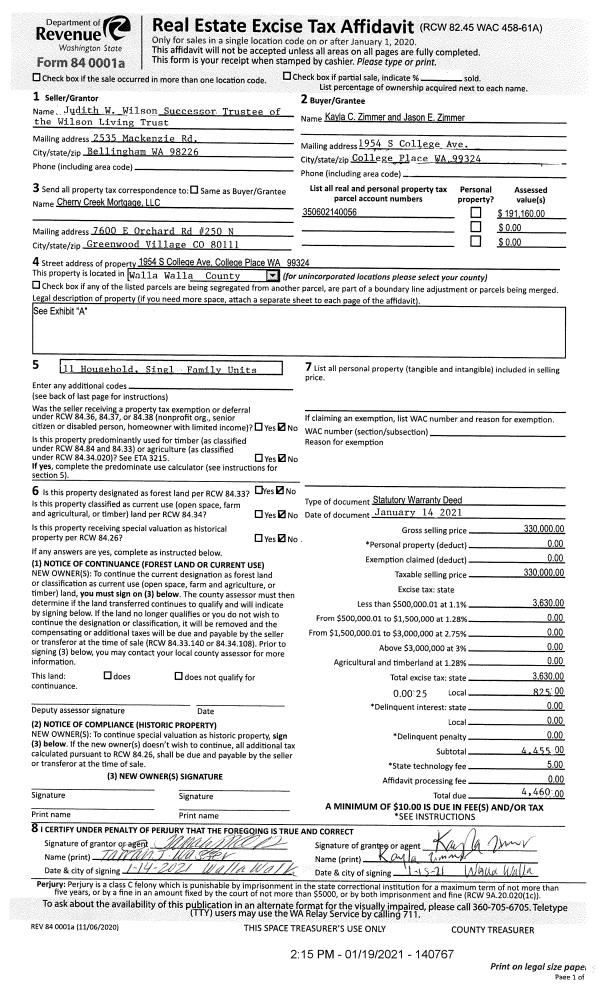
Property
Account |
| Property ID: | 26889 | Abbreviated Legal Description: | HARRISON & RAY INC ADD LOT 13 BLK 3 |
| Parcel Number: | 300812570313 | Agent Code: | |
| Type: | Real | | |
| Tax Area: | 331 - 400-M-5-W4 | Land Use Code | 11 |
| Open Space: | N | DFL | N |
| Historic Property: | N | Remodel Property: | N |
| Multi-Family Redevelopment: | N | | |
| Township: | 8 | Section: | 12 |
| Range: | 30 |
Location |
| Address: | 241 ADAIR RD WA 99323 | Mapsco: | |
| Neighborhood: | Burbank A MH | Map ID: | |
| Neighborhood CD: | 213761 |
Owner |
| Name: | CHAVEZ FRANCISCO L | Owner ID: | 49177 |
| Mailing Address: | 241 ADAIR RD BURBANK, WA 99323 | % Ownership: | 100.0000000000% |
| | | Exemptions: | |
Taxes and Assessment Details
Values
| (+) Improvement Homesite Value: | + | $0 | |
| (+) Improvement Non-Homesite Value: | + | $5,400 | |
| (+) Land Homesite Value: | + | $0 | |
| (+) Land Non-Homesite Value: | + | $61,310 | |
| (+) Curr Use (HS): | + | $0 | $0 |
| (+) Curr Use (NHS): | + | $0 | $0 |
| | | -------------------------- | |
| (=) Market Value: | = | $66,710 | |
| (–) Productivity Loss: | – | $0 | |
| | | -------------------------- | |
| (=) Subtotal: | = | $66,710 | |
| (+) Senior Appraised Value: | + | $0 | |
| (+) Non-Senior Appraised Value: | + | $66,710 | |
| | | -------------------------- | |
| (=) Total Appraised Value: | = | $66,710 | |
| (–) Senior Exemption Loss: | – | $0 | |
| (–) Exemption Loss: | – | $0 | |
| | | -------------------------- | |
| (=) Taxable Value: | = | $66,710 | |
Taxing Jurisdiction
| Owner: | CHAVEZ FRANCISCO L | | |
| % Ownership: | 100.0000000000% | | |
| Total Value: | $66,710 | | |
| Tax Area: | 331 - 400-M-5-W4 |
| CERFD | CURRENT EXPENSE REFUND 010 | 0.0000000000 | $66,710 | $66,710 | $0.00 | | |
| CURREXP | CURRENT EXPENSE 010 | 1.0175366760 | $66,710 | $66,710 | $67.88 | | |
| HUMNSERV | HUMAN SERVICES 119 | 0.0250000000 | $66,710 | $66,710 | $1.67 | | |
| SLDREL | SOLDIERS RELIEF 121 | 0.0155990005 | $66,710 | $66,710 | $1.04 | | |
| EMERGSER | EMS 147 | 0.3792580840 | $66,710 | $66,710 | $25.30 | | |
| EMSRFD | EMS REFUND 147 | 0.0000000000 | $66,710 | $66,710 | $0.00 | | |
| FD5EXP | FD #5 EXPENSE 689 | 1.2045331840 | $66,710 | $66,710 | $80.35 | | |
| RLBRFD | RURAL LIBRARY REFUND 623 | 0.0000000000 | $66,710 | $66,710 | $0.00 | | |
| RURALLIB | RURAL LIBRARY 623 | 0.3710609029 | $66,710 | $66,710 | $24.75 | | |
| PORTRFD | PORT REFUND 640 | 0.0000000000 | $66,710 | $66,710 | $0.00 | | |
| PORTWWGEN | PORT OF WW 640 | 0.2460186015 | $66,710 | $66,710 | $16.41 | | |
| SD400BOND | SD #400 BOND 793 | 0.0000000000 | $66,710 | $66,710 | $0.00 | | |
| SD400CAP | SD #400 CP 792 | 0.3443722657 | $66,710 | $66,710 | $22.97 | | |
| SD400GEN | SD #400 GENERAL 790 | 1.9278469916 | $66,710 | $66,710 | $128.61 | | |
| ST2 | STATE SCHOOL PART 2 600 | 0.8131451643 | $66,710 | $66,710 | $54.24 | | |
| STATESCHL | STATE SCHOOL 600 | 1.5158548041 | $66,710 | $66,710 | $101.12 | | |
| STREFUND | STATE REFUND LEVY 603 | 0.0000000000 | $66,710 | $66,710 | $0.00 | | |
| COROAD | COUNTY ROAD 115 | 1.6549953990 | $66,710 | $66,710 | $110.40 | | |
| CRPRD | COUNTY ROAD REFUND 115 | 0.0000000000 | $66,710 | $66,710 | $0.00 | | |
| | Total Tax Rate: | 9.5152210736 | | | | | |
| | | | | Taxes w/Current Exemptions: | $634.74 | | |
| | | | | Taxes w/o Exemptions: | $634.74 | | |
Improvement / Building
| Improvement #1: | MANUFACTURED HOME | State Code: | 11 | 924.0 sqft | Value: | $5,400 |
| Exterior Wall: | RIBBED ALUMINUM | Heating/Cooling: | WARM & COOLED AIR | | Number of Bathrooms: | 1 | Number of Bedrooms: | 2 | | Plumbing: | 5 | Roof Covering: | GALVANIZED METAL |
|
| | Type | Description | Class CD | Sub Class CD | Year Built | Area |
| | MOBHOME | MANUFACTURD HOMES | 1 | 20 | 1975 | 924.0 |
| | MI1 | MH SET-UP COSTS | 1 | 20 | 1975 | 1.0 |
| | SPO | SCREENED PORCH | 1 | 20 | 1975 | 320.0 |
| | BNV | BUILDING NO VALUE | 1 | 20 | 1975 | 400.0 |
Sketch
Property Image
Land
| 1 | RES 1 | Converted: Residential | 0.3931 | 17125.00 | 0.00 | 0.00 | 1.00 | $61,310 | $0 |
Roll Value History
| 2025 | N/A | N/A | N/A | N/A | N/A |
| 2024 | $5,400 | $61,310 | $0 | $66,710 | $66,710 |
| 2023 | $5,400 | $61,310 | $0 | $66,710 | $66,710 |
| 2022 | $5,400 | $61,310 | $0 | $66,710 | $66,710 |
| 2021 | $5,400 | $61,310 | $0 | $66,710 | $66,710 |
| 2020 | $15,290 | $25,100 | $0 | $40,390 | $40,390 |
| 2019 | $15,290 | $25,100 | $0 | $40,390 | $40,390 |
| 2018 | $11,760 | $25,100 | $0 | $36,860 | $36,860 |
| 2017 | $8,400 | $25,100 | $0 | $33,500 | $33,500 |
| 2016 | $4,200 | $25,100 | $0 | $29,300 | $29,300 |
| 2015 | $4,200 | $25,100 | $0 | $29,300 | $29,300 |
| 2014 | $4,200 | $25,100 | $0 | $29,300 | $29,300 |
| 2013 | $4,200 | $25,100 | $0 | $29,300 | $29,300 |
| 2012 | $4,200 | $25,100 | $0 | $0 | $0 |
| 2011 | $19,900 | $25,100 | $0 | $0 | $0 |
| 2010 | $19,900 | $25,100 | $0 | $0 | $0 |
| 2009 | $22,100 | $22,200 | $0 | $0 | $0 |
| 2008 | $11,900 | $22,200 | $0 | $0 | $0 |
| 2007 | $11,900 | $22,200 | $0 | $0 | $0 |
| 2006 | $11,900 | $22,200 | $0 | $0 | $0 |
Deed and Sales History
| 1 | 02/18/2025 | QCD | QUIT CLAIM DEED | CHAVEZ FRANCISCO L | MADRIGAL MARIO | | | | 148934 | 2025-00823 |
| 2 | 10/08/2010 | WARRANTY D | WARRANTY DEED | WOODS, SCOTT | SMITH, DONALD G & KIMBERLY A | | | $0.00 | 119153 | -119153 |
| 3 | 10/08/2010 | WARRANTY D | WARRANTY DEED | SMITH, DONALD G & KIMBERLY K | CHAVEZ, FRANCISCO L | | | $10,100.00 | 119149 | 2010-08116 |
| 4 | 10/08/2010 | WARRANTY D | WARRANTY DEED | SMITH, DONALD G & KIMBERLY | CHAVEZ, FRANCISCO L | | | $19,900.00 | 119148 | -119148 |
| 5 | 05/05/2009 | WARRANTY D | WARRANTY DEED | WOODS, SCOTT | SMITH, DONALD G & KIMBERLY K | | | | 116705 | 2009-04479 |
| 6 | 05/30/2006 | WARRANTY D | WARRANTY DEED | SMITH, DONALD G & KIMBERLY | WOODS, SCOTT | | | $47,500.00 | 110385 | 2006-06242 |
Payout Agreement
| No payout information available.. |