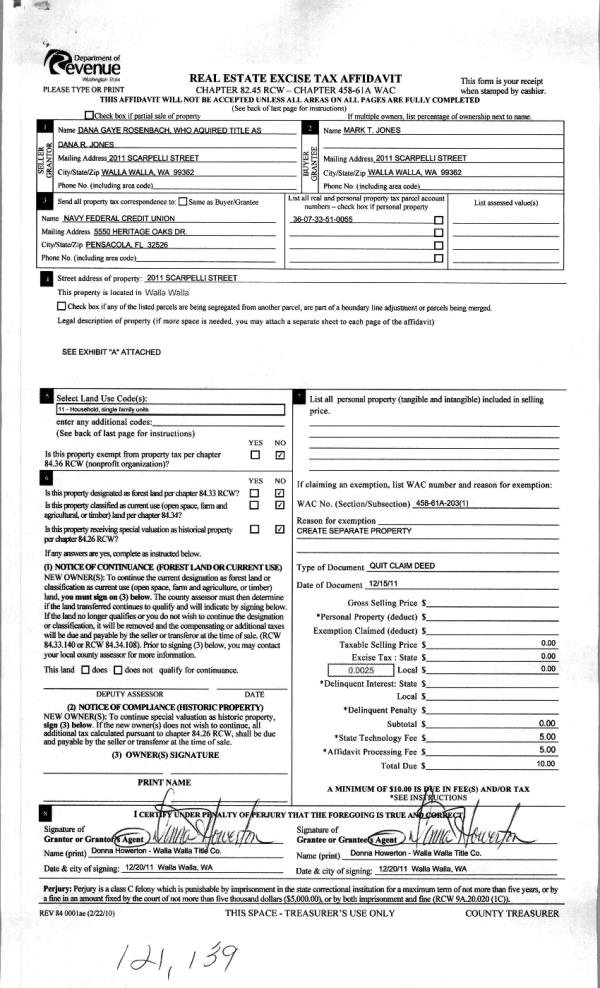
Property
Account |
| Property ID: | 26779 | Abbreviated Legal Description: | FROG HOLLOW VIEW TRACTS LOT 3, LESS NELY PTN |
| Parcel Number: | 340603500007 | Agent Code: | |
| Type: | Real | | |
| Tax Area: | 113 - 140-6 | Land Use Code | 11 |
| Open Space: | N | DFL | N |
| Historic Property: | N | Remodel Property: | N |
| Multi-Family Redevelopment: | N | | |
| Township: | 6 | Section: | 3 |
| Range: | 34 |
Location |
| Address: | 5736 FROG HOLLOW RD WA 99362 | Mapsco: | |
| Neighborhood: | A SFR Rural | Map ID: | |
| Neighborhood CD: | 213013 |
Owner |
| Name: | STIEMERT RALPH D & JUDITH I | Owner ID: | 46018 |
| Mailing Address: | 5736 FROG HOLLOW RD TOUCHET, WA 99360 | % Ownership: | 100.0000000000% |
| | | Exemptions: | |
Taxes and Assessment Details
Values
| (+) Improvement Homesite Value: | + | $0 | |
| (+) Improvement Non-Homesite Value: | + | $597,320 | |
| (+) Land Homesite Value: | + | $90,000 | |
| (+) Land Non-Homesite Value: | + | $74,800 | |
| (+) Curr Use (HS): | + | $0 | $0 |
| (+) Curr Use (NHS): | + | $0 | $0 |
| | | -------------------------- | |
| (=) Market Value: | = | $762,120 | |
| (–) Productivity Loss: | – | $0 | |
| | | -------------------------- | |
| (=) Subtotal: | = | $762,120 | |
| (+) Senior Appraised Value: | + | $0 | |
| (+) Non-Senior Appraised Value: | + | $762,120 | |
| | | -------------------------- | |
| (=) Total Appraised Value: | = | $762,120 | |
| (–) Senior Exemption Loss: | – | $0 | |
| (–) Exemption Loss: | – | $0 | |
| | | -------------------------- | |
| (=) Taxable Value: | = | $762,120 | |
Taxing Jurisdiction
| Owner: | STIEMERT RALPH D & JUDITH I | | |
| % Ownership: | 100.0000000000% | | |
| Total Value: | $762,120 | | |
| Tax Area: | 113 - 140-6 |
| CERFD | CURRENT EXPENSE REFUND 010 | 0.0000000000 | $762,120 | $762,120 | $0.00 | | |
| CURREXP | CURRENT EXPENSE 010 | 1.0175366760 | $762,120 | $762,120 | $775.49 | | |
| HUMNSERV | HUMAN SERVICES 119 | 0.0250000000 | $762,120 | $762,120 | $19.05 | | |
| SLDREL | SOLDIERS RELIEF 121 | 0.0155990005 | $762,120 | $762,120 | $11.89 | | |
| EMERGSER | EMS 147 | 0.3792580840 | $762,120 | $762,120 | $289.04 | | |
| EMSRFD | EMS REFUND 147 | 0.0000000000 | $762,120 | $762,120 | $0.00 | | |
| FD6EXP | FD #6 EXPENSE 693 | 0.6692985746 | $762,120 | $762,120 | $510.09 | | |
| RLBRFD | RURAL LIBRARY REFUND 623 | 0.0000000000 | $762,120 | $762,120 | $0.00 | | |
| RURALLIB | RURAL LIBRARY 623 | 0.3710609029 | $762,120 | $762,120 | $282.79 | | |
| PORTRFD | PORT REFUND 640 | 0.0000000000 | $762,120 | $762,120 | $0.00 | | |
| PORTWWGEN | PORT OF WW 640 | 0.2460186015 | $762,120 | $762,120 | $187.50 | | |
| SD140BOND | SD #140 BOND 764 | 0.8342371393 | $762,120 | $762,120 | $635.79 | | |
| SD140GEN | SD #140 GENERAL 760 | 2.0646500647 | $762,120 | $762,120 | $1,573.51 | | |
| ST2 | STATE SCHOOL PART 2 600 | 0.8131451643 | $762,120 | $762,120 | $619.71 | | |
| STATESCHL | STATE SCHOOL 600 | 1.5158548041 | $762,120 | $762,120 | $1,155.26 | | |
| STREFUND | STATE REFUND LEVY 603 | 0.0000000000 | $762,120 | $762,120 | $0.00 | | |
| COROAD | COUNTY ROAD 115 | 1.6549953990 | $762,120 | $762,120 | $1,261.31 | | |
| CRPRD | COUNTY ROAD REFUND 115 | 0.0000000000 | $762,120 | $762,120 | $0.00 | | |
| | Total Tax Rate: | 9.6066544109 | | | | | |
| | | | | Taxes w/Current Exemptions: | $7,321.43 | | |
| | | | | Taxes w/o Exemptions: | $7,321.43 | | |
Improvement / Building
| Improvement #1: | RESIDENTIAL | State Code: | 11 | 3447.0 sqft | Value: | $597,320 |
| Exterior Wall: | HARDBOARD | Heating/Cooling: | HEAT PUMP | | Number of Bathrooms: | 3 | Number of Bedrooms: | 3 | | Plumbing: | 15 | Roof Covering: | COMP SHINGLE |
|
| | Type | Description | Class CD | Sub Class CD | Year Built | Area |
| | POL3 | POLE BUILDING-CON,ELEC,INSU | 1 | 30 | 0 | 1320.0 |
| | GIF | GARAGE INTERIOR FINISH | 1 | 30 | 0 | 600.0 |
| | FBAT | FULL BATH | 1 | 30 | 0 | 1.0 |
| | POL3 | POLE BUILDING-CON,ELEC,INSU | 1 | 30 | 0 | 720.0 |
| | MA | Main Area | 4 | 50 | 0 | 3447.0 |
| | ATG | Attached Garage | 4 | 50 | 0 | 826.0 |
| | UPFL | Upper Floor (included in main area) | 4 | 50 | 0 | 929.0 |
| | ATIC | ATTIC ROOM | 4 | 30 | 0 | 492.0 |
| | RPO | OPEN PORCH W/ROOF | 1 | 50 | 0 | 574.0 |
| | RPO | OPEN PORCH W/ROOF | 1 | 50 | 0 | 120.0 |
| | SI1 | SITE IMPROVEMENT | 1 | | 0 | 4.0 |
Sketch
Property Image
Land
| 1 | 90000-HS | Homesite 90000 | 1.0000 | 0.00 | 0.00 | 0.00 | 1.00 | $90,000 | $0 |
| 2 | 5000-C2-I | 5000-C2 Irrigation | 14.9600 | 651657.60 | 0.00 | 0.00 | 1.00 | $74,800 | $0 |
Roll Value History
| 2025 | N/A | N/A | N/A | N/A | N/A |
| 2024 | $597,320 | $164,800 | $0 | $762,120 | $762,120 |
| 2023 | $597,320 | $164,800 | $0 | $762,120 | $762,120 |
| 2022 | $426,660 | $159,800 | $0 | $586,460 | $586,460 |
| 2021 | $426,660 | $159,800 | $0 | $586,460 | $586,460 |
| 2020 | $416,540 | $144,800 | $0 | $561,340 | $561,340 |
| 2019 | $416,540 | $144,800 | $0 | $561,340 | $561,340 |
| 2018 | $416,540 | $144,800 | $0 | $561,340 | $561,340 |
| 2017 | $416,540 | $144,800 | $0 | $561,340 | $561,340 |
| 2016 | $416,540 | $144,800 | $0 | $561,340 | $561,340 |
| 2015 | $416,540 | $144,800 | $0 | $561,340 | $561,340 |
| 2014 | $26,600 | $79,800 | $0 | $106,400 | $106,400 |
| 2013 | $26,600 | $79,800 | $79,800 | $106,400 | $106,400 |
| 2012 | $26,700 | $79,800 | $0 | $0 | $0 |
| 2011 | $26,700 | $79,800 | $0 | $0 | $0 |
| 2010 | $0 | $79,800 | $0 | $0 | $0 |
| 2009 | $0 | $79,800 | $0 | $0 | $0 |
| 2008 | $0 | $79,800 | $0 | $0 | $0 |
| 2007 | $0 | $55,900 | $0 | $0 | $0 |
| 2006 | $0 | $55,900 | $0 | $0 | $0 |
Deed and Sales History
| 1 | 06/25/2008 | WARRANTY D | WARRANTY DEED | SEWELL, BRIAN R & DEBBIE K | STIEMERT, RALPH D & JUDITH I | | | $220,000.00 | 115231 | 2008-06516 |
| 2 | 03/16/2007 | WARRANTY D | WARRANTY DEED | MC CAW RANCHES INC | | | | | 97503 | 2007-02958 |
Payout Agreement
| No payout information available.. |