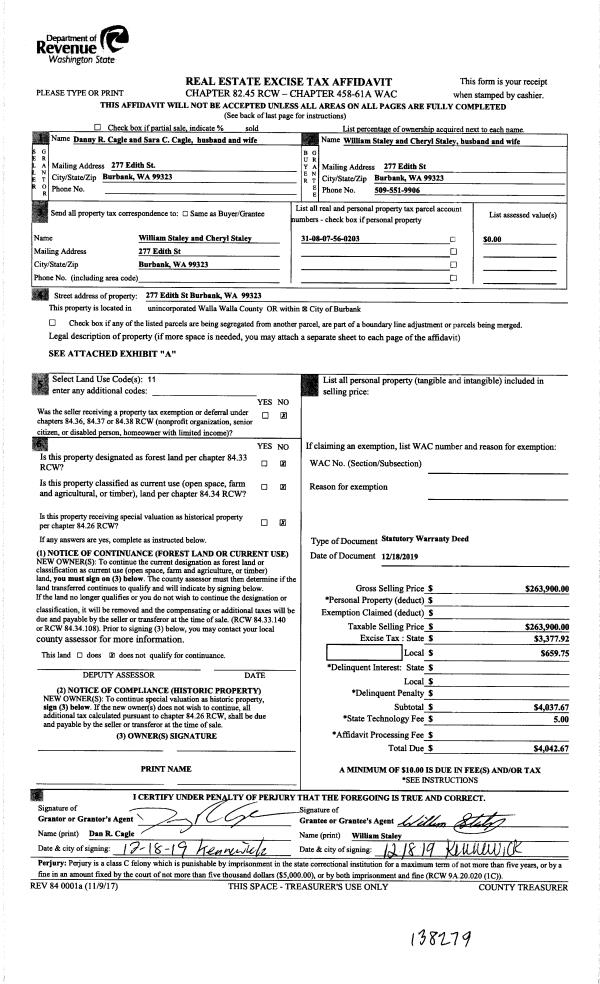
Property
Account |
| Property ID: | 26771 | Abbreviated Legal Description: | REESES ELY 40' OF LOT 9 BLK 11; WLY 10' OF LOT 10 BLK 11 |
| Parcel Number: | 360730531111 | Agent Code: | |
| Type: | Real | | |
| Tax Area: | 1 - OL-140-F | Land Use Code | 11 |
| Open Space: | N | DFL | N |
| Historic Property: | N | Remodel Property: | N |
| Multi-Family Redevelopment: | N | | |
| Township: | 7 | Section: | 30 |
| Range: | 36 |
Location |
| Address: | 810 W POPLAR ST WA 99362 | Mapsco: | |
| Neighborhood: | COMMERCIAL | Map ID: | |
| Neighborhood CD: | 3302 |
Owner |
| Name: | KNUDSON FAMILY TRUST | Owner ID: | 51836 |
| Mailing Address: | 1011 HOME AVE WALLA WALLA, WA 99362 | % Ownership: | 100.0000000000% |
| | | Exemptions: | |
Taxes and Assessment Details
Values
| (+) Improvement Homesite Value: | + | $0 | |
| (+) Improvement Non-Homesite Value: | + | $72,730 | |
| (+) Land Homesite Value: | + | $0 | |
| (+) Land Non-Homesite Value: | + | $49,500 | |
| (+) Curr Use (HS): | + | $0 | $0 |
| (+) Curr Use (NHS): | + | $0 | $0 |
| | | -------------------------- | |
| (=) Market Value: | = | $122,230 | |
| (–) Productivity Loss: | – | $0 | |
| | | -------------------------- | |
| (=) Subtotal: | = | $122,230 | |
| (+) Senior Appraised Value: | + | $0 | |
| (+) Non-Senior Appraised Value: | + | $122,230 | |
| | | -------------------------- | |
| (=) Total Appraised Value: | = | $122,230 | |
| (–) Senior Exemption Loss: | – | $0 | |
| (–) Exemption Loss: | – | $0 | |
| | | -------------------------- | |
| (=) Taxable Value: | = | $122,230 | |
Taxing Jurisdiction
| Owner: | KNUDSON FAMILY TRUST | | |
| % Ownership: | 100.0000000000% | | |
| Total Value: | $122,230 | | |
| Tax Area: | 1 - OL-140-F |
| CERFD | CURRENT EXPENSE REFUND 010 | 0.0000000000 | $122,230 | $122,230 | $0.00 | | |
| CURREXP | CURRENT EXPENSE 010 | 1.0175366760 | $122,230 | $122,230 | $124.37 | | |
| HUMNSERV | HUMAN SERVICES 119 | 0.0250000000 | $122,230 | $122,230 | $3.06 | | |
| SLDREL | SOLDIERS RELIEF 121 | 0.0155990005 | $122,230 | $122,230 | $1.91 | | |
| EMERGSER | EMS 147 | 0.3792580840 | $122,230 | $122,230 | $46.36 | | |
| EMSRFD | EMS REFUND 147 | 0.0000000000 | $122,230 | $122,230 | $0.00 | | |
| PORTRFD | PORT REFUND 640 | 0.0000000000 | $122,230 | $122,230 | $0.00 | | |
| PORTWWGEN | PORT OF WW 640 | 0.2460186015 | $122,230 | $122,230 | $30.07 | | |
| SD140BOND | SD #140 BOND 764 | 0.8342371393 | $122,230 | $122,230 | $101.97 | | |
| SD140GEN | SD #140 GENERAL 760 | 2.0646500647 | $122,230 | $122,230 | $252.36 | | |
| ST2 | STATE SCHOOL PART 2 600 | 0.8131451643 | $122,230 | $122,230 | $99.39 | | |
| STATESCHL | STATE SCHOOL 600 | 1.5158548041 | $122,230 | $122,230 | $185.28 | | |
| STREFUND | STATE REFUND LEVY 603 | 0.0000000000 | $122,230 | $122,230 | $0.00 | | |
| CWWBOND | C OF WW BOND 643 | 0.2760494372 | $122,230 | $122,230 | $33.74 | | |
| CWWGEN | CITY OF WW 631 | 1.6100204973 | $122,230 | $122,230 | $196.79 | | |
| CWWRFD | CITY OF WALLA WALLA REFUND 631 | 0.0000000000 | $122,230 | $122,230 | $0.00 | | |
| | Total Tax Rate: | 8.7973694689 | | | | | |
| | | | | Taxes w/Current Exemptions: | $1,075.30 | | |
| | | | | Taxes w/o Exemptions: | $1,075.30 | | |
Improvement / Building
| Improvement #1: | RESIDENTIAL | State Code: | 11 | 744.0 sqft | Value: | $72,730 |
| Exterior Wall: | SIDING | Heating/Cooling: | WALL FURNACE | | Number of Bathrooms: | 1 | Number of Bedrooms: | 2 | | Plumbing: | 7 | Roof Covering: | COMP SHINGLE |
|
| | Type | Description | Class CD | Sub Class CD | Year Built | Area |
| | MA | Main Area | 1 | 20 | 1910 | 744.0 |
| | SI1 | SITE IMPROVEMENT | 1 | 20 | 0 | 1.0 |
| | RPO | OPEN PORCH W/ROOF | 1 | 20 | 1910 | 124.0 |
Sketch
Property Image
Land
| 1 | RES 1 | Converted: Residential | 0.1377 | 6000.00 | 0.00 | 0.00 | 1.00 | $49,500 | $0 |
Roll Value History
| 2023 | $72,730 | $49,500 | $0 | $122,230 | $122,230 |
| 2022 | $72,730 | $49,500 | $0 | $122,230 | $122,230 |
| 2021 | $32,600 | $30,000 | $0 | $62,600 | $62,600 |
| 2020 | $32,600 | $30,000 | $0 | $62,600 | $62,600 |
| 2019 | $32,600 | $30,000 | $0 | $62,600 | $62,600 |
| 2018 | $32,600 | $30,000 | $0 | $62,600 | $62,600 |
| 2017 | $32,600 | $30,000 | $0 | $62,600 | $62,600 |
| 2016 | $32,600 | $30,000 | $0 | $62,600 | $62,600 |
| 2015 | $28,600 | $30,000 | $0 | $58,600 | $58,600 |
| 2014 | $28,600 | $30,000 | $0 | $58,600 | $58,600 |
| 2013 | $28,600 | $30,000 | $0 | $58,600 | $58,600 |
| 2012 | $28,600 | $30,000 | $0 | $0 | $0 |
| 2011 | $28,600 | $30,000 | $0 | $0 | $0 |
| 2010 | $26,500 | $24,400 | $0 | $0 | $0 |
| 2009 | $47,300 | $10,500 | $0 | $0 | $0 |
| 2008 | $34,000 | $10,500 | $0 | $0 | $0 |
| 2007 | $34,000 | $10,500 | $0 | $0 | $0 |
| 2006 | $34,000 | $10,500 | $0 | $0 | $0 |
Deed and Sales History
| 1 | 03/22/2024 | SHORT PLAT | SHORT PLAT | | | | | | 0 | 2024-01403 |
| 2 | 10/18/2012 | QCD | QUIT CLAIM DEED | KNUDSON EVERETT & BARBARA | KNUDSON FAMILY TRUST | | | $0.00 | 122816 | 2012-09169 |
| 3 | 04/06/2009 | QCD | QUIT CLAIM DEED | FLUOR IRWIN | KNUDSON EVERETT & BARBARA | | | $170,000.00 | 116578 | 2009-03416 |
Payout Agreement
| No payout information available.. |