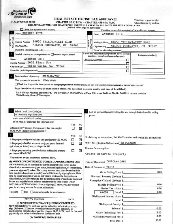
Property
Account |
| Property ID: | 26767 | Abbreviated Legal Description: | BRYANTS LOT 19 BLK 3 |
| Parcel Number: | 360728530319 | Agent Code: | |
| Type: | Real | | |
| Tax Area: | 1 - OL-140-F | Land Use Code | 11 |
| Open Space: | N | DFL | N |
| Historic Property: | N | Remodel Property: | N |
| Multi-Family Redevelopment: | N | | |
| Township: | 7 | Section: | 28 |
| Range: | 36 |
Location |
| Address: | 527 JUNIPER ST WA 99362 | Mapsco: | |
| Neighborhood: | A Res | Map ID: | |
| Neighborhood CD: | 613011 |
Owner |
| Name: | MACIEL ADAN & CAROLINA | Owner ID: | 73854 |
| Mailing Address: | 527 JUNIPER ST WALLA WALLA, WA 99362 | % Ownership: | 100.0000000000% |
| | | Exemptions: | |
Taxes and Assessment Details
Values
| (+) Improvement Homesite Value: | + | $0 | |
| (+) Improvement Non-Homesite Value: | + | $303,710 | |
| (+) Land Homesite Value: | + | $0 | |
| (+) Land Non-Homesite Value: | + | $70,000 | |
| (+) Curr Use (HS): | + | $0 | $0 |
| (+) Curr Use (NHS): | + | $0 | $0 |
| | | -------------------------- | |
| (=) Market Value: | = | $373,710 | |
| (–) Productivity Loss: | – | $0 | |
| | | -------------------------- | |
| (=) Subtotal: | = | $373,710 | |
| (+) Senior Appraised Value: | + | $0 | |
| (+) Non-Senior Appraised Value: | + | $373,710 | |
| | | -------------------------- | |
| (=) Total Appraised Value: | = | $373,710 | |
| (–) Senior Exemption Loss: | – | $0 | |
| (–) Exemption Loss: | – | $0 | |
| | | -------------------------- | |
| (=) Taxable Value: | = | $373,710 | |
Taxing Jurisdiction
| Owner: | MACIEL ADAN & CAROLINA | | |
| % Ownership: | 100.0000000000% | | |
| Total Value: | $373,710 | | |
| Tax Area: | 1 - OL-140-F |
| CERFD | CURRENT EXPENSE REFUND 010 | 0.0000000000 | $373,710 | $373,710 | $0.00 | | |
| CURREXP | CURRENT EXPENSE 010 | 1.0175366760 | $373,710 | $373,710 | $380.26 | | |
| HUMNSERV | HUMAN SERVICES 119 | 0.0250000000 | $373,710 | $373,710 | $9.34 | | |
| SLDREL | SOLDIERS RELIEF 121 | 0.0155990005 | $373,710 | $373,710 | $5.83 | | |
| EMERGSER | EMS 147 | 0.3792580840 | $373,710 | $373,710 | $141.73 | | |
| EMSRFD | EMS REFUND 147 | 0.0000000000 | $373,710 | $373,710 | $0.00 | | |
| PORTRFD | PORT REFUND 640 | 0.0000000000 | $373,710 | $373,710 | $0.00 | | |
| PORTWWGEN | PORT OF WW 640 | 0.2460186015 | $373,710 | $373,710 | $91.94 | | |
| SD140BOND | SD #140 BOND 764 | 0.8342371393 | $373,710 | $373,710 | $311.76 | | |
| SD140GEN | SD #140 GENERAL 760 | 2.0646500647 | $373,710 | $373,710 | $771.58 | | |
| ST2 | STATE SCHOOL PART 2 600 | 0.8131451643 | $373,710 | $373,710 | $303.88 | | |
| STATESCHL | STATE SCHOOL 600 | 1.5158548041 | $373,710 | $373,710 | $566.49 | | |
| STREFUND | STATE REFUND LEVY 603 | 0.0000000000 | $373,710 | $373,710 | $0.00 | | |
| CWWBOND | C OF WW BOND 643 | 0.2760494372 | $373,710 | $373,710 | $103.16 | | |
| CWWGEN | CITY OF WW 631 | 1.6100204973 | $373,710 | $373,710 | $601.68 | | |
| CWWRFD | CITY OF WALLA WALLA REFUND 631 | 0.0000000000 | $373,710 | $373,710 | $0.00 | | |
| | Total Tax Rate: | 8.7973694689 | | | | | |
| | | | | Taxes w/Current Exemptions: | $3,287.65 | | |
| | | | | Taxes w/o Exemptions: | $3,287.65 | | |
Improvement / Building
| Improvement #1: | RESIDENTIAL | State Code: | 11 | 1914.0 sqft | Value: | $303,710 |
| Exterior Wall: | METAL/STEEL | Heating/Cooling: | WARM & COOLED AIR | | Number of Bathrooms: | 2.5 | Number of Bedrooms: | 3 | | Plumbing: | 11 | Roof Covering: | COMP SHINGLE |
|
| | Type | Description | Class CD | Sub Class CD | Year Built | Area |
| | MA | Main Area | 4 | 30 | 1940 | 1914.0 |
| | UPFL | Upper Floor (included in main area) | 4 | 30 | 1940 | 464.0 |
| | SI1 | SITE IMPROVEMENT | 4 | 30 | 1940 | 1.0 |
| | BASE | BASEMENT | 4 | 30 | 1940 | 991.0 |
| | BPF | BASEMENT -PARTITIONED FINISH | 4 | 30 | 1940 | 490.0 |
| | RPO | OPEN PORCH W/ROOF | 4 | 30 | 1940 | 47.0 |
| | WOD | Wood Deck | 4 | 30 | 1940 | 384.0 |
Sketch
Property Image
Land
| 1 | RES 1 | Converted: Residential | 0.1377 | 6000.00 | 0.00 | 0.00 | 1.00 | $70,000 | $0 |
Roll Value History
| 2025 | N/A | N/A | N/A | N/A | N/A |
| 2024 | $303,710 | $70,000 | $0 | $373,710 | $373,710 |
| 2023 | $303,710 | $70,000 | $0 | $373,710 | $373,710 |
| 2022 | $303,710 | $55,000 | $0 | $358,710 | $358,710 |
| 2021 | $209,450 | $55,000 | $0 | $264,450 | $264,450 |
| 2020 | $149,610 | $55,000 | $0 | $204,610 | $204,610 |
| 2019 | $149,610 | $55,000 | $0 | $204,610 | $204,610 |
| 2018 | $122,470 | $36,000 | $0 | $158,470 | $158,470 |
| 2017 | $102,060 | $36,000 | $0 | $138,060 | $138,060 |
| 2016 | $102,060 | $36,000 | $0 | $138,060 | $138,060 |
| 2015 | $102,060 | $36,000 | $0 | $138,060 | $138,060 |
| 2014 | $97,200 | $36,000 | $0 | $133,200 | $133,200 |
| 2013 | $97,200 | $36,000 | $0 | $133,200 | $133,200 |
| 2012 | $97,200 | $36,000 | $0 | $0 | $0 |
| 2011 | $97,200 | $36,000 | $0 | $0 | $0 |
| 2010 | $97,200 | $36,000 | $0 | $0 | $0 |
| 2009 | $112,000 | $36,000 | $0 | $0 | $0 |
| 2008 | $112,000 | $36,000 | $0 | $0 | $0 |
| 2007 | $94,400 | $18,000 | $0 | $0 | $0 |
| 2006 | $94,400 | $18,000 | $0 | $0 | $0 |
Deed and Sales History
| 1 | 06/30/2023 | SWD | STATUTORY WARRANTY DEED | DICICCO DANIEL & ALANA | MACIEL ADAN & CAROLINA | | | $365,000.00 | 146080 | 2023-03675 |
| 2 | 08/23/2019 | SWD | STATUTORY WARRANTY DEED | COLE TANNER | DICICCO DANIEL & ALANA | | | $221,000.00 | 137542 | 2019-06463 |
| 3 | 07/21/2017 | SWD | STATUTORY WARRANTY DEED | HUTCHERSON DALE | COLE TANNER | | | $180,000.00 | 132817 | 2017-05569 |
| 4 | 02/13/2012 | QCD | QUIT CLAIM DEED | LYONS-HUTCHERSON, KELLY ANN | HUTCHERSON, DALE | | | | 121389 | 2012-01233 |
| 5 | 04/02/2009 | QCD | QUIT CLAIM DEED | LYONS, KELLY ANN | LYONS-HUTCHERSON, KELLY ANN | | | | 116562 | 2009-03275 |
| 6 | 08/02/1991 | WARRANTY D | WARRANTY DEED | | | | | $56,900.00 | 0 | 1909-105183 |
Payout Agreement
| No payout information available.. |