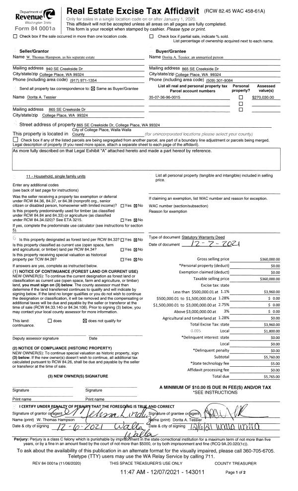
Property
Account |
| Property ID: | 26556 | Abbreviated Legal Description: | MELODY PARK TERRACE WEST LOT 2 BLK 3 LESS E 1' |
| Parcel Number: | 360716600309 | Agent Code: | |
| Type: | Real | | |
| Tax Area: | 5 - OL-140 | Land Use Code | 11 |
| Open Space: | N | DFL | N |
| Historic Property: | N | Remodel Property: | N |
| Multi-Family Redevelopment: | N | | |
| Township: | 7 | Section: | 16 |
| Range: | 36 |
Location |
| Address: | 2015 GLEN ERIN DR WA 99362 | Mapsco: | |
| Neighborhood: | A-SFR | Map ID: | |
| Neighborhood CD: | 313011 |
Owner |
| Name: | SCHREINDL LIVING TRUST | Owner ID: | 46485 |
| Mailing Address: | C/O LEAH MALDONADO 1650 RESER RD. WALLA WALLA, WA 99362 | % Ownership: | 100.0000000000% |
| | | Exemptions: | |
Taxes and Assessment Details
Values
| (+) Improvement Homesite Value: | + | $0 | |
| (+) Improvement Non-Homesite Value: | + | $227,450 | |
| (+) Land Homesite Value: | + | $0 | |
| (+) Land Non-Homesite Value: | + | $90,000 | |
| (+) Curr Use (HS): | + | $0 | $0 |
| (+) Curr Use (NHS): | + | $0 | $0 |
| | | -------------------------- | |
| (=) Market Value: | = | $317,450 | |
| (–) Productivity Loss: | – | $0 | |
| | | -------------------------- | |
| (=) Subtotal: | = | $317,450 | |
| (+) Senior Appraised Value: | + | $0 | |
| (+) Non-Senior Appraised Value: | + | $317,450 | |
| | | -------------------------- | |
| (=) Total Appraised Value: | = | $317,450 | |
| (–) Senior Exemption Loss: | – | $0 | |
| (–) Exemption Loss: | – | $0 | |
| | | -------------------------- | |
| (=) Taxable Value: | = | $317,450 | |
Taxing Jurisdiction
| Owner: | SCHREINDL LIVING TRUST | | |
| % Ownership: | 100.0000000000% | | |
| Total Value: | $317,450 | | |
| Tax Area: | 5 - OL-140 |
| CERFD | CURRENT EXPENSE REFUND 010 | 0.0000000000 | $317,450 | $317,450 | $0.00 | | |
| CURREXP | CURRENT EXPENSE 010 | 1.0175366760 | $317,450 | $317,450 | $323.02 | | |
| HUMNSERV | HUMAN SERVICES 119 | 0.0250000000 | $317,450 | $317,450 | $7.94 | | |
| SLDREL | SOLDIERS RELIEF 121 | 0.0155990005 | $317,450 | $317,450 | $4.95 | | |
| EMERGSER | EMS 147 | 0.3792580840 | $317,450 | $317,450 | $120.40 | | |
| EMSRFD | EMS REFUND 147 | 0.0000000000 | $317,450 | $317,450 | $0.00 | | |
| PORTRFD | PORT REFUND 640 | 0.0000000000 | $317,450 | $317,450 | $0.00 | | |
| PORTWWGEN | PORT OF WW 640 | 0.2460186015 | $317,450 | $317,450 | $78.10 | | |
| SD140BOND | SD #140 BOND 764 | 0.8342371393 | $317,450 | $317,450 | $264.83 | | |
| SD140GEN | SD #140 GENERAL 760 | 2.0646500647 | $317,450 | $317,450 | $655.42 | | |
| ST2 | STATE SCHOOL PART 2 600 | 0.8131451643 | $317,450 | $317,450 | $258.13 | | |
| STATESCHL | STATE SCHOOL 600 | 1.5158548041 | $317,450 | $317,450 | $481.21 | | |
| STREFUND | STATE REFUND LEVY 603 | 0.0000000000 | $317,450 | $317,450 | $0.00 | | |
| CWWBOND | C OF WW BOND 643 | 0.2760494372 | $317,450 | $317,450 | $87.63 | | |
| CWWGEN | CITY OF WW 631 | 1.6100204973 | $317,450 | $317,450 | $511.10 | | |
| CWWRFD | CITY OF WALLA WALLA REFUND 631 | 0.0000000000 | $317,450 | $317,450 | $0.00 | | |
| | Total Tax Rate: | 8.7973694689 | | | | | |
| | | | | Taxes w/Current Exemptions: | $2,792.73 | | |
| | | | | Taxes w/o Exemptions: | $2,792.73 | | |
Improvement / Building
| Improvement #1: | RESIDENTIAL | State Code: | 11 | 1260.0 sqft | Value: | $227,450 |
| Exterior Wall: | PLYWOOD | Heating/Cooling: | WARM & COOLED AIR | | Number of Bathrooms: | 2 | Number of Bedrooms: | 3 | | Plumbing: | 9 | Roof Covering: | COMP SHINGLE |
|
| | Type | Description | Class CD | Sub Class CD | Year Built | Area |
| | MA | Main Area | 1 | 30 | 1998 | 1260.0 |
| | SI1 | SITE IMPROVEMENT | 1 | 30 | 1998 | 1.5 |
| | ATG | Attached Garage | 1 | 30 | 1998 | 484.0 |
| | S1F | Single One Story Fireplace | 1 | 30 | 1998 | 1.0 |
| | UTST | Utility Storage Shed | 1 | 30 | 2010 | 120.0 |
| | RPC | OPEN PORCH W/ROOF , CEILED | 1 | 30 | 1998 | 36.0 |
| | CPC | COVERED CARPORT/PATIO | 1 | 30 | 1998 | 120.0 |
Sketch
Property Image
Land
| 1 | RES 1 | Converted: Residential | 0.1747 | 7611.00 | 0.00 | 0.00 | 1.00 | $90,000 | $0 |
Roll Value History
| 2025 | N/A | N/A | N/A | N/A | N/A |
| 2024 | $227,450 | $90,000 | $0 | $317,450 | $317,450 |
| 2023 | $227,450 | $90,000 | $0 | $317,450 | $317,450 |
| 2022 | $227,450 | $90,000 | $0 | $317,450 | $317,450 |
| 2021 | $160,420 | $55,000 | $0 | $215,420 | $215,420 |
| 2020 | $123,400 | $55,000 | $0 | $178,400 | $178,400 |
| 2019 | $123,400 | $55,000 | $0 | $178,400 | $178,400 |
| 2018 | $102,830 | $55,000 | $0 | $157,830 | $157,830 |
| 2017 | $97,930 | $55,000 | $0 | $152,930 | $152,930 |
| 2016 | $93,270 | $55,000 | $0 | $148,270 | $148,270 |
| 2015 | $94,860 | $55,000 | $0 | $149,860 | $149,860 |
| 2014 | $105,400 | $55,000 | $0 | $160,400 | $160,400 |
| 2013 | $105,400 | $55,000 | $0 | $160,400 | $160,400 |
| 2012 | $97,800 | $55,000 | $0 | $0 | $0 |
| 2011 | $114,800 | $55,000 | $0 | $0 | $0 |
| 2010 | $103,100 | $40,000 | $0 | $0 | $0 |
| 2009 | $119,000 | $40,000 | $0 | $0 | $0 |
| 2008 | $98,300 | $40,000 | $0 | $0 | $0 |
| 2007 | $98,300 | $40,000 | $0 | $0 | $0 |
| 2006 | $71,900 | $25,000 | $0 | $0 | $0 |
Deed and Sales History
| 1 | 10/18/2023 | QCD | QUIT CLAIM DEED | | SCHREINDL PAUL & SHANNON | | | | 146636 | 2023-06127 |
| 2 | 10/13/2023 | QCD | QUIT CLAIM DEED | SCHREINDL LIVING TRUST | SCHREINDL PAUL & SHANNON | | | $187,500.00 | 146636 | 2023-06034 |
| 3 | 04/24/2014 | SWD | STATUTORY WARRANTY DEED | PEARSON STEVEN D | SCHREINDL LIVING TRUST | | | $140,000.00 | 125761 | 2014-02773 |
| 4 | 03/12/2013 | QCD | QUIT CLAIM DEED | PEARSON, STEVEN D & WANDA L | PEARSON, STEVEN D | | | $0.00 | 123575 | 2013-02297 |
| 5 | 12/11/2008 | WARRANTY D | WARRANTY DEED | ORWICK, PATRICIA | PEARSON, STEVEN D & WANDA L | | | $169,900.00 | 116073 | 2008-122227 |
| 6 | 12/16/1997 | WARRANTY D | WARRANTY DEED | | | | | $15,000.00 | 89538 | 2609-712298 |
Payout Agreement
| No payout information available.. |