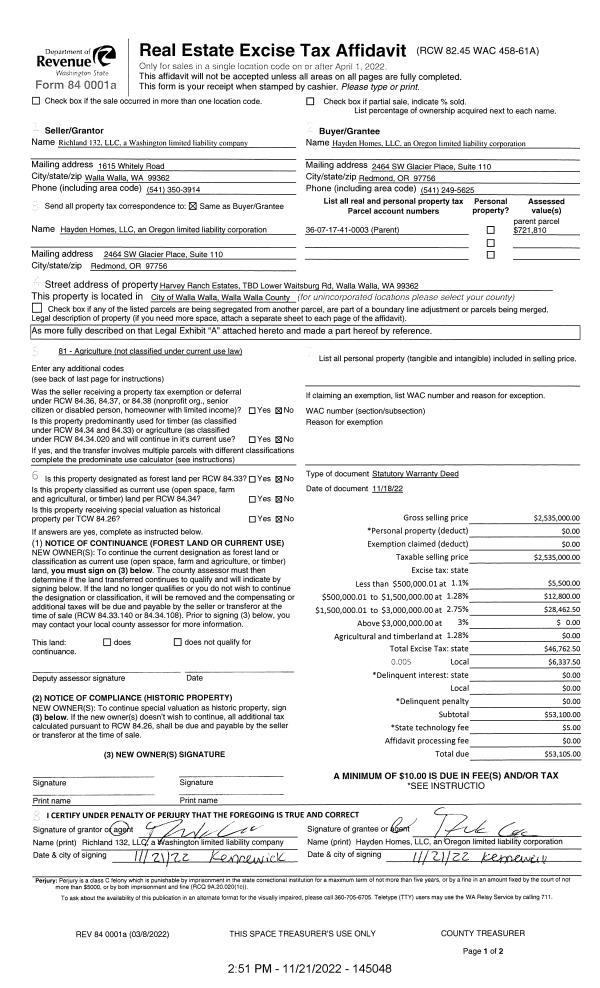
Property
Account |
| Property ID: | 26521 | Abbreviated Legal Description: | BLALOCK ORCHARDS PARCEL 26 (PT LOT 12 BLK 2) LESS LD SD PLUS TRIANG |
| Parcel Number: | 350723520226 | Agent Code: | |
| Type: | Real | | |
| Tax Area: | 311 - 250-4 | Land Use Code | 11 |
| Open Space: | N | DFL | N |
| Historic Property: | N | Remodel Property: | N |
| Multi-Family Redevelopment: | N | | |
| Township: | 7 | Section: | 23 |
| Range: | 35 |
Location |
| Address: | 3192 HERITAGE RD WA 99324 | Mapsco: | |
| Neighborhood: | A SFR Rural/City Infl | Map ID: | |
| Neighborhood CD: | 313012 |
Owner |
| Name: | LAIB JENNIFER L | Owner ID: | 64444 |
| Mailing Address: | KEVIN D HAKEN 3192 HERITAGE RD WALLA WALLA, WA 99362 | % Ownership: | 100.0000000000% |
| | | Exemptions: | |
Taxes and Assessment Details
Values
| (+) Improvement Homesite Value: | + | $0 | |
| (+) Improvement Non-Homesite Value: | + | $359,770 | |
| (+) Land Homesite Value: | + | $0 | |
| (+) Land Non-Homesite Value: | + | $130,000 | |
| (+) Curr Use (HS): | + | $0 | $0 |
| (+) Curr Use (NHS): | + | $0 | $0 |
| | | -------------------------- | |
| (=) Market Value: | = | $489,770 | |
| (–) Productivity Loss: | – | $0 | |
| | | -------------------------- | |
| (=) Subtotal: | = | $489,770 | |
| (+) Senior Appraised Value: | + | $0 | |
| (+) Non-Senior Appraised Value: | + | $489,770 | |
| | | -------------------------- | |
| (=) Total Appraised Value: | = | $489,770 | |
| (–) Senior Exemption Loss: | – | $0 | |
| (–) Exemption Loss: | – | $0 | |
| | | -------------------------- | |
| (=) Taxable Value: | = | $489,770 | |
Taxing Jurisdiction
| Owner: | LAIB JENNIFER L | | |
| % Ownership: | 100.0000000000% | | |
| Total Value: | $489,770 | | |
| Tax Area: | 311 - 250-4 |
| CERFD | CURRENT EXPENSE REFUND 010 | 0.0000000000 | $489,770 | $489,770 | $0.00 | | |
| CURREXP | CURRENT EXPENSE 010 | 1.0175366760 | $489,770 | $489,770 | $498.36 | | |
| HUMNSERV | HUMAN SERVICES 119 | 0.0250000000 | $489,770 | $489,770 | $12.24 | | |
| SLDREL | SOLDIERS RELIEF 121 | 0.0155990005 | $489,770 | $489,770 | $7.64 | | |
| EMERGSER | EMS 147 | 0.3792580840 | $489,770 | $489,770 | $185.75 | | |
| EMSRFD | EMS REFUND 147 | 0.0000000000 | $489,770 | $489,770 | $0.00 | | |
| FD4EXP | FD #4 EXPENSE 686 | 0.8836993059 | $489,770 | $489,770 | $432.81 | | |
| RLBRFD | RURAL LIBRARY REFUND 623 | 0.0000000000 | $489,770 | $489,770 | $0.00 | | |
| RURALLIB | RURAL LIBRARY 623 | 0.3710609029 | $489,770 | $489,770 | $181.73 | | |
| PORTRFD | PORT REFUND 640 | 0.0000000000 | $489,770 | $489,770 | $0.00 | | |
| PORTWWGEN | PORT OF WW 640 | 0.2460186015 | $489,770 | $489,770 | $120.49 | | |
| SD250BOND | SD #250 BOND 773 | 1.4560608159 | $489,770 | $489,770 | $713.13 | | |
| SD250GEN | SD #250 GENERAL 770 | 2.3880724087 | $489,770 | $489,770 | $1,169.61 | | |
| ST2 | STATE SCHOOL PART 2 600 | 0.8131451643 | $489,770 | $489,770 | $398.25 | | |
| STATESCHL | STATE SCHOOL 600 | 1.5158548041 | $489,770 | $489,770 | $742.42 | | |
| STREFUND | STATE REFUND LEVY 603 | 0.0000000000 | $489,770 | $489,770 | $0.00 | | |
| COROAD | COUNTY ROAD 115 | 1.6549953990 | $489,770 | $489,770 | $810.57 | | |
| CRPRD | COUNTY ROAD REFUND 115 | 0.0000000000 | $489,770 | $489,770 | $0.00 | | |
| | Total Tax Rate: | 10.7663011628 | | | | | |
| | | | | Taxes w/Current Exemptions: | $5,273.00 | | |
| | | | | Taxes w/o Exemptions: | $5,273.00 | | |
Improvement / Building
| Improvement #1: | RESIDENTIAL | State Code: | 11 | 2420.0 sqft | Value: | $359,770 |
| Exterior Wall: | SIDING | Heating/Cooling: | HEAT PUMP | | Number of Bathrooms: | 3 | Number of Bedrooms: | 4 | | Plumbing: | 13 | Roof Covering: | COMP SHINGLE |
|
| | Type | Description | Class CD | Sub Class CD | Year Built | Area |
| | MA | Main Area | 1 | 30 | 1977 | 2420.0 |
| | CPC | COVERED CARPORT/PATIO | 1 | 30 | 2008 | 160.0 |
| | SI1 | SITE IMPROVEMENT | 1 | 30 | 0 | 2.0 |
| | ATG | Attached Garage | 1 | 30 | 1977 | 675.0 |
| | RPO | OPEN PORCH W/ROOF | 1 | 30 | 1977 | 76.0 |
| | S1F | Single One Story Fireplace | 1 | 30 | 1977 | 1.0 |
| | DTG | Detached Garage | 1 | 30 | 1977 | 560.0 |
| | CPC | COVERED CARPORT/PATIO | 1 | 30 | 1977 | 104.0 |
Sketch
Property Image
Land
| 1 | RES 1 | Converted: Residential | 1.0000 | 0.00 | 0.00 | 0.00 | 1.00 | $130,000 | $0 |
Roll Value History
| 2025 | N/A | N/A | N/A | N/A | N/A |
| 2024 | $359,770 | $130,000 | $0 | $489,770 | $489,770 |
| 2023 | $359,770 | $130,000 | $0 | $489,770 | $489,770 |
| 2022 | $299,810 | $130,000 | $0 | $429,810 | $429,810 |
| 2021 | $313,710 | $75,000 | $0 | $388,710 | $388,710 |
| 2020 | $250,970 | $75,000 | $0 | $325,970 | $325,970 |
| 2019 | $250,970 | $75,000 | $0 | $325,970 | $325,970 |
| 2018 | $218,230 | $75,000 | $0 | $293,230 | $293,230 |
| 2017 | $218,230 | $75,000 | $0 | $293,230 | $293,230 |
| 2016 | $177,330 | $75,000 | $0 | $252,330 | $252,330 |
| 2015 | $138,300 | $75,000 | $0 | $213,300 | $213,300 |
| 2014 | $138,300 | $75,000 | $0 | $213,300 | $213,300 |
| 2013 | $138,300 | $75,000 | $0 | $213,300 | $213,300 |
| 2012 | $138,300 | $75,000 | $0 | $0 | $0 |
| 2011 | $136,600 | $75,000 | $0 | $0 | $0 |
| 2010 | $119,700 | $75,000 | $0 | $0 | $0 |
| 2009 | $175,700 | $45,000 | $0 | $0 | $0 |
| 2008 | $124,600 | $45,000 | $0 | $0 | $0 |
| 2007 | $124,600 | $45,000 | $0 | $0 | $0 |
| 2006 | $124,600 | $45,000 | $0 | $0 | $0 |
Deed and Sales History
| 1 | 12/11/2018 | SWD | STATUTORY WARRANTY DEED | GOODWIN L CASEY & SANDRA K | LAIB JENNIFER L | | | $335,000.00 | 136070 | 2018-10247 |
| 2 | 06/26/1989 | WARRANTY D | WARRANTY DEED | | | | | $69,000.00 | 0 | 1778-903887 |
Payout Agreement
| No payout information available.. |