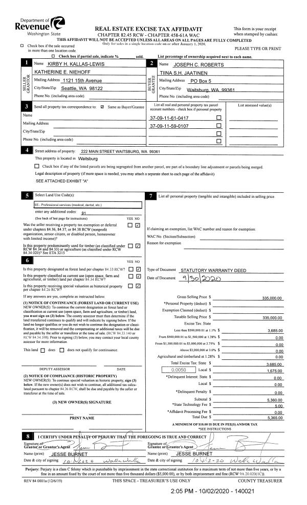
Property
Account |
| Property ID: | 26477 | Abbreviated Legal Description: | SOUTH PARK LOT 1 BLK 2 |
| Parcel Number: | 360729760201 | Agent Code: | |
| Type: | Real | | |
| Tax Area: | 1 - OL-140-F | Land Use Code | 11 |
| Open Space: | N | DFL | N |
| Historic Property: | N | Remodel Property: | N |
| Multi-Family Redevelopment: | N | | |
| Township: | 7 | Section: | 29 |
| Range: | 36 |
Location |
| Address: | 335 MYRTLE ST WA 99362 | Mapsco: | |
| Neighborhood: | Fair Inferior Res | Map ID: | |
| Neighborhood CD: | 512111 |
Owner |
| Name: | AVALOS-NUNEZ RIGOBERTO | Owner ID: | 66093 |
| Mailing Address: | 335 MYRTLE ST WALLA WALLA, WA 99362 | % Ownership: | 100.0000000000% |
| | | Exemptions: | |
Taxes and Assessment Details
Values
| (+) Improvement Homesite Value: | + | $0 | |
| (+) Improvement Non-Homesite Value: | + | $129,370 | |
| (+) Land Homesite Value: | + | $0 | |
| (+) Land Non-Homesite Value: | + | $34,650 | |
| (+) Curr Use (HS): | + | $0 | $0 |
| (+) Curr Use (NHS): | + | $0 | $0 |
| | | -------------------------- | |
| (=) Market Value: | = | $164,020 | |
| (–) Productivity Loss: | – | $0 | |
| | | -------------------------- | |
| (=) Subtotal: | = | $164,020 | |
| (+) Senior Appraised Value: | + | $0 | |
| (+) Non-Senior Appraised Value: | + | $164,020 | |
| | | -------------------------- | |
| (=) Total Appraised Value: | = | $164,020 | |
| (–) Senior Exemption Loss: | – | $0 | |
| (–) Exemption Loss: | – | $0 | |
| | | -------------------------- | |
| (=) Taxable Value: | = | $164,020 | |
Taxing Jurisdiction
| Owner: | AVALOS-NUNEZ RIGOBERTO | | |
| % Ownership: | 100.0000000000% | | |
| Total Value: | $164,020 | | |
| Tax Area: | 1 - OL-140-F |
| CERFD | CURRENT EXPENSE REFUND 010 | 0.0000000000 | $164,020 | $164,020 | $0.00 | | |
| CURREXP | CURRENT EXPENSE 010 | 1.0175366760 | $164,020 | $164,020 | $166.90 | | |
| HUMNSERV | HUMAN SERVICES 119 | 0.0250000000 | $164,020 | $164,020 | $4.10 | | |
| SLDREL | SOLDIERS RELIEF 121 | 0.0155990005 | $164,020 | $164,020 | $2.56 | | |
| EMERGSER | EMS 147 | 0.3792580840 | $164,020 | $164,020 | $62.21 | | |
| EMSRFD | EMS REFUND 147 | 0.0000000000 | $164,020 | $164,020 | $0.00 | | |
| PORTRFD | PORT REFUND 640 | 0.0000000000 | $164,020 | $164,020 | $0.00 | | |
| PORTWWGEN | PORT OF WW 640 | 0.2460186015 | $164,020 | $164,020 | $40.35 | | |
| SD140BOND | SD #140 BOND 764 | 0.8342371393 | $164,020 | $164,020 | $136.83 | | |
| SD140GEN | SD #140 GENERAL 760 | 2.0646500647 | $164,020 | $164,020 | $338.64 | | |
| ST2 | STATE SCHOOL PART 2 600 | 0.8131451643 | $164,020 | $164,020 | $133.37 | | |
| STATESCHL | STATE SCHOOL 600 | 1.5158548041 | $164,020 | $164,020 | $248.63 | | |
| STREFUND | STATE REFUND LEVY 603 | 0.0000000000 | $164,020 | $164,020 | $0.00 | | |
| CWWBOND | C OF WW BOND 643 | 0.2760494372 | $164,020 | $164,020 | $45.28 | | |
| CWWGEN | CITY OF WW 631 | 1.6100204973 | $164,020 | $164,020 | $264.08 | | |
| CWWRFD | CITY OF WALLA WALLA REFUND 631 | 0.0000000000 | $164,020 | $164,020 | $0.00 | | |
| | Total Tax Rate: | 8.7973694689 | | | | | |
| | | | | Taxes w/Current Exemptions: | $1,442.95 | | |
| | | | | Taxes w/o Exemptions: | $1,442.95 | | |
Improvement / Building
| Improvement #1: | RESIDENTIAL | State Code: | 11 | 768.0 sqft | Value: | $129,370 |
| Exterior Wall: | SIDING | Foundation: | POST & PIER | | Heating/Cooling: | WARM & COOLED AIR | Number of Bathrooms: | 1 | | Number of Bedrooms: | 2 | Plumbing: | 6 | | Roof Covering: | COMP SHINGLE |   |   |
|
| | Type | Description | Class CD | Sub Class CD | Year Built | Area |
| | MA | Main Area | 1 | 20 | 1906 | 768.0 |
| | SI1 | SITE IMPROVEMENT | 1 | 20 | 1906 | 1.0 |
| | RPO | OPEN PORCH W/ROOF | 1 | 20 | 1906 | 100.0 |
| | SWP | Solid Wall Porch | 1 | 20 | 1906 | 247.0 |
Sketch
Property Image
Land
| 1 | RES 1 | Converted: Residential | 0.1515 | 6600.00 | 0.00 | 0.00 | 1.00 | $34,650 | $0 |
Roll Value History
| 2025 | N/A | N/A | N/A | N/A | N/A |
| 2024 | $165,100 | $59,400 | $0 | $224,500 | $224,500 |
| 2023 | $129,370 | $34,650 | $0 | $164,020 | $164,020 |
| 2022 | $112,490 | $34,650 | $0 | $147,140 | $147,140 |
| 2021 | $105,130 | $34,650 | $0 | $139,780 | $139,780 |
| 2020 | $80,870 | $34,650 | $0 | $115,520 | $115,520 |
| 2019 | $80,870 | $34,650 | $0 | $115,520 | $115,520 |
| 2018 | $73,520 | $34,650 | $0 | $108,170 | $108,170 |
| 2017 | $68,090 | $39,600 | $0 | $107,690 | $107,690 |
| 2016 | $61,900 | $39,600 | $0 | $101,500 | $101,500 |
| 2015 | $61,900 | $39,600 | $0 | $101,500 | $101,500 |
| 2014 | $61,900 | $39,600 | $0 | $101,500 | $101,500 |
| 2013 | $61,900 | $39,600 | $0 | $101,500 | $101,500 |
| 2012 | $53,800 | $39,600 | $0 | $0 | $0 |
| 2011 | $53,800 | $39,600 | $0 | $0 | $0 |
| 2010 | $53,800 | $39,600 | $0 | $0 | $0 |
| 2009 | $70,300 | $39,600 | $0 | $0 | $0 |
| 2008 | $70,300 | $39,600 | $0 | $0 | $0 |
| 2007 | $53,800 | $13,200 | $0 | $0 | $0 |
| 2006 | $53,800 | $13,200 | $0 | $0 | $0 |
Deed and Sales History
| 1 | 10/17/2019 | SWD | STATUTORY WARRANTY DEED | J & J HOLDINGS LLC | AVALOS-NUNEZ RIGOBERTO | | | $144,000.00 | 137887 | 2019-08344 |
| 2 | 07/15/2019 | QCD | QUIT CLAIM DEED | COFFEY DANIEL T & ERIN L | J & J HOLDINGS LLC | | | $0.00 | 137282 | 2019-05120 |
| 3 | 01/30/2019 | QCD | QUIT CLAIM DEED | COFFEY DANIEL T & ERIN L | J & J HOLDINGS LLC | | | $119,312.00 | 136326 | 2019-00627 |
| 4 | 11/23/2011 | WARRANTY D | WARRANTY DEED | LANGERT, JONNELLE M WILSON | COFFEY, DANIEL T & ERIN L | | | $105,000.00 | 121034 | 2011-09229 |
| 5 | 03/05/2008 | QCD | QUIT CLAIM DEED | LANGERT, PAUL | LANGERT, JONNELLE M | | | | 114628 | 2008-02051 |
| 6 | 05/14/1999 | WARRANTY D | WARRANTY DEED | | | | | $64,800.00 | 92753 | 2849-905856 |
Payout Agreement
| No payout information available.. |