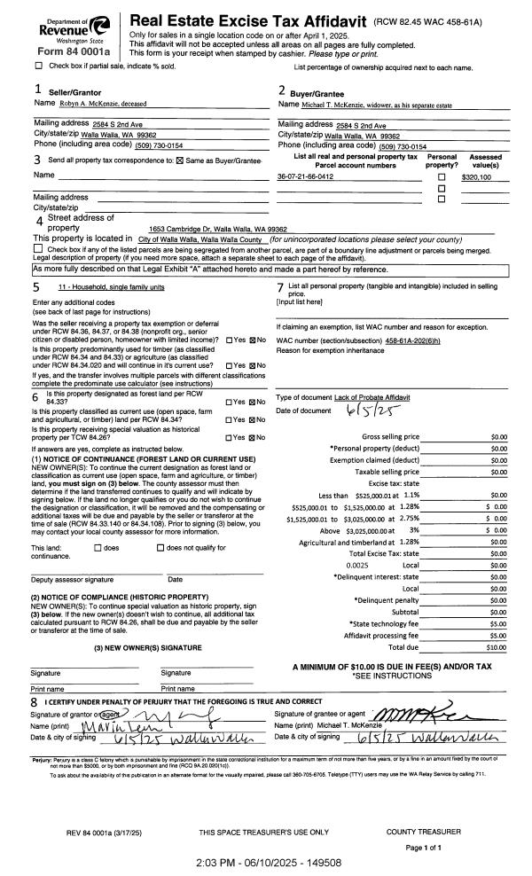
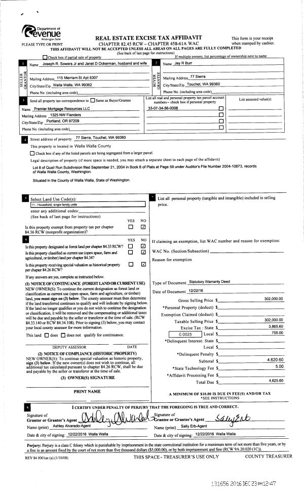
Property
Account |
| Property ID: | 26475 | Abbreviated Legal Description: | 8-6-35 LOT 3 OF SHORT PLAT (SELY PTN SW1/4SW1/4 PLUS WLY 348' OFSLY 663' OF SE1/4SW1/4) AMENDED BY REVISED SHORTPLAT |
| Parcel Number: | 350608330012 | Agent Code: | |
| Type: | Real | | |
| Tax Area: | 311 - 250-4 | Land Use Code | 83 |
| Open Space: | Y | DFL | N |
| Historic Property: | N | Remodel Property: | N |
| Multi-Family Redevelopment: | N | | |
| Township: | 6 | Section: | 8 |
| Range: | 35 |
Location |
| Address: | 927 LOCHER RD WA 99324 | Mapsco: | |
| Neighborhood: | 0 Farm | Map ID: | |
| Neighborhood CD: | 2220 |
Owner |
| Name: | SCAMAHORN LIVING TRUST | Owner ID: | 61136 |
| Mailing Address: | 887 LOCHER RD TOUCHET, WA 99362 | % Ownership: | 100.0000000000% |
| | | Exemptions: | |
Taxes and Assessment Details
Values
| (+) Improvement Homesite Value: | + | $0 | |
| (+) Improvement Non-Homesite Value: | + | $0 | |
| (+) Land Homesite Value: | + | $55,000 | |
| (+) Land Non-Homesite Value: | + | $0 | |
| (+) Curr Use (HS): | + | $0 | $0 |
| (+) Curr Use (NHS): | + | $72,240 | $11,380 |
| | | -------------------------- | |
| (=) Market Value: | = | $127,240 | |
| (–) Productivity Loss: | – | $60,860 | |
| | | -------------------------- | |
| (=) Subtotal: | = | $66,380 | |
| (+) Senior Appraised Value: | + | $0 | |
| (+) Non-Senior Appraised Value: | + | $66,380 | |
| | | -------------------------- | |
| (=) Total Appraised Value: | = | $66,380 | |
| (–) Senior Exemption Loss: | – | $0 | |
| (–) Exemption Loss: | – | $0 | |
| | | -------------------------- | |
| (=) Taxable Value: | = | $66,380 | |
Taxing Jurisdiction
| Owner: | SCAMAHORN LIVING TRUST | | |
| % Ownership: | 100.0000000000% | | |
| Total Value: | $127,240 | | |
| Tax Area: | 311 - 250-4 |
| CERFD | CURRENT EXPENSE REFUND 010 | 0.0000000000 | $66,380 | $66,380 | $0.00 | | |
| CURREXP | CURRENT EXPENSE 010 | 1.0175366760 | $66,380 | $66,380 | $67.54 | | |
| HUMNSERV | HUMAN SERVICES 119 | 0.0250000000 | $66,380 | $66,380 | $1.66 | | |
| SLDREL | SOLDIERS RELIEF 121 | 0.0155990005 | $66,380 | $66,380 | $1.04 | | |
| EMERGSER | EMS 147 | 0.3792580840 | $66,380 | $66,380 | $25.18 | | |
| EMSRFD | EMS REFUND 147 | 0.0000000000 | $66,380 | $66,380 | $0.00 | | |
| FD4EXP | FD #4 EXPENSE 686 | 0.8836993059 | $66,380 | $66,380 | $58.66 | | |
| RLBRFD | RURAL LIBRARY REFUND 623 | 0.0000000000 | $66,380 | $66,380 | $0.00 | | |
| RURALLIB | RURAL LIBRARY 623 | 0.3710609029 | $66,380 | $66,380 | $24.63 | | |
| PORTRFD | PORT REFUND 640 | 0.0000000000 | $66,380 | $66,380 | $0.00 | | |
| PORTWWGEN | PORT OF WW 640 | 0.2460186015 | $66,380 | $66,380 | $16.33 | | |
| SD250BOND | SD #250 BOND 773 | 1.4560608159 | $66,380 | $66,380 | $96.65 | | |
| SD250GEN | SD #250 GENERAL 770 | 2.3880724087 | $66,380 | $66,380 | $158.52 | | |
| ST2 | STATE SCHOOL PART 2 600 | 0.8131451643 | $66,380 | $66,380 | $53.98 | | |
| STATESCHL | STATE SCHOOL 600 | 1.5158548041 | $66,380 | $66,380 | $100.62 | | |
| STREFUND | STATE REFUND LEVY 603 | 0.0000000000 | $66,380 | $66,380 | $0.00 | | |
| COROAD | COUNTY ROAD 115 | 1.6549953990 | $66,380 | $66,380 | $109.86 | | |
| CRPRD | COUNTY ROAD REFUND 115 | 0.0000000000 | $66,380 | $66,380 | $0.00 | | |
| | Total Tax Rate: | 10.7663011628 | | | | | |
| | | | | Taxes w/Current Exemptions: | $714.67 | | |
| | | | | Taxes w/o Exemptions: | $714.67 | | |
Improvement / Building
Sketch
| No sketches available for this property. |
Property Image
Land
| 1 | 8000-C1-I | Class 1 irrigated | 9.0300 | 393346.80 | 0.00 | 0.00 | 1.00 | $72,240 | $11,380 |
| 2 | 55000-HS | Homesite 55000 | 1.0000 | 0.00 | 0.00 | 0.00 | 1.00 | $55,000 | $0 |
Roll Value History
| 2025 | N/A | N/A | N/A | N/A | N/A |
| 2024 | $0 | $127,240 | $11,430 | $66,430 | $66,430 |
| 2023 | $0 | $127,240 | $11,380 | $66,380 | $66,380 |
| 2022 | $0 | $195,150 | $11,190 | $161,190 | $161,190 |
| 2021 | $0 | $195,150 | $11,190 | $161,190 | $161,190 |
| 2020 | $0 | $120,150 | $11,420 | $86,420 | $86,420 |
| 2019 | $0 | $120,150 | $11,780 | $86,780 | $86,780 |
| 2018 | $0 | $120,150 | $12,000 | $87,000 | $87,000 |
| 2017 | $0 | $120,150 | $12,380 | $87,380 | $87,380 |
| 2016 | $0 | $120,150 | $12,430 | $87,430 | $87,430 |
| 2015 | $0 | $120,150 | $11,320 | $86,320 | $86,320 |
| 2014 | $0 | $120,150 | $11,320 | $86,320 | $86,320 |
| 2013 | $0 | $120,200 | $9,671 | $84,700 | $84,700 |
| 2012 | $0 | $82,700 | $0 | $0 | $0 |
| 2011 | $0 | $82,400 | $0 | $0 | $0 |
| 2010 | $45,000 | $82,600 | $0 | $0 | $0 |
| 2009 | $45,000 | $82,500 | $0 | $0 | $0 |
| 2008 | $45,400 | $55,400 | $0 | $0 | $0 |
| 2007 | $45,400 | $55,400 | $0 | $0 | $0 |
| 2006 | $0 | $55,400 | $0 | $0 | $0 |
Deed and Sales History
| 1 | 04/19/2024 | SWD | STATUTORY WARRANTY DEED | SCAMAHORN LIVING TRUST | ASHLEY RONALD L & R DIANE | | | $265,000.00 | 147420 | 2024-01957 |
| 2 | 06/14/2017 | WARRANTY D | WARRANTY DEED | SCAMAHORN ALLEN E & LORI M | SCAMAHORN LIVING TRUST | | | $0.00 | 132680 | 2017-04963 |
| 3 | 03/21/2005 | WARRANTY D | WARRANTY DEED | KELSAY, WILLIAM J | SCAMAHORN ALLEN E & LORI M | | | $165,000.00 | 107039 | 2005-03186 |
|   | |
| 4 | 02/17/2005 | WARRANTY D | WARRANTY DEED | KELSAY WILLIAM & LAURIE | KELSAY WILLIAM J | | | | 0 | CC#04--00245-6 |
Payout Agreement
| No payout information available.. |