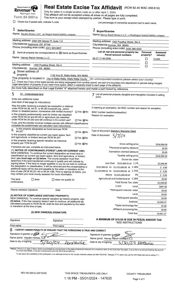
Property
Account |
| Property ID: | 26473 | Abbreviated Legal Description: | LANGFORDS LOT 10 BLK 31 LESS N 16' |
| Parcel Number: | 360719593110 | Agent Code: | |
| Type: | Real | | |
| Tax Area: | 1 - OL-140-F | Land Use Code | 91 |
| Open Space: | N | DFL | N |
| Historic Property: | N | Remodel Property: | N |
| Multi-Family Redevelopment: | N | | |
| Township: | 7 | Section: | 19 |
| Range: | 36 |
Location |
| Address: | 532 N 7TH AVE WA 99362 | Mapsco: | |
| Neighborhood: | F SFR Contig | Map ID: | |
| Neighborhood CD: | 512097 |
Owner |
| Name: | RUIZ ALICIA & MARTINEZ RUIZ LEONARDO | Owner ID: | 72209 |
| Mailing Address: | 532 N 7TH AVE WALLA WALLA, WA 99362 | % Ownership: | 100.0000000000% |
| | | Exemptions: | |
Taxes and Assessment Details
Values
| (+) Improvement Homesite Value: | + | $0 | |
| (+) Improvement Non-Homesite Value: | + | $0 | |
| (+) Land Homesite Value: | + | $0 | |
| (+) Land Non-Homesite Value: | + | $18,960 | |
| (+) Curr Use (HS): | + | $0 | $0 |
| (+) Curr Use (NHS): | + | $0 | $0 |
| | | -------------------------- | |
| (=) Market Value: | = | $18,960 | |
| (–) Productivity Loss: | – | $0 | |
| | | -------------------------- | |
| (=) Subtotal: | = | $18,960 | |
| (+) Senior Appraised Value: | + | $0 | |
| (+) Non-Senior Appraised Value: | + | $18,960 | |
| | | -------------------------- | |
| (=) Total Appraised Value: | = | $18,960 | |
| (–) Senior Exemption Loss: | – | $0 | |
| (–) Exemption Loss: | – | $0 | |
| | | -------------------------- | |
| (=) Taxable Value: | = | $18,960 | |
Taxing Jurisdiction
| Owner: | RUIZ ALICIA & MARTINEZ RUIZ LEONARDO | | |
| % Ownership: | 100.0000000000% | | |
| Total Value: | $18,960 | | |
| Tax Area: | 1 - OL-140-F |
| CERFD | CURRENT EXPENSE REFUND 010 | 0.0000000000 | $18,960 | $18,960 | $0.00 | | |
| CURREXP | CURRENT EXPENSE 010 | 1.0175366760 | $18,960 | $18,960 | $19.29 | | |
| HUMNSERV | HUMAN SERVICES 119 | 0.0250000000 | $18,960 | $18,960 | $0.47 | | |
| SLDREL | SOLDIERS RELIEF 121 | 0.0155990005 | $18,960 | $18,960 | $0.30 | | |
| EMERGSER | EMS 147 | 0.3792580840 | $18,960 | $18,960 | $7.19 | | |
| EMSRFD | EMS REFUND 147 | 0.0000000000 | $18,960 | $18,960 | $0.00 | | |
| PORTRFD | PORT REFUND 640 | 0.0000000000 | $18,960 | $18,960 | $0.00 | | |
| PORTWWGEN | PORT OF WW 640 | 0.2460186015 | $18,960 | $18,960 | $4.66 | | |
| SD140BOND | SD #140 BOND 764 | 0.8342371393 | $18,960 | $18,960 | $15.82 | | |
| SD140GEN | SD #140 GENERAL 760 | 2.0646500647 | $18,960 | $18,960 | $39.15 | | |
| ST2 | STATE SCHOOL PART 2 600 | 0.8131451643 | $18,960 | $18,960 | $15.42 | | |
| STATESCHL | STATE SCHOOL 600 | 1.5158548041 | $18,960 | $18,960 | $28.74 | | |
| STREFUND | STATE REFUND LEVY 603 | 0.0000000000 | $18,960 | $18,960 | $0.00 | | |
| CWWBOND | C OF WW BOND 643 | 0.2760494372 | $18,960 | $18,960 | $5.23 | | |
| CWWGEN | CITY OF WW 631 | 1.6100204973 | $18,960 | $18,960 | $30.53 | | |
| CWWRFD | CITY OF WALLA WALLA REFUND 631 | 0.0000000000 | $18,960 | $18,960 | $0.00 | | |
| | Total Tax Rate: | 8.7973694689 | | | | | |
| | | | | Taxes w/Current Exemptions: | $166.80 | | |
| | | | | Taxes w/o Exemptions: | $166.80 | | |
Improvement / Building
Sketch
| No sketches available for this property. |
Property Image
Land
| 1 | RES 1 | Converted: Residential | 0.1056 | 4600.00 | 0.00 | 0.00 | 1.00 | $18,960 | $0 |
Roll Value History
| 2025 | N/A | N/A | N/A | N/A | N/A |
| 2024 | $0 | $19,650 | $0 | $19,650 | $19,650 |
| 2023 | $0 | $18,960 | $0 | $18,960 | $18,960 |
| 2022 | $0 | $18,960 | $0 | $18,960 | $18,960 |
| 2021 | $0 | $18,960 | $0 | $18,960 | $18,960 |
| 2020 | $0 | $18,960 | $0 | $18,960 | $18,960 |
| 2019 | $0 | $18,960 | $0 | $18,960 | $18,960 |
| 2018 | $0 | $18,960 | $0 | $18,960 | $18,960 |
| 2017 | $0 | $4,200 | $0 | $4,200 | $4,200 |
| 2016 | $0 | $4,200 | $0 | $4,200 | $4,200 |
| 2015 | $0 | $4,200 | $0 | $4,200 | $4,200 |
| 2014 | $0 | $4,200 | $0 | $4,200 | $4,200 |
| 2013 | $0 | $4,200 | $0 | $4,200 | $4,200 |
| 2012 | $0 | $2,700 | $0 | $0 | $0 |
| 2011 | $0 | $2,700 | $0 | $0 | $0 |
| 2010 | $0 | $2,700 | $0 | $0 | $0 |
| 2009 | $0 | $2,700 | $0 | $0 | $0 |
| 2008 | $0 | $2,700 | $0 | $0 | $0 |
| 2007 | $0 | $2,700 | $0 | $0 | $0 |
| 2006 | $0 | $2,700 | $0 | $0 | $0 |
Deed and Sales History
| 1 | 08/08/2022 | QCD | QUIT CLAIM DEED | RUIZ ALICIA | RUIZ ALICIA & MARTINEZ RUIZ LEONARDO | 2-PARCELS | | $0.00 | 144466 | 2022-06628 |
| 2 | 10/19/2018 | QCD | QUIT CLAIM DEED | RAMOS OSCAR D | RUIZ ALICIA | 2 PARCELS | | $0.00 | 135771 | 2018-08682 |
| 3 | 10/28/2008 | QCD | QUIT CLAIM DEED | RUIZ, ALICIA | RAMOS OSCAR D | | | $32,042.00 | 115883 | 2008-10912 |
|   | |
| 4 | 12/17/2004 | WARRANTY D | WARRANTY DEED | POTTER, CONSTANCE | RUIZ ALICIA | | | $100,000.00 | 106435 | 2004-14542 |
|   | |
| 5 | 01/01/1954 | WARRANTY D | WARRANTY DEED | | | | | | 0 | 1468-406758 |
Payout Agreement
| No payout information available.. |