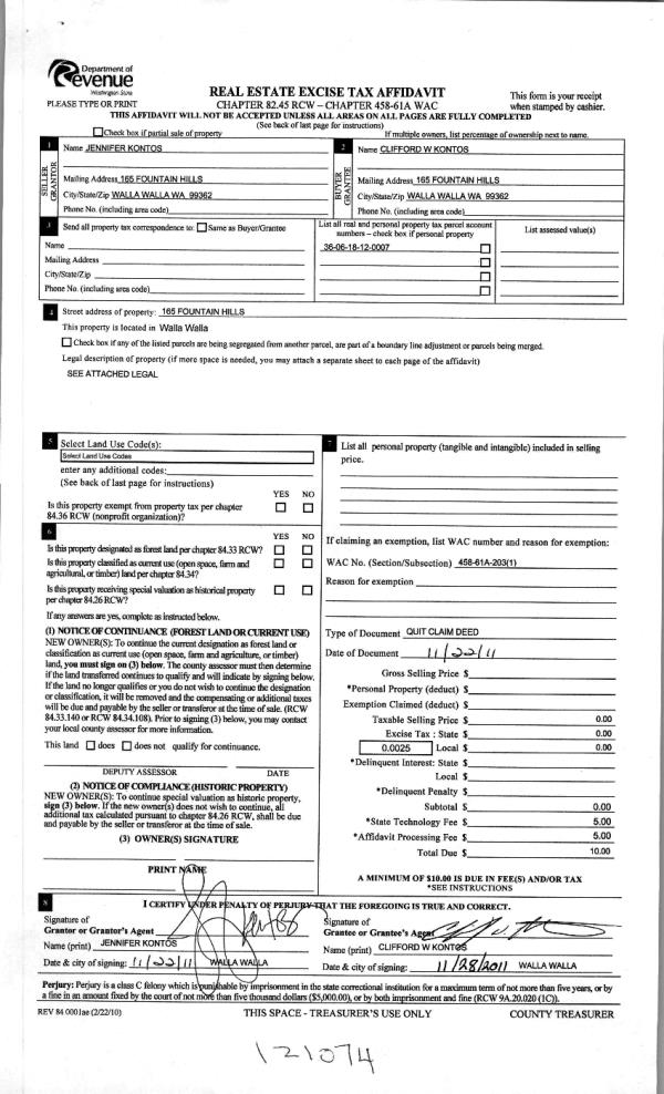
Property
Account |
| Property ID: | 26244 | Abbreviated Legal Description: | N RAYMOND DC (PARCEL III OF SURVEY) PT IN NWLY PTN TAX 1 |
| Parcel Number: | 340736510036 | Agent Code: | |
| Type: | Real | | |
| Tax Area: | 101 - 140-4 | Land Use Code | 12 |
| Open Space: | N | DFL | N |
| Historic Property: | N | Remodel Property: | N |
| Multi-Family Redevelopment: | N | | |
| Township: | 7 | Section: | 36 |
| Range: | 34 |
Location |
| Address: | 204 DETOUR RD WA 99362 | Mapsco: | |
| Neighborhood: | DUPLEX RURAL | Map ID: | |
| Neighborhood CD: | 215033 |
Owner |
| Name: | ROWE MARY | Owner ID: | 71001 |
| Mailing Address: | WADE ROWE 204 DETOUR RD WALLA WALLA, WA 99362 | % Ownership: | 100.0000000000% |
| | | Exemptions: | |
Taxes and Assessment Details
Values
| (+) Improvement Homesite Value: | + | $0 | |
| (+) Improvement Non-Homesite Value: | + | $528,190 | |
| (+) Land Homesite Value: | + | $0 | |
| (+) Land Non-Homesite Value: | + | $165,600 | |
| (+) Curr Use (HS): | + | $0 | $0 |
| (+) Curr Use (NHS): | + | $0 | $0 |
| | | -------------------------- | |
| (=) Market Value: | = | $693,790 | |
| (–) Productivity Loss: | – | $0 | |
| | | -------------------------- | |
| (=) Subtotal: | = | $693,790 | |
| (+) Senior Appraised Value: | + | $0 | |
| (+) Non-Senior Appraised Value: | + | $693,790 | |
| | | -------------------------- | |
| (=) Total Appraised Value: | = | $693,790 | |
| (–) Senior Exemption Loss: | – | $0 | |
| (–) Exemption Loss: | – | $0 | |
| | | -------------------------- | |
| (=) Taxable Value: | = | $693,790 | |
Taxing Jurisdiction
| Owner: | ROWE MARY | | |
| % Ownership: | 100.0000000000% | | |
| Total Value: | $693,790 | | |
| Tax Area: | 101 - 140-4 |
| CERFD | CURRENT EXPENSE REFUND 010 | 0.0000000000 | $693,790 | $693,790 | $0.00 | | |
| CURREXP | CURRENT EXPENSE 010 | 1.0175366760 | $693,790 | $693,790 | $705.96 | | |
| HUMNSERV | HUMAN SERVICES 119 | 0.0250000000 | $693,790 | $693,790 | $17.34 | | |
| SLDREL | SOLDIERS RELIEF 121 | 0.0155990005 | $693,790 | $693,790 | $10.82 | | |
| EMERGSER | EMS 147 | 0.3792580840 | $693,790 | $693,790 | $263.13 | | |
| EMSRFD | EMS REFUND 147 | 0.0000000000 | $693,790 | $693,790 | $0.00 | | |
| FD4EXP | FD #4 EXPENSE 686 | 0.8836993059 | $693,790 | $693,790 | $613.10 | | |
| RLBRFD | RURAL LIBRARY REFUND 623 | 0.0000000000 | $693,790 | $693,790 | $0.00 | | |
| RURALLIB | RURAL LIBRARY 623 | 0.3710609029 | $693,790 | $693,790 | $257.44 | | |
| PORTRFD | PORT REFUND 640 | 0.0000000000 | $693,790 | $693,790 | $0.00 | | |
| PORTWWGEN | PORT OF WW 640 | 0.2460186015 | $693,790 | $693,790 | $170.69 | | |
| SD140BOND | SD #140 BOND 764 | 0.8342371393 | $693,790 | $693,790 | $578.79 | | |
| SD140GEN | SD #140 GENERAL 760 | 2.0646500647 | $693,790 | $693,790 | $1,432.43 | | |
| ST2 | STATE SCHOOL PART 2 600 | 0.8131451643 | $693,790 | $693,790 | $564.15 | | |
| STATESCHL | STATE SCHOOL 600 | 1.5158548041 | $693,790 | $693,790 | $1,051.68 | | |
| STREFUND | STATE REFUND LEVY 603 | 0.0000000000 | $693,790 | $693,790 | $0.00 | | |
| COROAD | COUNTY ROAD 115 | 1.6549953990 | $693,790 | $693,790 | $1,148.22 | | |
| CRPRD | COUNTY ROAD REFUND 115 | 0.0000000000 | $693,790 | $693,790 | $0.00 | | |
| | Total Tax Rate: | 9.8210551422 | | | | | |
| | | | | Taxes w/Current Exemptions: | $6,813.75 | | |
| | | | | Taxes w/o Exemptions: | $6,813.75 | | |
Improvement / Building
| Improvement #1: | RESIDENTIAL | State Code: | 12 | 3456.0 sqft | Value: | $528,190 |
| Exterior Wall: | METAL/STEEL | Heating/Cooling: | WARM & COOLED AIR | | Number of Bathrooms: | 3.5 | Number of Bedrooms: | 6 | | Plumbing: | 17 | Roof Covering: | GALVANIZED METAL |
|
| | Type | Description | Class CD | Sub Class CD | Year Built | Area |
| | MA | Main Area | 4 | 35 | 2008 | 3456.0 |
| | SI1 | SITE IMPROVEMENT | 4 | 30 | 0 | 4.0 |
| | BASE | BASEMENT | 1 | 35 | 2008 | 1920.0 |
| | RPS | PORCH W/STEPS,ROOF | 4 | 35 | 2008 | 24.0 |
| | RPS | PORCH W/STEPS,ROOF | 4 | 35 | 2008 | 24.0 |
| | S1F | Single One Story Fireplace | 4 | 35 | 2008 | 2.0 |
| | BIG | Built In Garage | 4 | 35 | 2008 | 1152.0 |
| | UPFL | Upper Floor (included in main area) | 4 | 35 | 2008 | 1536.0 |
| | OPS | OPEN PORCH W/STEPS | 4 | 35 | 2008 | 16.0 |
| | OPS | OPEN PORCH W/STEPS | 4 | 35 | 2008 | 28.0 |
| | OPS | OPEN PORCH W/STEPS | 4 | 35 | 2008 | 16.0 |
| | OPS | OPEN PORCH W/STEPS | 4 | 35 | 2008 | 35.0 |
| | POL1 | POLE BUILDING-GRAVEL | 1 | 30 | 2008 | 360.0 |
Sketch
Property Image
Land
| 1 | RES 1 | Converted: Residential | 10.2400 | 446054.40 | 0.00 | 0.00 | 1.00 | $165,600 | $0 |
Roll Value History
| 2025 | N/A | N/A | N/A | N/A | N/A |
| 2024 | $528,190 | $165,600 | $0 | $693,790 | $693,790 |
| 2023 | $528,190 | $165,600 | $0 | $693,790 | $693,790 |
| 2022 | $528,190 | $165,600 | $0 | $693,790 | $693,790 |
| 2021 | $310,700 | $165,600 | $0 | $476,300 | $476,300 |
| 2020 | $335,410 | $120,600 | $0 | $456,010 | $456,010 |
| 2019 | $335,410 | $120,600 | $0 | $456,010 | $456,010 |
| 2018 | $304,920 | $120,600 | $0 | $425,520 | $425,520 |
| 2017 | $304,920 | $120,600 | $0 | $425,520 | $425,520 |
| 2016 | $277,200 | $120,600 | $0 | $397,800 | $397,800 |
| 2015 | $277,200 | $120,600 | $0 | $397,800 | $397,800 |
| 2014 | $272,700 | $120,600 | $0 | $393,300 | $393,300 |
| 2013 | $272,700 | $120,600 | $0 | $393,300 | $393,300 |
| 2012 | $272,700 | $120,600 | $0 | $0 | $0 |
| 2011 | $272,700 | $120,600 | $0 | $0 | $0 |
| 2010 | $272,700 | $120,600 | $0 | $0 | $0 |
| 2009 | $205,500 | $120,600 | $0 | $0 | $0 |
| 2008 | $156,100 | $120,600 | $0 | $0 | $0 |
| 2007 | $42,500 | $62,300 | $0 | $0 | $0 |
| 2006 | $42,500 | $62,300 | $0 | $0 | $0 |
Deed and Sales History
| 1 | 01/14/2022 | QCD | QUIT CLAIM DEED | ROWE MARY | ROWE MARY | | | $0.00 | 143278 | 2022-00636 |
| 2 | 09/24/2013 | QCD | QUIT CLAIM DEED | ROWE, MARY | ROWE, MARY | | | $0.00 | 124700 | 2013-09732 |
| 3 | 01/17/2012 | QCD | QUIT CLAIM DEED | ROWE, WADE G & DEDRA G | ROWE, MARY | | | | 121286 | 2012-00472 |
| 4 | 01/05/2012 | QCD | QUIT CLAIM DEED | ROWE, ROGER | ROWE, MARY | | | | 121236 | 2012-00136 |
| 5 | 01/27/2009 | QCD | QUIT CLAIM DEED | ROWE, ROGER W & MARY | ROWE, ROGER W & MARY | | | $117,225.00 | 116100 | 2009-00707 |
| 6 | 05/19/1992 | WARRANTY D | WARRANTY DEED | | | | | $24,500.00 | 0 | 1979-204362 |
Payout Agreement
| No payout information available.. |