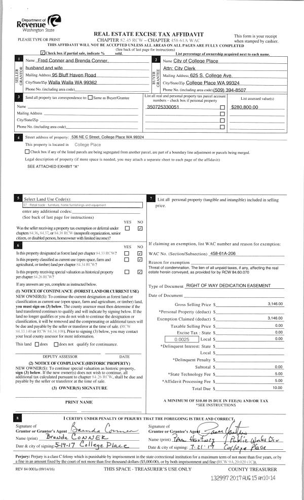
Property
Account |
| Property ID: | 25717 | Abbreviated Legal Description: | 29-7-36 TAX 23 |
| Parcel Number: | 360729210015 | Agent Code: | |
| Type: | Real | | |
| Tax Area: | 1 - OL-140-F | Land Use Code | 11 |
| Open Space: | N | DFL | N |
| Historic Property: | N | Remodel Property: | N |
| Multi-Family Redevelopment: | N | | |
| Township: | 7 | Section: | 29 |
| Range: | 36 |
Location |
| Address: | 327 S 4TH AVE WA 99362 | Mapsco: | |
| Neighborhood: | Fair Inferior Res | Map ID: | |
| Neighborhood CD: | 512111 |
Owner |
| Name: | WALLA WALLA GEM LLC | Owner ID: | 62127 |
| Mailing Address: | 327 S FOURTH AVE WALLA WALLA, WA 99362 | % Ownership: | 100.0000000000% |
| | | Exemptions: | |
Taxes and Assessment Details
Values
| (+) Improvement Homesite Value: | + | $0 | |
| (+) Improvement Non-Homesite Value: | + | $435,690 | |
| (+) Land Homesite Value: | + | $0 | |
| (+) Land Non-Homesite Value: | + | $39,930 | |
| (+) Curr Use (HS): | + | $0 | $0 |
| (+) Curr Use (NHS): | + | $0 | $0 |
| | | -------------------------- | |
| (=) Market Value: | = | $475,620 | |
| (–) Productivity Loss: | – | $0 | |
| | | -------------------------- | |
| (=) Subtotal: | = | $475,620 | |
| (+) Senior Appraised Value: | + | $0 | |
| (+) Non-Senior Appraised Value: | + | $475,620 | |
| | | -------------------------- | |
| (=) Total Appraised Value: | = | $475,620 | |
| (–) Senior Exemption Loss: | – | $0 | |
| (–) Exemption Loss: | – | $0 | |
| | | -------------------------- | |
| (=) Taxable Value: | = | $475,620 | |
Taxing Jurisdiction
| Owner: | WALLA WALLA GEM LLC | | |
| % Ownership: | 100.0000000000% | | |
| Total Value: | $475,620 | | |
| Tax Area: | 1 - OL-140-F |
| CERFD | CURRENT EXPENSE REFUND 010 | 0.0000000000 | $475,620 | $475,620 | $0.00 | | |
| CURREXP | CURRENT EXPENSE 010 | 1.0175366760 | $475,620 | $475,620 | $483.96 | | |
| HUMNSERV | HUMAN SERVICES 119 | 0.0250000000 | $475,620 | $475,620 | $11.89 | | |
| SLDREL | SOLDIERS RELIEF 121 | 0.0155990005 | $475,620 | $475,620 | $7.42 | | |
| EMERGSER | EMS 147 | 0.3792580840 | $475,620 | $475,620 | $180.38 | | |
| EMSRFD | EMS REFUND 147 | 0.0000000000 | $475,620 | $475,620 | $0.00 | | |
| PORTRFD | PORT REFUND 640 | 0.0000000000 | $475,620 | $475,620 | $0.00 | | |
| PORTWWGEN | PORT OF WW 640 | 0.2460186015 | $475,620 | $475,620 | $117.01 | | |
| SD140BOND | SD #140 BOND 764 | 0.8342371393 | $475,620 | $475,620 | $396.78 | | |
| SD140GEN | SD #140 GENERAL 760 | 2.0646500647 | $475,620 | $475,620 | $981.99 | | |
| ST2 | STATE SCHOOL PART 2 600 | 0.8131451643 | $475,620 | $475,620 | $386.75 | | |
| STATESCHL | STATE SCHOOL 600 | 1.5158548041 | $475,620 | $475,620 | $720.97 | | |
| STREFUND | STATE REFUND LEVY 603 | 0.0000000000 | $475,620 | $475,620 | $0.00 | | |
| CWWBOND | C OF WW BOND 643 | 0.2760494372 | $475,620 | $475,620 | $131.29 | | |
| CWWGEN | CITY OF WW 631 | 1.6100204973 | $475,620 | $475,620 | $765.76 | | |
| CWWRFD | CITY OF WALLA WALLA REFUND 631 | 0.0000000000 | $475,620 | $475,620 | $0.00 | | |
| | Total Tax Rate: | 8.7973694689 | | | | | |
| | | | | Taxes w/Current Exemptions: | $4,184.20 | | |
| | | | | Taxes w/o Exemptions: | $4,184.20 | | |
Improvement / Building
| Improvement #1: | RESIDENTIAL | State Code: | 11 | 1900.0 sqft | Value: | $435,690 |
| Exterior Wall: | SIDING | Heating/Cooling: | WARM & COOLED AIR | | Number of Bathrooms: | 3.5 | Number of Bedrooms: | 3 | | Plumbing: | 16 | Roof Covering: | COMP SHINGLE |
|
| | Type | Description | Class CD | Sub Class CD | Year Built | Area |
| | MA | Main Area | 4 | 40 | 1886 | 1900.0 |
| | UPFL | Upper Floor (included in main area) | 4 | 40 | 1886 | 672.0 |
| | SI1 | SITE IMPROVEMENT | 4 | 40 | 1886 | 2.0 |
| | WDR | WOOD DECK W/ROOF | 4 | 40 | 2016 | 24.0 |
| | RCD | WOOD DECK W/ROOF, CEILED | 4 | 40 | 1886 | 84.0 |
| | WOD | Wood Deck | 4 | 40 | 2016 | 117.0 |
| | DTG | Detached Garage | 4 | 40 | 1886 | 480.0 |
Sketch
Property Image
Land
| 1 | RES 1 | Converted: Residential | 0.1746 | 7605.00 | 0.00 | 0.00 | 1.00 | $39,930 | $0 |
Roll Value History
| 2025 | N/A | N/A | N/A | N/A | N/A |
| 2024 | $409,800 | $68,450 | $0 | $478,250 | $478,250 |
| 2023 | $435,690 | $39,930 | $0 | $475,620 | $475,620 |
| 2022 | $378,860 | $39,930 | $0 | $418,790 | $418,790 |
| 2021 | $360,820 | $39,930 | $0 | $400,750 | $400,750 |
| 2020 | $240,550 | $39,930 | $0 | $280,480 | $280,480 |
| 2019 | $240,550 | $39,930 | $0 | $280,480 | $280,480 |
| 2018 | $229,090 | $39,930 | $0 | $269,020 | $269,020 |
| 2017 | $206,370 | $45,100 | $0 | $251,470 | $251,470 |
| 2016 | $85,280 | $45,100 | $0 | $130,380 | $130,380 |
| 2015 | $85,280 | $45,100 | $0 | $130,380 | $130,380 |
| 2014 | $106,600 | $45,100 | $0 | $151,700 | $151,700 |
| 2013 | $106,600 | $45,100 | $0 | $151,700 | $151,700 |
| 2012 | $113,000 | $45,100 | $0 | $0 | $0 |
| 2011 | $113,000 | $45,100 | $0 | $0 | $0 |
| 2010 | $113,000 | $45,100 | $0 | $0 | $0 |
| 2009 | $140,900 | $45,100 | $0 | $0 | $0 |
| 2008 | $140,900 | $45,100 | $0 | $0 | $0 |
| 2007 | $95,200 | $15,200 | $0 | $0 | $0 |
| 2006 | $95,200 | $15,200 | $0 | $0 | $0 |
Deed and Sales History
| 1 | 09/18/2017 | SWD | STATUTORY WARRANTY DEED | RISING ROBERT D & VICKI B | WALLA WALLA GEM LLC | | | $0.00 | 133678 | 2017-09495 |
| 2 | 01/31/2017 | SWD | STATUTORY WARRANTY DEED | STARR DELBERT M & BECKY A | RISING ROBERT D & VICKI B | | | $290,000.00 | 131846 | 2017-00848 |
| 3 | 08/29/2014 | SWD | STATUTORY WARRANTY DEED | LARSON DOROTHY L | STARR DELBERT M & BECKY A | | | $130,000.00 | 126545 | 2014-06358 |
| 4 | 06/14/1977 | WARRANTY D | WARRANTY DEED | | | | | $0.00 | 0 | 6205-65869 |
Payout Agreement
| No payout information available.. |