Property
Account |
| Property ID: | 25697 | Abbreviated Legal Description: | 16-7-36 TAX 74 |
| Parcel Number: | 360716340037 | Agent Code: | |
| Type: | Real | | |
| Tax Area: | 5 - OL-140 | Land Use Code | 11 |
| Open Space: | N | DFL | N |
| Historic Property: | N | Remodel Property: | N |
| Multi-Family Redevelopment: | N | | |
| Township: | 7 | Section: | 16 |
| Range: | 36 |
Location |
| Address: | 1566 J ST WA 99362 | Mapsco: | |
| Neighborhood: | A-SFR | Map ID: | |
| Neighborhood CD: | 513011 |
Owner |
| Name: | RUCHERT ALBERT B & RACHEL L | Owner ID: | 66456 |
| Mailing Address: | 1566 J ST WALLA WALLA, WA 99362 | % Ownership: | 100.0000000000% |
| | | Exemptions: | |
Taxes and Assessment Details
Values
| (+) Improvement Homesite Value: | + | $0 | |
| (+) Improvement Non-Homesite Value: | + | $271,970 | |
| (+) Land Homesite Value: | + | $0 | |
| (+) Land Non-Homesite Value: | + | $38,110 | |
| (+) Curr Use (HS): | + | $0 | $0 |
| (+) Curr Use (NHS): | + | $0 | $0 |
| | | -------------------------- | |
| (=) Market Value: | = | $310,080 | |
| (–) Productivity Loss: | – | $0 | |
| | | -------------------------- | |
| (=) Subtotal: | = | $310,080 | |
| (+) Senior Appraised Value: | + | $0 | |
| (+) Non-Senior Appraised Value: | + | $310,080 | |
| | | -------------------------- | |
| (=) Total Appraised Value: | = | $310,080 | |
| (–) Senior Exemption Loss: | – | $0 | |
| (–) Exemption Loss: | – | $0 | |
| | | -------------------------- | |
| (=) Taxable Value: | = | $310,080 | |
Taxing Jurisdiction
| Owner: | RUCHERT ALBERT B & RACHEL L | | |
| % Ownership: | 100.0000000000% | | |
| Total Value: | $310,080 | | |
| Tax Area: | 5 - OL-140 |
| CERFD | CURRENT EXPENSE REFUND 010 | 0.0000000000 | $310,080 | $310,080 | $0.00 | | |
| CURREXP | CURRENT EXPENSE 010 | 1.0175366760 | $310,080 | $310,080 | $315.52 | | |
| HUMNSERV | HUMAN SERVICES 119 | 0.0250000000 | $310,080 | $310,080 | $7.75 | | |
| SLDREL | SOLDIERS RELIEF 121 | 0.0155990005 | $310,080 | $310,080 | $4.84 | | |
| EMERGSER | EMS 147 | 0.3792580840 | $310,080 | $310,080 | $117.60 | | |
| EMSRFD | EMS REFUND 147 | 0.0000000000 | $310,080 | $310,080 | $0.00 | | |
| PORTRFD | PORT REFUND 640 | 0.0000000000 | $310,080 | $310,080 | $0.00 | | |
| PORTWWGEN | PORT OF WW 640 | 0.2460186015 | $310,080 | $310,080 | $76.29 | | |
| SD140BOND | SD #140 BOND 764 | 0.8342371393 | $310,080 | $310,080 | $258.68 | | |
| SD140GEN | SD #140 GENERAL 760 | 2.0646500647 | $310,080 | $310,080 | $640.21 | | |
| ST2 | STATE SCHOOL PART 2 600 | 0.8131451643 | $310,080 | $310,080 | $252.14 | | |
| STATESCHL | STATE SCHOOL 600 | 1.5158548041 | $310,080 | $310,080 | $470.04 | | |
| STREFUND | STATE REFUND LEVY 603 | 0.0000000000 | $310,080 | $310,080 | $0.00 | | |
| CWWBOND | C OF WW BOND 643 | 0.2760494372 | $310,080 | $310,080 | $85.60 | | |
| CWWGEN | CITY OF WW 631 | 1.6100204973 | $310,080 | $310,080 | $499.24 | | |
| CWWRFD | CITY OF WALLA WALLA REFUND 631 | 0.0000000000 | $310,080 | $310,080 | $0.00 | | |
| | Total Tax Rate: | 8.7973694689 | | | | | |
| | | | | Taxes w/Current Exemptions: | $2,727.91 | | |
| | | | | Taxes w/o Exemptions: | $2,727.91 | | |
Improvement / Building
| Improvement #1: | RESIDENTIAL | State Code: | 11 | 1116.0 sqft | Value: | $271,970 |
| Exterior Wall: | VINYL | Heating/Cooling: | HEAT PUMP | | Number of Bathrooms: | 1 | Number of Bedrooms: | 2 | | Plumbing: | 6 | Roof Covering: | COMP SHINGLE |
|
| | Type | Description | Class CD | Sub Class CD | Year Built | Area |
| | MA | Main Area | 1 | 30 | 1950 | 1116.0 |
| | SI1 | SITE IMPROVEMENT | 1 | 30 | 1950 | 1.5 |
| | ATG | Attached Garage | 1 | 30 | 1950 | 228.0 |
| | OSP | Open | 1 | 30 | 1950 | 20.0 |
Sketch
Property Image
Land
| 1 | RES 1 | Converted: Residential | 0.1400 | 6098.00 | 0.00 | 0.00 | 1.00 | $38,110 | $0 |
Roll Value History
| 2025 | N/A | N/A | N/A | N/A | N/A |
| 2024 | $247,410 | $60,980 | $0 | $308,390 | $308,390 |
| 2023 | $271,970 | $38,110 | $0 | $310,080 | $310,080 |
| 2022 | $271,970 | $38,110 | $0 | $310,080 | $310,080 |
| 2021 | $187,570 | $38,110 | $0 | $225,680 | $225,680 |
| 2020 | $133,980 | $38,110 | $0 | $172,090 | $172,090 |
| 2019 | $133,980 | $38,110 | $0 | $172,090 | $172,090 |
| 2018 | $116,500 | $38,110 | $0 | $154,610 | $154,610 |
| 2017 | $112,350 | $24,400 | $0 | $136,750 | $136,750 |
| 2016 | $107,000 | $24,400 | $0 | $131,400 | $131,400 |
| 2015 | $101,900 | $24,400 | $0 | $126,300 | $126,300 |
| 2014 | $101,900 | $24,400 | $0 | $126,300 | $126,300 |
| 2013 | $101,900 | $24,400 | $0 | $126,300 | $126,300 |
| 2012 | $116,000 | $24,400 | $0 | $0 | $0 |
| 2011 | $116,000 | $24,400 | $0 | $0 | $0 |
| 2010 | $109,300 | $24,400 | $0 | $0 | $0 |
| 2009 | $124,100 | $24,400 | $0 | $0 | $0 |
| 2008 | $89,800 | $24,400 | $0 | $0 | $0 |
| 2007 | $89,800 | $24,400 | $0 | $0 | $0 |
| 2006 | $68,100 | $12,200 | $0 | $0 | $0 |
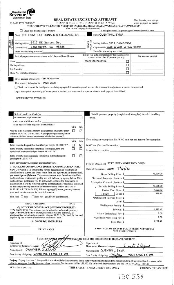
Deed and Sales History
| 1 | 12/03/2019 | SWD | STATUTORY WARRANTY DEED | BRICK PETER E & IRENE S | RUCHERT ALBERT B & RACHEL L | | | $205,000.00 | 138187 | 2019-09997 |
| 2 | 12/03/2019 | QCD | QUIT CLAIM DEED | BRICK PETER E & IRENE S | BRICK PETER E & IRENE S | | | $0.00 | 138186 | 2019-09996 |
| 3 | 08/08/2016 | SWD | STATUTORY WARRANTY DEED | SCHWARTZ CODY T | BRICK PETER E & IRENE S | | | $0.00 | 130787 | 2016-06256 |
| 4 | 07/14/2016 | SWD | STATUTORY WARRANTY DEED | SCHWARTZ CODY T | BRICK PETER E & IRENE S | | | $157,000.00 | 130619 | 2016-05502 |
| 5 | 06/30/2014 | SWD | STATUTORY WARRANTY DEED | THE SECRETARY OF HOUSING & URBAN DEVELOPMENT | SCHWARTZ CODY T | | | $103,960.00 | 126175 | 2014-04536 |
| 6 | 02/28/2014 | SWD | STATUTORY WARRANTY DEED | OCWEN LOAN SERVICING LLC | THE SECRETARY OF HOUSING & URBAN DEVELOPMENT | | | $120,087.00 | 125487 | 2014-01402 |
| 7 | 01/15/2014 | TRUSTEES D | TRUSTEE'S DEED | DAVIDSON MOLLY MEINERS | OCWEN LOAN SERVICING LLC | | | $115,700.00 | 125487 | 2014-00344 |
| 8 | 10/10/2008 | WARRANTY D | WARRANTY DEED | MC COY, KYLE | DAVIDSON, MOLLY MEINERS | | | | 0 | CC #08-3-00143-6 |
| 9 | 07/14/2004 | WARRANTY D | WARRANTY DEED | MANUEL, LORRAINE | MC COY, KYLE | | | $104,500.00 | 105252 | 2004-07932 |
| 10 | 04/01/1982 | WARRANTY D | WARRANTY DEED | | | | | $40,000.00 | 0 | 1328-202429 |
Payout Agreement
| No payout information available.. |