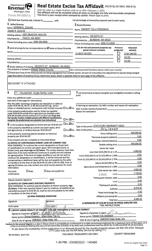
Property
Account |
| Property ID: | 25611 | Abbreviated Legal Description: | 17-6-34 LOT 1 OF SHORT PLAT 2006-05115 (PT IN SWLY PTN LOT 3) |
| Parcel Number: | 340617120001 | Agent Code: | |
| Type: | Real | | |
| Tax Area: | 318 - 300-6-TM | Land Use Code | 11 |
| Open Space: | N | DFL | N |
| Historic Property: | N | Remodel Property: | N |
| Multi-Family Redevelopment: | N | | |
| Township: | 6 | Section: | 17 |
| Range: | 34 |
Location |
| Address: | 13206 STATELINE RD 99360 | Mapsco: | |
| Neighborhood: | G TOUCHET/LOWDEN SFR RURAL | Map ID: | |
| Neighborhood CD: | 214613 |
Owner |
| Name: | NORHEIM LOGAN | Owner ID: | 70332 |
| Mailing Address: | 13206 STATELINE RD TOUCHET, WA 99360 | % Ownership: | 100.0000000000% |
| | | Exemptions: | |
Taxes and Assessment Details
Values
| (+) Improvement Homesite Value: | + | $0 | |
| (+) Improvement Non-Homesite Value: | + | $236,480 | |
| (+) Land Homesite Value: | + | $0 | |
| (+) Land Non-Homesite Value: | + | $91,560 | |
| (+) Curr Use (HS): | + | $0 | $0 |
| (+) Curr Use (NHS): | + | $0 | $0 |
| | | -------------------------- | |
| (=) Market Value: | = | $328,040 | |
| (–) Productivity Loss: | – | $0 | |
| | | -------------------------- | |
| (=) Subtotal: | = | $328,040 | |
| (+) Senior Appraised Value: | + | $0 | |
| (+) Non-Senior Appraised Value: | + | $328,040 | |
| | | -------------------------- | |
| (=) Total Appraised Value: | = | $328,040 | |
| (–) Senior Exemption Loss: | – | $0 | |
| (–) Exemption Loss: | – | $0 | |
| | | -------------------------- | |
| (=) Taxable Value: | = | $328,040 | |
Taxing Jurisdiction
| Owner: | NORHEIM LOGAN | | |
| % Ownership: | 100.0000000000% | | |
| Total Value: | $328,040 | | |
| Tax Area: | 318 - 300-6-TM |
| CERFD | CURRENT EXPENSE REFUND 010 | 0.0000000000 | $328,040 | $328,040 | $0.00 | | |
| CURREXP | CURRENT EXPENSE 010 | 1.0175366760 | $328,040 | $328,040 | $333.79 | | |
| HUMNSERV | HUMAN SERVICES 119 | 0.0250000000 | $328,040 | $328,040 | $8.20 | | |
| SLDREL | SOLDIERS RELIEF 121 | 0.0155990005 | $328,040 | $328,040 | $5.12 | | |
| EMERGSER | EMS 147 | 0.3792580840 | $328,040 | $328,040 | $124.41 | | |
| EMSRFD | EMS REFUND 147 | 0.0000000000 | $328,040 | $328,040 | $0.00 | | |
| FD6EXP | FD #6 EXPENSE 693 | 0.6692985746 | $328,040 | $328,040 | $219.56 | | |
| RLBRFD | RURAL LIBRARY REFUND 623 | 0.0000000000 | $328,040 | $328,040 | $0.00 | | |
| RURALLIB | RURAL LIBRARY 623 | 0.3710609029 | $328,040 | $328,040 | $121.72 | | |
| PORTRFD | PORT REFUND 640 | 0.0000000000 | $328,040 | $328,040 | $0.00 | | |
| PORTWWGEN | PORT OF WW 640 | 0.2460186015 | $328,040 | $328,040 | $80.70 | | |
| SD300BOND | SD #300 BOND 783 | 1.8964951620 | $328,040 | $328,040 | $622.13 | | |
| SD300GEN | SD #300 GENERAL 780 | 2.1198322866 | $328,040 | $328,040 | $695.39 | | |
| ST2 | STATE SCHOOL PART 2 600 | 0.8131451643 | $328,040 | $328,040 | $266.74 | | |
| STATESCHL | STATE SCHOOL 600 | 1.5158548041 | $328,040 | $328,040 | $497.26 | | |
| STREFUND | STATE REFUND LEVY 603 | 0.0000000000 | $328,040 | $328,040 | $0.00 | | |
| COROAD | COUNTY ROAD 115 | 1.6549953990 | $328,040 | $328,040 | $542.90 | | |
| CRPRD | COUNTY ROAD REFUND 115 | 0.0000000000 | $328,040 | $328,040 | $0.00 | | |
| | Total Tax Rate: | 10.7240946555 | | | | | |
| | | | | Taxes w/Current Exemptions: | $3,517.92 | | |
| | | | | Taxes w/o Exemptions: | $3,517.92 | | |
Improvement / Building
| Improvement #1: | RESIDENTIAL | State Code: | 11 | 1330.0 sqft | Value: | $236,480 |
| Exterior Wall: | SIDING | Heating/Cooling: | WARM & COOLED AIR | | Number of Bathrooms: | 2 | Number of Bedrooms: | 2 | | Plumbing: | 9 | Roof Covering: | WOOD SHAKE |
|
| | Type | Description | Class CD | Sub Class CD | Year Built | Area |
| | MA | Main Area | 1 | 30 | 1963 | 1330.0 |
| | SI1 | SITE IMPROVEMENT | 1 | 30 | 1963 | 1.0 |
| | S1F | Single One Story Fireplace | 1 | 30 | 1963 | 1.0 |
| | UTST | Utility Storage Shed | 1 | 30 | 1963 | 288.0 |
| | EQUIPSHED | EQUIPMENT SHED | 1 | 30 | 1963 | 1200.0 |
Sketch
| No sketches available for this property. |
Property Image
Land
| 1 | RES 1 | Converted: Residential | 1.2700 | 0.00 | 0.00 | 0.00 | 1.00 | $91,560 | $0 |
Roll Value History
| 2025 | N/A | N/A | N/A | N/A | N/A |
| 2024 | $236,480 | $91,560 | $0 | $328,040 | $328,040 |
| 2023 | $236,480 | $91,560 | $0 | $328,040 | $328,040 |
| 2022 | $225,220 | $91,560 | $0 | $316,780 | $316,780 |
| 2021 | $125,120 | $91,560 | $0 | $216,680 | $216,680 |
| 2020 | $122,990 | $76,400 | $0 | $199,390 | $199,390 |
| 2019 | $122,990 | $76,400 | $0 | $199,390 | $199,390 |
| 2018 | $111,810 | $76,400 | $0 | $188,210 | $188,210 |
| 2017 | $111,810 | $76,400 | $0 | $188,210 | $188,210 |
| 2016 | $106,490 | $76,400 | $0 | $182,890 | $182,890 |
| 2015 | $88,740 | $76,400 | $0 | $165,140 | $165,140 |
| 2014 | $98,600 | $76,400 | $0 | $175,000 | $175,000 |
| 2013 | $98,600 | $76,400 | $0 | $175,000 | $175,000 |
| 2012 | $98,600 | $76,400 | $0 | $0 | $0 |
| 2011 | $93,600 | $46,400 | $0 | $0 | $0 |
| 2010 | $91,600 | $46,400 | $0 | $0 | $0 |
| 2009 | $79,100 | $36,400 | $0 | $0 | $0 |
| 2008 | $64,800 | $15,500 | $0 | $0 | $0 |
| 2007 | $64,800 | $15,500 | $0 | $0 | $0 |
| 2006 | $0 | $14,300 | $0 | $0 | $0 |
Deed and Sales History
| 1 | 04/05/2024 | SWD | STATUTORY WARRANTY DEED | NORHEIM LOGAN | EVENSEN JARROD & ANGELA | | | $400,000.00 | 147351 | 2024-01682 |
| 2 | 09/28/2021 | SWD | STATUTORY WARRANTY DEED | SMITH BRIAN R & DIANA L | NORHEIM LOGAN | | | $335,000.00 | 142562 | 2021-11821 |
| 3 | 04/14/2014 | SWD | STATUTORY WARRANTY DEED | THE GRSW STEWART REAL ESTATE TRUST | SMITH BRIAN R & DIANA L | | | $170,000.00 | 125720 | 2014-02523 |
| 4 | 04/14/2014 | SWD | STATUTORY WARRANTY DEED | MC CLUSKEY MANDY M | THE GRSW STEWART REAL ESTATE TRUST | | | $170,000.00 | 125719 | 2014-02522 |
| 5 | 05/03/2011 | WARRANTY D | WARRANTY DEED | WILLIAMS, THOMAS A | MC CLUSKEY, MANDY M | | | $179,000.00 | 120080 | 2011-03521 |
| 6 | 01/26/2007 | WARRANTY D | WARRANTY DEED | WILLIAMS, T O & ASSOCIATES INC | WILLIAMS, THOMAS A | | | $160,000.00 | 112137 | 2007-01027 |
Payout Agreement
| No payout information available.. |