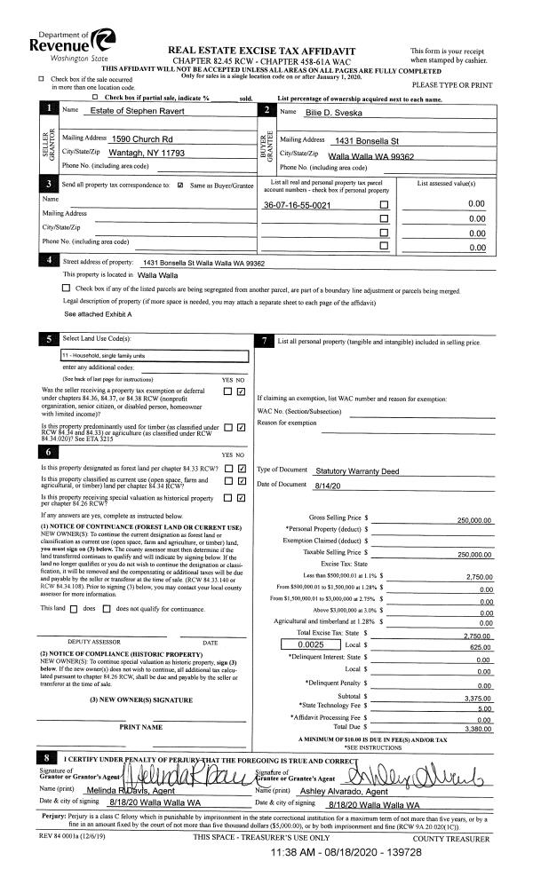
| 1 | 04/01/2021 | SWD | STATUTORY WARRANTY DEED | DRYDEN DAVID R & SAMANTHA L | RUCHERT CHRISTINA M & LISA R | | | $505,000.00 | 141239 | 2021-03788 |
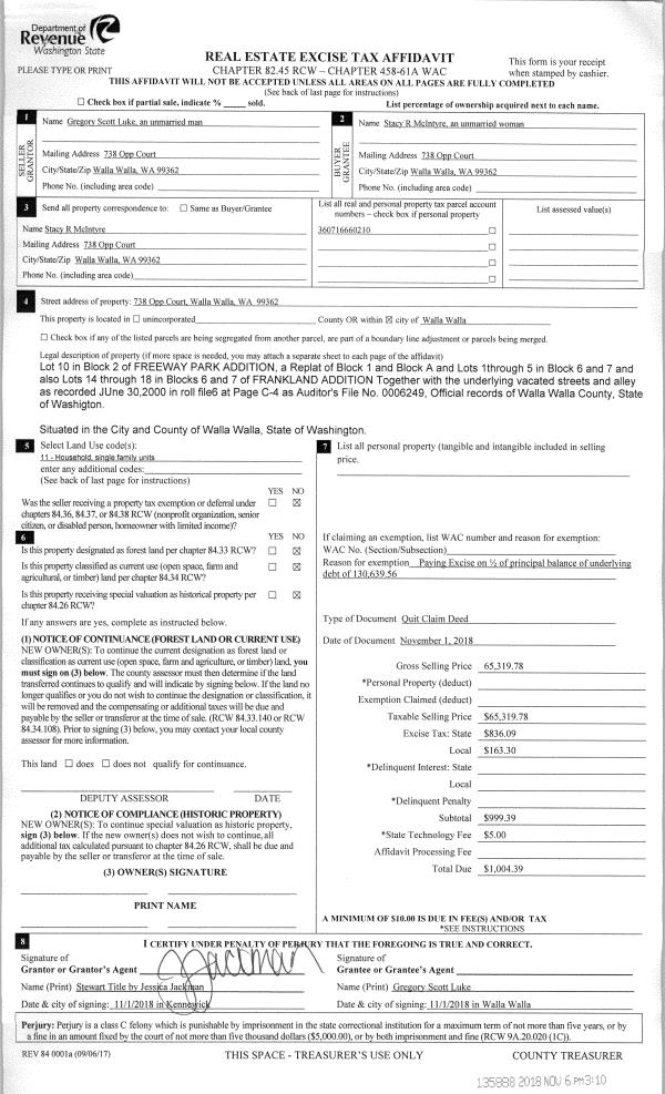
| 2 | 10/26/2018 | SWD | STATUTORY WARRANTY DEED | TESKE JAMES M & OLIVIA F | DRYDEN DAVID R & SAMANTHA L | | | $345,000.00 | 135802 | 2018-08858 |
| 3 | 01/09/2015 | SWD | STATUTORY WARRANTY DEED | LAYRISSON STANLEY D & SUSANNE M | TESKE JAMES M & OLIVIA F | | | $232,000.00 | 127242 | 2015-00214 |
| 4 | 10/23/2008 | WARRANTY D | WARRANTY DEED | OSBORN, NORMAN V & CAROLYN SUE | LAYRISSON, STANLEY D & SUSANNE | | | $240,000.00 | 115867 | 2008-10802 |
| 5 | 06/15/2004 | WARRANTY D | WARRANTY DEED | CLARK, COLE R & PAMELA J | OSBORN, NORMAN V & CAROLYN SUE | | | $185,000.00 | 105008 | 2004-06577 |
| 6 | 09/30/1999 | WARRANTY D | WARRANTY DEED | | | | | $150,000.00 | 93717 | 2909-911293 |