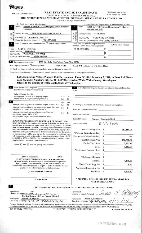
Property
Account |
| Property ID: | 25486 | Abbreviated Legal Description: | PROSPECT TERRACE LOT 1 |
| Parcel Number: | 360732810001 | Agent Code: | |
| Type: | Real | | |
| Tax Area: | 6 - OL-140-F-FB | Land Use Code | 11 |
| Open Space: | N | DFL | N |
| Historic Property: | N | Remodel Property: | N |
| Multi-Family Redevelopment: | N | | |
| Township: | 7 | Section: | 32 |
| Range: | 36 |
Location |
| Address: | 970 HEDINE RD WA 99362 | Mapsco: | |
| Neighborhood: | G Res Rural/City Inf | Map ID: | |
| Neighborhood CD: | 614012 |
Owner |
| Name: | JOHNSON MATTHEW D | Owner ID: | 57375 |
| Mailing Address: | KIMBERLY L PHILLIPS 2324 GARRISON ST WALLA WALLA, WA 99362-2685 | % Ownership: | 100.0000000000% |
| | | Exemptions: | |
Taxes and Assessment Details
Values
| (+) Improvement Homesite Value: | + | $0 | |
| (+) Improvement Non-Homesite Value: | + | $438,490 | |
| (+) Land Homesite Value: | + | $0 | |
| (+) Land Non-Homesite Value: | + | $85,000 | |
| (+) Curr Use (HS): | + | $0 | $0 |
| (+) Curr Use (NHS): | + | $0 | $0 |
| | | -------------------------- | |
| (=) Market Value: | = | $523,490 | |
| (–) Productivity Loss: | – | $0 | |
| | | -------------------------- | |
| (=) Subtotal: | = | $523,490 | |
| (+) Senior Appraised Value: | + | $0 | |
| (+) Non-Senior Appraised Value: | + | $523,490 | |
| | | -------------------------- | |
| (=) Total Appraised Value: | = | $523,490 | |
| (–) Senior Exemption Loss: | – | $0 | |
| (–) Exemption Loss: | – | $0 | |
| | | -------------------------- | |
| (=) Taxable Value: | = | $523,490 | |
Taxing Jurisdiction
| Owner: | JOHNSON MATTHEW D | | |
| % Ownership: | 100.0000000000% | | |
| Total Value: | $523,490 | | |
| Tax Area: | 6 - OL-140-F-FB |
| CERFD | CURRENT EXPENSE REFUND 010 | 0.0000000000 | $523,490 | $523,490 | $0.00 | | |
| CURREXP | CURRENT EXPENSE 010 | 1.0175366760 | $523,490 | $523,490 | $532.67 | | |
| HUMNSERV | HUMAN SERVICES 119 | 0.0250000000 | $523,490 | $523,490 | $13.09 | | |
| SLDREL | SOLDIERS RELIEF 121 | 0.0155990005 | $523,490 | $523,490 | $8.17 | | |
| EMERGSER | EMS 147 | 0.3792580840 | $523,490 | $523,490 | $198.54 | | |
| EMSRFD | EMS REFUND 147 | 0.0000000000 | $523,490 | $523,490 | $0.00 | | |
| PORTRFD | PORT REFUND 640 | 0.0000000000 | $523,490 | $523,490 | $0.00 | | |
| PORTWWGEN | PORT OF WW 640 | 0.2460186015 | $523,490 | $523,490 | $128.79 | | |
| SD140BOND | SD #140 BOND 764 | 0.8342371393 | $523,490 | $523,490 | $436.71 | | |
| SD140GEN | SD #140 GENERAL 760 | 2.0646500647 | $523,490 | $523,490 | $1,080.82 | | |
| ST2 | STATE SCHOOL PART 2 600 | 0.8131451643 | $523,490 | $523,490 | $425.67 | | |
| STATESCHL | STATE SCHOOL 600 | 1.5158548041 | $523,490 | $523,490 | $793.53 | | |
| STREFUND | STATE REFUND LEVY 603 | 0.0000000000 | $523,490 | $523,490 | $0.00 | | |
| CWWBOND | C OF WW BOND 643 | 0.2760494372 | $523,490 | $523,490 | $144.51 | | |
| CWWGEN | CITY OF WW 631 | 1.6100204973 | $523,490 | $523,490 | $842.83 | | |
| CWWRFD | CITY OF WALLA WALLA REFUND 631 | 0.0000000000 | $523,490 | $523,490 | $0.00 | | |
| | Total Tax Rate: | 8.7973694689 | | | | | |
| | | | | Taxes w/Current Exemptions: | $4,605.33 | | |
| | | | | Taxes w/o Exemptions: | $4,605.33 | | |
Improvement / Building
| Improvement #1: | RESIDENTIAL | State Code: | 11 | 2588.0 sqft | Value: | $438,490 |
| Exterior Wall: | PLYWOOD | Heating/Cooling: | WARM & COOLED AIR | | Number of Bathrooms: | 2.5 | Number of Bedrooms: | 4 | | Plumbing: | 13 | Roof Covering: | COMP SHINGLE |
|
| | Type | Description | Class CD | Sub Class CD | Year Built | Area |
| | MA | Main Area | 2 | 30 | 2008 | 2588.0 |
| | SI1 | SITE IMPROVEMENT | 2 | 30 | 2008 | 3.0 |
| | UPFL | Upper Floor (included in main area) | 2 | 30 | 2008 | 972.0 |
| | BIG | Built In Garage | 2 | 30 | 2008 | 708.0 |
| | GFP | GAS FIREPLACE | 2 | 30 | 2008 | 1.0 |
| | RPO | OPEN PORCH W/ROOF | 2 | 30 | 2008 | 24.0 |
| | WOD | Wood Deck | 2 | 30 | 2010 | 264.0 |
Sketch
Property Image
Land
| 1 | RES 1 | Converted: Residential | 0.1653 | 7200.00 | 0.00 | 0.00 | 1.00 | $85,000 | $0 |
Roll Value History
| 2025 | N/A | N/A | N/A | N/A | N/A |
| 2024 | $438,490 | $85,000 | $0 | $523,490 | $523,490 |
| 2023 | $438,490 | $85,000 | $0 | $523,490 | $523,490 |
| 2022 | $381,290 | $70,000 | $0 | $451,290 | $451,290 |
| 2021 | $331,560 | $70,000 | $0 | $401,560 | $401,560 |
| 2020 | $245,600 | $70,000 | $0 | $315,600 | $315,600 |
| 2019 | $245,600 | $70,000 | $0 | $315,600 | $315,600 |
| 2018 | $239,840 | $60,000 | $0 | $299,840 | $299,840 |
| 2017 | $239,840 | $60,000 | $0 | $299,840 | $299,840 |
| 2016 | $208,560 | $60,000 | $0 | $268,560 | $268,560 |
| 2015 | $208,560 | $60,000 | $0 | $268,560 | $268,560 |
| 2014 | $173,800 | $60,000 | $0 | $233,800 | $233,800 |
| 2013 | $173,800 | $60,000 | $0 | $233,800 | $233,800 |
| 2012 | $168,000 | $60,000 | $0 | $0 | $0 |
| 2011 | $168,000 | $60,000 | $0 | $0 | $0 |
| 2010 | $178,900 | $60,000 | $0 | $0 | $0 |
| 2009 | $205,400 | $60,000 | $0 | $0 | $0 |
| 2008 | $0 | $3,800 | $0 | $0 | $0 |
| 2007 | $173,800 | $60,000 | $0 | $0 | $0 |
Deed and Sales History
| 1 | 05/28/2025 | QCD | QUIT CLAIM DEED | JOHNSON MATTHEW D | PHILLIPS KIMBERLY L | | | | 149443 | 2025-02954 |
| 2 | 09/11/2015 | SWD | STATUTORY WARRANTY DEED | ANDERSON FRANK R & CHERYL A | JOHNSON MATTHEW D | | | $285,000.00 | 128804 | 2015-07965 |
| 3 | 06/18/2014 | SWD | STATUTORY WARRANTY DEED | VANDIVER MICHAEL L & ELAINE M | ANDERSON FRANK R & CHERYL A | | | $277,500.00 | 126095 | 2014-04197 |
| 4 | 10/14/2008 | WARRANTY D | WARRANTY DEED | HAYDEN HOMES LLC | VANDIVER, MICHAEL L & ELAINE M | | | $266,990.00 | 115815 | 2008-10460 |
| 5 | 12/05/2007 | WARRANTY D | WARRANTY DEED | HAYDEN ENTERPRISES INC | | | | | 114183 | 2007-13846 |
Payout Agreement
| No payout information available.. |