Property
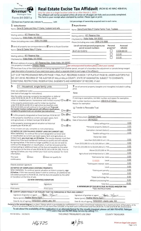
Account |
| Property ID: | 25445 | Abbreviated Legal Description: | FRANCIS PARK LOT 1 |
| Parcel Number: | 360721560001 | Agent Code: | |
| Type: | Real | | |
| Tax Area: | 1 - OL-140-F | Land Use Code | 67 |
| Open Space: | N | DFL | N |
| Historic Property: | N | Remodel Property: | N |
| Multi-Family Redevelopment: | N | | |
| Township: | 7 | Section: | 21 |
| Range: | 36 |
Location |
| Address: | 624 FRANCIS AVE WA 99362 | Mapsco: | |
| Neighborhood: | G-SFR | Map ID: | |
| Neighborhood CD: | 514011 |
Owner |
| Name: | BLUE MOUNTAIN ACTION COUNCIL | Owner ID: | 3783 |
| Mailing Address: | 8 E CHERRY ST WALLA WALLA, WA 99362 | % Ownership: | 100.0000000000% |
| | | Exemptions: | EX |
Taxes and Assessment Details
Values
| (+) Improvement Homesite Value: | + | $0 | |
| (+) Improvement Non-Homesite Value: | + | $335,540 | |
| (+) Land Homesite Value: | + | $0 | |
| (+) Land Non-Homesite Value: | + | $66,080 | |
| (+) Curr Use (HS): | + | $0 | $0 |
| (+) Curr Use (NHS): | + | $0 | $0 |
| | | -------------------------- | |
| (=) Market Value: | = | $401,620 | |
| (–) Productivity Loss: | – | $0 | |
| | | -------------------------- | |
| (=) Subtotal: | = | $401,620 | |
| (+) Senior Appraised Value: | + | $0 | |
| (+) Non-Senior Appraised Value: | + | $401,620 | |
| | | -------------------------- | |
| (=) Total Appraised Value: | = | $401,620 | |
| (–) Senior Exemption Loss: | – | $0 | |
| (–) Exemption Loss: | – | $401,620 | |
| | | -------------------------- | |
| (=) Taxable Value: | = | $0 | |
Taxing Jurisdiction
| Owner: | BLUE MOUNTAIN ACTION COUNCIL | | |
| % Ownership: | 100.0000000000% | | |
| Total Value: | $401,620 | | |
| Tax Area: | 1 - OL-140-F |
| CERFD | CURRENT EXPENSE REFUND 010 | 0.0000000000 | $401,620 | $0 | $0.00 | | |
| CURREXP | CURRENT EXPENSE 010 | 1.0175366760 | $401,620 | $0 | $0.00 | | |
| HUMNSERV | HUMAN SERVICES 119 | 0.0250000000 | $401,620 | $0 | $0.00 | | |
| SLDREL | SOLDIERS RELIEF 121 | 0.0155990005 | $401,620 | $0 | $0.00 | | |
| EMERGSER | EMS 147 | 0.3792580840 | $401,620 | $0 | $0.00 | | |
| EMSRFD | EMS REFUND 147 | 0.0000000000 | $401,620 | $0 | $0.00 | | |
| PORTRFD | PORT REFUND 640 | 0.0000000000 | $401,620 | $0 | $0.00 | | |
| PORTWWGEN | PORT OF WW 640 | 0.2460186015 | $401,620 | $0 | $0.00 | | |
| SD140BOND | SD #140 BOND 764 | 0.8342371393 | $401,620 | $0 | $0.00 | | |
| SD140GEN | SD #140 GENERAL 760 | 2.0646500647 | $401,620 | $0 | $0.00 | | |
| ST2 | STATE SCHOOL PART 2 600 | 0.8131451643 | $401,620 | $0 | $0.00 | | |
| STATESCHL | STATE SCHOOL 600 | 1.5158548041 | $401,620 | $0 | $0.00 | | |
| STREFUND | STATE REFUND LEVY 603 | 0.0000000000 | $401,620 | $0 | $0.00 | | |
| CWWBOND | C OF WW BOND 643 | 0.2760494372 | $401,620 | $0 | $0.00 | | |
| CWWGEN | CITY OF WW 631 | 1.6100204973 | $401,620 | $0 | $0.00 | | |
| CWWRFD | CITY OF WALLA WALLA REFUND 631 | 0.0000000000 | $401,620 | $0 | $0.00 | | |
| | Total Tax Rate: | 8.7973694689 | | | | | |
| | | | | Taxes w/Current Exemptions: | $0.00 | | |
| | | | | Taxes w/o Exemptions: | $3,533.21 | | |
Improvement / Building
| Improvement #1: | RESIDENTIAL | State Code: | 67 | 918.0 sqft | Value: | $335,540 |
| Exterior Wall: | SIDING | Heating/Cooling: | WARM & COOLED AIR | | Number of Bathrooms: | 1 | Number of Bedrooms: | 2 | | Plumbing: | 6 | Roof Covering: | COMP SHINGLE |
|
| | Type | Description | Class CD | Sub Class CD | Year Built | Area |
| | MA | Main Area | 1 | 35 | 1946 | 918.0 |
| | SI1 | SITE IMPROVEMENT | 1 | 35 | 1946 | 1.0 |
| | BASE | BASEMENT | 1 | 35 | 1946 | 714.0 |
| | BPF | BASEMENT -PARTITIONED FINISH | 1 | 35 | 1946 | 500.0 |
| | WOD | Wood Deck | 1 | 35 | 1946 | 16.0 |
| | OPS | OPEN PORCH W/STEPS | 1 | 35 | 1946 | 24.0 |
| | DTG | Detached Garage | 1 | 35 | 1946 | 308.0 |
Sketch
Property Image
Land
| 1 | RES 1 | Converted: Residential | 0.2092 | 9114.00 | 0.00 | 0.00 | 1.00 | $66,080 | $0 |
Roll Value History
| 2025 | N/A | N/A | N/A | N/A | N/A |
| 2024 | $315,800 | $82,000 | $0 | $397,800 | $0 |
| 2023 | $335,540 | $66,080 | $0 | $401,620 | $0 |
| 2022 | $305,040 | $66,080 | $0 | $371,120 | $0 |
| 2021 | $225,950 | $66,080 | $0 | $292,030 | $0 |
| 2020 | $161,400 | $66,080 | $0 | $227,480 | $0 |
| 2019 | $161,400 | $66,080 | $0 | $227,480 | $0 |
| 2018 | $153,710 | $66,080 | $0 | $219,790 | $0 |
| 2017 | $128,040 | $41,000 | $0 | $169,040 | $0 |
| 2016 | $116,400 | $41,000 | $0 | $157,400 | $0 |
| 2015 | $116,400 | $41,000 | $0 | $157,400 | $0 |
| 2014 | $116,400 | $41,000 | $0 | $157,400 | $0 |
| 2013 | $116,400 | $41,000 | $0 | $157,400 | $0 |
| 2012 | $0 | $0 | $0 | $0 | $0 |
| 2011 | $0 | $0 | $0 | $0 | $0 |
| 2010 | $0 | $0 | $0 | $0 | $0 |
| 2009 | $0 | $0 | $0 | $0 | $0 |
| 2008 | $0 | $0 | $0 | $0 | $0 |
| 2007 | $0 | $0 | $0 | $0 | $0 |
| 2006 | $68,400 | $18,200 | $0 | $0 | $0 |
Deed and Sales History
| 1 | 07/10/2001 | WARRANTY D | WARRANTY DEED | | | | | $56,600.00 | 97558 | 3160-107236 |
Payout Agreement
| No payout information available.. |