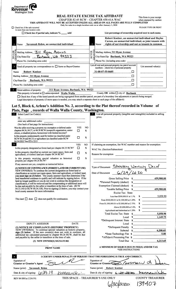
Property
Account |
| Property ID: | 2542 | Abbreviated Legal Description: | WHISPERING MEADOW SUBDIVISION LOT 8 |
| Parcel Number: | 350726650008 | Agent Code: | |
| Type: | Real | | |
| Tax Area: | 311 - 250-4 | Land Use Code | 11 |
| Open Space: | N | DFL | N |
| Historic Property: | N | Remodel Property: | N |
| Multi-Family Redevelopment: | N | | |
| Township: | 7 | Section: | 26 |
| Range: | 35 |
Location |
| Address: | 1188 S HUSSEY ST WA 99324 | Mapsco: | |
| Neighborhood: | G SFR Rural/City Inf S | Map ID: | |
| Neighborhood CD: | 114212 |
Owner |
| Name: | THE DONALD W SCOTT & MARY K SCOTT RVCB TRST | Owner ID: | 62441 |
| Mailing Address: | 1188 S HUSSEY ST WALLA WALLA, WA 99362 | % Ownership: | 100.0000000000% |
| | | Exemptions: | |
Taxes and Assessment Details
Values
| (+) Improvement Homesite Value: | + | $0 | |
| (+) Improvement Non-Homesite Value: | + | $511,100 | |
| (+) Land Homesite Value: | + | $0 | |
| (+) Land Non-Homesite Value: | + | $130,000 | |
| (+) Curr Use (HS): | + | $0 | $0 |
| (+) Curr Use (NHS): | + | $0 | $0 |
| | | -------------------------- | |
| (=) Market Value: | = | $641,100 | |
| (–) Productivity Loss: | – | $0 | |
| | | -------------------------- | |
| (=) Subtotal: | = | $641,100 | |
| (+) Senior Appraised Value: | + | $0 | |
| (+) Non-Senior Appraised Value: | + | $641,100 | |
| | | -------------------------- | |
| (=) Total Appraised Value: | = | $641,100 | |
| (–) Senior Exemption Loss: | – | $0 | |
| (–) Exemption Loss: | – | $0 | |
| | | -------------------------- | |
| (=) Taxable Value: | = | $641,100 | |
Taxing Jurisdiction
| Owner: | THE DONALD W SCOTT & MARY K SCOTT RVCB TRST | | |
| % Ownership: | 100.0000000000% | | |
| Total Value: | $641,100 | | |
| Tax Area: | 311 - 250-4 |
| CERFD | CURRENT EXPENSE REFUND 010 | 0.0000000000 | $641,100 | $641,100 | $0.00 | | |
| CURREXP | CURRENT EXPENSE 010 | 1.0175366760 | $641,100 | $641,100 | $652.34 | | |
| HUMNSERV | HUMAN SERVICES 119 | 0.0250000000 | $641,100 | $641,100 | $16.03 | | |
| SLDREL | SOLDIERS RELIEF 121 | 0.0155990005 | $641,100 | $641,100 | $10.00 | | |
| EMERGSER | EMS 147 | 0.3792580840 | $641,100 | $641,100 | $243.14 | | |
| EMSRFD | EMS REFUND 147 | 0.0000000000 | $641,100 | $641,100 | $0.00 | | |
| FD4EXP | FD #4 EXPENSE 686 | 0.8836993059 | $641,100 | $641,100 | $566.54 | | |
| RLBRFD | RURAL LIBRARY REFUND 623 | 0.0000000000 | $641,100 | $641,100 | $0.00 | | |
| RURALLIB | RURAL LIBRARY 623 | 0.3710609029 | $641,100 | $641,100 | $237.89 | | |
| PORTRFD | PORT REFUND 640 | 0.0000000000 | $641,100 | $641,100 | $0.00 | | |
| PORTWWGEN | PORT OF WW 640 | 0.2460186015 | $641,100 | $641,100 | $157.72 | | |
| SD250BOND | SD #250 BOND 773 | 1.4560608159 | $641,100 | $641,100 | $933.48 | | |
| SD250GEN | SD #250 GENERAL 770 | 2.3880724087 | $641,100 | $641,100 | $1,530.99 | | |
| ST2 | STATE SCHOOL PART 2 600 | 0.8131451643 | $641,100 | $641,100 | $521.31 | | |
| STATESCHL | STATE SCHOOL 600 | 1.5158548041 | $641,100 | $641,100 | $971.81 | | |
| STREFUND | STATE REFUND LEVY 603 | 0.0000000000 | $641,100 | $641,100 | $0.00 | | |
| COROAD | COUNTY ROAD 115 | 1.6549953990 | $641,100 | $641,100 | $1,061.02 | | |
| CRPRD | COUNTY ROAD REFUND 115 | 0.0000000000 | $641,100 | $641,100 | $0.00 | | |
| | Total Tax Rate: | 10.7663011628 | | | | | |
| | | | | Taxes w/Current Exemptions: | $6,902.27 | | |
| | | | | Taxes w/o Exemptions: | $6,902.27 | | |
Improvement / Building
| Improvement #1: | RESIDENTIAL | State Code: | 11 | 2565.0 sqft | Value: | $511,100 |
| Exterior Wall: | CEMENT FIBER | Heating/Cooling: | WARM & COOLED AIR | | Number of Bathrooms: | 2.5 | Number of Bedrooms: | 4 | | Plumbing: | 14 | Roof Covering: | COMP SHINGLE |
|
| | Type | Description | Class CD | Sub Class CD | Year Built | Area |
| | MA | Main Area | 1 | 45 | 2018 | 2565.0 |
| | ATG | Attached Garage | 1 | 45 | 2018 | 949.0 |
| | RPC | OPEN PORCH W/ROOF , CEILED | 1 | 45 | 2018 | 448.0 |
| | RPC | OPEN PORCH W/ROOF , CEILED | 1 | 45 | 2018 | 107.0 |
| | SI1 | SITE IMPROVEMENT | 1 | 45 | 2018 | 4.0 |
| | TOOL | TOOL SHED | 1 | 45 | 2018 | 200.0 |
| | GFP | GAS FIREPLACE | 1 | 45 | 2018 | 1.0 |
Sketch
Property Image
Land
| 1 | RES 1 | Converted: Residential | 0.5849 | 25477.00 | 0.00 | 0.00 | 1.00 | $130,000 | $0 |
Roll Value History
| 2025 | N/A | N/A | N/A | N/A | N/A |
| 2024 | $511,100 | $130,000 | $0 | $641,100 | $641,100 |
| 2023 | $511,100 | $130,000 | $0 | $641,100 | $641,100 |
| 2022 | $511,100 | $130,000 | $0 | $641,100 | $641,100 |
| 2021 | $486,770 | $130,000 | $0 | $616,770 | $616,770 |
| 2020 | $335,700 | $130,000 | $0 | $465,700 | $465,700 |
| 2019 | $390,700 | $75,000 | $0 | $465,700 | $465,700 |
| 2018 | $390,700 | $75,000 | $0 | $465,700 | $465,700 |
| 2017 | $0 | $75,000 | $0 | $75,000 | $75,000 |
| 2016 | $0 | $75,000 | $0 | $75,000 | $75,000 |
| 2015 | $0 | $75,000 | $0 | $75,000 | $75,000 |
| 2014 | $0 | $75,000 | $0 | $75,000 | $75,000 |
| 2013 | $0 | $75,000 | $0 | $75,000 | $75,000 |
| 2012 | $0 | $75,000 | $0 | $0 | $0 |
| 2011 | $0 | $90,000 | $0 | $0 | $0 |
| 2010 | $0 | $90,000 | $0 | $0 | $0 |
| 2009 | $0 | $90,000 | $0 | $0 | $0 |
| 2008 | $0 | $30,000 | $0 | $0 | $0 |
| 2007 | $0 | $30,000 | $0 | $0 | $0 |
| 2006 | $0 | $30,000 | $0 | $0 | $0 |
Deed and Sales History
| 1 | 01/17/2018 | SWD | STATUTORY WARRANTY DEED | WHISPERING MEADOWS LLC | THE DONALD W SCOTT & MARY K SCOTT RVCB TRST | | | $95,000.00 | 134000 | 2018-00479 |
| 2 | 03/21/2003 | WARRANTY D | WARRANTY DEED | ALIVERTI LIVING TRUST | | | | | 101640 | 2003-03884 |
Payout Agreement
| No payout information available.. |