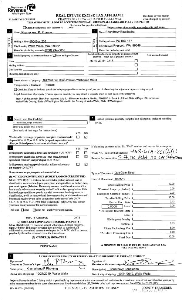
Property
Account |
| Property ID: | 25410 | Abbreviated Legal Description: | LONG'S ADDITION LOTS 1 AND 2, LESS WLY 20' TH PT OF LOT 11 E OF WLYLN OF LOT 13 PROD NLY VAC ST BLOCK 3 |
| Parcel Number: | 330734550301 | Agent Code: | |
| Type: | Real | | |
| Tax Area: | 323 - 300-6-TM | Land Use Code | 11 |
| Open Space: | N | DFL | N |
| Historic Property: | N | Remodel Property: | N |
| Multi-Family Redevelopment: | N | | |
| Township: | 7 | Section: | 34 |
| Range: | 33 |
Location |
| Address: | 16440 OLD HWY 12 WA 99360 | Mapsco: | |
| Neighborhood: | A Touchet/Lowden MH | Map ID: | |
| Neighborhood CD: | 213661 |
Owner |
| Name: | SLATER RUSH L | Owner ID: | 1644 |
| Mailing Address: | 16436 OLD HWY 12 TOUCHET, WA 99360 | % Ownership: | 100.0000000000% |
| | | Exemptions: | |
Taxes and Assessment Details
Values
| (+) Improvement Homesite Value: | + | $0 | |
| (+) Improvement Non-Homesite Value: | + | $33,380 | |
| (+) Land Homesite Value: | + | $0 | |
| (+) Land Non-Homesite Value: | + | $52,610 | |
| (+) Curr Use (HS): | + | $0 | $0 |
| (+) Curr Use (NHS): | + | $0 | $0 |
| | | -------------------------- | |
| (=) Market Value: | = | $85,990 | |
| (–) Productivity Loss: | – | $0 | |
| | | -------------------------- | |
| (=) Subtotal: | = | $85,990 | |
| (+) Senior Appraised Value: | + | $0 | |
| (+) Non-Senior Appraised Value: | + | $85,990 | |
| | | -------------------------- | |
| (=) Total Appraised Value: | = | $85,990 | |
| (–) Senior Exemption Loss: | – | $0 | |
| (–) Exemption Loss: | – | $0 | |
| | | -------------------------- | |
| (=) Taxable Value: | = | $85,990 | |
Taxing Jurisdiction
| Owner: | SLATER RUSH L | | |
| % Ownership: | 100.0000000000% | | |
| Total Value: | $85,990 | | |
| Tax Area: | 323 - 300-6-TM |
| CERFD | CURRENT EXPENSE REFUND 010 | 0.0000000000 | $85,990 | $85,990 | $0.00 | | |
| CURREXP | CURRENT EXPENSE 010 | 1.0175366760 | $85,990 | $85,990 | $87.50 | | |
| HUMNSERV | HUMAN SERVICES 119 | 0.0250000000 | $85,990 | $85,990 | $2.15 | | |
| SLDREL | SOLDIERS RELIEF 121 | 0.0155990005 | $85,990 | $85,990 | $1.34 | | |
| EMERGSER | EMS 147 | 0.3792580840 | $85,990 | $85,990 | $32.61 | | |
| EMSRFD | EMS REFUND 147 | 0.0000000000 | $85,990 | $85,990 | $0.00 | | |
| FD6EXP | FD #6 EXPENSE 693 | 0.6692985746 | $85,990 | $85,990 | $57.55 | | |
| RLBRFD | RURAL LIBRARY REFUND 623 | 0.0000000000 | $85,990 | $85,990 | $0.00 | | |
| RURALLIB | RURAL LIBRARY 623 | 0.3710609029 | $85,990 | $85,990 | $31.91 | | |
| PORTRFD | PORT REFUND 640 | 0.0000000000 | $85,990 | $85,990 | $0.00 | | |
| PORTWWGEN | PORT OF WW 640 | 0.2460186015 | $85,990 | $85,990 | $21.16 | | |
| SD300BOND | SD #300 BOND 783 | 1.8964951620 | $85,990 | $85,990 | $163.08 | | |
| SD300GEN | SD #300 GENERAL 780 | 2.1198322866 | $85,990 | $85,990 | $182.28 | | |
| ST2 | STATE SCHOOL PART 2 600 | 0.8131451643 | $85,990 | $85,990 | $69.92 | | |
| STATESCHL | STATE SCHOOL 600 | 1.5158548041 | $85,990 | $85,990 | $130.35 | | |
| STREFUND | STATE REFUND LEVY 603 | 0.0000000000 | $85,990 | $85,990 | $0.00 | | |
| COROAD | COUNTY ROAD 115 | 1.6549953990 | $85,990 | $85,990 | $142.31 | | |
| CRPRD | COUNTY ROAD REFUND 115 | 0.0000000000 | $85,990 | $85,990 | $0.00 | | |
| | Total Tax Rate: | 10.7240946555 | | | | | |
| | | | | Taxes w/Current Exemptions: | $922.16 | | |
| | | | | Taxes w/o Exemptions: | $922.16 | | |
Improvement / Building
| Improvement #1: | MANUFACTURED HOME | State Code: | 11 | 896.0 sqft | Value: | $33,380 |
| Exterior Wall: | PLYWOOD | Heating/Cooling: | FORCED AIR | | Number of Bathrooms: | 2 | Number of Bedrooms: | 3 | | Plumbing: | 7 | Roof Covering: | GALVANIZED METAL |
|
| | Type | Description | Class CD | Sub Class CD | Year Built | Area |
| | MOBHOME | MANUFACTURD HOMES | 1 | 20 | 1972 | 896.0 |
| | MI1 | MH SET-UP COSTS | 1 | 20 | 0 | 1.0 |
| | TIP | MH ADDITION | 1 | 20 | 1972 | 48.0 |
| | TIP | MH ADDITION | 1 | 20 | 1972 | 288.0 |
| | BMF | BASEMENT - MIN FINISH | 1 | 20 | 1972 | 288.0 |
| | RPO | OPEN PORCH W/ROOF | 1 | 20 | 1972 | 128.0 |
Sketch
Property Image
Land
| 1 | RES 1 | Converted: Residential | 0.6600 | 28749.00 | 0.00 | 0.00 | 1.00 | $52,610 | $0 |
Roll Value History
| 2025 | N/A | N/A | N/A | N/A | N/A |
| 2024 | $33,380 | $52,610 | $0 | $85,990 | $85,990 |
| 2023 | $33,380 | $52,610 | $0 | $85,990 | $85,990 |
| 2022 | $31,790 | $52,610 | $0 | $84,400 | $84,400 |
| 2021 | $22,710 | $52,610 | $0 | $75,320 | $75,320 |
| 2020 | $20,960 | $39,600 | $0 | $60,560 | $60,560 |
| 2019 | $20,960 | $39,600 | $0 | $60,560 | $60,560 |
| 2018 | $19,970 | $39,600 | $0 | $59,570 | $59,570 |
| 2017 | $18,150 | $39,600 | $0 | $57,750 | $57,750 |
| 2016 | $16,500 | $39,600 | $0 | $56,100 | $56,100 |
| 2015 | $16,500 | $39,600 | $0 | $56,100 | $56,100 |
| 2014 | $16,500 | $39,600 | $0 | $56,100 | $56,100 |
| 2013 | $16,500 | $39,600 | $0 | $56,100 | $56,100 |
| 2012 | $16,500 | $39,600 | $0 | $0 | $0 |
| 2011 | $16,500 | $39,600 | $0 | $0 | $0 |
| 2010 | $16,500 | $39,600 | $0 | $0 | $0 |
| 2009 | $31,200 | $21,200 | $0 | $0 | $0 |
| 2008 | $31,300 | $21,100 | $0 | $0 | $0 |
| 2007 | $31,300 | $21,100 | $0 | $0 | $0 |
| 2006 | $31,300 | $21,100 | $0 | $0 | $0 |
Deed and Sales History
| 1 | 08/07/2019 | DPR | DEED OF PERSONAL REPRESENTATIVE | SLATER ESTA JUNE | SLATER RUSH L | | | $0.00 | 137453 | 2019-05965 |
| 2 | 05/18/2011 | DEATH CERT | DEATH CERTIFICATE | SLATER ELMER LEON | | | | | 0 | 2011-06445 |
| 3 | 03/19/1970 | COMMUNITY | COMMUNITY PROPERTY AGREEMENT | | | 334 | 612 | | 0 | |
Payout Agreement
| No payout information available.. |