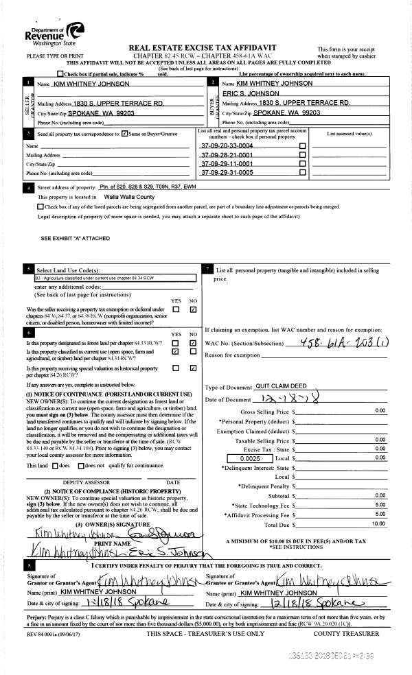
Property
Account |
| Property ID: | 25325 | Abbreviated Legal Description: | REPLAT SCENIC VIEW ADDN, LT 19 & E2 LT 20 BLK 7 |
| Parcel Number: | 350736580719 | Agent Code: | |
| Type: | Real | | |
| Tax Area: | 75 - CP 250 | Land Use Code | 11 |
| Open Space: | N | DFL | N |
| Historic Property: | N | Remodel Property: | N |
| Multi-Family Redevelopment: | N | | |
| Township: | 7 | Section: | 36 |
| Range: | 35 |
Location |
| Address: | 1220 SE SKY AVE WA 99324 | Mapsco: | |
| Neighborhood: | A SFR | Map ID: | |
| Neighborhood CD: | 113011 |
Owner |
| Name: | MECHAM JADE W & ANNE K | Owner ID: | 72514 |
| Mailing Address: | 1220 SE SKY AVE COLLEGE PLACE, WA 99324 | % Ownership: | 100.0000000000% |
| | | Exemptions: | |
Taxes and Assessment Details
Values
| (+) Improvement Homesite Value: | + | $0 | |
| (+) Improvement Non-Homesite Value: | + | $344,580 | |
| (+) Land Homesite Value: | + | $0 | |
| (+) Land Non-Homesite Value: | + | $60,750 | |
| (+) Curr Use (HS): | + | $0 | $0 |
| (+) Curr Use (NHS): | + | $0 | $0 |
| | | -------------------------- | |
| (=) Market Value: | = | $405,330 | |
| (–) Productivity Loss: | – | $0 | |
| | | -------------------------- | |
| (=) Subtotal: | = | $405,330 | |
| (+) Senior Appraised Value: | + | $0 | |
| (+) Non-Senior Appraised Value: | + | $405,330 | |
| | | -------------------------- | |
| (=) Total Appraised Value: | = | $405,330 | |
| (–) Senior Exemption Loss: | – | $0 | |
| (–) Exemption Loss: | – | $0 | |
| | | -------------------------- | |
| (=) Taxable Value: | = | $405,330 | |
Taxing Jurisdiction
| Owner: | MECHAM JADE W & ANNE K | | |
| % Ownership: | 100.0000000000% | | |
| Total Value: | $405,330 | | |
| Tax Area: | 75 - CP 250 |
| CERFD | CURRENT EXPENSE REFUND 010 | 0.0000000000 | $405,330 | $405,330 | $0.00 | | |
| CURREXP | CURRENT EXPENSE 010 | 1.0175366760 | $405,330 | $405,330 | $412.44 | | |
| HUMNSERV | HUMAN SERVICES 119 | 0.0250000000 | $405,330 | $405,330 | $10.13 | | |
| SLDREL | SOLDIERS RELIEF 121 | 0.0155990005 | $405,330 | $405,330 | $6.32 | | |
| COLLPLBOND | C OF CP BOND 644 | 0.4374241808 | $405,330 | $405,330 | $177.30 | | |
| COLLPLGEN | CITY OF CP 632 | 1.4453819216 | $405,330 | $405,330 | $585.86 | | |
| EMERGSER | EMS 147 | 0.3792580840 | $405,330 | $405,330 | $153.72 | | |
| EMSRFD | EMS REFUND 147 | 0.0000000000 | $405,330 | $405,330 | $0.00 | | |
| RURALLIB | RURAL LIBRARY 623 | 0.3710609029 | $405,330 | $405,330 | $150.40 | | |
| PORTRFD | PORT REFUND 640 | 0.0000000000 | $405,330 | $405,330 | $0.00 | | |
| PORTWWGEN | PORT OF WW 640 | 0.2460186015 | $405,330 | $405,330 | $99.72 | | |
| SD250BOND | SD #250 BOND 773 | 1.4560608159 | $405,330 | $405,330 | $590.19 | | |
| SD250GEN | SD #250 GENERAL 770 | 2.3880724087 | $405,330 | $405,330 | $967.96 | | |
| ST2 | STATE SCHOOL PART 2 600 | 0.8131451643 | $405,330 | $405,330 | $329.59 | | |
| STATESCHL | STATE SCHOOL 600 | 1.5158548041 | $405,330 | $405,330 | $614.42 | | |
| STREFUND | STATE REFUND LEVY 603 | 0.0000000000 | $405,330 | $405,330 | $0.00 | | |
| | Total Tax Rate: | 10.1104125603 | | | | | |
| | | | | Taxes w/Current Exemptions: | $4,098.05 | | |
| | | | | Taxes w/o Exemptions: | $4,098.05 | | |
Improvement / Building
| Improvement #1: | RESIDENTIAL | State Code: | 11 | 1581.0 sqft | Value: | $344,580 |
| Exterior Wall: | SIDING | Heating/Cooling: | REV-HEAT-PUMP-W/DUCT | | Number of Bathrooms: | 3 | Number of Bedrooms: | 2 | | Plumbing: | 13 | Roof Covering: | COMP SHINGLE |
|
| | Type | Description | Class CD | Sub Class CD | Year Built | Area |
| | MA | Main Area | 1 | 30 | 1949 | 1581.0 |
| | SI1 | SITE IMPROVEMENT | 1 | 30 | 1949 | 2.0 |
| | BASE | BASEMENT | 1 | 30 | 1949 | 1564.0 |
| | BPF | BASEMENT -PARTITIONED FINISH | 1 | 30 | 1949 | 1564.0 |
| | ATG | Attached Garage | 1 | 30 | 1949 | 299.0 |
| | SWP | Solid Wall Porch | 1 | 30 | 1949 | 155.0 |
| | RPS | PORCH W/STEPS,ROOF | 1 | 30 | 1949 | 36.0 |
Sketch
Property Image
Land
| 1 | RES 1 | Converted: Residential | 0.2066 | 9000.00 | 0.00 | 0.00 | 1.00 | $60,750 | $0 |
Roll Value History
| 2025 | N/A | N/A | N/A | N/A | N/A |
| 2024 | $344,580 | $60,750 | $0 | $405,330 | $405,330 |
| 2023 | $344,580 | $60,750 | $0 | $405,330 | $405,330 |
| 2022 | $313,260 | $60,750 | $0 | $374,010 | $374,010 |
| 2021 | $272,400 | $60,750 | $0 | $333,150 | $333,150 |
| 2020 | $194,570 | $60,750 | $0 | $255,320 | $255,320 |
| 2019 | $209,020 | $46,300 | $0 | $255,320 | $255,320 |
| 2018 | $199,070 | $46,300 | $0 | $245,370 | $245,370 |
| 2017 | $193,270 | $46,300 | $0 | $239,570 | $239,570 |
| 2016 | $154,620 | $46,300 | $0 | $200,920 | $200,920 |
| 2015 | $154,620 | $46,300 | $0 | $200,920 | $200,920 |
| 2014 | $181,900 | $46,300 | $0 | $228,200 | $228,200 |
| 2013 | $181,900 | $46,300 | $0 | $228,200 | $228,200 |
| 2012 | $181,900 | $46,300 | $0 | $0 | $0 |
| 2011 | $181,900 | $46,300 | $0 | $0 | $0 |
| 2010 | $171,000 | $46,300 | $0 | $0 | $0 |
| 2009 | $195,100 | $46,300 | $0 | $0 | $0 |
| 2008 | $107,600 | $23,800 | $0 | $0 | $0 |
| 2007 | $107,600 | $23,800 | $0 | $0 | $0 |
| 2006 | $107,600 | $23,800 | $0 | $0 | $0 |
Deed and Sales History
| 1 | 01/16/2024 | SWD | STATUTORY WARRANTY DEED | MECHAM JADE W & ANNE K | HUGHES KENNETH WESLEY & APRIL LOUISE | | | $520,000.00 | 147027 | 2024-00231 |
| 2 | 09/23/2022 | SWD | STATUTORY WARRANTY DEED | REXIN CALEB N & MEGAN D | MECHAM JADE W & ANNE K | | | $499,000.00 | 144745 | 2022-07647 |
| 3 | 07/26/2019 | SWD | STATUTORY WARRANTY DEED | DONESKY ANDREW JAKE | REXIN CALEB N & MEGAN D | | | $310,000.00 | 137360 | 2019-05484 |
| 4 | 07/26/2019 | QCD | QUIT CLAIM DEED | MOWAT KATIE | DONESKY ANDREW JAKE | | | | 137361 | 2019-05485 |
| 5 | 08/30/2016 | SWD | STATUTORY WARRANTY DEED | ROTH BRIAN & TRASA | DONESKY ANDREW JAKE | | | $250,000.00 | 130923 | 2016-06991 |
| 6 | 10/03/2008 | WARRANTY D | WARRANTY DEED | CBM ENTERPRISES | ROTH, BRIAN D & TRASA L | | | $239,000.00 | 115757 | 2008-10139 |
| 7 | 08/01/2007 | QCD | QUIT CLAIM DEED | PADDOCK, CHERILYN C | CBM ENTERPRISES | | | | 113421 | 2007-08925 |
| 8 | 01/17/2007 | QCD | QUIT CLAIM DEED | PADDOCK, LAWTON | PADDOCK, CHERILYN C | | | | 112091 | 2007-00685 |
| 9 | 03/14/2006 | QCD | QUIT CLAIM DEED | SCHWARTZ, WILLIAM | SCHWARTZ, CHERILYN C | | | | 109837 | 2006-02806 |
| 10 | 02/10/2006 | WARRANTY D | WARRANTY DEED | SCHWARTZ, WILLIAM G | WALLACE, CHERILYN | | | | 0 | CC #04-3--00018-6 |
| 11 | 05/13/2003 | WARRANTY D | WARRANTY DEED | MC NEIL, BONNIE JEAN L | SCHWARTZ, WILLIAM G | | | $132,000.00 | 102070 | 2003-06974 |
| 12 | 08/01/1967 | WARRANTY D | WARRANTY DEED | | | | | $14,005.00 | 0 | 1949-201160 |
Payout Agreement
| No payout information available.. |