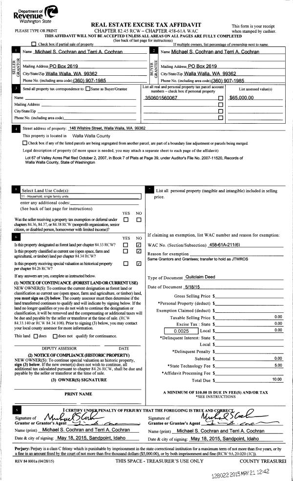
Property
Account |
| Property ID: | 2513 | Abbreviated Legal Description: | REPLAT GARRISON CREEK HGHTS LT 1 BLK 2 |
| Parcel Number: | 350736700201 | Agent Code: | |
| Type: | Real | | |
| Tax Area: | 77 - CP-250-F | Land Use Code | 11 |
| Open Space: | N | DFL | N |
| Historic Property: | N | Remodel Property: | N |
| Multi-Family Redevelopment: | N | | |
| Township: | 7 | Section: | 36 |
| Range: | 35 |
Location |
| Address: | 927 SE MARINE DR WA 99324 | Mapsco: | |
| Neighborhood: | G SFR | Map ID: | |
| Neighborhood CD: | 114011 |
Owner |
| Name: | LARSEN JEFFERY S | Owner ID: | 56672 |
| Mailing Address: | 927 SE MARINE DR COLLEGE PLACE, WA 99324 | % Ownership: | 100.0000000000% |
| | | Exemptions: | |
Taxes and Assessment Details
Values
| (+) Improvement Homesite Value: | + | $0 | |
| (+) Improvement Non-Homesite Value: | + | $508,020 | |
| (+) Land Homesite Value: | + | $0 | |
| (+) Land Non-Homesite Value: | + | $75,000 | |
| (+) Curr Use (HS): | + | $0 | $0 |
| (+) Curr Use (NHS): | + | $0 | $0 |
| | | -------------------------- | |
| (=) Market Value: | = | $583,020 | |
| (–) Productivity Loss: | – | $0 | |
| | | -------------------------- | |
| (=) Subtotal: | = | $583,020 | |
| (+) Senior Appraised Value: | + | $0 | |
| (+) Non-Senior Appraised Value: | + | $583,020 | |
| | | -------------------------- | |
| (=) Total Appraised Value: | = | $583,020 | |
| (–) Senior Exemption Loss: | – | $0 | |
| (–) Exemption Loss: | – | $0 | |
| | | -------------------------- | |
| (=) Taxable Value: | = | $583,020 | |
Taxing Jurisdiction
| Owner: | LARSEN JEFFERY S | | |
| % Ownership: | 100.0000000000% | | |
| Total Value: | $583,020 | | |
| Tax Area: | 77 - CP-250-F |
| CERFD | CURRENT EXPENSE REFUND 010 | 0.0000000000 | $583,020 | $583,020 | $0.00 | | |
| CURREXP | CURRENT EXPENSE 010 | 1.0175366760 | $583,020 | $583,020 | $593.24 | | |
| HUMNSERV | HUMAN SERVICES 119 | 0.0250000000 | $583,020 | $583,020 | $14.58 | | |
| SLDREL | SOLDIERS RELIEF 121 | 0.0155990005 | $583,020 | $583,020 | $9.09 | | |
| COLLPLBOND | C OF CP BOND 644 | 0.4374241808 | $583,020 | $583,020 | $255.03 | | |
| COLLPLGEN | CITY OF CP 632 | 1.4453819216 | $583,020 | $583,020 | $842.69 | | |
| EMERGSER | EMS 147 | 0.3792580840 | $583,020 | $583,020 | $221.12 | | |
| EMSRFD | EMS REFUND 147 | 0.0000000000 | $583,020 | $583,020 | $0.00 | | |
| RURALLIB | RURAL LIBRARY 623 | 0.3710609029 | $583,020 | $583,020 | $216.34 | | |
| PORTRFD | PORT REFUND 640 | 0.0000000000 | $583,020 | $583,020 | $0.00 | | |
| PORTWWGEN | PORT OF WW 640 | 0.2460186015 | $583,020 | $583,020 | $143.43 | | |
| SD250BOND | SD #250 BOND 773 | 1.4560608159 | $583,020 | $583,020 | $848.91 | | |
| SD250GEN | SD #250 GENERAL 770 | 2.3880724087 | $583,020 | $583,020 | $1,392.29 | | |
| ST2 | STATE SCHOOL PART 2 600 | 0.8131451643 | $583,020 | $583,020 | $474.08 | | |
| STATESCHL | STATE SCHOOL 600 | 1.5158548041 | $583,020 | $583,020 | $883.77 | | |
| STREFUND | STATE REFUND LEVY 603 | 0.0000000000 | $583,020 | $583,020 | $0.00 | | |
| | Total Tax Rate: | 10.1104125603 | | | | | |
| | | | | Taxes w/Current Exemptions: | $5,894.57 | | |
| | | | | Taxes w/o Exemptions: | $5,894.57 | | |
Improvement / Building
| Improvement #1: | RESIDENTIAL | State Code: | 11 | 2571.0 sqft | Value: | $508,020 |
| Exterior Wall: | SIDING | Heating/Cooling: | REV-HEAT-PUMP-W/DUCT | | Number of Bathrooms: | 3 | Number of Bedrooms: | 3 | | Plumbing: | 12 | Roof Covering: | COMP SHINGLE |
|
| | Type | Description | Class CD | Sub Class CD | Year Built | Area |
| | MA | Main Area | 4 | 40 | 1992 | 2571.0 |
| | SI1 | SITE IMPROVEMENT | 4 | 40 | 1992 | 3.0 |
| | UPFL | Upper Floor (included in main area) | 4 | 40 | 1992 | 1201.0 |
| | ATG | Attached Garage | 4 | 40 | 1992 | 529.0 |
| | GFP | GAS FIREPLACE | 4 | 40 | 1992 | 1.0 |
| | WOD | Wood Deck | 4 | 40 | 1992 | 256.0 |
| | ATG | Attached Garage | 4 | 40 | 2009 | 935.0 |
| | RPO | OPEN PORCH W/ROOF | 4 | 40 | 1992 | 58.0 |
Sketch
Property Image
Land
| 1 | RES 1 | Converted: Residential | 0.2140 | 9321.00 | 0.00 | 0.00 | 1.00 | $75,000 | $0 |
Roll Value History
| 2025 | N/A | N/A | N/A | N/A | N/A |
| 2024 | $508,020 | $75,000 | $0 | $583,020 | $583,020 |
| 2023 | $508,020 | $75,000 | $0 | $583,020 | $583,020 |
| 2022 | $508,020 | $75,000 | $0 | $583,020 | $583,020 |
| 2021 | $423,350 | $75,000 | $0 | $498,350 | $498,350 |
| 2020 | $313,590 | $75,000 | $0 | $388,590 | $388,590 |
| 2019 | $323,590 | $65,000 | $0 | $388,590 | $388,590 |
| 2018 | $248,910 | $65,000 | $0 | $313,910 | $313,910 |
| 2017 | $237,060 | $65,000 | $0 | $302,060 | $302,060 |
| 2016 | $237,060 | $65,000 | $0 | $302,060 | $302,060 |
| 2015 | $237,060 | $65,000 | $0 | $302,060 | $302,060 |
| 2014 | $263,400 | $65,000 | $0 | $328,400 | $328,400 |
| 2013 | $263,400 | $65,000 | $0 | $328,400 | $328,400 |
| 2012 | $263,400 | $65,000 | $0 | $0 | $0 |
| 2011 | $263,400 | $65,000 | $0 | $0 | $0 |
| 2010 | $236,900 | $65,000 | $0 | $0 | $0 |
| 2009 | $252,800 | $65,000 | $0 | $0 | $0 |
| 2008 | $227,800 | $40,000 | $0 | $0 | $0 |
| 2007 | $227,800 | $40,000 | $0 | $0 | $0 |
| 2006 | $227,800 | $40,000 | $0 | $0 | $0 |
Deed and Sales History
| 1 | 05/29/2015 | SWD | STATUTORY WARRANTY DEED | ENSIGN TATE S | LARSEN JEFFERY S | | | $305,000.00 | 128072 | 2015-04565 |
| 2 | 08/15/2006 | WARRANTY D | WARRANTY DEED | PRUDENTIAL RELOCATION INC | ENSIGN, TATE S | | | $276,900.00 | 110957 | 2006-09760 |
| 3 | 08/15/2006 | QCD | QUIT CLAIM DEED | ENSIGN, MICHELE L | ENSIGN, TATE S | | | | 110956 | 2006-09759 |
| 4 | 06/13/2006 | WARRANTY D | WARRANTY DEED | BART, MICHAEL J & CONSTANCE P | PRUDENTIAL RELOCATION INC | | | $287,250.00 | 110496 | 2006-06845 |
| 5 | 06/05/2003 | WARRANTY D | WARRANTY DEED | ELSTROM, GEORGE R & TWILA V | BART, MICHAEL J & CONSTANCE P | | | $269,000.00 | 102275 | 2003-08307 |
| 6 | 09/24/1991 | WARRANTY D | WARRANTY DEED | | | | | $19,000.00 | 0 | 1919-106643 |
Payout Agreement
| No payout information available.. |