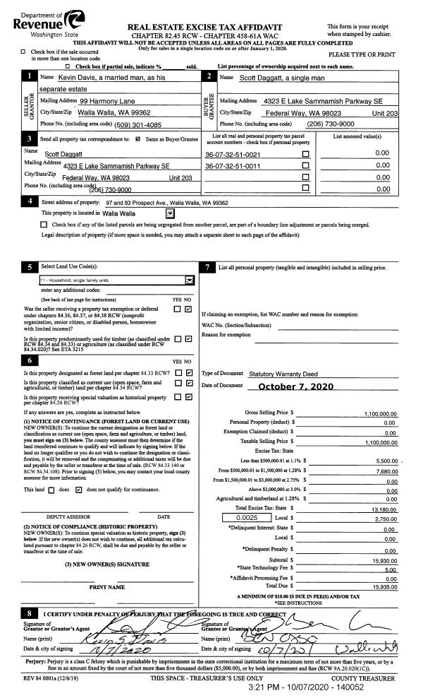
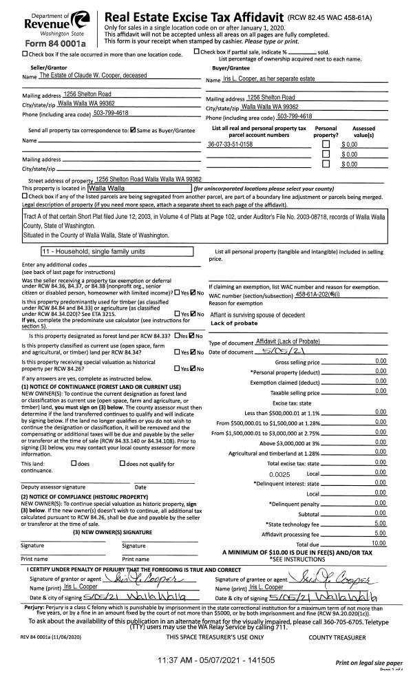
Property
Account |
| Property ID: | 24908 | Abbreviated Legal Description: | SEC 3 TWP 7 RNG 31 S1/2 OF TRACT 34 |
| Parcel Number: | 310703533402 | Agent Code: | |
| Type: | Real | | |
| Tax Area: | 333 - 400-5-C-M | Land Use Code | 81 |
| Open Space: | N | DFL | N |
| Historic Property: | N | Remodel Property: | N |
| Multi-Family Redevelopment: | N | | |
| Township: | 7 | Section: | 3 |
| Range: | 31 |
Location |
| Address: | SUNDANCE RD WA 99323 | Mapsco: | |
| Neighborhood: | 0 Farm | Map ID: | |
| Neighborhood CD: | 2220 |
Owner |
| Name: | WALLA WALLA PORT OF | Owner ID: | 58 |
| Mailing Address: | 310 A ST WALLA WALLA, WA 99362 | % Ownership: | 100.0000000000% |
| | | Exemptions: | EX |
Taxes and Assessment Details
Values
| (+) Improvement Homesite Value: | + | $0 | |
| (+) Improvement Non-Homesite Value: | + | $0 | |
| (+) Land Homesite Value: | + | $0 | |
| (+) Land Non-Homesite Value: | + | $1,920 | |
| (+) Curr Use (HS): | + | $0 | $0 |
| (+) Curr Use (NHS): | + | $0 | $0 |
| | | -------------------------- | |
| (=) Market Value: | = | $1,920 | |
| (–) Productivity Loss: | – | $0 | |
| | | -------------------------- | |
| (=) Subtotal: | = | $1,920 | |
| (+) Senior Appraised Value: | + | $0 | |
| (+) Non-Senior Appraised Value: | + | $1,920 | |
| | | -------------------------- | |
| (=) Total Appraised Value: | = | $1,920 | |
| (–) Senior Exemption Loss: | – | $0 | |
| (–) Exemption Loss: | – | $1,920 | |
| | | -------------------------- | |
| (=) Taxable Value: | = | $0 | |
Taxing Jurisdiction
| Owner: | WALLA WALLA PORT OF | | |
| % Ownership: | 100.0000000000% | | |
| Total Value: | $1,920 | | |
| Tax Area: | 333 - 400-5-C-M |
| CERFD | CURRENT EXPENSE REFUND 010 | 0.0000000000 | $1,920 | $0 | $0.00 | | |
| CURREXP | CURRENT EXPENSE 010 | 1.0175366760 | $1,920 | $0 | $0.00 | | |
| HUMNSERV | HUMAN SERVICES 119 | 0.0250000000 | $1,920 | $0 | $0.00 | | |
| SLDREL | SOLDIERS RELIEF 121 | 0.0155990005 | $1,920 | $0 | $0.00 | | |
| EMERGSER | EMS 147 | 0.3792580840 | $1,920 | $0 | $0.00 | | |
| EMSRFD | EMS REFUND 147 | 0.0000000000 | $1,920 | $0 | $0.00 | | |
| FD5EXP | FD #5 EXPENSE 689 | 1.2045331840 | $1,920 | $0 | $0.00 | | |
| RLBRFD | RURAL LIBRARY REFUND 623 | 0.0000000000 | $1,920 | $0 | $0.00 | | |
| RURALLIB | RURAL LIBRARY 623 | 0.3710609029 | $1,920 | $0 | $0.00 | | |
| PORTRFD | PORT REFUND 640 | 0.0000000000 | $1,920 | $0 | $0.00 | | |
| PORTWWGEN | PORT OF WW 640 | 0.2460186015 | $1,920 | $0 | $0.00 | | |
| SD400BOND | SD #400 BOND 793 | 0.0000000000 | $1,920 | $0 | $0.00 | | |
| SD400CAP | SD #400 CP 792 | 0.3443722657 | $1,920 | $0 | $0.00 | | |
| SD400GEN | SD #400 GENERAL 790 | 1.9278469916 | $1,920 | $0 | $0.00 | | |
| ST2 | STATE SCHOOL PART 2 600 | 0.8131451643 | $1,920 | $0 | $0.00 | | |
| STATESCHL | STATE SCHOOL 600 | 1.5158548041 | $1,920 | $0 | $0.00 | | |
| STREFUND | STATE REFUND LEVY 603 | 0.0000000000 | $1,920 | $0 | $0.00 | | |
| COROAD | COUNTY ROAD 115 | 1.6549953990 | $1,920 | $0 | $0.00 | | |
| CRPRD | COUNTY ROAD REFUND 115 | 0.0000000000 | $1,920 | $0 | $0.00 | | |
| | Total Tax Rate: | 9.5152210736 | | | | | |
| | | | | Taxes w/Current Exemptions: | $0.00 | | |
| | | | | Taxes w/o Exemptions: | $18.26 | | |
Improvement / Building
Sketch
| No sketches available for this property. |
Property Image
Land
| 1 | DLP | Dry Land Pasture | 4.8600 | 0.00 | 0.00 | 0.00 | 1.00 | $1,920 | $0 |
Roll Value History
| 2025 | N/A | N/A | N/A | N/A | N/A |
| 2024 | $0 | $1,920 | $0 | $1,920 | $0 |
| 2023 | $0 | $1,920 | $0 | $1,920 | $0 |
| 2022 | $0 | $1,700 | $0 | $1,700 | $0 |
| 2021 | $0 | $1,700 | $0 | $1,700 | $0 |
| 2020 | $0 | $1,460 | $0 | $1,460 | $0 |
| 2019 | $0 | $1,460 | $0 | $1,460 | $0 |
| 2018 | $0 | $1,460 | $110 | $110 | $110 |
| 2017 | $0 | $1,460 | $120 | $120 | $120 |
| 2016 | $0 | $490 | $110 | $110 | $110 |
| 2015 | $0 | $490 | $100 | $100 | $100 |
| 2014 | $0 | $490 | $100 | $100 | $100 |
| 2013 | $0 | $500 | $100 | $100 | $100 |
| 2012 | $0 | $100 | $0 | $0 | $0 |
| 2011 | $0 | $100 | $0 | $0 | $0 |
| 2010 | $0 | $100 | $0 | $0 | $0 |
| 2009 | $0 | $100 | $0 | $0 | $0 |
| 2008 | $0 | $100 | $0 | $0 | $0 |
| 2007 | $0 | $100 | $0 | $0 | $0 |
| 2006 | $0 | $100 | $0 | $0 | $0 |
Deed and Sales History
| 1 | 03/05/2020 | WARRANTY D | WARRANTY DEED | JR SIMPLOT | WALLA WALLA PORT OF | | | $105,600.00 | 138741 | 2020-02080 |
|   | |
| 2 | 01/27/2014 | WARRANTY D | WARRANTY DEED | ATTALIA LLC | JR SIMPLOT | | | $750,000.00 | 125327 | 2014-00633 |
|   | |
| 3 | 08/31/2012 | WARRANTY D | WARRANTY DEED | TWO RIVERS FARMS | ATTALIA LLC | | | | 122570 | 2012-07669 |
Payout Agreement
| No payout information available.. |