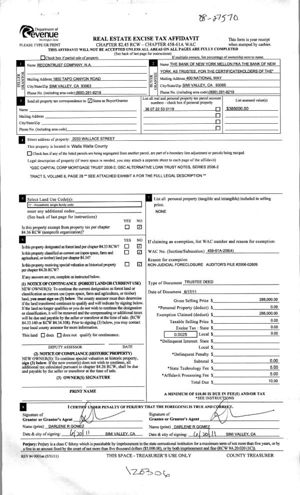
Property
Account |
| Property ID: | 24634 | Abbreviated Legal Description: | SAGE VIEW ADD LOT 12 |
| Parcel Number: | 300812580012 | Agent Code: | |
| Type: | Real | | |
| Tax Area: | 331 - 400-M-5-W4 | Land Use Code | 11 |
| Open Space: | N | DFL | N |
| Historic Property: | N | Remodel Property: | N |
| Multi-Family Redevelopment: | N | | |
| Township: | 8 | Section: | 12 |
| Range: | 30 |
Location |
| Address: | 176 COLUMBIA RD WA 99323 | Mapsco: | |
| Neighborhood: | Burbank A MH | Map ID: | |
| Neighborhood CD: | 213761 |
Owner |
| Name: | JOSEPHSON KENDALL E & COURTNEY P | Owner ID: | 66161 |
| Mailing Address: | 176 COLUMBIA RD BURBANK, WA 99323 | % Ownership: | 100.0000000000% |
| | | Exemptions: | |
Taxes and Assessment Details
Values
| (+) Improvement Homesite Value: | + | $0 | |
| (+) Improvement Non-Homesite Value: | + | $221,710 | |
| (+) Land Homesite Value: | + | $0 | |
| (+) Land Non-Homesite Value: | + | $59,660 | |
| (+) Curr Use (HS): | + | $0 | $0 |
| (+) Curr Use (NHS): | + | $0 | $0 |
| | | -------------------------- | |
| (=) Market Value: | = | $281,370 | |
| (–) Productivity Loss: | – | $0 | |
| | | -------------------------- | |
| (=) Subtotal: | = | $281,370 | |
| (+) Senior Appraised Value: | + | $0 | |
| (+) Non-Senior Appraised Value: | + | $281,370 | |
| | | -------------------------- | |
| (=) Total Appraised Value: | = | $281,370 | |
| (–) Senior Exemption Loss: | – | $0 | |
| (–) Exemption Loss: | – | $0 | |
| | | -------------------------- | |
| (=) Taxable Value: | = | $281,370 | |
Taxing Jurisdiction
| Owner: | JOSEPHSON KENDALL E & COURTNEY P | | |
| % Ownership: | 100.0000000000% | | |
| Total Value: | $281,370 | | |
| Tax Area: | 331 - 400-M-5-W4 |
| CERFD | CURRENT EXPENSE REFUND 010 | 0.0000000000 | $281,370 | $281,370 | $0.00 | | |
| CURREXP | CURRENT EXPENSE 010 | 1.0175366760 | $281,370 | $281,370 | $286.30 | | |
| HUMNSERV | HUMAN SERVICES 119 | 0.0250000000 | $281,370 | $281,370 | $7.03 | | |
| SLDREL | SOLDIERS RELIEF 121 | 0.0155990005 | $281,370 | $281,370 | $4.39 | | |
| EMERGSER | EMS 147 | 0.3792580840 | $281,370 | $281,370 | $106.71 | | |
| EMSRFD | EMS REFUND 147 | 0.0000000000 | $281,370 | $281,370 | $0.00 | | |
| FD5EXP | FD #5 EXPENSE 689 | 1.2045331840 | $281,370 | $281,370 | $338.92 | | |
| RLBRFD | RURAL LIBRARY REFUND 623 | 0.0000000000 | $281,370 | $281,370 | $0.00 | | |
| RURALLIB | RURAL LIBRARY 623 | 0.3710609029 | $281,370 | $281,370 | $104.41 | | |
| PORTRFD | PORT REFUND 640 | 0.0000000000 | $281,370 | $281,370 | $0.00 | | |
| PORTWWGEN | PORT OF WW 640 | 0.2460186015 | $281,370 | $281,370 | $69.22 | | |
| SD400BOND | SD #400 BOND 793 | 0.0000000000 | $281,370 | $281,370 | $0.00 | | |
| SD400CAP | SD #400 CP 792 | 0.3443722657 | $281,370 | $281,370 | $96.90 | | |
| SD400GEN | SD #400 GENERAL 790 | 1.9278469916 | $281,370 | $281,370 | $542.44 | | |
| ST2 | STATE SCHOOL PART 2 600 | 0.8131451643 | $281,370 | $281,370 | $228.79 | | |
| STATESCHL | STATE SCHOOL 600 | 1.5158548041 | $281,370 | $281,370 | $426.52 | | |
| STREFUND | STATE REFUND LEVY 603 | 0.0000000000 | $281,370 | $281,370 | $0.00 | | |
| COROAD | COUNTY ROAD 115 | 1.6549953990 | $281,370 | $281,370 | $465.67 | | |
| CRPRD | COUNTY ROAD REFUND 115 | 0.0000000000 | $281,370 | $281,370 | $0.00 | | |
| | Total Tax Rate: | 9.5152210736 | | | | | |
| | | | | Taxes w/Current Exemptions: | $2,677.30 | | |
| | | | | Taxes w/o Exemptions: | $2,677.30 | | |
Improvement / Building
| Improvement #1: | MANUFACTURED HOME | State Code: | 11 | 1620.0 sqft | Value: | $221,710 |
| Exterior Wall: | PLYWOOD | Heating/Cooling: | REV-HEAT-PUMP-W/DUCT | | Number of Bathrooms: | 2 | Number of Bedrooms: | 4 | | Plumbing: | 8 | Roof Covering: | COMP SHINGLE |
|
| | Type | Description | Class CD | Sub Class CD | Year Built | Area |
| | MOBHOME | MANUFACTURD HOMES | 1 | 40 | 1997 | 1620.0 |
| | MI1 | MH SET-UP COSTS | 1 | 40 | 1997 | 1.0 |
| | WOD | Wood Deck | 1 | 40 | 1997 | 40.0 |
Sketch
Property Image
Land
| 1 | RES 1 | Converted: Residential | 0.2871 | 12508.00 | 0.00 | 0.00 | 1.00 | $59,660 | $0 |
Roll Value History
| 2025 | N/A | N/A | N/A | N/A | N/A |
| 2024 | $277,140 | $59,660 | $0 | $336,800 | $336,800 |
| 2023 | $221,710 | $59,660 | $0 | $281,370 | $281,370 |
| 2022 | $184,760 | $59,660 | $0 | $244,420 | $244,420 |
| 2021 | $131,970 | $59,660 | $0 | $191,630 | $191,630 |
| 2020 | $131,090 | $22,800 | $0 | $153,890 | $153,890 |
| 2019 | $131,090 | $22,800 | $0 | $153,890 | $153,890 |
| 2018 | $131,090 | $22,800 | $0 | $153,890 | $153,890 |
| 2017 | $124,850 | $22,800 | $0 | $147,650 | $147,650 |
| 2016 | $113,500 | $22,800 | $0 | $136,300 | $136,300 |
| 2015 | $113,500 | $22,800 | $0 | $136,300 | $136,300 |
| 2014 | $108,100 | $22,800 | $0 | $130,900 | $130,900 |
| 2013 | $108,100 | $22,800 | $0 | $130,900 | $130,900 |
| 2012 | $96,200 | $22,800 | $0 | $0 | $0 |
| 2011 | $90,500 | $22,800 | $0 | $0 | $0 |
| 2010 | $90,500 | $22,800 | $0 | $0 | $0 |
| 2009 | $97,800 | $18,400 | $0 | $0 | $0 |
| 2008 | $82,600 | $18,400 | $0 | $0 | $0 |
| 2007 | $82,600 | $18,400 | $0 | $0 | $0 |
| 2006 | $82,600 | $18,400 | $0 | $0 | $0 |
Deed and Sales History
| 1 | 05/10/2024 | SWD | STATUTORY WARRANTY DEED | JOSEPHSON KENDALL E & COURTNEY P | DAVIS CHAD & KACEY | | | $335,000.00 | 147550 | 2024-02513 |
| 2 | 10/28/2019 | SWD | STATUTORY WARRANTY DEED | GONZALEZ MEGHAN E | JOSEPHSON KENDALL E & COURTNEY P | | | $190,000.00 | 137965 | 2019-08738 |
| 3 | 01/30/2015 | QCD | QUIT CLAIM DEED | ROWLAND JAROD T & MEGAN E | GONZALEZ MEGHAN E | | | $0.00 | 127368 | 2015-00897 |
| 4 | 08/26/1997 | WARRANTY D | WARRANTY DEED | | | | | $16,500.00 | 88779 | 2559-707931 |
Payout Agreement
| No payout information available.. |