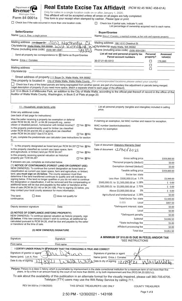
Property
Account |
| Property ID: | 24477 | Abbreviated Legal Description: | BROCK DEVEL. #1 LOT 2 |
| Parcel Number: | 310818530002 | Agent Code: | |
| Type: | Real | | |
| Tax Area: | 328 - 400-M-5 | Land Use Code | 11 |
| Open Space: | N | DFL | N |
| Historic Property: | N | Remodel Property: | N |
| Multi-Family Redevelopment: | N | | |
| Township: | 8 | Section: | 18 |
| Range: | 31 |
Location |
| Address: | 2691 HANSON LOOP WA 99323 | Mapsco: | |
| Neighborhood: | G BURBANK MH | Map ID: | |
| Neighborhood CD: | 214761 |
Owner |
| Name: | WERLINGER HAYLEA & CASEY | Owner ID: | 70891 |
| Mailing Address: | 2691 HANSON LOOP BURBANK, WA 99323 | % Ownership: | 100.0000000000% |
| | | Exemptions: | |
Taxes and Assessment Details
Values
| (+) Improvement Homesite Value: | + | $0 | |
| (+) Improvement Non-Homesite Value: | + | $418,300 | |
| (+) Land Homesite Value: | + | $0 | |
| (+) Land Non-Homesite Value: | + | $88,270 | |
| (+) Curr Use (HS): | + | $0 | $0 |
| (+) Curr Use (NHS): | + | $0 | $0 |
| | | -------------------------- | |
| (=) Market Value: | = | $506,570 | |
| (–) Productivity Loss: | – | $0 | |
| | | -------------------------- | |
| (=) Subtotal: | = | $506,570 | |
| (+) Senior Appraised Value: | + | $0 | |
| (+) Non-Senior Appraised Value: | + | $506,570 | |
| | | -------------------------- | |
| (=) Total Appraised Value: | = | $506,570 | |
| (–) Senior Exemption Loss: | – | $0 | |
| (–) Exemption Loss: | – | $0 | |
| | | -------------------------- | |
| (=) Taxable Value: | = | $506,570 | |
Taxing Jurisdiction
| Owner: | WERLINGER HAYLEA & CASEY | | |
| % Ownership: | 100.0000000000% | | |
| Total Value: | $506,570 | | |
| Tax Area: | 328 - 400-M-5 |
| CERFD | CURRENT EXPENSE REFUND 010 | 0.0000000000 | $506,570 | $506,570 | $0.00 | | |
| CURREXP | CURRENT EXPENSE 010 | 1.0175366760 | $506,570 | $506,570 | $515.45 | | |
| HUMNSERV | HUMAN SERVICES 119 | 0.0250000000 | $506,570 | $506,570 | $12.66 | | |
| SLDREL | SOLDIERS RELIEF 121 | 0.0155990005 | $506,570 | $506,570 | $7.90 | | |
| EMERGSER | EMS 147 | 0.3792580840 | $506,570 | $506,570 | $192.12 | | |
| EMSRFD | EMS REFUND 147 | 0.0000000000 | $506,570 | $506,570 | $0.00 | | |
| FD5EXP | FD #5 EXPENSE 689 | 1.2045331840 | $506,570 | $506,570 | $610.18 | | |
| RLBRFD | RURAL LIBRARY REFUND 623 | 0.0000000000 | $506,570 | $506,570 | $0.00 | | |
| RURALLIB | RURAL LIBRARY 623 | 0.3710609029 | $506,570 | $506,570 | $187.97 | | |
| PORTRFD | PORT REFUND 640 | 0.0000000000 | $506,570 | $506,570 | $0.00 | | |
| PORTWWGEN | PORT OF WW 640 | 0.2460186015 | $506,570 | $506,570 | $124.63 | | |
| SD400BOND | SD #400 BOND 793 | 0.0000000000 | $506,570 | $506,570 | $0.00 | | |
| SD400CAP | SD #400 CP 792 | 0.3443722657 | $506,570 | $506,570 | $174.45 | | |
| SD400GEN | SD #400 GENERAL 790 | 1.9278469916 | $506,570 | $506,570 | $976.59 | | |
| ST2 | STATE SCHOOL PART 2 600 | 0.8131451643 | $506,570 | $506,570 | $411.91 | | |
| STATESCHL | STATE SCHOOL 600 | 1.5158548041 | $506,570 | $506,570 | $767.89 | | |
| STREFUND | STATE REFUND LEVY 603 | 0.0000000000 | $506,570 | $506,570 | $0.00 | | |
| COROAD | COUNTY ROAD 115 | 1.6549953990 | $506,570 | $506,570 | $838.37 | | |
| CRPRD | COUNTY ROAD REFUND 115 | 0.0000000000 | $506,570 | $506,570 | $0.00 | | |
| | Total Tax Rate: | 9.5152210736 | | | | | |
| | | | | Taxes w/Current Exemptions: | $4,820.12 | | |
| | | | | Taxes w/o Exemptions: | $4,820.12 | | |
Improvement / Building
| Improvement #1: | MANUFACTURED HOME | State Code: | 11 | 1512.0 sqft | Value: | $418,300 |
| Exterior Wall: | PLYWOOD | Heating/Cooling: | WARM & COOLED AIR | | Number of Bathrooms: | 2 | Number of Bedrooms: | 3 | | Plumbing: | 8 | Roof Covering: | COMP SHINGLE |
|
| | Type | Description | Class CD | Sub Class CD | Year Built | Area |
| | MOBHOME | MANUFACTURD HOMES | 1 | 30 | 1992 | 1512.0 |
| | MI1 | MH SET-UP COSTS | 1 | 30 | 1992 | 1.0 |
| | DTG | Detached Garage | 1 | 30 | 1993 | 864.0 |
| | DTG | Detached Garage | 1 | 30 | 1993 | 624.0 |
| | WOD | Wood Deck | 1 | 30 | 1992 | 120.0 |
| | WOD | Wood Deck | 1 | 30 | 1992 | 64.0 |
| | WOD | Wood Deck | 1 | 30 | 1992 | 240.0 |
Sketch
Property Image
Land
| 1 | RES 1 | Converted: Residential | 1.8400 | 0.00 | 0.00 | 0.00 | 1.00 | $88,270 | $0 |
Roll Value History
| 2025 | N/A | N/A | N/A | N/A | N/A |
| 2024 | $418,300 | $88,270 | $0 | $506,570 | $506,570 |
| 2023 | $418,300 | $88,270 | $0 | $506,570 | $506,570 |
| 2022 | $398,380 | $88,270 | $0 | $486,650 | $486,650 |
| 2021 | $199,190 | $88,270 | $0 | $287,460 | $287,460 |
| 2020 | $134,340 | $42,100 | $0 | $176,440 | $176,440 |
| 2019 | $134,340 | $42,100 | $0 | $176,440 | $176,440 |
| 2018 | $127,940 | $42,100 | $0 | $170,040 | $170,040 |
| 2017 | $121,850 | $42,100 | $0 | $163,950 | $163,950 |
| 2016 | $110,770 | $42,100 | $0 | $152,870 | $152,870 |
| 2015 | $100,700 | $42,100 | $0 | $142,800 | $142,800 |
| 2014 | $100,700 | $42,100 | $0 | $142,800 | $142,800 |
| 2013 | $100,700 | $42,100 | $0 | $142,800 | $142,800 |
| 2012 | $100,700 | $42,100 | $0 | $0 | $0 |
| 2011 | $100,700 | $42,100 | $0 | $0 | $0 |
| 2010 | $100,700 | $42,100 | $0 | $0 | $0 |
| 2009 | $108,100 | $38,800 | $0 | $0 | $0 |
| 2008 | $83,300 | $38,800 | $0 | $0 | $0 |
| 2007 | $83,300 | $38,800 | $0 | $0 | $0 |
| 2006 | $83,300 | $38,800 | $0 | $0 | $0 |
Deed and Sales History
| 1 | 12/28/2021 | SWD | STATUTORY WARRANTY DEED | BURKE HARRY G ESTATE OF | WERLINGER HAYLEA & CASEY | | | $500,000.00 | 143131 | 2021-15050 |
| 2 | 08/22/2005 | WARRANTY D | WARRANTY DEED | BURKE, MARTHA E | BURKE, HARRY G | | | | 0 | CC #05-3-50116-9 |
Payout Agreement
| No payout information available.. |