Property
Account |
| Property ID: | 24420 | Abbreviated Legal Description: | HARRISON & RAY INC ADD LOT 9 BLK 4 |
| Parcel Number: | 300812570409 | Agent Code: | |
| Type: | Real | | |
| Tax Area: | 331 - 400-M-5-W4 | Land Use Code | 11 |
| Open Space: | N | DFL | N |
| Historic Property: | N | Remodel Property: | N |
| Multi-Family Redevelopment: | N | | |
| Township: | 8 | Section: | 12 |
| Range: | 30 |
Location |
| Address: | 160 ADAIR RD WA 99323 | Mapsco: | |
| Neighborhood: | Burbank A MH | Map ID: | |
| Neighborhood CD: | 213761 |
Owner |
| Name: | REARDON JOSHUA N & HEIDI L | Owner ID: | 56778 |
| Mailing Address: | 160 ADAIR RD BURBANK, WA 99323 | % Ownership: | 100.0000000000% |
| | | Exemptions: | |
Taxes and Assessment Details
Values
| (+) Improvement Homesite Value: | + | $0 | |
| (+) Improvement Non-Homesite Value: | + | $141,970 | |
| (+) Land Homesite Value: | + | $0 | |
| (+) Land Non-Homesite Value: | + | $60,190 | |
| (+) Curr Use (HS): | + | $0 | $0 |
| (+) Curr Use (NHS): | + | $0 | $0 |
| | | -------------------------- | |
| (=) Market Value: | = | $202,160 | |
| (–) Productivity Loss: | – | $0 | |
| | | -------------------------- | |
| (=) Subtotal: | = | $202,160 | |
| (+) Senior Appraised Value: | + | $0 | |
| (+) Non-Senior Appraised Value: | + | $202,160 | |
| | | -------------------------- | |
| (=) Total Appraised Value: | = | $202,160 | |
| (–) Senior Exemption Loss: | – | $0 | |
| (–) Exemption Loss: | – | $0 | |
| | | -------------------------- | |
| (=) Taxable Value: | = | $202,160 | |
Taxing Jurisdiction
| Owner: | REARDON JOSHUA N & HEIDI L | | |
| % Ownership: | 100.0000000000% | | |
| Total Value: | $202,160 | | |
| Tax Area: | 331 - 400-M-5-W4 |
| CERFD | CURRENT EXPENSE REFUND 010 | 0.0000000000 | $202,160 | $202,160 | $0.00 | | |
| CURREXP | CURRENT EXPENSE 010 | 1.0175366760 | $202,160 | $202,160 | $205.71 | | |
| HUMNSERV | HUMAN SERVICES 119 | 0.0250000000 | $202,160 | $202,160 | $5.05 | | |
| SLDREL | SOLDIERS RELIEF 121 | 0.0155990005 | $202,160 | $202,160 | $3.15 | | |
| EMERGSER | EMS 147 | 0.3792580840 | $202,160 | $202,160 | $76.67 | | |
| EMSRFD | EMS REFUND 147 | 0.0000000000 | $202,160 | $202,160 | $0.00 | | |
| FD5EXP | FD #5 EXPENSE 689 | 1.2045331840 | $202,160 | $202,160 | $243.51 | | |
| RLBRFD | RURAL LIBRARY REFUND 623 | 0.0000000000 | $202,160 | $202,160 | $0.00 | | |
| RURALLIB | RURAL LIBRARY 623 | 0.3710609029 | $202,160 | $202,160 | $75.01 | | |
| PORTRFD | PORT REFUND 640 | 0.0000000000 | $202,160 | $202,160 | $0.00 | | |
| PORTWWGEN | PORT OF WW 640 | 0.2460186015 | $202,160 | $202,160 | $49.74 | | |
| SD400BOND | SD #400 BOND 793 | 0.0000000000 | $202,160 | $202,160 | $0.00 | | |
| SD400CAP | SD #400 CP 792 | 0.3443722657 | $202,160 | $202,160 | $69.62 | | |
| SD400GEN | SD #400 GENERAL 790 | 1.9278469916 | $202,160 | $202,160 | $389.73 | | |
| ST2 | STATE SCHOOL PART 2 600 | 0.8131451643 | $202,160 | $202,160 | $164.39 | | |
| STATESCHL | STATE SCHOOL 600 | 1.5158548041 | $202,160 | $202,160 | $306.45 | | |
| STREFUND | STATE REFUND LEVY 603 | 0.0000000000 | $202,160 | $202,160 | $0.00 | | |
| COROAD | COUNTY ROAD 115 | 1.6549953990 | $202,160 | $202,160 | $334.57 | | |
| CRPRD | COUNTY ROAD REFUND 115 | 0.0000000000 | $202,160 | $202,160 | $0.00 | | |
| | Total Tax Rate: | 9.5152210736 | | | | | |
| | | | | Taxes w/Current Exemptions: | $1,923.60 | | |
| | | | | Taxes w/o Exemptions: | $1,923.60 | | |
Improvement / Building
| Improvement #1: | MANUFACTURED HOME | State Code: | 11 | 1848.0 sqft | Value: | $141,970 |
| Exterior Wall: | METAL/STEEL | Heating/Cooling: | REV-HEAT-PUMP-W/DUCT | | Number of Bathrooms: | 2 | Number of Bedrooms: | 3 | | Plumbing: | 8 | Roof Covering: | GALVANIZED METAL |
|
| | Type | Description | Class CD | Sub Class CD | Year Built | Area |
| | MOBHOME | MANUFACTURD HOMES | 1 | 20 | 1974 | 1848.0 |
| | MI1 | MH SET-UP COSTS | 1 | 20 | 1974 | 1.0 |
| | CPCD | CARPORT/DIRT FLOOR | 1 | 20 | 1974 | 528.0 |
| | WOD | Wood Deck | 1 | 20 | 1974 | 240.0 |
Sketch
Property Image
Land
| 1 | RES 1 | Converted: Residential | 0.3177 | 13837.00 | 0.00 | 0.00 | 1.00 | $60,190 | $0 |
Roll Value History
| 2025 | N/A | N/A | N/A | N/A | N/A |
| 2024 | $141,970 | $60,190 | $0 | $202,160 | $202,160 |
| 2023 | $141,970 | $60,190 | $0 | $202,160 | $202,160 |
| 2022 | $129,060 | $60,190 | $0 | $189,250 | $189,250 |
| 2021 | $71,700 | $60,190 | $0 | $131,890 | $131,890 |
| 2020 | $79,790 | $23,400 | $0 | $103,190 | $103,190 |
| 2019 | $79,790 | $23,400 | $0 | $103,190 | $103,190 |
| 2018 | $79,790 | $23,400 | $0 | $103,190 | $103,190 |
| 2017 | $72,540 | $23,400 | $0 | $95,940 | $95,940 |
| 2016 | $55,800 | $23,400 | $0 | $79,200 | $79,200 |
| 2015 | $55,800 | $23,400 | $0 | $79,200 | $79,200 |
| 2014 | $55,800 | $23,400 | $0 | $79,200 | $79,200 |
| 2013 | $55,800 | $23,400 | $0 | $79,200 | $79,200 |
| 2012 | $55,800 | $23,400 | $0 | $0 | $0 |
| 2011 | $52,000 | $23,400 | $0 | $0 | $0 |
| 2010 | $52,000 | $23,400 | $0 | $0 | $0 |
| 2009 | $51,400 | $19,500 | $0 | $0 | $0 |
| 2008 | $51,400 | $19,500 | $0 | $0 | $0 |
| 2007 | $51,400 | $19,500 | $0 | $0 | $0 |
| 2006 | $51,400 | $19,500 | $0 | $0 | $0 |
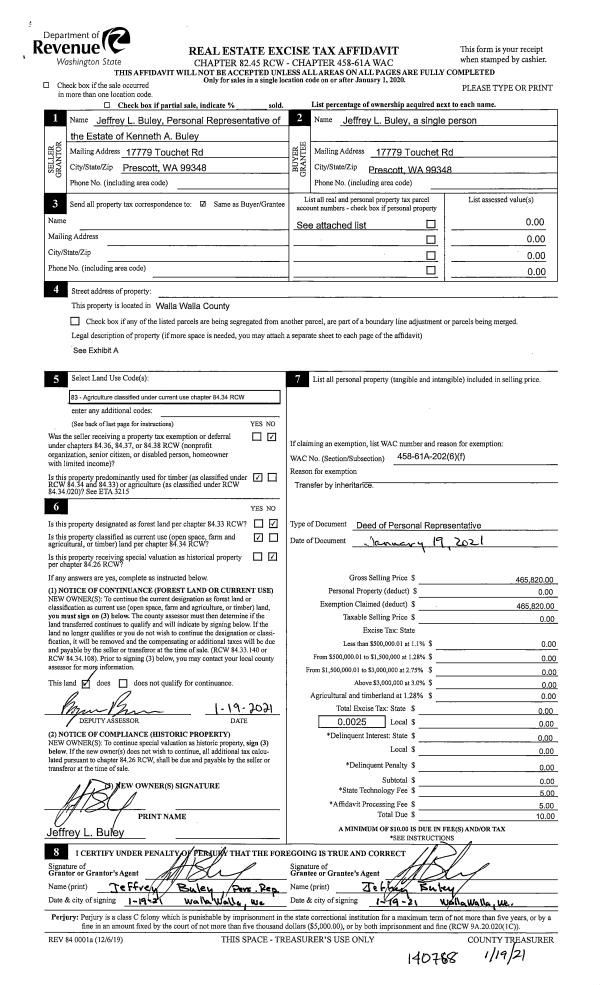
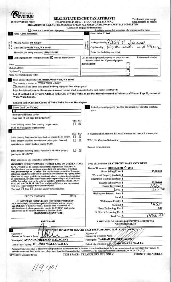
Deed and Sales History
| 1 | 06/25/2015 | MH AFFIDAV | MOBILE HOME AFFIDAVIT | DENTON ORAN D & ROBIN D | REARDON JOSHUA N & HEIDI L | | | | 128245 | MHAFF-128245 |
| 2 | 06/02/2015 | QCD | QUIT CLAIM DEED | DENTON ORAN D & ROBIN D | REARDON JOSHUA N & HEIDI L | | | $0.00 | 128174 | 2015-05030 |
| 3 | 05/03/2011 | WARRANTY D | WARRANTY DEED | MC CLARIN, ELIOT P & LISA L | DENTON, ORAN D & ROBIN D | | | | 120036 | 2011-03525 |
| 4 | 04/22/2011 | WARRANTY D | WARRANTY DEED | MC CLARIN, ELIOT P & LISA L | DENTON, ORAN D & ROBIN D | | | $80,500.00 | 120044 | 2011-03270 |
| 5 | 04/15/2011 | WARRANTY D | WARRANTY DEED | MC CLARIN, ELIOT P & LISA L | DENTON, ORAN D & ROBIN D | | | $52,000.00 | 120040 | -120040 |
Payout Agreement
| No payout information available.. |