Property
Account |
| Property ID: | 24415 | Abbreviated Legal Description: | HARRISON & RAY INC ADD LOT 1 BLK 4 |
| Parcel Number: | 300812570401 | Agent Code: | |
| Type: | Real | | |
| Tax Area: | 331 - 400-M-5-W4 | Land Use Code | 11 |
| Open Space: | N | DFL | N |
| Historic Property: | N | Remodel Property: | N |
| Multi-Family Redevelopment: | N | | |
| Township: | 8 | Section: | 12 |
| Range: | 30 |
Location |
| Address: | 18 ADAIR RD WA 99323 | Mapsco: | |
| Neighborhood: | Burbank A MH | Map ID: | |
| Neighborhood CD: | 213761 |
Owner |
| Name: | GALINDO MIGUEL OLIVA | Owner ID: | 59764 |
| Mailing Address: | EMMA LICON 18 ADAIR RD BURBANK, WA 99323 | % Ownership: | 100.0000000000% |
| | | Exemptions: | |
Taxes and Assessment Details
Values
| (+) Improvement Homesite Value: | + | $0 | |
| (+) Improvement Non-Homesite Value: | + | $61,230 | |
| (+) Land Homesite Value: | + | $0 | |
| (+) Land Non-Homesite Value: | + | $60,610 | |
| (+) Curr Use (HS): | + | $0 | $0 |
| (+) Curr Use (NHS): | + | $0 | $0 |
| | | -------------------------- | |
| (=) Market Value: | = | $121,840 | |
| (–) Productivity Loss: | – | $0 | |
| | | -------------------------- | |
| (=) Subtotal: | = | $121,840 | |
| (+) Senior Appraised Value: | + | $0 | |
| (+) Non-Senior Appraised Value: | + | $121,840 | |
| | | -------------------------- | |
| (=) Total Appraised Value: | = | $121,840 | |
| (–) Senior Exemption Loss: | – | $0 | |
| (–) Exemption Loss: | – | $0 | |
| | | -------------------------- | |
| (=) Taxable Value: | = | $121,840 | |
Taxing Jurisdiction
| Owner: | GALINDO MIGUEL OLIVA | | |
| % Ownership: | 100.0000000000% | | |
| Total Value: | $121,840 | | |
| Tax Area: | 331 - 400-M-5-W4 |
| CERFD | CURRENT EXPENSE REFUND 010 | 0.0000000000 | $121,840 | $121,840 | $0.00 | | |
| CURREXP | CURRENT EXPENSE 010 | 1.0175366760 | $121,840 | $121,840 | $123.98 | | |
| HUMNSERV | HUMAN SERVICES 119 | 0.0250000000 | $121,840 | $121,840 | $3.05 | | |
| SLDREL | SOLDIERS RELIEF 121 | 0.0155990005 | $121,840 | $121,840 | $1.90 | | |
| EMERGSER | EMS 147 | 0.3792580840 | $121,840 | $121,840 | $46.21 | | |
| EMSRFD | EMS REFUND 147 | 0.0000000000 | $121,840 | $121,840 | $0.00 | | |
| FD5EXP | FD #5 EXPENSE 689 | 1.2045331840 | $121,840 | $121,840 | $146.76 | | |
| RLBRFD | RURAL LIBRARY REFUND 623 | 0.0000000000 | $121,840 | $121,840 | $0.00 | | |
| RURALLIB | RURAL LIBRARY 623 | 0.3710609029 | $121,840 | $121,840 | $45.21 | | |
| PORTRFD | PORT REFUND 640 | 0.0000000000 | $121,840 | $121,840 | $0.00 | | |
| PORTWWGEN | PORT OF WW 640 | 0.2460186015 | $121,840 | $121,840 | $29.97 | | |
| SD400BOND | SD #400 BOND 793 | 0.0000000000 | $121,840 | $121,840 | $0.00 | | |
| SD400CAP | SD #400 CP 792 | 0.3443722657 | $121,840 | $121,840 | $41.96 | | |
| SD400GEN | SD #400 GENERAL 790 | 1.9278469916 | $121,840 | $121,840 | $234.89 | | |
| ST2 | STATE SCHOOL PART 2 600 | 0.8131451643 | $121,840 | $121,840 | $99.07 | | |
| STATESCHL | STATE SCHOOL 600 | 1.5158548041 | $121,840 | $121,840 | $184.69 | | |
| STREFUND | STATE REFUND LEVY 603 | 0.0000000000 | $121,840 | $121,840 | $0.00 | | |
| COROAD | COUNTY ROAD 115 | 1.6549953990 | $121,840 | $121,840 | $201.64 | | |
| CRPRD | COUNTY ROAD REFUND 115 | 0.0000000000 | $121,840 | $121,840 | $0.00 | | |
| | Total Tax Rate: | 9.5152210736 | | | | | |
| | | | | Taxes w/Current Exemptions: | $1,159.33 | | |
| | | | | Taxes w/o Exemptions: | $1,159.33 | | |
Improvement / Building
| Improvement #1: | MANUFACTURED HOME | State Code: | 11 | 1140.0 sqft | Value: | $61,230 |
| Exterior Wall: | RIBBED ALUMINUM | Heating/Cooling: | REV-HEAT-PUMP-W/DUCT | | Number of Bathrooms: | 2 | Number of Bedrooms: | 3 | | Plumbing: | 8 | Roof Covering: | GALVANIZED METAL |
|
| | Type | Description | Class CD | Sub Class CD | Year Built | Area |
| | MOBHOME | MANUFACTURD HOMES | 1 | 20 | 1971 | 1140.0 |
| | MI1 | MH SET-UP COSTS | 1 | 20 | 1971 | 1.0 |
| | POL2 | POLE BUILDING-CONCRETE | 1 | 20 | 1971 | 900.0 |
| | WOD | Wood Deck | 1 | 20 | 1971 | 128.0 |
Sketch
Property Image
Land
| 1 | RES 1 | Converted: Residential | 0.3522 | 15344.00 | 0.00 | 0.00 | 1.00 | $60,610 | $0 |
Roll Value History
| 2025 | N/A | N/A | N/A | N/A | N/A |
| 2024 | $61,230 | $60,610 | $0 | $121,840 | $121,840 |
| 2023 | $61,230 | $60,610 | $0 | $121,840 | $121,840 |
| 2022 | $55,670 | $60,610 | $0 | $116,280 | $116,280 |
| 2021 | $42,820 | $60,610 | $0 | $103,430 | $103,430 |
| 2020 | $54,650 | $24,200 | $0 | $78,850 | $78,850 |
| 2019 | $54,650 | $24,200 | $0 | $78,850 | $78,850 |
| 2018 | $49,680 | $24,200 | $0 | $73,880 | $73,880 |
| 2017 | $49,680 | $24,200 | $0 | $73,880 | $73,880 |
| 2016 | $24,840 | $24,200 | $0 | $49,040 | $49,040 |
| 2015 | $20,700 | $24,200 | $0 | $44,900 | $44,900 |
| 2014 | $20,700 | $24,200 | $0 | $44,900 | $44,900 |
| 2013 | $20,700 | $24,200 | $0 | $44,900 | $44,900 |
| 2012 | $20,700 | $24,200 | $0 | $0 | $0 |
| 2011 | $20,700 | $24,200 | $0 | $0 | $0 |
| 2010 | $20,700 | $24,200 | $0 | $0 | $0 |
| 2009 | $25,600 | $20,700 | $0 | $0 | $0 |
| 2008 | $23,400 | $20,700 | $0 | $0 | $0 |
| 2007 | $23,400 | $20,700 | $0 | $0 | $0 |
| 2006 | $23,400 | $20,700 | $0 | $0 | $0 |
Deed and Sales History
| 1 | 12/02/2024 | FUL | FULFILLMENT DEED | ELVIRA MARIA | GALINDO MIGUEL OLIVA | | | | 131201 | 2024-06921 |
| 2 | 10/05/2016 | REAL ESTAT | REAL ESTATE CONTRACT | ELVIRA MARIA | GALINDO MIGUEL OLIVA | | | $79,500.00 | 131201 | 2016-08215 |
| 3 | 04/05/2016 | SWP | Special Warranty Deed | LANGE JUDITH PATRICIA ESTATE | ELVIRA MARIA | | | $60,000.00 | 129960 | 2016-02492 |
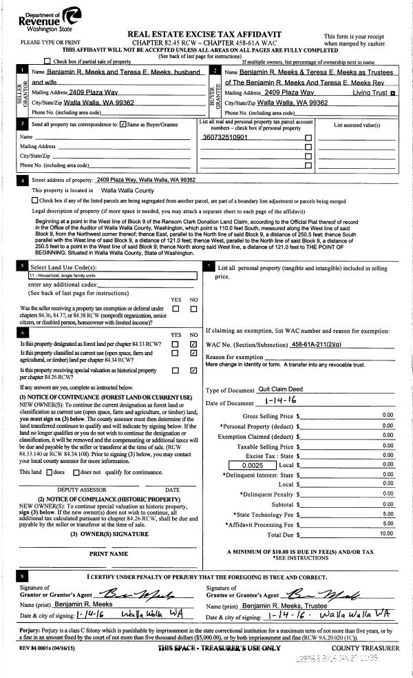
| 4 | 03/17/2016 | QCD | QUIT CLAIM DEED | LANGE RENEY MICHELLE | LANGE JUDITH PATRICIA ESTATE | | | $0.00 | 129845 | 2016-01997 |
| 5 | 03/10/2016 | QCD | QUIT CLAIM DEED | BELL DENISE DANIELLE | LANGE JUDITH PATRICIA ESTATE | | | $0.00 | 129846 | 2016-01998 |
Payout Agreement
| No payout information available.. |