Property
Account |
| Property ID: | 24408 | Abbreviated Legal Description: | HARRISON & RAY INC ADD LOT 9 BLK 3 |
| Parcel Number: | 300812570309 | Agent Code: | |
| Type: | Real | | |
| Tax Area: | 331 - 400-M-5-W4 | Land Use Code | 11 |
| Open Space: | N | DFL | N |
| Historic Property: | N | Remodel Property: | N |
| Multi-Family Redevelopment: | N | | |
| Township: | 8 | Section: | 12 |
| Range: | 30 |
Location |
| Address: | 214 LARGENT RD WA 99323 | Mapsco: | |
| Neighborhood: | Burbank A MH | Map ID: | |
| Neighborhood CD: | 213761 |
Owner |
| Name: | STOLZ WILLIAM J | Owner ID: | 60156 |
| Mailing Address: | 214 LARGENT RD BURBANK, WA 99323 | % Ownership: | 100.0000000000% |
| | | Exemptions: | |
Taxes and Assessment Details
Values
| (+) Improvement Homesite Value: | + | $0 | |
| (+) Improvement Non-Homesite Value: | + | $200,240 | |
| (+) Land Homesite Value: | + | $0 | |
| (+) Land Non-Homesite Value: | + | $61,310 | |
| (+) Curr Use (HS): | + | $0 | $0 |
| (+) Curr Use (NHS): | + | $0 | $0 |
| | | -------------------------- | |
| (=) Market Value: | = | $261,550 | |
| (–) Productivity Loss: | – | $0 | |
| | | -------------------------- | |
| (=) Subtotal: | = | $261,550 | |
| (+) Senior Appraised Value: | + | $0 | |
| (+) Non-Senior Appraised Value: | + | $261,550 | |
| | | -------------------------- | |
| (=) Total Appraised Value: | = | $261,550 | |
| (–) Senior Exemption Loss: | – | $0 | |
| (–) Exemption Loss: | – | $0 | |
| | | -------------------------- | |
| (=) Taxable Value: | = | $261,550 | |
Taxing Jurisdiction
| Owner: | STOLZ WILLIAM J | | |
| % Ownership: | 100.0000000000% | | |
| Total Value: | $261,550 | | |
| Tax Area: | 331 - 400-M-5-W4 |
| CERFD | CURRENT EXPENSE REFUND 010 | 0.0000000000 | $261,550 | $261,550 | $0.00 | | |
| CURREXP | CURRENT EXPENSE 010 | 1.0175366760 | $261,550 | $261,550 | $266.14 | | |
| HUMNSERV | HUMAN SERVICES 119 | 0.0250000000 | $261,550 | $261,550 | $6.54 | | |
| SLDREL | SOLDIERS RELIEF 121 | 0.0155990005 | $261,550 | $261,550 | $4.08 | | |
| EMERGSER | EMS 147 | 0.3792580840 | $261,550 | $261,550 | $99.19 | | |
| EMSRFD | EMS REFUND 147 | 0.0000000000 | $261,550 | $261,550 | $0.00 | | |
| FD5EXP | FD #5 EXPENSE 689 | 1.2045331840 | $261,550 | $261,550 | $315.05 | | |
| RLBRFD | RURAL LIBRARY REFUND 623 | 0.0000000000 | $261,550 | $261,550 | $0.00 | | |
| RURALLIB | RURAL LIBRARY 623 | 0.3710609029 | $261,550 | $261,550 | $97.05 | | |
| PORTRFD | PORT REFUND 640 | 0.0000000000 | $261,550 | $261,550 | $0.00 | | |
| PORTWWGEN | PORT OF WW 640 | 0.2460186015 | $261,550 | $261,550 | $64.35 | | |
| SD400BOND | SD #400 BOND 793 | 0.0000000000 | $261,550 | $261,550 | $0.00 | | |
| SD400CAP | SD #400 CP 792 | 0.3443722657 | $261,550 | $261,550 | $90.07 | | |
| SD400GEN | SD #400 GENERAL 790 | 1.9278469916 | $261,550 | $261,550 | $504.23 | | |
| ST2 | STATE SCHOOL PART 2 600 | 0.8131451643 | $261,550 | $261,550 | $212.68 | | |
| STATESCHL | STATE SCHOOL 600 | 1.5158548041 | $261,550 | $261,550 | $396.47 | | |
| STREFUND | STATE REFUND LEVY 603 | 0.0000000000 | $261,550 | $261,550 | $0.00 | | |
| COROAD | COUNTY ROAD 115 | 1.6549953990 | $261,550 | $261,550 | $432.86 | | |
| CRPRD | COUNTY ROAD REFUND 115 | 0.0000000000 | $261,550 | $261,550 | $0.00 | | |
| | Total Tax Rate: | 9.5152210736 | | | | | |
| | | | | Taxes w/Current Exemptions: | $2,488.71 | | |
| | | | | Taxes w/o Exemptions: | $2,488.71 | | |
Improvement / Building
| Improvement #1: | MANUFACTURED HOME | State Code: | 11 | 1344.0 sqft | Value: | $200,240 |
| Exterior Wall: | HARDBOARD | Heating/Cooling: | WARM & COOLED AIR | | Number of Bathrooms: | 2 | Number of Bedrooms: | 3 | | Plumbing: | 8 | Roof Covering: | COMP SHINGLE |
|
| | Type | Description | Class CD | Sub Class CD | Year Built | Area |
| | MOBHOME | MANUFACTURD HOMES | 1 | 30 | 1990 | 1344.0 |
| | MI1 | MH SET-UP COSTS | 1 | 30 | 1990 | 1.0 |
| | WOD | Wood Deck | 1 | 30 | 1990 | 61.0 |
| | TOOL | TOOL SHED | 1 | 30 | 1990 | 400.0 |
Sketch
Property Image
Land
| 1 | RES 1 | Converted: Residential | 0.3931 | 17125.00 | 0.00 | 0.00 | 1.00 | $61,310 | $0 |
Roll Value History
| 2025 | N/A | N/A | N/A | N/A | N/A |
| 2024 | $210,250 | $61,310 | $0 | $271,560 | $271,560 |
| 2023 | $200,240 | $61,310 | $0 | $261,550 | $261,550 |
| 2022 | $160,190 | $61,310 | $0 | $221,500 | $221,500 |
| 2021 | $114,420 | $61,310 | $0 | $175,730 | $175,730 |
| 2020 | $124,160 | $25,100 | $0 | $149,260 | $149,260 |
| 2019 | $124,160 | $25,100 | $0 | $149,260 | $149,260 |
| 2018 | $112,880 | $25,100 | $0 | $137,980 | $137,980 |
| 2017 | $112,880 | $25,100 | $0 | $137,980 | $137,980 |
| 2016 | $112,880 | $25,100 | $0 | $137,980 | $137,980 |
| 2015 | $107,500 | $25,100 | $0 | $132,600 | $132,600 |
| 2014 | $107,500 | $25,100 | $0 | $132,600 | $132,600 |
| 2013 | $107,500 | $25,100 | $0 | $132,600 | $132,600 |
| 2012 | $84,400 | $25,100 | $0 | $0 | $0 |
| 2011 | $84,400 | $25,100 | $0 | $0 | $0 |
| 2010 | $84,400 | $25,100 | $0 | $0 | $0 |
| 2009 | $84,300 | $22,200 | $0 | $0 | $0 |
| 2008 | $70,400 | $22,200 | $0 | $0 | $0 |
| 2007 | $70,400 | $22,200 | $0 | $0 | $0 |
| 2006 | $70,400 | $22,200 | $0 | $0 | $0 |
Deed and Sales History
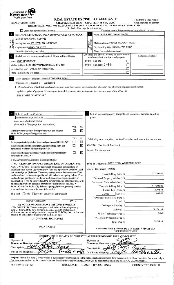
| 1 | 12/08/2016 | SWD | STATUTORY WARRANTY DEED | BRANDT CHRISTINE M | STOLZ WILLIAM J | | | $132,000.00 | 131554 | 2016-10082 |
| 2 | 12/08/2016 | LOPA | LACK OF PROBATE AFFIDAVIT | BRANDT GARY A & CHRISTINE M | BRANDT CHRISTINE M | | | $0.00 | 131555 | 2016-10064 |
Payout Agreement
| No payout information available.. |