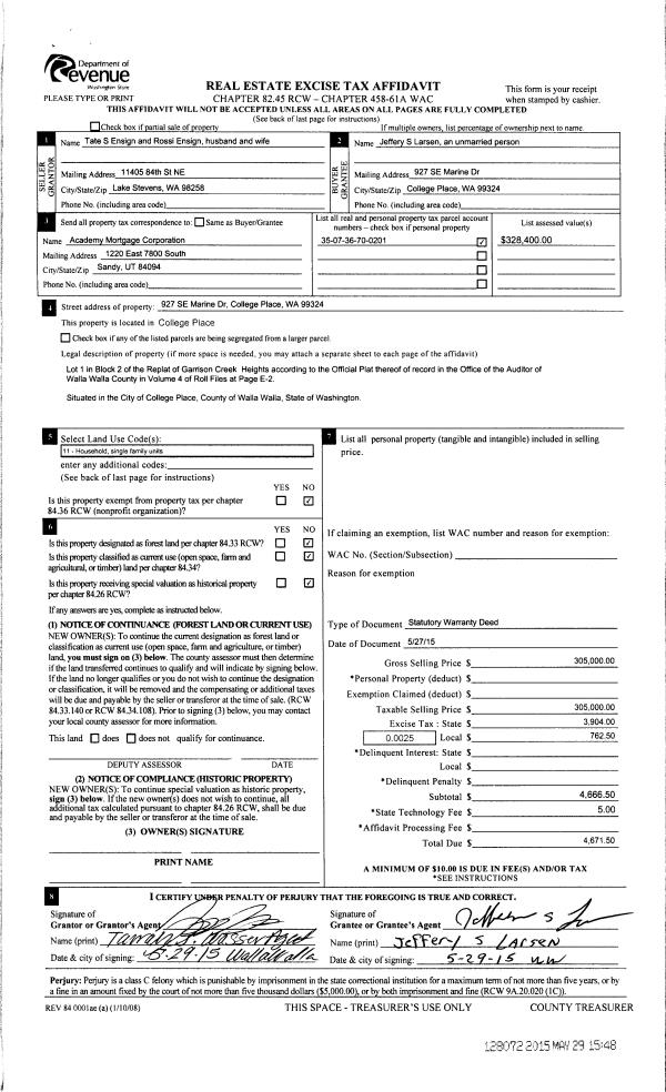
Property
Account |
| Property ID: | 24407 | Abbreviated Legal Description: | HARRISON & RAY INC ADD LOT 8 BLK 3 |
| Parcel Number: | 300812570308 | Agent Code: | |
| Type: | Real | | |
| Tax Area: | 331 - 400-M-5-W4 | Land Use Code | 11 |
| Open Space: | N | DFL | N |
| Historic Property: | N | Remodel Property: | N |
| Multi-Family Redevelopment: | N | | |
| Township: | 8 | Section: | 12 |
| Range: | 30 |
Location |
| Address: | 196 LARGENT RD WA 99323 | Mapsco: | |
| Neighborhood: | Burbank A MH | Map ID: | |
| Neighborhood CD: | 213761 |
Owner |
| Name: | REED CONNOR LYNN & KATHLEEN CODY | Owner ID: | 72034 |
| Mailing Address: | 196 LARGENT RD BURBANK, WA 99323 | % Ownership: | 100.0000000000% |
| | | Exemptions: | |
Taxes and Assessment Details
Values
| (+) Improvement Homesite Value: | + | $233,040 | |
| (+) Improvement Non-Homesite Value: | + | $0 | |
| (+) Land Homesite Value: | + | $61,310 | |
| (+) Land Non-Homesite Value: | + | $0 | |
| (+) Curr Use (HS): | + | $0 | $0 |
| (+) Curr Use (NHS): | + | $0 | $0 |
| | | -------------------------- | |
| (=) Market Value: | = | $294,350 | |
| (–) Productivity Loss: | – | $0 | |
| | | -------------------------- | |
| (=) Subtotal: | = | $294,350 | |
| (+) Senior Appraised Value: | + | $0 | |
| (+) Non-Senior Appraised Value: | + | $294,350 | |
| | | -------------------------- | |
| (=) Total Appraised Value: | = | $294,350 | |
| (–) Senior Exemption Loss: | – | $0 | |
| (–) Exemption Loss: | – | $0 | |
| | | -------------------------- | |
| (=) Taxable Value: | = | $294,350 | |
Taxing Jurisdiction
| Owner: | REED CONNOR LYNN & KATHLEEN CODY | | |
| % Ownership: | 100.0000000000% | | |
| Total Value: | $294,350 | | |
| Tax Area: | 331 - 400-M-5-W4 |
| CERFD | CURRENT EXPENSE REFUND 010 | 0.0000000000 | $294,350 | $294,350 | $0.00 | | |
| CURREXP | CURRENT EXPENSE 010 | 1.0175366760 | $294,350 | $294,350 | $299.51 | | |
| HUMNSERV | HUMAN SERVICES 119 | 0.0250000000 | $294,350 | $294,350 | $7.36 | | |
| SLDREL | SOLDIERS RELIEF 121 | 0.0155990005 | $294,350 | $294,350 | $4.59 | | |
| EMERGSER | EMS 147 | 0.3792580840 | $294,350 | $294,350 | $111.63 | | |
| EMSRFD | EMS REFUND 147 | 0.0000000000 | $294,350 | $294,350 | $0.00 | | |
| FD5EXP | FD #5 EXPENSE 689 | 1.2045331840 | $294,350 | $294,350 | $354.55 | | |
| RLBRFD | RURAL LIBRARY REFUND 623 | 0.0000000000 | $294,350 | $294,350 | $0.00 | | |
| RURALLIB | RURAL LIBRARY 623 | 0.3710609029 | $294,350 | $294,350 | $109.22 | | |
| PORTRFD | PORT REFUND 640 | 0.0000000000 | $294,350 | $294,350 | $0.00 | | |
| PORTWWGEN | PORT OF WW 640 | 0.2460186015 | $294,350 | $294,350 | $72.42 | | |
| SD400BOND | SD #400 BOND 793 | 0.0000000000 | $294,350 | $294,350 | $0.00 | | |
| SD400CAP | SD #400 CP 792 | 0.3443722657 | $294,350 | $294,350 | $101.37 | | |
| SD400GEN | SD #400 GENERAL 790 | 1.9278469916 | $294,350 | $294,350 | $567.46 | | |
| ST2 | STATE SCHOOL PART 2 600 | 0.8131451643 | $294,350 | $294,350 | $239.35 | | |
| STATESCHL | STATE SCHOOL 600 | 1.5158548041 | $294,350 | $294,350 | $446.19 | | |
| STREFUND | STATE REFUND LEVY 603 | 0.0000000000 | $294,350 | $294,350 | $0.00 | | |
| COROAD | COUNTY ROAD 115 | 1.6549953990 | $294,350 | $294,350 | $487.15 | | |
| CRPRD | COUNTY ROAD REFUND 115 | 0.0000000000 | $294,350 | $294,350 | $0.00 | | |
| | Total Tax Rate: | 9.5152210736 | | | | | |
| | | | | Taxes w/Current Exemptions: | $2,800.80 | | |
| | | | | Taxes w/o Exemptions: | $2,800.80 | | |
Improvement / Building
| Improvement #1: | MANUFACTURED HOME | State Code: | 11 | 1512.0 sqft | Value: | $233,040 |
| Exterior Wall: | HARDBOARD | Heating/Cooling: | WARM & COOLED AIR | | Number of Bathrooms: | 2 | Number of Bedrooms: | 3 | | Plumbing: | 8 | Roof Covering: | COMP SHINGLE |
|
| | Type | Description | Class CD | Sub Class CD | Year Built | Area |
| | MOBHOME | MANUFACTURD HOMES | 1 | 30 | 1996 | 1512.0 |
| | MI1 | MH SET-UP COSTS | 1 | 30 | 1996 | 1.0 |
| | POL2 | POLE BUILDING-CONCRETE | 1 | 30 | 2010 | 720.0 |
| | WOD | Wood Deck | 1 | 30 | 1996 | 24.0 |
| | UTST | Utility Storage Shed | 1 | 30 | 1996 | 96.0 |
| | UTST | Utility Storage Shed | 1 | 30 | 1996 | 120.0 |
Sketch
Property Image
Land
| 1 | RES 1 | Converted: Residential | 0.3931 | 17125.00 | 0.00 | 0.00 | 1.00 | $61,310 | $0 |
Roll Value History
| 2025 | N/A | N/A | N/A | N/A | N/A |
| 2024 | $244,690 | $61,310 | $0 | $306,000 | $306,000 |
| 2023 | $233,040 | $61,310 | $0 | $294,350 | $294,350 |
| 2022 | $202,640 | $61,310 | $0 | $263,950 | $263,950 |
| 2021 | $119,200 | $61,310 | $0 | $180,510 | $180,510 |
| 2020 | $133,760 | $25,100 | $0 | $158,860 | $158,860 |
| 2019 | $133,760 | $25,100 | $0 | $158,860 | $158,860 |
| 2018 | $133,760 | $25,100 | $0 | $158,860 | $158,860 |
| 2017 | $83,600 | $25,100 | $0 | $108,700 | $108,700 |
| 2016 | $76,000 | $25,100 | $0 | $101,100 | $101,100 |
| 2015 | $76,000 | $25,100 | $0 | $101,100 | $101,100 |
| 2014 | $76,000 | $25,100 | $0 | $101,100 | $101,100 |
| 2013 | $76,000 | $25,100 | $0 | $101,100 | $101,100 |
| 2012 | $76,000 | $25,100 | $0 | $0 | $0 |
| 2011 | $76,000 | $25,100 | $0 | $0 | $0 |
| 2010 | $64,600 | $25,100 | $0 | $0 | $0 |
| 2009 | $71,400 | $22,200 | $0 | $0 | $0 |
| 2008 | $63,900 | $22,200 | $0 | $0 | $0 |
| 2007 | $63,900 | $22,200 | $0 | $0 | $0 |
| 2006 | $63,900 | $22,200 | $0 | $0 | $0 |
Deed and Sales History
| 1 | 07/29/2022 | QCD | QUIT CLAIM DEED | HOUSER KATHLEEN CODY | REED CONNOR LYNN & KATHLEEN CODY | | | $0.00 | 144406 | 2022-06396 |
| 2 | 09/29/2017 | MH AFFIDAV | MOBILE HOME AFFIDAVIT | ROWLAND JERRY A & JENIFER K | HOUSER KATHLEEN CODY | | | | 133327 | MHAFF-133327 |
| 3 | 09/29/2017 | SWD | STATUTORY WARRANTY DEED | ROWLAND LIVING TRUST | HOUSER KATHLEEN CODY | | | $166,500.00 | 133326 | 2017-07751 |
| 4 | 08/10/2017 | FUL | FULFILLMENT DEED | LESLIE JENNIFER L | ROWLAND JERRY A & JENIFER K | | | | 0 | 2017-06158 |
| 5 | 05/21/2015 | WARRANTY D | WARRANTY DEED | ROWLAND JERRY A & JENIFER K | ROWLAND LIVING TRUST | | | | 128182 | 2015-05068 |
Payout Agreement
| No payout information available.. |