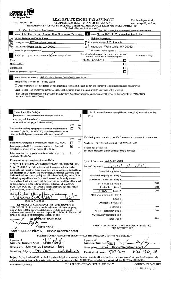
Property
Account |
| Property ID: | 24356 | Abbreviated Legal Description: | HARRISON-SAGE SUBD. PARCEL 2 BLK 1 |
| Parcel Number: | 300812560102 | Agent Code: | |
| Type: | Real | | |
| Tax Area: | 331 - 400-M-5-W4 | Land Use Code | 11 |
| Open Space: | N | DFL | N |
| Historic Property: | N | Remodel Property: | N |
| Multi-Family Redevelopment: | N | | |
| Township: | 8 | Section: | 12 |
| Range: | 30 |
Location |
| Address: | 28 REINKEN BLVD WA 99323 | Mapsco: | |
| Neighborhood: | Burbank A MH | Map ID: | |
| Neighborhood CD: | 213761 |
Owner |
| Name: | CUILLIER BRENT | Owner ID: | 60925 |
| Mailing Address: | 28 REINKEN BLVD BURBANK, WA 99323 | % Ownership: | 100.0000000000% |
| | | Exemptions: | |
Taxes and Assessment Details
Values
| (+) Improvement Homesite Value: | + | $0 | |
| (+) Improvement Non-Homesite Value: | + | $201,290 | |
| (+) Land Homesite Value: | + | $0 | |
| (+) Land Non-Homesite Value: | + | $62,170 | |
| (+) Curr Use (HS): | + | $0 | $0 |
| (+) Curr Use (NHS): | + | $0 | $0 |
| | | -------------------------- | |
| (=) Market Value: | = | $263,460 | |
| (–) Productivity Loss: | – | $0 | |
| | | -------------------------- | |
| (=) Subtotal: | = | $263,460 | |
| (+) Senior Appraised Value: | + | $0 | |
| (+) Non-Senior Appraised Value: | + | $263,460 | |
| | | -------------------------- | |
| (=) Total Appraised Value: | = | $263,460 | |
| (–) Senior Exemption Loss: | – | $0 | |
| (–) Exemption Loss: | – | $0 | |
| | | -------------------------- | |
| (=) Taxable Value: | = | $263,460 | |
Taxing Jurisdiction
| Owner: | CUILLIER BRENT | | |
| % Ownership: | 100.0000000000% | | |
| Total Value: | $263,460 | | |
| Tax Area: | 331 - 400-M-5-W4 |
| CERFD | CURRENT EXPENSE REFUND 010 | 0.0000000000 | $263,460 | $263,460 | $0.00 | | |
| CURREXP | CURRENT EXPENSE 010 | 1.0175366760 | $263,460 | $263,460 | $268.08 | | |
| HUMNSERV | HUMAN SERVICES 119 | 0.0250000000 | $263,460 | $263,460 | $6.59 | | |
| SLDREL | SOLDIERS RELIEF 121 | 0.0155990005 | $263,460 | $263,460 | $4.11 | | |
| EMERGSER | EMS 147 | 0.3792580840 | $263,460 | $263,460 | $99.92 | | |
| EMSRFD | EMS REFUND 147 | 0.0000000000 | $263,460 | $263,460 | $0.00 | | |
| FD5EXP | FD #5 EXPENSE 689 | 1.2045331840 | $263,460 | $263,460 | $317.35 | | |
| RLBRFD | RURAL LIBRARY REFUND 623 | 0.0000000000 | $263,460 | $263,460 | $0.00 | | |
| RURALLIB | RURAL LIBRARY 623 | 0.3710609029 | $263,460 | $263,460 | $97.76 | | |
| PORTRFD | PORT REFUND 640 | 0.0000000000 | $263,460 | $263,460 | $0.00 | | |
| PORTWWGEN | PORT OF WW 640 | 0.2460186015 | $263,460 | $263,460 | $64.82 | | |
| SD400BOND | SD #400 BOND 793 | 0.0000000000 | $263,460 | $263,460 | $0.00 | | |
| SD400CAP | SD #400 CP 792 | 0.3443722657 | $263,460 | $263,460 | $90.73 | | |
| SD400GEN | SD #400 GENERAL 790 | 1.9278469916 | $263,460 | $263,460 | $507.91 | | |
| ST2 | STATE SCHOOL PART 2 600 | 0.8131451643 | $263,460 | $263,460 | $214.23 | | |
| STATESCHL | STATE SCHOOL 600 | 1.5158548041 | $263,460 | $263,460 | $399.37 | | |
| STREFUND | STATE REFUND LEVY 603 | 0.0000000000 | $263,460 | $263,460 | $0.00 | | |
| COROAD | COUNTY ROAD 115 | 1.6549953990 | $263,460 | $263,460 | $436.03 | | |
| CRPRD | COUNTY ROAD REFUND 115 | 0.0000000000 | $263,460 | $263,460 | $0.00 | | |
| | Total Tax Rate: | 9.5152210736 | | | | | |
| | | | | Taxes w/Current Exemptions: | $2,506.90 | | |
| | | | | Taxes w/o Exemptions: | $2,506.90 | | |
Improvement / Building
| Improvement #1: | MANUFACTURED HOME | State Code: | 11 | 1404.0 sqft | Value: | $201,290 |
| Exterior Wall: | HARDBOARD | Heating/Cooling: | HEAT PUMP | | Number of Bathrooms: | 2 | Number of Bedrooms: | 3 | | Plumbing: | 9 | Roof Covering: | COMP SHINGLE |
|
| | Type | Description | Class CD | Sub Class CD | Year Built | Area |
| | MOBHOME | MANUFACTURD HOMES | 1 | 40 | 1994 | 1404.0 |
| | MI1 | MH SET-UP COSTS | 1 | 40 | 1994 | 1.0 |
| | WOD | Wood Deck | 1 | 40 | 1994 | 184.0 |
| | POL3 | POLE BUILDING-CON,ELEC,INSU | 1 | 40 | 1994 | 576.0 |
| | CPC | COVERED CARPORT/PATIO | 1 | 40 | 1994 | 350.0 |
| | TOOL | TOOL SHED | 1 | 40 | 1994 | 120.0 |
| | TOOL | TOOL SHED | 1 | 40 | 1994 | 180.0 |
Sketch
Property Image
Land
| 1 | RES 1 | Converted: Residential | 0.4545 | 19800.00 | 0.00 | 0.00 | 1.00 | $62,170 | $0 |
Roll Value History
| 2025 | N/A | N/A | N/A | N/A | N/A |
| 2024 | $231,480 | $62,170 | $0 | $293,650 | $293,650 |
| 2023 | $201,290 | $62,170 | $0 | $263,460 | $263,460 |
| 2022 | $149,100 | $62,170 | $0 | $211,270 | $211,270 |
| 2021 | $149,100 | $62,170 | $0 | $211,270 | $211,270 |
| 2020 | $129,580 | $26,400 | $0 | $155,980 | $155,980 |
| 2019 | $129,580 | $26,400 | $0 | $155,980 | $155,980 |
| 2018 | $129,580 | $26,400 | $0 | $155,980 | $155,980 |
| 2017 | $129,580 | $26,400 | $0 | $155,980 | $155,980 |
| 2016 | $117,800 | $26,400 | $0 | $144,200 | $144,200 |
| 2015 | $117,800 | $26,400 | $0 | $144,200 | $144,200 |
| 2014 | $106,200 | $26,400 | $0 | $132,600 | $132,600 |
| 2013 | $106,200 | $26,400 | $0 | $132,600 | $132,600 |
| 2012 | $94,100 | $26,400 | $0 | $0 | $0 |
| 2011 | $94,100 | $26,400 | $0 | $0 | $0 |
| 2010 | $94,100 | $26,400 | $0 | $0 | $0 |
| 2009 | $73,900 | $24,400 | $0 | $0 | $0 |
| 2008 | $73,900 | $24,400 | $0 | $0 | $0 |
| 2007 | $73,900 | $24,400 | $0 | $0 | $0 |
| 2006 | $73,900 | $24,400 | $0 | $0 | $0 |
Deed and Sales History
| 1 | 02/24/2017 | QCD | QUIT CLAIM DEED | CUILLIER BRENT & CRYSTAL | CUILLIER BRENT | | | $0.00 | 132455 | 2017-03932 |
| 2 | 07/31/2014 | SWD | STATUTORY WARRANTY DEED | BROWN KEVIN R & VICKI M | CUILLIER BRENT & CRYSTAL | | | $150,000.00 | 126360 | 2014-05453 |
Payout Agreement
| No payout information available.. |