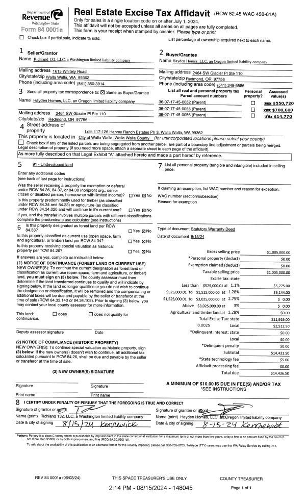
Property
Account |
| Property ID: | 24152 | Abbreviated Legal Description: | CEDAR BEND SUBD LT 11 |
| Parcel Number: | 350601530011 | Agent Code: | |
| Type: | Real | | |
| Tax Area: | 75 - CP 250 | Land Use Code | 11 |
| Open Space: | N | DFL | N |
| Historic Property: | N | Remodel Property: | N |
| Multi-Family Redevelopment: | N | | |
| Township: | 6 | Section: | 1 |
| Range: | 35 |
Location |
| Address: | 226 SE CEDAR BEND DR WA 99324 | Mapsco: | |
| Neighborhood: | A MH | Map ID: | |
| Neighborhood CD: | 113061 |
Owner |
| Name: | CHRISTIAN GAYLE | Owner ID: | 63584 |
| Mailing Address: | 226 SE CEDAR BEND DR COLLEGE PLACE, WA 99324 | % Ownership: | 100.0000000000% |
| | | Exemptions: | |
Taxes and Assessment Details
Values
| (+) Improvement Homesite Value: | + | $0 | |
| (+) Improvement Non-Homesite Value: | + | $218,860 | |
| (+) Land Homesite Value: | + | $0 | |
| (+) Land Non-Homesite Value: | + | $55,000 | |
| (+) Curr Use (HS): | + | $0 | $0 |
| (+) Curr Use (NHS): | + | $0 | $0 |
| | | -------------------------- | |
| (=) Market Value: | = | $273,860 | |
| (–) Productivity Loss: | – | $0 | |
| | | -------------------------- | |
| (=) Subtotal: | = | $273,860 | |
| (+) Senior Appraised Value: | + | $0 | |
| (+) Non-Senior Appraised Value: | + | $273,860 | |
| | | -------------------------- | |
| (=) Total Appraised Value: | = | $273,860 | |
| (–) Senior Exemption Loss: | – | $0 | |
| (–) Exemption Loss: | – | $0 | |
| | | -------------------------- | |
| (=) Taxable Value: | = | $273,860 | |
Taxing Jurisdiction
| Owner: | CHRISTIAN GAYLE | | |
| % Ownership: | 100.0000000000% | | |
| Total Value: | $273,860 | | |
| Tax Area: | 75 - CP 250 |
| CERFD | CURRENT EXPENSE REFUND 010 | 0.0000000000 | $273,860 | $273,860 | $0.00 | | |
| CURREXP | CURRENT EXPENSE 010 | 1.0175366760 | $273,860 | $273,860 | $278.66 | | |
| HUMNSERV | HUMAN SERVICES 119 | 0.0250000000 | $273,860 | $273,860 | $6.85 | | |
| SLDREL | SOLDIERS RELIEF 121 | 0.0155990005 | $273,860 | $273,860 | $4.27 | | |
| COLLPLBOND | C OF CP BOND 644 | 0.4374241808 | $273,860 | $273,860 | $119.79 | | |
| COLLPLGEN | CITY OF CP 632 | 1.4453819216 | $273,860 | $273,860 | $395.83 | | |
| EMERGSER | EMS 147 | 0.3792580840 | $273,860 | $273,860 | $103.86 | | |
| EMSRFD | EMS REFUND 147 | 0.0000000000 | $273,860 | $273,860 | $0.00 | | |
| RURALLIB | RURAL LIBRARY 623 | 0.3710609029 | $273,860 | $273,860 | $101.62 | | |
| PORTRFD | PORT REFUND 640 | 0.0000000000 | $273,860 | $273,860 | $0.00 | | |
| PORTWWGEN | PORT OF WW 640 | 0.2460186015 | $273,860 | $273,860 | $67.37 | | |
| SD250BOND | SD #250 BOND 773 | 1.4560608159 | $273,860 | $273,860 | $398.76 | | |
| SD250GEN | SD #250 GENERAL 770 | 2.3880724087 | $273,860 | $273,860 | $654.00 | | |
| ST2 | STATE SCHOOL PART 2 600 | 0.8131451643 | $273,860 | $273,860 | $222.69 | | |
| STATESCHL | STATE SCHOOL 600 | 1.5158548041 | $273,860 | $273,860 | $415.13 | | |
| STREFUND | STATE REFUND LEVY 603 | 0.0000000000 | $273,860 | $273,860 | $0.00 | | |
| | Total Tax Rate: | 10.1104125603 | | | | | |
| | | | | Taxes w/Current Exemptions: | $2,768.83 | | |
| | | | | Taxes w/o Exemptions: | $2,768.83 | | |
Improvement / Building
| Improvement #1: | MANUFACTURED HOME | State Code: | 11 | 1699.0 sqft | Value: | $218,860 |
| Exterior Wall: | HARDBOARD | Heating/Cooling: | WARM & COOLED AIR | | Number of Bathrooms: | 2 | Number of Bedrooms: | 3 | | Plumbing: | 9 | Roof Covering: | COMP SHINGLE |
|
| | Type | Description | Class CD | Sub Class CD | Year Built | Area |
| | MOBHOME | MANUFACTURD HOMES | 1 | 40 | 1998 | 1699.0 |
| | MI1 | MH SET-UP COSTS | 1 | 40 | 1998 | 1.0 |
| | ATG | Attached Garage | 1 | 40 | 1998 | 340.0 |
| | WOD | Wood Deck | 1 | 40 | 1998 | 74.0 |
| | SI1 | SITE IMPROVEMENT | 1 | 40 | 1998 | 1.0 |
Sketch
Property Image
Land
| 1 | RES 1 | Converted: Residential | 0.1599 | 6967.00 | 0.00 | 0.00 | 1.00 | $55,000 | $0 |
Roll Value History
| 2025 | N/A | N/A | N/A | N/A | N/A |
| 2024 | $218,860 | $55,000 | $0 | $273,860 | $273,860 |
| 2023 | $218,860 | $55,000 | $0 | $273,860 | $273,860 |
| 2022 | $190,310 | $55,000 | $0 | $245,310 | $245,310 |
| 2021 | $190,310 | $55,000 | $0 | $245,310 | $245,310 |
| 2020 | $108,750 | $55,000 | $0 | $163,750 | $163,750 |
| 2019 | $108,750 | $55,000 | $0 | $163,750 | $163,750 |
| 2018 | $90,630 | $55,000 | $0 | $145,630 | $145,630 |
| 2017 | $86,310 | $55,000 | $0 | $141,310 | $141,310 |
| 2016 | $82,200 | $55,000 | $0 | $137,200 | $137,200 |
| 2015 | $82,200 | $55,000 | $0 | $137,200 | $137,200 |
| 2014 | $82,200 | $55,000 | $0 | $137,200 | $137,200 |
| 2013 | $82,200 | $55,000 | $0 | $137,200 | $137,200 |
| 2012 | $82,200 | $55,000 | $0 | $0 | $0 |
| 2011 | $82,200 | $55,000 | $0 | $0 | $0 |
| 2010 | $82,200 | $55,000 | $0 | $0 | $0 |
| 2009 | $89,400 | $55,000 | $0 | $0 | $0 |
| 2008 | $91,100 | $25,000 | $0 | $0 | $0 |
| 2007 | $91,100 | $25,000 | $0 | $0 | $0 |
| 2006 | $91,100 | $25,000 | $0 | $0 | $0 |
Deed and Sales History
| 1 | 07/17/2018 | SWD | STATUTORY WARRANTY DEED | BOHLMAN ROBERT W | CHRISTIAN GAYLE | | | $175,250.00 | 135137 | 2018-05801 |
| 2 | 06/19/2003 | WARRANTY D | WARRANTY DEED | RUE, JUNE L | BOHLMAN, ROBERT W | | | $119,500.00 | 102382 | 2003-09221 |
| 3 | 08/26/1998 | WARRANTY D | WARRANTY DEED | | | | | $23,900.00 | 91102 | 2729-809766 |
Payout Agreement
| No payout information available.. |